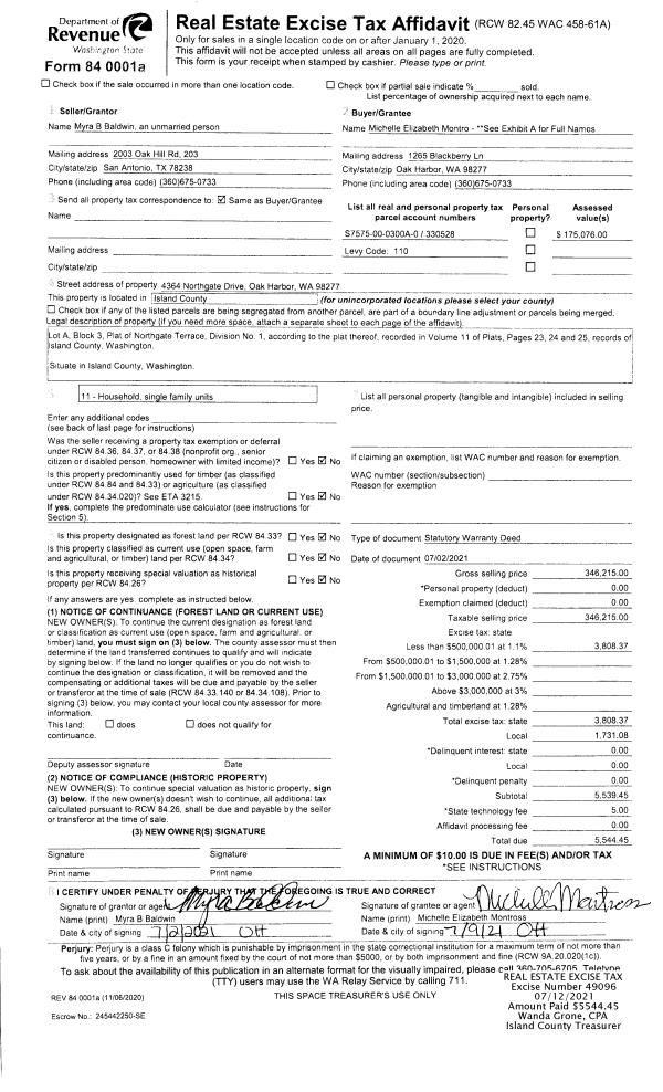
Property
Account |
| Property ID: | 121013 | Abbreviated Legal Description: | 36 - SW SW SW SUBJ TO EZ EX N/2 |
| Geographic ID: | R32902-021-1010 | Agent Code: | |
| Type: | Real | | |
| Tax Area: | 712 - APPRAISER-S Whid Schl Dist, outside Langley, improved, greater than 1 acre | Land Use Code | 11 |
| Open Space: | N | DFL | N |
| Historic Property: | N | Remodel Property: | N |
| Multi-Family Redevelopment: | N | | |
| Township: | 29 | Section: | 02 |
| Range: | R3 |
Location |
| Address: | 5197 ZIG ZAG LN LANGLEY, WA 98260 | Mapsco: | |
| Neighborhood: | Cycle 4 | Map ID: | 718 |
| Neighborhood CD: | 4 |
Owner |
| Name: | ROSENLUND, RYANNE MICHELE | Owner ID: | 290877 |
| Mailing Address: | JON D ROSENLUND 5197 ZIG ZAG LN LANGLEY, WA 98260 | % Ownership: | 100.0000000000% |
| | | Exemptions: | |
Taxes and Assessment Details
Values
| (+) Improvement Homesite Value: | + | $0 | |
| (+) Improvement Non-Homesite Value: | + | $447,677 | |
| (+) Land Homesite Value: | + | $0 | |
| (+) Land Non-Homesite Value: | + | $370,000 | |
| (+) Curr Use (HS): | + | $0 | $0 |
| (+) Curr Use (NHS): | + | $0 | $0 |
| | | -------------------------- | |
| (=) Market Value: | = | $817,677 | |
| (–) Productivity Loss: | – | $0 | |
| | | -------------------------- | |
| (=) Subtotal: | = | $817,677 | |
| (+) Senior Appraised Value: | + | $0 | |
| (+) Non-Senior Appraised Value: | + | $817,677 | |
| | | -------------------------- | |
| (=) Total Appraised Value: | = | $817,677 | |
| (–) Senior Exemption Loss: | – | $0 | |
| (–) Exemption Loss: | – | $0 | |
| | | -------------------------- | |
| (=) Taxable Value: | = | $817,677 | |
Taxing Jurisdiction
| Owner: | ROSENLUND, RYANNE MICHELE | | |
| % Ownership: | 100.0000000000% | | |
| Total Value: | $817,677 | | |
| Tax Area: | 712 - APPRAISER-S Whid Schl Dist, outside Langley, improved, greater than 1 acre |
| CF | Conservation Futures | 0.0316035091 | $817,677 | $817,677 | $25.84 | | |
| FIRE3 | Fire & Rescue Dist #3 S Whidbey GEN | 1.2004855531 | $817,677 | $817,677 | $981.61 | | |
| HOBOND | Hospital BOND | 0.1910887512 | $817,677 | $817,677 | $156.25 | | |
| HOGEN | Hospital GEN | 0.3902502903 | $817,677 | $817,677 | $319.10 | | |
| CE | County Current Expense | 0.3708482477 | $817,677 | $817,677 | $303.23 | | |
| CR | County Roads | 0.4584763726 | $817,677 | $817,677 | $374.89 | | |
| ISLANDEMS | Hospital GEN (EMS) | 0.5000000000 | $817,677 | $817,677 | $408.84 | | |
| LIB | Library Sno-Isle GEN | 0.3153421757 | $817,677 | $817,677 | $257.85 | | |
| PORTWHID | Port of S Whidbey GEN | 0.1094540357 | $817,677 | $817,677 | $89.50 | | |
| SCH206BOND | School 206 BOND | 0.3161759235 | $817,677 | $817,677 | $258.53 | | |
| SCH206MO | School 206 Enrichment | 0.4547169547 | $817,677 | $817,677 | $371.81 | | |
| ST | State School | 1.3035497053 | $817,677 | $817,677 | $1,065.88 | | |
| ST2 | State School Part 2 | 0.8169543533 | $817,677 | $817,677 | $668.00 | | |
| SWHIDPRBD | P & R S Whidbey BOND | 0.0152817568 | $817,677 | $817,677 | $12.50 | | |
| SWHIDPRBD2 | P & R S Whidbey BOND2 | 0.0138911264 | $817,677 | $817,677 | $11.36 | | |
| SWHIDPRMT | P & R S Whidbey GEN | 0.2053334452 | $817,677 | $817,677 | $167.90 | | |
| | Total Tax Rate: | 6.6934522006 | | | | | |
| | | | | Taxes w/Current Exemptions: | $5,473.09 | | |
| | | | | Taxes w/o Exemptions: | $5,473.09 | | |
Improvement / Building
| Improvement #1: | RESIDENTIAL | State Code: | Y | 2189.0 sqft | Value: | $447,677 |
| Bathrooms: | 2.75 | Bedrooms: | 3 | | Ceiling: | TONGUE & GROOVE | Exterior Wall/Cover: | WOOD SIDING | | Floor Covering: | HARDWOOD 100% | Floor Structure: | WOOD W/SUBFLOOR | | Foundation: | CONCRETE | Heating: | FHA GAS | | Interior Finish: | DRYWALL PAINT | Plumbing Fixture Cnt: | 12 | | Roof Slope: | 6" IN 12" | Roof Structure/Cover: | STEEL TERNE |
|
| | Type | Description | Class CD | Sub Class CD | Year Built | Area |
| | BAS | BASE/MAIN FLOOR | 3 | 0 | 1980 | 2189.0 |
| | DGR | DETACHED GARAGE | 3 | 0 | 1980 | 420.1 |
| | OWP | OPEN WOOD PORCH W/STEPS | 3 | 0 | 1980 | 104.0 |
| | OWP | OPEN WOOD PORCH W/STEPS | 3 | 0 | 1980 | 236.1 |
| | OWR | OPEN WOOD PORCH W/STEPS/ROOF | 3 | 0 | 1980 | 224.8 |
| | OWR | OPEN WOOD PORCH W/STEPS/ROOF | 3 | 0 | 1980 | 231.0 |
| | OCP | OPEN CARPORT | 3 | 0 | 1980 | 400.0 |
| | ENP | ENCLOSED PORCH | 3 | 0 | 1980 | 200.0 |
Sketch
Property Image
Land
| 1 | 32 | AC (03.01-09.99) | 5.0000 | 0.00 | 0.00 | 0.00 | 1.00 | $370,000 | $0 |
Roll Value History
| 2026 | N/A | N/A | N/A | N/A | N/A |
| 2025 | $447,677 | $370,000 | $0 | $817,677 | $817,677 |
| 2024 | $453,325 | $350,000 | $0 | $803,325 | $803,325 |
| 2023 | $458,975 | $330,000 | $0 | $788,975 | $788,975 |
| 2022 | $420,706 | $280,000 | $0 | $700,706 | $700,706 |
| 2021 | $370,295 | $230,000 | $0 | $600,295 | $600,295 |
| 2020 | $347,222 | $190,000 | $0 | $537,222 | $537,222 |
| 2019 | $241,990 | $250,000 | $0 | $491,990 | $491,990 |
| 2018 | $242,735 | $210,000 | $0 | $452,735 | $452,735 |
| 2017 | $244,225 | $190,000 | $0 | $434,225 | $434,225 |
| 2016 | $247,203 | $165,000 | $0 | $412,203 | $412,203 |
| 2015 | $250,182 | $135,000 | $0 | $385,182 | $385,182 |
| 2014 | $210,350 | $118,800 | $0 | $329,150 | $329,150 |
| 2013 | $213,377 | $118,800 | $0 | $332,177 | $332,177 |
| 2012 | $216,404 | $118,800 | $0 | $335,204 | $335,204 |
| 2011 | $219,430 | $118,800 | $0 | $338,230 | $338,230 |
| 2010 | $236,609 | $118,800 | $0 | $355,409 | $355,409 |
| 2009 | $246,836 | $193,600 | $0 | $440,436 | $440,436 |
| 2008 | $173,859 | $240,000 | $0 | $413,859 | $413,859 |
| 2007 | $176,453 | $240,000 | $0 | $416,453 | $416,453 |
Deed and Sales History
| 1 | 07/08/2019 | WD | Warranty Deed | GRAYBILL TRUSTEE, DANIEL F | ROSENLUND, RYANNE MICHELE | | | $555,000.00 | 39365 | 4467062 |
| 2 | 07/15/2016 | WD | Warranty Deed | GRAYBILL, DANIEL F | GRAYBILL TRUSTEE, DANIEL F | | | $0.00 | 25273 | 4403381 |
| 3 | 05/18/2006 | WD | Warranty Deed | SMITH, JAMES S | GRAYBILL, DANIEL F | | | $325,000.00 | 62318 | 4171617 |
| 4 | 01/01/1900 | OTHER | Other - Misc. Documents | Unknown | SMITH, JAMES S | | | $0.00 | 0 | 0 |
Payout Agreement
| No payout information available.. |