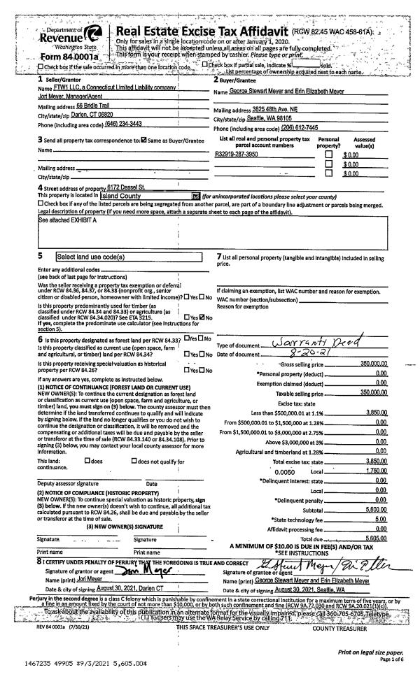
Property
Account |
| Property ID: | 121120 | Abbreviated Legal Description: | NW SW SW TGW & SUB EZ |
| Geographic ID: | R32902-110-0900 | Agent Code: | |
| Type: | Real | | |
| Tax Area: | 712 - APPRAISER-S Whid Schl Dist, outside Langley, improved, greater than 1 acre | Land Use Code | 11 |
| Open Space: | N | DFL | N |
| Historic Property: | N | Remodel Property: | N |
| Multi-Family Redevelopment: | N | | |
| Township: | 29 | Section: | 02 |
| Range: | R3 |
Location |
| Address: | 5182 ZIG ZAG LN LANGLEY, WA 98260 | Mapsco: | |
| Neighborhood: | Cycle 4 | Map ID: | 718 |
| Neighborhood CD: | 4 |
Owner |
| Name: | KANNING, JAMES L | Owner ID: | 263459 |
| Mailing Address: | PETRA A LOPEZ BOX 983 LANGLEY, WA 98260 | % Ownership: | 100.0000000000% |
| | | Exemptions: | |
Taxes and Assessment Details
Values
| (+) Improvement Homesite Value: | + | $0 | |
| (+) Improvement Non-Homesite Value: | + | $305,363 | |
| (+) Land Homesite Value: | + | $0 | |
| (+) Land Non-Homesite Value: | + | $400,000 | |
| (+) Curr Use (HS): | + | $0 | $0 |
| (+) Curr Use (NHS): | + | $0 | $0 |
| | | -------------------------- | |
| (=) Market Value: | = | $705,363 | |
| (–) Productivity Loss: | – | $0 | |
| | | -------------------------- | |
| (=) Subtotal: | = | $705,363 | |
| (+) Senior Appraised Value: | + | $0 | |
| (+) Non-Senior Appraised Value: | + | $705,363 | |
| | | -------------------------- | |
| (=) Total Appraised Value: | = | $705,363 | |
| (–) Senior Exemption Loss: | – | $0 | |
| (–) Exemption Loss: | – | $0 | |
| | | -------------------------- | |
| (=) Taxable Value: | = | $705,363 | |
Taxing Jurisdiction
| Owner: | KANNING, JAMES L | | |
| % Ownership: | 100.0000000000% | | |
| Total Value: | $705,363 | | |
| Tax Area: | 712 - APPRAISER-S Whid Schl Dist, outside Langley, improved, greater than 1 acre |
| CF | Conservation Futures | 0.0316035091 | $705,363 | $705,363 | $22.29 | | |
| FIRE3 | Fire & Rescue Dist #3 S Whidbey GEN | 1.2004855531 | $705,363 | $705,363 | $846.78 | | |
| HOBOND | Hospital BOND | 0.1910887512 | $705,363 | $705,363 | $134.79 | | |
| HOGEN | Hospital GEN | 0.3902502903 | $705,363 | $705,363 | $275.27 | | |
| CE | County Current Expense | 0.3708482477 | $705,363 | $705,363 | $261.58 | | |
| CR | County Roads | 0.4584763726 | $705,363 | $705,363 | $323.39 | | |
| ISLANDEMS | Hospital GEN (EMS) | 0.5000000000 | $705,363 | $705,363 | $352.68 | | |
| LIB | Library Sno-Isle GEN | 0.3153421757 | $705,363 | $705,363 | $222.43 | | |
| PORTWHID | Port of S Whidbey GEN | 0.1094540357 | $705,363 | $705,363 | $77.20 | | |
| SCH206BOND | School 206 BOND | 0.3161759235 | $705,363 | $705,363 | $223.02 | | |
| SCH206MO | School 206 Enrichment | 0.4547169547 | $705,363 | $705,363 | $320.74 | | |
| ST | State School | 1.3035497053 | $705,363 | $705,363 | $919.48 | | |
| ST2 | State School Part 2 | 0.8169543533 | $705,363 | $705,363 | $576.25 | | |
| SWHIDPRBD | P & R S Whidbey BOND | 0.0152817568 | $705,363 | $705,363 | $10.78 | | |
| SWHIDPRBD2 | P & R S Whidbey BOND2 | 0.0138911264 | $705,363 | $705,363 | $9.80 | | |
| SWHIDPRMT | P & R S Whidbey GEN | 0.2053334452 | $705,363 | $705,363 | $144.83 | | |
| | Total Tax Rate: | 6.6934522006 | | | | | |
| | | | | Taxes w/Current Exemptions: | $4,721.31 | | |
| | | | | Taxes w/o Exemptions: | $4,721.31 | | |
Improvement / Building
| Improvement #1: | RESIDENTIAL | State Code: | Y | 1882.4 sqft | Value: | $305,363 |
| Bathrooms: | 2 | Bedrooms: | 3 | | Ceiling: | DRY WALL SPRAYED | Exterior Wall/Cover: | PLY/HARDBOARD T-111 | | Floor Covering: | VINYL TILE/CARP 20-80 | Floor Structure: | WOOD W/SUBFLOOR | | Foundation: | CONCRETE | Heating: | FHA GAS | | Interior Finish: | DRYWALL PAINT | Plumbing Fixture Cnt: | 9 | | Roof Slope: | 5" IN 12" | Roof Structure/Cover: | CJ ASPHALT |
|
| | Type | Description | Class CD | Sub Class CD | Year Built | Area |
| | BAS | BASE/MAIN FLOOR | 3 | 0 | 1998 | 1882.4 |
| | OP4 | OPEN PORCH W/CEILING-ROOF | 3 | 0 | 1998 | 21.6 |
| | DGR | DETACHED GARAGE | 3 | 0 | 1998 | 864.0 |
| | UTY | STORAGE/UTILITY | 3 | 0 | 1998 | 136.0 |
Sketch
Property Image
Land
| 1 | 35 | AC (10.00-30.99) | 0.0000 | 0.00 | 0.00 | 0.00 | 1.00 | $400,000 | $0 |
Roll Value History
| 2026 | N/A | N/A | N/A | N/A | N/A |
| 2025 | $305,363 | $400,000 | $0 | $705,363 | $705,363 |
| 2024 | $309,121 | $360,000 | $0 | $669,121 | $669,121 |
| 2023 | $312,879 | $360,000 | $0 | $672,879 | $672,879 |
| 2022 | $286,722 | $350,000 | $0 | $636,722 | $636,722 |
| 2021 | $252,286 | $250,000 | $0 | $502,286 | $502,286 |
| 2020 | $223,700 | $250,000 | $0 | $473,700 | $473,700 |
| 2019 | $167,127 | $300,000 | $0 | $467,127 | $467,127 |
| 2018 | $167,629 | $245,000 | $0 | $412,629 | $412,629 |
| 2017 | $168,633 | $200,000 | $0 | $368,633 | $368,633 |
| 2016 | $170,640 | $200,000 | $0 | $370,640 | $370,640 |
| 2015 | $172,648 | $200,000 | $0 | $372,648 | $372,648 |
| 2014 | $187,738 | $150,000 | $0 | $337,738 | $337,738 |
| 2013 | $189,606 | $150,000 | $0 | $339,606 | $339,606 |
| 2012 | $191,473 | $150,000 | $0 | $341,473 | $341,473 |
| 2011 | $193,341 | $150,000 | $0 | $343,341 | $343,341 |
| 2010 | $200,014 | $150,000 | $0 | $350,014 | $350,014 |
| 2009 | $207,881 | $220,000 | $0 | $427,881 | $427,881 |
| 2008 | $207,923 | $203,000 | $0 | $410,923 | $410,923 |
| 2007 | $210,762 | $203,000 | $0 | $413,762 | $413,762 |
Deed and Sales History
| 1 | 08/16/2013 | WD | Warranty Deed | HESTON, RANDOLPH M | KANNING, JAMES L | | | $405,000.00 | 12481 | 4346732 |
| 2 | 06/05/1998 | 5 | DNU - Marriage License/Name Change | HESTON, RANDOLPH M | HESTON, TIFFANY M E | | | $0.00 | 67882 | 0 |
| 3 | 04/21/1998 | QCD | Quit Claim Deed | IZETT, TIFFANY M | HESTON, RANDOLPH M | | | $0.00 | 81473 | 98008003 |
| 4 | 12/01/1996 | DECREE | Divorce Decree/Legal Separation | IZETT, BRADLEY S | IZETT, TIFFANY M | | | $0.00 | 67181 | 0 |
| 5 | 01/01/1990 | WD | Warranty Deed | Unknown | IZETT, BRADLEY S | | | $47,000.00 | 94 | 90000255 |
| 6 | 04/01/1982 | EXECUTORD | Executor Deed | Unknown | SCHUMACHER, LLOYD C | | | $32,500.00 | 20971 | 395627 |
| 7 | 01/01/1900 | OTHER | Other - Misc. Documents | Unknown | BRYANT, HOWARD W | | | $0.00 | 62879 | 0 |
Payout Agreement
| No payout information available.. |