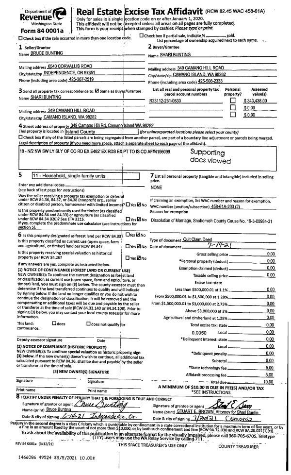
Property
Account |
| Property ID: | 121308 | Abbreviated Legal Description: | 106 - IN NE SE: BG SECR NE SE N460' TPB W155' N180' E155' S TPB EX E30' TGW EZ |
| Geographic ID: | R32902-186-5410 | Agent Code: | |
| Type: | Real | | |
| Tax Area: | 710 - APPRAISER-S Whid Schl Dist, outside Langley, improved & 1 acre or less | Land Use Code | 11 |
| Open Space: | N | DFL | N |
| Historic Property: | N | Remodel Property: | N |
| Multi-Family Redevelopment: | N | | |
| Township: | 29 | Section: | 02 |
| Range: | R3 |
Location |
| Address: | 5050 VIEW RD LANGLEY, WA 98260 | Mapsco: | |
| Neighborhood: | Cycle 4 | Map ID: | 719 |
| Neighborhood CD: | 4 |
Owner |
| Name: | DEROO, JANET | Owner ID: | 275967 |
| Mailing Address: | PO BOX 163 CLINTON, WA 98236 | % Ownership: | 100.0000000000% |
| | | Exemptions: | |
Taxes and Assessment Details
Values
| (+) Improvement Homesite Value: | + | $0 | |
| (+) Improvement Non-Homesite Value: | + | $482,854 | |
| (+) Land Homesite Value: | + | $0 | |
| (+) Land Non-Homesite Value: | + | $260,000 | |
| (+) Curr Use (HS): | + | $0 | $0 |
| (+) Curr Use (NHS): | + | $0 | $0 |
| | | -------------------------- | |
| (=) Market Value: | = | $742,854 | |
| (–) Productivity Loss: | – | $0 | |
| | | -------------------------- | |
| (=) Subtotal: | = | $742,854 | |
| (+) Senior Appraised Value: | + | $0 | |
| (+) Non-Senior Appraised Value: | + | $742,854 | |
| | | -------------------------- | |
| (=) Total Appraised Value: | = | $742,854 | |
| (–) Senior Exemption Loss: | – | $0 | |
| (–) Exemption Loss: | – | $0 | |
| | | -------------------------- | |
| (=) Taxable Value: | = | $742,854 | |
Taxing Jurisdiction
| Owner: | DEROO, JANET | | |
| % Ownership: | 100.0000000000% | | |
| Total Value: | $742,854 | | |
| Tax Area: | 710 - APPRAISER-S Whid Schl Dist, outside Langley, improved & 1 acre or less |
| CF | Conservation Futures | 0.0316035091 | $742,854 | $742,854 | $23.48 | | |
| FIRE3 | Fire & Rescue Dist #3 S Whidbey GEN | 1.2004855531 | $742,854 | $742,854 | $891.79 | | |
| HOBOND | Hospital BOND | 0.1910887512 | $742,854 | $742,854 | $141.95 | | |
| HOGEN | Hospital GEN | 0.3902502903 | $742,854 | $742,854 | $289.90 | | |
| CE | County Current Expense | 0.3708482477 | $742,854 | $742,854 | $275.49 | | |
| CR | County Roads | 0.4584763726 | $742,854 | $742,854 | $340.58 | | |
| ISLANDEMS | Hospital GEN (EMS) | 0.5000000000 | $742,854 | $742,854 | $371.43 | | |
| LIB | Library Sno-Isle GEN | 0.3153421757 | $742,854 | $742,854 | $234.25 | | |
| PORTWHID | Port of S Whidbey GEN | 0.1094540357 | $742,854 | $742,854 | $81.31 | | |
| SCH206BOND | School 206 BOND | 0.3161759235 | $742,854 | $742,854 | $234.87 | | |
| SCH206MO | School 206 Enrichment | 0.4547169547 | $742,854 | $742,854 | $337.79 | | |
| ST | State School | 1.3035497053 | $742,854 | $742,854 | $968.35 | | |
| ST2 | State School Part 2 | 0.8169543533 | $742,854 | $742,854 | $606.88 | | |
| SWHIDPRBD | P & R S Whidbey BOND | 0.0152817568 | $742,854 | $742,854 | $11.35 | | |
| SWHIDPRBD2 | P & R S Whidbey BOND2 | 0.0138911264 | $742,854 | $742,854 | $10.32 | | |
| SWHIDPRMT | P & R S Whidbey GEN | 0.2053334452 | $742,854 | $742,854 | $152.53 | | |
| | Total Tax Rate: | 6.6934522006 | | | | | |
| | | | | Taxes w/Current Exemptions: | $4,972.27 | | |
| | | | | Taxes w/o Exemptions: | $4,972.27 | | |
Improvement / Building
| Improvement #1: | RESIDENTIAL | State Code: | Y | 2802.0 sqft | Value: | $482,854 |
| Bathrooms: | 4 | Bedrooms: | 3 | | Ceiling: | DRYWALL PAINTED | Cooling: | HEAT PUMP/CONV/V | | Exterior Wall/Cover: | WOOD SIDING | Floor Covering: | CARPET/VINYL 20-80 | | Floor Structure: | SLAB ABOVE GRADE | Foundation: | SLAB | | Interior Finish: | DRYWALL PAINT | Plumbing Fixture Cnt: | 17 | | Roof Slope: | 6" IN 12" | Roof Structure/Cover: | CJ ALUMINIUM HEAVY |
|
| | Type | Description | Class CD | Sub Class CD | Year Built | Area |
| | BAS | BASE/MAIN FLOOR | 4 | 0 | 1983 | 2234.0 |
| | AGR | ATTACHED GARAGE | 4 | 0 | 1983 | 480.0 |
| | UPS | UPPER STORY | 4 | 0 | 1983 | 568.0 |
| | OWP | OPEN WOOD PORCH W/STEPS | 4 | 0 | 1983 | 696.6 |
| | OWP | OPEN WOOD PORCH W/STEPS | 4 | 0 | 1983 | 60.0 |
| | OWC | OPEN WOOD PORCH W/STEPS/ROOF/C | 4 | 0 | 1983 | 82.0 |
| | OP4 | OPEN PORCH W/CEILING-ROOF | 4 | 0 | 1983 | 24.0 |
Sketch
Property Image
Land
| 1 | 16 | AC (00.51-01.00) | 0.0000 | 0.00 | 0.00 | 0.00 | 1.00 | $260,000 | $0 |
Roll Value History
| 2026 | N/A | N/A | N/A | N/A | N/A |
| 2025 | $482,854 | $260,000 | $0 | $742,854 | $742,854 |
| 2024 | $489,272 | $250,000 | $0 | $739,272 | $739,272 |
| 2023 | $495,687 | $240,000 | $0 | $735,687 | $735,687 |
| 2022 | $454,653 | $240,000 | $0 | $694,653 | $694,653 |
| 2021 | $400,395 | $160,000 | $0 | $560,395 | $560,395 |
| 2020 | $397,668 | $135,000 | $0 | $532,668 | $532,668 |
| 2019 | $301,363 | $180,000 | $0 | $481,363 | $481,363 |
| 2018 | $302,291 | $150,000 | $0 | $452,291 | $452,291 |
| 2017 | $304,145 | $140,000 | $0 | $444,145 | $444,145 |
| 2016 | $286,841 | $120,000 | $0 | $406,841 | $406,841 |
| 2015 | $290,382 | $139,500 | $0 | $429,882 | $429,882 |
| 2014 | $262,670 | $139,500 | $0 | $402,170 | $402,170 |
| 2013 | $266,173 | $139,500 | $0 | $405,673 | $405,673 |
| 2012 | $269,670 | $139,500 | $0 | $409,170 | $409,170 |
| 2011 | $273,173 | $155,000 | $0 | $428,173 | $428,173 |
| 2010 | $280,945 | $155,000 | $0 | $435,945 | $435,945 |
| 2009 | $292,997 | $160,000 | $0 | $452,997 | $452,997 |
| 2008 | $295,396 | $159,500 | $0 | $454,896 | $454,896 |
| 2007 | $298,991 | $159,500 | $0 | $458,491 | $458,491 |
Deed and Sales History
| 1 | 07/06/2016 | WD | Warranty Deed | JAMES, JAMES S & ANDREA L | DEROO, JANET | | | $500,000.00 | 25131 | 4402663 |
| 2 | 09/01/1993 | WD | Warranty Deed | MOCK, JAMES E | JAMES, JAMES S | | | $220,000.00 | 33626 | 93018856 |
| 3 | 01/01/1990 | QCD | Quit Claim Deed | MOCK, JAMES E | MOCK, JAMES E | | | $0.00 | 75 | 90000207 |
| 4 | 01/01/1990 | QCD | Quit Claim Deed | MOCK, JAMES E | MOCK, JAMES E | | | $0.00 | 74 | 90000206 |
| 5 | 07/01/1985 | WD | Warranty Deed | NERISON, SUSAN L | MOCK, JAMES E | | | $78,000.00 | 52061 | 85008117 |
| 6 | 02/01/1984 | QCD | Quit Claim Deed | NERISON, SUSAN L | NERISON, SUSAN L | | | $0.00 | 40469 | 421357 |
| 7 | 07/01/1981 | CD | DNU - Correction Deed | BARNES, LERLENE | NERISON, SUSAN L | | | $1.00 | 12148 | 385346 |
| 8 | 04/01/1981 | TRUSTEED | Trustee's Deed | DUNLAP, LESTER F | BARNES, LERLENE | | | $10,000.00 | 11262 | 382277 |
| 9 | 01/01/1900 | OTHER | Other - Misc. Documents | Unknown | DUNLAP, LESTER F | | | $0.00 | 0 | 0 |
Payout Agreement
| No payout information available.. |