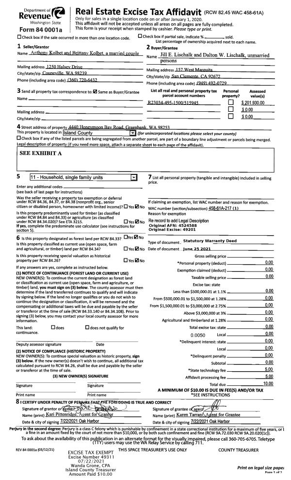
Property
Account |
| Property ID: | 121433 | Abbreviated Legal Description: | 67 - IN SE NE DESC: BG NWCR SCHULTZ TR AF#124950 S800' TPB S300' M/L E130' N300' M/L W130' TPB TGW EAS |
| Geographic ID: | R32902-274-5040 | Agent Code: | |
| Type: | Real | | |
| Tax Area: | 710 - APPRAISER-S Whid Schl Dist, outside Langley, improved & 1 acre or less | Land Use Code | 11 |
| Open Space: | N | DFL | N |
| Historic Property: | N | Remodel Property: | N |
| Multi-Family Redevelopment: | N | | |
| Township: | 29 | Section: | 02 |
| Range: | R3 |
Location |
| Address: | 4970 BLUE LADY LN LANGLEY, WA 98260 | Mapsco: | |
| Neighborhood: | Cycle 4 | Map ID: | 722 |
| Neighborhood CD: | 4 |
Owner |
| Name: | TRENOR, MELVYN | Owner ID: | 262624 |
| Mailing Address: | DEBORAH J NEDELMAN 4970 BLUE LADY LN LANGLEY, WA 98260-9534 | % Ownership: | 100.0000000000% |
| | | Exemptions: | |
Taxes and Assessment Details
Values
| (+) Improvement Homesite Value: | + | $0 | |
| (+) Improvement Non-Homesite Value: | + | $605,297 | |
| (+) Land Homesite Value: | + | $0 | |
| (+) Land Non-Homesite Value: | + | $260,000 | |
| (+) Curr Use (HS): | + | $0 | $0 |
| (+) Curr Use (NHS): | + | $0 | $0 |
| | | -------------------------- | |
| (=) Market Value: | = | $865,297 | |
| (–) Productivity Loss: | – | $0 | |
| | | -------------------------- | |
| (=) Subtotal: | = | $865,297 | |
| (+) Senior Appraised Value: | + | $0 | |
| (+) Non-Senior Appraised Value: | + | $865,297 | |
| | | -------------------------- | |
| (=) Total Appraised Value: | = | $865,297 | |
| (–) Senior Exemption Loss: | – | $0 | |
| (–) Exemption Loss: | – | $0 | |
| | | -------------------------- | |
| (=) Taxable Value: | = | $865,297 | |
Taxing Jurisdiction
| Owner: | TRENOR, MELVYN | | |
| % Ownership: | 100.0000000000% | | |
| Total Value: | $865,297 | | |
| Tax Area: | 710 - APPRAISER-S Whid Schl Dist, outside Langley, improved & 1 acre or less |
| CF | Conservation Futures | 0.0316035091 | $865,297 | $865,297 | $27.35 | | |
| FIRE3 | Fire & Rescue Dist #3 S Whidbey GEN | 1.2004855531 | $865,297 | $865,297 | $1,038.78 | | |
| HOBOND | Hospital BOND | 0.1910887512 | $865,297 | $865,297 | $165.35 | | |
| HOGEN | Hospital GEN | 0.3902502903 | $865,297 | $865,297 | $337.68 | | |
| CE | County Current Expense | 0.3708482477 | $865,297 | $865,297 | $320.89 | | |
| CR | County Roads | 0.4584763726 | $865,297 | $865,297 | $396.72 | | |
| ISLANDEMS | Hospital GEN (EMS) | 0.5000000000 | $865,297 | $865,297 | $432.65 | | |
| LIB | Library Sno-Isle GEN | 0.3153421757 | $865,297 | $865,297 | $272.86 | | |
| PORTWHID | Port of S Whidbey GEN | 0.1094540357 | $865,297 | $865,297 | $94.71 | | |
| SCH206BOND | School 206 BOND | 0.3161759235 | $865,297 | $865,297 | $273.59 | | |
| SCH206MO | School 206 Enrichment | 0.4547169547 | $865,297 | $865,297 | $393.47 | | |
| ST | State School | 1.3035497053 | $865,297 | $865,297 | $1,127.96 | | |
| ST2 | State School Part 2 | 0.8169543533 | $865,297 | $865,297 | $706.91 | | |
| SWHIDPRBD | P & R S Whidbey BOND | 0.0152817568 | $865,297 | $865,297 | $13.22 | | |
| SWHIDPRBD2 | P & R S Whidbey BOND2 | 0.0138911264 | $865,297 | $865,297 | $12.02 | | |
| SWHIDPRMT | P & R S Whidbey GEN | 0.2053334452 | $865,297 | $865,297 | $177.67 | | |
| | Total Tax Rate: | 6.6934522006 | | | | | |
| | | | | Taxes w/Current Exemptions: | $5,791.83 | | |
| | | | | Taxes w/o Exemptions: | $5,791.83 | | |
Improvement / Building
| Improvement #1: | RESIDENTIAL | State Code: | Y | 2332.0 sqft | Value: | $605,297 |
| Bathrooms: | 3 | Bedrooms: | 3 | | Ceiling: | DRYWALL PAINTED | Cooling: | HEAT PUMP/CONV/V | | Exterior Wall/Cover: | WOOD SIDING | Floor Covering: | HARDWOOD/CARP 80-20 | | Floor Structure: | WOOD W/SUBFLOOR | Foundation: | CONCRETE | | Interior Finish: | DRYWALL PAINT | Plumbing Fixture Cnt: | 14 | | Roof Slope: | 8" IN 12" | Roof Structure/Cover: | CJ ASPHALT |
|
| | Type | Description | Class CD | Sub Class CD | Year Built | Area |
| | BAS | BASE/MAIN FLOOR | 4 | 0 | 1999 | 1936.0 |
| | UB8 | BASEMENT UNFINISHED 8" | 4 | 0 | 1999 | 455.0 |
| | AGR | ATTACHED GARAGE | 4 | 0 | 1999 | 420.0 |
| | BAW | BALCONY WOOD RAIL | 4 | 0 | 1999 | 36.0 |
| | OWP | OPEN WOOD PORCH W/STEPS | 4 | 0 | 1999 | 622.5 |
| | OWC | OPEN WOOD PORCH W/STEPS/ROOF/C | 4 | 0 | 1999 | 128.0 |
| | UPH | HALF STORY | 4 | 0 | 1999 | 396.0 |
Sketch
Property Image
Land
| 1 | 16 | AC (00.51-01.00) | 0.0000 | 0.00 | 0.00 | 0.00 | 1.00 | $260,000 | $0 |
Roll Value History
| 2026 | N/A | N/A | N/A | N/A | N/A |
| 2025 | $605,297 | $260,000 | $0 | $865,297 | $865,297 |
| 2024 | $610,383 | $250,000 | $0 | $860,383 | $860,383 |
| 2023 | $615,809 | $240,000 | $0 | $855,809 | $855,809 |
| 2022 | $561,926 | $240,000 | $0 | $801,926 | $801,926 |
| 2021 | $486,986 | $160,000 | $0 | $646,986 | $646,986 |
| 2020 | $424,103 | $220,000 | $0 | $644,103 | $644,103 |
| 2019 | $314,520 | $260,000 | $0 | $574,520 | $574,520 |
| 2018 | $315,383 | $150,000 | $0 | $465,383 | $465,383 |
| 2017 | $317,106 | $140,000 | $0 | $457,106 | $457,106 |
| 2016 | $320,553 | $120,000 | $0 | $440,553 | $440,553 |
| 2015 | $324,000 | $139,500 | $0 | $463,500 | $463,500 |
| 2014 | $293,675 | $139,500 | $0 | $433,175 | $433,175 |
| 2013 | $308,874 | $139,500 | $0 | $448,374 | $448,374 |
| 2012 | $242,226 | $139,500 | $0 | $381,726 | $381,726 |
| 2011 | $244,984 | $155,000 | $0 | $399,984 | $399,984 |
| 2010 | $255,966 | $155,000 | $0 | $410,966 | $410,966 |
| 2009 | $266,890 | $160,000 | $0 | $426,890 | $426,890 |
| 2008 | $267,075 | $159,500 | $0 | $426,575 | $426,575 |
| 2007 | $267,392 | $159,500 | $0 | $426,892 | $426,892 |
Deed and Sales History
| 1 | 06/13/2013 | WD | Warranty Deed | OWEN, JOHN L | TRENOR, MELVYN | | | $525,000.00 | 11679 | 4342172 |
| 2 | 09/23/1999 | WD | Warranty Deed | CASA GROUP CORP, | OWEN, JOHN L | | | $273,000.00 | 93962 | 99021944 |
| 3 | 10/09/1998 | WD | Warranty Deed | LEIDHOLM, RALPH | CASA GROUP CORP, | | | $70,000.00 | 84054 | 9821783 |
| 4 | 03/01/1988 | QCD | Quit Claim Deed | LEIDHOLM, RALPH & | LEIDHOLM, RALPH | | | $0.00 | 80687 | 88002754 |
| 5 | 01/01/1900 | OTHER | Other - Misc. Documents | Unknown | LEIDHOLM, RALPH & | | | $0.00 | 0 | 0 |
Payout Agreement
| No payout information available.. |