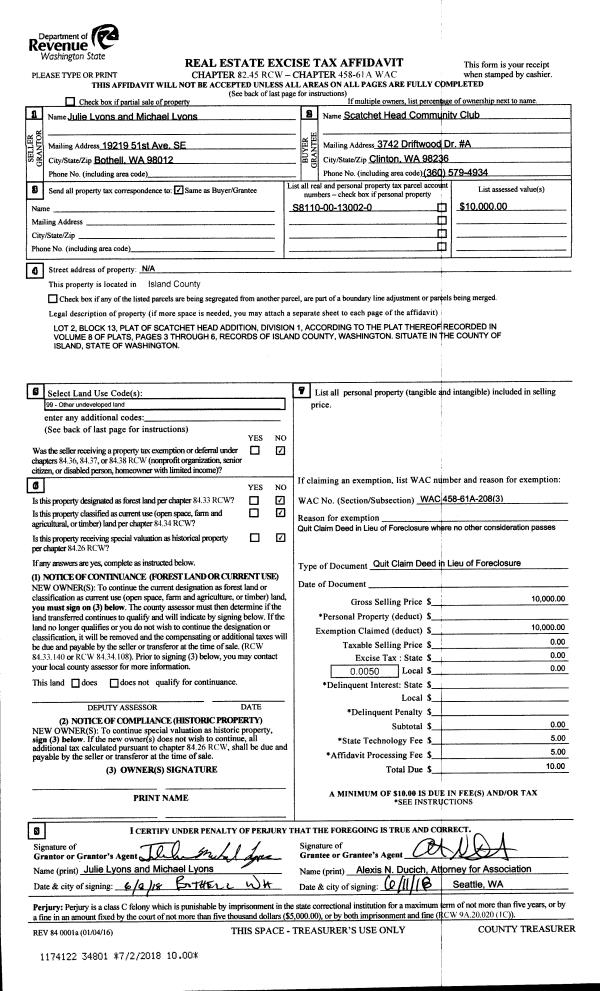
Property
Account |
| Property ID: | 121683 | Abbreviated Legal Description: | 1 - W77.22' OF: BG INTER CAMANO AVE & EDGECLIFF DR S87*E892.83' TO IP S87*E513 .03' S5*E814.38' TPB S5*E 115' N87*E149.22' N5*W115' S87*W149.22' TPB |
| Geographic ID: | R32902-322-0670 | Agent Code: | |
| Type: | Real | | |
| Tax Area: | 700 - APPRAISER-S Whid Schl Dist, in town of Langley | Land Use Code | 11 |
| Open Space: | N | DFL | N |
| Historic Property: | N | Remodel Property: | N |
| Multi-Family Redevelopment: | N | | |
| Township: | 29 | Section: | 02 |
| Range: | R3 |
Location |
| Address: | 836 DECKER AVE LANGLEY, WA 98260 | Mapsco: | |
| Neighborhood: | City of Langley | Map ID: | 721 |
| Neighborhood CD: | 04-L |
Owner |
| Name: | FOXWORTHY, RICK A | Owner ID: | 96330 |
| Mailing Address: | DIANE L FOXWORTHY 1192 CEDAR CIRCLE LANGLEY, WA 98260-9219 | % Ownership: | 100.0000000000% |
| | | Exemptions: | |
Taxes and Assessment Details
Values
| (+) Improvement Homesite Value: | + | $0 | |
| (+) Improvement Non-Homesite Value: | + | $155,245 | |
| (+) Land Homesite Value: | + | $0 | |
| (+) Land Non-Homesite Value: | + | $270,000 | |
| (+) Curr Use (HS): | + | $0 | $0 |
| (+) Curr Use (NHS): | + | $0 | $0 |
| | | -------------------------- | |
| (=) Market Value: | = | $425,245 | |
| (–) Productivity Loss: | – | $0 | |
| | | -------------------------- | |
| (=) Subtotal: | = | $425,245 | |
| (+) Senior Appraised Value: | + | $0 | |
| (+) Non-Senior Appraised Value: | + | $425,245 | |
| | | -------------------------- | |
| (=) Total Appraised Value: | = | $425,245 | |
| (–) Senior Exemption Loss: | – | $0 | |
| (–) Exemption Loss: | – | $0 | |
| | | -------------------------- | |
| (=) Taxable Value: | = | $425,245 | |
Taxing Jurisdiction
| Owner: | FOXWORTHY, RICK A | | |
| % Ownership: | 100.0000000000% | | |
| Total Value: | $425,245 | | |
| Tax Area: | 700 - APPRAISER-S Whid Schl Dist, in town of Langley |
| CF | Conservation Futures | 0.0316035091 | $425,245 | $425,245 | $13.44 | | |
| LANG | City of Langley | 1.0093520762 | $425,245 | $425,245 | $429.22 | | |
| LANGBOND | City of Langley BOND | 1.0326110892 | $425,245 | $425,245 | $439.11 | | |
| FIRE3 | Fire & Rescue Dist #3 S Whidbey GEN | 1.2004855531 | $425,245 | $425,245 | $510.50 | | |
| HOBOND | Hospital BOND | 0.1910887512 | $425,245 | $425,245 | $81.26 | | |
| HOGEN | Hospital GEN | 0.3902502903 | $425,245 | $425,245 | $165.95 | | |
| CE | County Current Expense | 0.3708482477 | $425,245 | $425,245 | $157.70 | | |
| ISLANDEMS | Hospital GEN (EMS) | 0.5000000000 | $425,245 | $425,245 | $212.62 | | |
| LIB | Library Sno-Isle GEN | 0.3153421757 | $425,245 | $425,245 | $134.10 | | |
| PORTWHID | Port of S Whidbey GEN | 0.1094540357 | $425,245 | $425,245 | $46.54 | | |
| SCH206BOND | School 206 BOND | 0.3161759235 | $425,245 | $425,245 | $134.45 | | |
| SCH206MO | School 206 Enrichment | 0.4547169547 | $425,245 | $425,245 | $193.37 | | |
| ST | State School | 1.3035497053 | $425,245 | $425,245 | $554.33 | | |
| ST2 | State School Part 2 | 0.8169543533 | $425,245 | $425,245 | $347.41 | | |
| SWHIDPRBD | P & R S Whidbey BOND | 0.0152817568 | $425,245 | $425,245 | $6.50 | | |
| SWHIDPRBD2 | P & R S Whidbey BOND2 | 0.0138911264 | $425,245 | $425,245 | $5.91 | | |
| SWHIDPRMT | P & R S Whidbey GEN | 0.2053334452 | $425,245 | $425,245 | $87.32 | | |
| | Total Tax Rate: | 8.2769389934 | | | | | |
| | | | | Taxes w/Current Exemptions: | $3,519.73 | | |
| | | | | Taxes w/o Exemptions: | $3,519.73 | | |
Improvement / Building
| Improvement #1: | RESIDENTIAL | State Code: | Y | 918.0 sqft | Value: | $155,245 |
| Bathrooms: | 1 | Bedrooms: | 2 | | Ceiling: | DRYWALL PAINTED | Exterior Wall/Cover: | WOOD SIDING | | Floor Covering: | CARPET/VINYL 80-20 | Floor Structure: | WOOD W/SUBFLOOR | | Foundation: | CONCRETE | Heating: | BASEBOARD ELECTRIC | | Interior Finish: | DRYWALL PAINT | Plumbing Fixture Cnt: | 6 | | Roof Slope: | 4" IN 12" | Roof Structure/Cover: | CJ ASPHALT |
|
| | Type | Description | Class CD | Sub Class CD | Year Built | Area |
| | BAS | BASE/MAIN FLOOR | 3 | 0 | 1976 | 918.0 |
| | AGR | ATTACHED GARAGE | 3 | 0 | 1976 | 288.0 |
Sketch
Property Image
Land
| 1 | 14 | SQ (08001-12000) | 0.0000 | 0.00 | 0.00 | 0.00 | 1.00 | $270,000 | $0 |
Roll Value History
| 2026 | N/A | N/A | N/A | N/A | N/A |
| 2025 | $155,245 | $270,000 | $0 | $425,245 | $425,245 |
| 2024 | $160,549 | $270,000 | $0 | $430,549 | $430,549 |
| 2023 | $162,602 | $270,000 | $0 | $432,602 | $432,602 |
| 2022 | $149,095 | $210,000 | $0 | $359,095 | $359,095 |
| 2021 | $131,260 | $180,000 | $0 | $311,260 | $311,260 |
| 2020 | $121,631 | $180,000 | $0 | $301,631 | $301,631 |
| 2019 | $85,922 | $200,000 | $0 | $285,922 | $285,922 |
| 2018 | $86,193 | $160,000 | $0 | $246,193 | $246,193 |
| 2017 | $86,736 | $160,000 | $0 | $246,736 | $246,736 |
| 2016 | $87,819 | $80,000 | $0 | $167,819 | $167,819 |
| 2015 | $88,904 | $80,000 | $0 | $168,904 | $168,904 |
| 2014 | $72,906 | $139,500 | $0 | $212,406 | $212,406 |
| 2013 | $73,989 | $139,500 | $0 | $213,489 | $213,489 |
| 2012 | $75,074 | $139,500 | $0 | $214,574 | $214,574 |
| 2011 | $76,158 | $155,000 | $0 | $231,158 | $231,158 |
| 2010 | $79,258 | $155,000 | $0 | $234,258 | $234,258 |
| 2009 | $82,801 | $100,000 | $0 | $182,801 | $182,801 |
| 2008 | $83,580 | $188,500 | $0 | $272,080 | $272,080 |
| 2007 | $84,722 | $188,500 | $0 | $273,222 | $273,222 |
Deed and Sales History
| 1 | 11/27/2018 | WD | Warranty Deed | OLLIS, TERESA M | FOXWORTHY, RICK A | | | $300,000.00 | 36814 | 4455726 |
| 2 | 10/01/1997 | WD | Warranty Deed | LIESEKE, ERNEST H | OLLIS, TERESA M | | | $25,000.00 | 73434 | 97016198 |
| 3 | 08/01/1995 | QCD | Quit Claim Deed | LIESEKE, ERNEST H | LIESEKE, ERNEST H | | | $0.00 | 53839 | 95017596 |
| 4 | 07/01/1990 | WD | Warranty Deed | LIESEKE, ETHEL A | LIESEKE, ERNEST H | | | $56,000.00 | 4427 | 90014600 |
| 5 | 01/01/1900 | OTHER | Other - Misc. Documents | Unknown | LIESEKE, ETHEL A | | | $0.00 | 0 | 0 |
Payout Agreement
| No payout information available.. |