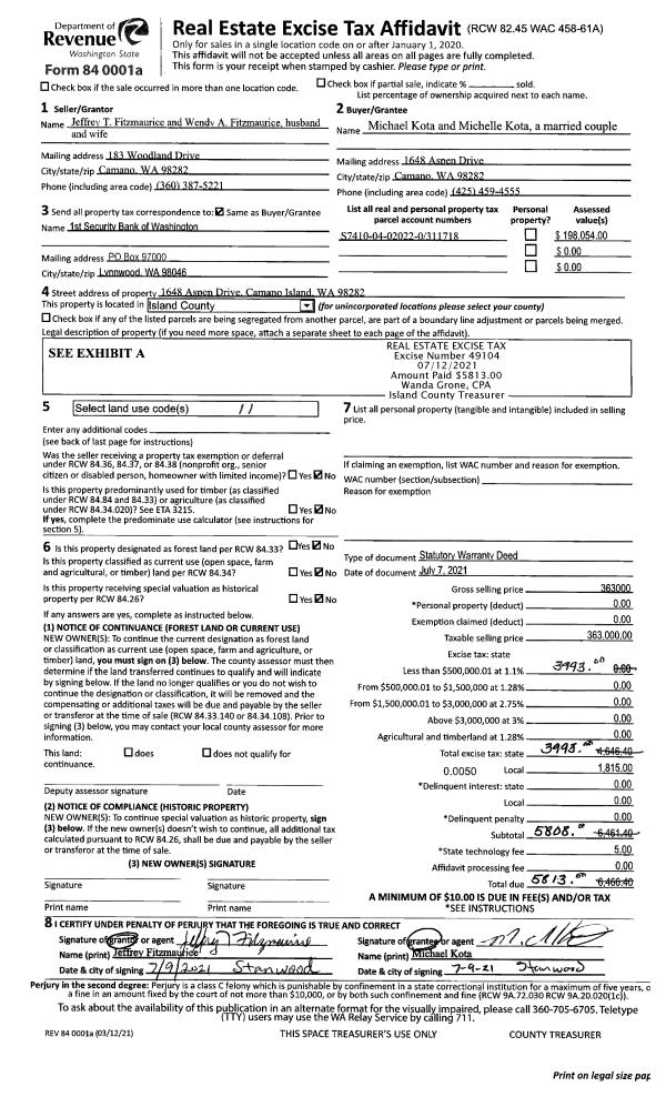
Property
Account |
| Property ID: | 121772 | Abbreviated Legal Description: | 66 - BG PIPE STAKE ON EDGE OF BLUFF ON WLN HARMON TR S757' W108.5' TPB W110' N TO EDGE OF BLUFF SELY TO WLN TR DESC 39D325 S ALG WLN TPB EX RDS |
| Geographic ID: | R32902-331-2520 | Agent Code: | |
| Type: | Real | | |
| Tax Area: | 700 - APPRAISER-S Whid Schl Dist, in town of Langley | Land Use Code | 11 |
| Open Space: | N | DFL | N |
| Historic Property: | N | Remodel Property: | N |
| Multi-Family Redevelopment: | N | | |
| Township: | 29 | Section: | 02 |
| Range: | R3 |
Location |
| Address: | 946 EDGECLIFF DR LANGLEY, WA 98260 | Mapsco: | |
| Neighborhood: | City of Langley | Map ID: | 721 |
| Neighborhood CD: | 04-L |
Owner |
| Name: | JOHNSON, CAROLYN S | Owner ID: | 297859 |
| Mailing Address: | PATRICK CHESTNUT 2820 122ND PL NE BELLEVUE, WA 98005 | % Ownership: | 100.0000000000% |
| | | Exemptions: | |
Taxes and Assessment Details
Values
| (+) Improvement Homesite Value: | + | $0 | |
| (+) Improvement Non-Homesite Value: | + | $385,481 | |
| (+) Land Homesite Value: | + | $0 | |
| (+) Land Non-Homesite Value: | + | $650,000 | |
| (+) Curr Use (HS): | + | $0 | $0 |
| (+) Curr Use (NHS): | + | $0 | $0 |
| | | -------------------------- | |
| (=) Market Value: | = | $1,035,481 | |
| (–) Productivity Loss: | – | $0 | |
| | | -------------------------- | |
| (=) Subtotal: | = | $1,035,481 | |
| (+) Senior Appraised Value: | + | $0 | |
| (+) Non-Senior Appraised Value: | + | $1,035,481 | |
| | | -------------------------- | |
| (=) Total Appraised Value: | = | $1,035,481 | |
| (–) Senior Exemption Loss: | – | $0 | |
| (–) Exemption Loss: | – | $0 | |
| | | -------------------------- | |
| (=) Taxable Value: | = | $1,035,481 | |
Taxing Jurisdiction
| Owner: | JOHNSON, CAROLYN S | | |
| % Ownership: | 100.0000000000% | | |
| Total Value: | $1,035,481 | | |
| Tax Area: | 700 - APPRAISER-S Whid Schl Dist, in town of Langley |
| CF | Conservation Futures | 0.0316035091 | $1,035,481 | $1,035,481 | $32.72 | | |
| LANG | City of Langley | 1.0093520762 | $1,035,481 | $1,035,481 | $1,045.16 | | |
| LANGBOND | City of Langley BOND | 1.0326110892 | $1,035,481 | $1,035,481 | $1,069.25 | | |
| FIRE3 | Fire & Rescue Dist #3 S Whidbey GEN | 1.2004855531 | $1,035,481 | $1,035,481 | $1,243.08 | | |
| HOBOND | Hospital BOND | 0.1910887512 | $1,035,481 | $1,035,481 | $197.87 | | |
| HOGEN | Hospital GEN | 0.3902502903 | $1,035,481 | $1,035,481 | $404.10 | | |
| CE | County Current Expense | 0.3708482477 | $1,035,481 | $1,035,481 | $384.01 | | |
| ISLANDEMS | Hospital GEN (EMS) | 0.5000000000 | $1,035,481 | $1,035,481 | $517.74 | | |
| LIB | Library Sno-Isle GEN | 0.3153421757 | $1,035,481 | $1,035,481 | $326.53 | | |
| PORTWHID | Port of S Whidbey GEN | 0.1094540357 | $1,035,481 | $1,035,481 | $113.34 | | |
| SCH206BOND | School 206 BOND | 0.3161759235 | $1,035,481 | $1,035,481 | $327.39 | | |
| SCH206MO | School 206 Enrichment | 0.4547169547 | $1,035,481 | $1,035,481 | $470.85 | | |
| ST | State School | 1.3035497053 | $1,035,481 | $1,035,481 | $1,349.80 | | |
| ST2 | State School Part 2 | 0.8169543533 | $1,035,481 | $1,035,481 | $845.94 | | |
| SWHIDPRBD | P & R S Whidbey BOND | 0.0152817568 | $1,035,481 | $1,035,481 | $15.82 | | |
| SWHIDPRBD2 | P & R S Whidbey BOND2 | 0.0138911264 | $1,035,481 | $1,035,481 | $14.38 | | |
| SWHIDPRMT | P & R S Whidbey GEN | 0.2053334452 | $1,035,481 | $1,035,481 | $212.62 | | |
| | Total Tax Rate: | 8.2769389934 | | | | | |
| | | | | Taxes w/Current Exemptions: | $8,570.60 | | |
| | | | | Taxes w/o Exemptions: | $8,570.60 | | |
Improvement / Building
| Improvement #1: | RESIDENTIAL | State Code: | Y | 1672.0 sqft | Value: | $385,481 |
| Bathrooms: | 2.5 | Bedrooms: | 3 | | Ceiling: | DRYWALL PAINTED | Cooling: | HEAT PUMP/CONV/V | | Exterior Wall/Cover: | WOOD SIDING | Floor Covering: | VINYL/HARDWOOD 20-80 | | Floor Structure: | WOOD W/SUBFLOOR | Foundation: | CONCRETE | | Interior Finish: | DRYWALL PAINT | Plumbing Fixture Cnt: | 12 | | Roof Slope: | 8" IN 12" | Roof Structure/Cover: | CJ ASPHALT |
|
| | Type | Description | Class CD | Sub Class CD | Year Built | Area |
| | BAS | BASE/MAIN FLOOR | 4 | 0 | 1924 | 1672.0 |
| | OWP | OPEN WOOD PORCH W/STEPS | 4 | 0 | 1924 | 420.0 |
| | DGR | DETACHED GARAGE | 4 | 0 | 1924 | 560.0 |
| | oBAR | BARN | 4 | 0 | 1924 | 0.0 |
| | oUTI | UTILITY | 4 | 0 | 1924 | 0.0 |
| | oRPD | RP/DIRT | 4 | 0 | 1924 | 0.0 |
Sketch
Property Image
Land
| 1 | HB | HIGH BLUFF | 0.0000 | 0.00 | 110.00 | 0.00 | 1.00 | $650,000 | $0 |
Roll Value History
| 2026 | N/A | N/A | N/A | N/A | N/A |
| 2025 | $385,481 | $650,000 | $0 | $1,035,481 | $1,035,481 |
| 2024 | $390,507 | $650,000 | $0 | $1,040,507 | $1,040,507 |
| 2023 | $395,535 | $650,000 | $0 | $1,045,535 | $1,045,535 |
| 2022 | $248,179 | $700,000 | $0 | $948,179 | $948,179 |
| 2021 | $173,027 | $550,000 | $0 | $723,027 | $723,027 |
| 2020 | $169,175 | $550,000 | $0 | $719,175 | $719,175 |
| 2019 | $125,637 | $450,000 | $0 | $575,637 | $575,637 |
| 2018 | $126,121 | $450,000 | $0 | $576,121 | $202,038 |
| 2017 | $127,088 | $450,000 | $0 | $577,088 | $202,038 |
| 2016 | $129,022 | $450,000 | $0 | $579,022 | $202,038 |
| 2015 | $130,955 | $450,000 | $0 | $580,955 | $202,038 |
| 2014 | $89,548 | $450,000 | $0 | $539,548 | $202,038 |
| 2013 | $91,385 | $629,691 | $0 | $721,076 | $202,038 |
| 2012 | $93,222 | $629,691 | $0 | $722,913 | $213,300 |
| 2011 | $105,393 | $699,657 | $0 | $805,050 | $223,634 |
| 2010 | $122,390 | $699,657 | $0 | $822,047 | $225,388 |
| 2009 | $115,410 | $773,660 | $0 | $889,070 | $202,038 |
| 2008 | $115,479 | $773,660 | $0 | $889,139 | $202,038 |
| 2007 | $117,881 | $1,110,033 | $0 | $1,227,914 | $202,038 |
Deed and Sales History
| 1 | 01/05/2021 | WD | Warranty Deed | EAKIN, JAMES R | JOHNSON, CAROLYN S | | | $805,000.00 | 46695 | 4509140 |
|   | |
| 2 | 11/01/1975 | EXECUTORD | Executor Deed | LARSON, ARVID | EAKIN, JAMES R | | | $0.00 | 57395 | 290661 |
| 3 | 01/01/1900 | OTHER | Other - Misc. Documents | Unknown | LARSON, ARVID | | | $0.00 | 0 | 0 |
Payout Agreement
| No payout information available.. |