Property
Account |
| Property ID: | 121781 | Abbreviated Legal Description: | 15 - S90' OF BG INT CAM AV & EDGCLF DR S87*E1405.86' S5*E614.38' TPB S5*E200' N87*E149.22' N5*W200' S87* W TPB |
| Geographic ID: | R32902-332-0700 | Agent Code: | |
| Type: | Real | | |
| Tax Area: | 700 - APPRAISER-S Whid Schl Dist, in town of Langley | Land Use Code | 11 |
| Open Space: | N | DFL | N |
| Historic Property: | N | Remodel Property: | N |
| Multi-Family Redevelopment: | N | | |
| Township: | 29 | Section: | 02 |
| Range: | R3 |
Location |
| Address: | 830 DECKER AVE LANGLEY, WA 98260 | Mapsco: | |
| Neighborhood: | City of Langley | Map ID: | 721 |
| Neighborhood CD: | 04-L |
Owner |
| Name: | STEVENSON, DONNA P | Owner ID: | 292588 |
| Mailing Address: | PO BOX 246 LANGLEY, WA 98260 | % Ownership: | 100.0000000000% |
| | | Exemptions: | |
Taxes and Assessment Details
Values
| (+) Improvement Homesite Value: | + | $0 | |
| (+) Improvement Non-Homesite Value: | + | $255,010 | |
| (+) Land Homesite Value: | + | $0 | |
| (+) Land Non-Homesite Value: | + | $270,000 | |
| (+) Curr Use (HS): | + | $0 | $0 |
| (+) Curr Use (NHS): | + | $0 | $0 |
| | | -------------------------- | |
| (=) Market Value: | = | $525,010 | |
| (–) Productivity Loss: | – | $0 | |
| | | -------------------------- | |
| (=) Subtotal: | = | $525,010 | |
| (+) Senior Appraised Value: | + | $0 | |
| (+) Non-Senior Appraised Value: | + | $525,010 | |
| | | -------------------------- | |
| (=) Total Appraised Value: | = | $525,010 | |
| (–) Senior Exemption Loss: | – | $0 | |
| (–) Exemption Loss: | – | $0 | |
| | | -------------------------- | |
| (=) Taxable Value: | = | $525,010 | |
Taxing Jurisdiction
| Owner: | STEVENSON, DONNA P | | |
| % Ownership: | 100.0000000000% | | |
| Total Value: | $525,010 | | |
| Tax Area: | 700 - APPRAISER-S Whid Schl Dist, in town of Langley |
| CF | Conservation Futures | 0.0316035091 | $525,010 | $525,010 | $16.59 | | |
| LANG | City of Langley | 1.0093520762 | $525,010 | $525,010 | $529.92 | | |
| LANGBOND | City of Langley BOND | 1.0326110892 | $525,010 | $525,010 | $542.13 | | |
| FIRE3 | Fire & Rescue Dist #3 S Whidbey GEN | 1.2004855531 | $525,010 | $525,010 | $630.27 | | |
| HOBOND | Hospital BOND | 0.1910887512 | $525,010 | $525,010 | $100.32 | | |
| HOGEN | Hospital GEN | 0.3902502903 | $525,010 | $525,010 | $204.89 | | |
| CE | County Current Expense | 0.3708482477 | $525,010 | $525,010 | $194.70 | | |
| ISLANDEMS | Hospital GEN (EMS) | 0.5000000000 | $525,010 | $525,010 | $262.51 | | |
| LIB | Library Sno-Isle GEN | 0.3153421757 | $525,010 | $525,010 | $165.56 | | |
| PORTWHID | Port of S Whidbey GEN | 0.1094540357 | $525,010 | $525,010 | $57.46 | | |
| SCH206BOND | School 206 BOND | 0.3161759235 | $525,010 | $525,010 | $166.00 | | |
| SCH206MO | School 206 Enrichment | 0.4547169547 | $525,010 | $525,010 | $238.73 | | |
| ST | State School | 1.3035497053 | $525,010 | $525,010 | $684.38 | | |
| ST2 | State School Part 2 | 0.8169543533 | $525,010 | $525,010 | $428.91 | | |
| SWHIDPRBD | P & R S Whidbey BOND | 0.0152817568 | $525,010 | $525,010 | $8.02 | | |
| SWHIDPRBD2 | P & R S Whidbey BOND2 | 0.0138911264 | $525,010 | $525,010 | $7.29 | | |
| SWHIDPRMT | P & R S Whidbey GEN | 0.2053334452 | $525,010 | $525,010 | $107.80 | | |
| | Total Tax Rate: | 8.2769389934 | | | | | |
| | | | | Taxes w/Current Exemptions: | $4,345.48 | | |
| | | | | Taxes w/o Exemptions: | $4,345.48 | | |
Improvement / Building
| Improvement #1: | RESIDENTIAL | State Code: | Y | 504.0 sqft | Value: | $62,394 |
| Bathrooms: | 1 | Bedrooms: | 0 | | Ceiling: | ACOUSTIC FURRED | Exterior Wall/Cover: | WOOD SIDING | | Floor Covering: | CARPET/VINYL 80-20 | Floor Structure: | WOOD W/SUBFLOOR | | Foundation: | WOOD BLOCKS | Heating: | BASEBOARD ELECTRIC | | Interior Finish: | DRYWALL PAINT | Plumbing Fixture Cnt: | 5 | | Roof Slope: | 5" IN 12" | Roof Structure/Cover: | CJ ASPHALT |
|
| | Type | Description | Class CD | Sub Class CD | Year Built | Area |
| | BAS | BASE/MAIN FLOOR | 2 | 0 | 1942 | 504.0 |
| | OWR | OPEN WOOD PORCH W/STEPS/ROOF | 3 | 0 | 1942 | 18.0 |
| | OWR | OPEN WOOD PORCH W/STEPS/ROOF | 3 | 0 | 1942 | 42.0 |
| Improvement #2: | RESIDENTIAL | State Code: | Y | 1328.0 sqft | Value: | $192,616 |
| Bathrooms: | 1 | Bedrooms: | 2 | | Ceiling: | ACOUSTIC FURRED | Exterior Wall/Cover: | WOOD SIDING | | Floor Covering: | CARPET/VINYL 80-20 | Floor Structure: | WOOD W/SUBFLOOR | | Foundation: | CONCRETE | Heating: | FHA ELECTRIC | | Interior Finish: | DRYWALL PAINT | Plumbing Fixture Cnt: | 6 | | Roof Slope: | 6" IN 12" | Roof Structure/Cover: | CJ ASPHALT |
|
| | Type | Description | Class CD | Sub Class CD | Year Built | Area |
| | BAS | BASE/MAIN FLOOR | 3 | 0 | 1933 | 1328.0 |
| | OWP | OPEN WOOD PORCH W/STEPS | 3 | 0 | 1933 | 144.0 |
| | DGR | DETACHED GARAGE | 3 | 0 | 1933 | 435.0 |
Sketch
Property Image
Land
| 1 | 15 | SQ (12001-21780) | 0.0000 | 0.00 | 0.00 | 0.00 | 1.00 | $270,000 | $0 |
Roll Value History
| 2026 | N/A | N/A | N/A | N/A | N/A |
| 2025 | $255,010 | $270,000 | $0 | $525,010 | $525,010 |
| 2024 | $260,183 | $270,000 | $0 | $530,183 | $530,183 |
| 2023 | $263,943 | $270,000 | $0 | $533,943 | $533,943 |
| 2022 | $242,406 | $210,000 | $0 | $452,406 | $452,406 |
| 2021 | $213,747 | $180,000 | $0 | $393,747 | $393,747 |
| 2020 | $208,751 | $180,000 | $0 | $388,751 | $388,751 |
| 2019 | $150,457 | $200,000 | $0 | $350,457 | $350,457 |
| 2018 | $150,964 | $160,000 | $0 | $310,964 | $310,964 |
| 2017 | $151,978 | $160,000 | $0 | $311,978 | $311,978 |
| 2016 | $154,004 | $130,000 | $0 | $284,004 | $284,004 |
| 2015 | $156,031 | $130,000 | $0 | $286,031 | $286,031 |
| 2014 | $83,608 | $139,500 | $0 | $223,108 | $223,108 |
| 2013 | $84,919 | $139,500 | $0 | $224,419 | $224,419 |
| 2012 | $86,745 | $139,500 | $0 | $226,245 | $226,245 |
| 2011 | $85,950 | $155,000 | $0 | $240,950 | $240,950 |
| 2010 | $96,969 | $155,000 | $0 | $251,969 | $251,969 |
| 2009 | $101,641 | $100,000 | $0 | $201,641 | $201,641 |
| 2008 | $102,754 | $145,000 | $0 | $247,754 | $247,754 |
| 2007 | $104,796 | $145,000 | $0 | $249,796 | $249,796 |
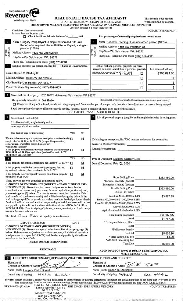
Deed and Sales History
| 1 | 11/15/2019 | PRD | Personal Representatives Deed | STEVENSON, DELORES P | STEVENSON, DONNA P | | | $0.00 | 41125 | 4475698 |
| 2 | 06/26/2012 | WD | Warranty Deed | HARWELL, MARY L | STEVENSON, DELORES P | | | $175,000.00 | 8106 | 4318212 |
| 3 | 04/07/2011 | CPADC | Comm Prop Agmnt & Death Cert | HARWELL, JAMES D | HARWELL, MARY L | | | | 82030 | |
Payout Agreement
| No payout information available.. |