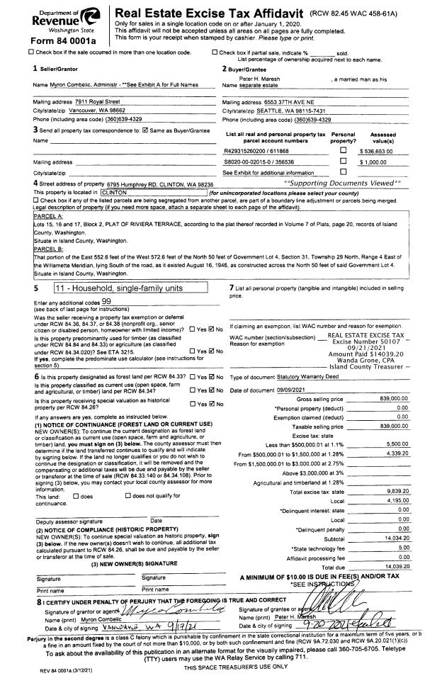
Property
Account |
| Property ID: | 121898 | Abbreviated Legal Description: | 91 - IN GL3:BG MC SEC 2 & 3 S258.9' CLN RD L81*1354.4' R31*598.7' TPB CONT 194' SLY 790' W168.2' N886.6' TPB EX RD EX S450' |
| Geographic ID: | R32902-345-1960 | Agent Code: | |
| Type: | Real | | |
| Tax Area: | 700 - APPRAISER-S Whid Schl Dist, in town of Langley | Land Use Code | 11 |
| Open Space: | N | DFL | N |
| Historic Property: | N | Remodel Property: | N |
| Multi-Family Redevelopment: | N | | |
| Township: | 29 | Section: | 02 |
| Range: | R3 |
Location |
| Address: | 909 EDGECLIFF DR LANGLEY, WA 98260 | Mapsco: | |
| Neighborhood: | City of Langley | Map ID: | 721 |
| Neighborhood CD: | 04-L |
Owner |
| Name: | DETHMAN, LINDA F | Owner ID: | 16761 |
| Mailing Address: | DAVID J THOMLEY 909 EDGECLIFF DR LANGLEY, WA 98260 | % Ownership: | 100.0000000000% |
| | | Exemptions: | |
Taxes and Assessment Details
Values
| (+) Improvement Homesite Value: | + | $0 | |
| (+) Improvement Non-Homesite Value: | + | $295,703 | |
| (+) Land Homesite Value: | + | $0 | |
| (+) Land Non-Homesite Value: | + | $290,000 | |
| (+) Curr Use (HS): | + | $0 | $0 |
| (+) Curr Use (NHS): | + | $0 | $0 |
| | | -------------------------- | |
| (=) Market Value: | = | $585,703 | |
| (–) Productivity Loss: | – | $0 | |
| | | -------------------------- | |
| (=) Subtotal: | = | $585,703 | |
| (+) Senior Appraised Value: | + | $0 | |
| (+) Non-Senior Appraised Value: | + | $585,703 | |
| | | -------------------------- | |
| (=) Total Appraised Value: | = | $585,703 | |
| (–) Senior Exemption Loss: | – | $0 | |
| (–) Exemption Loss: | – | $0 | |
| | | -------------------------- | |
| (=) Taxable Value: | = | $585,703 | |
Taxing Jurisdiction
| Owner: | DETHMAN, LINDA F | | |
| % Ownership: | 100.0000000000% | | |
| Total Value: | $585,703 | | |
| Tax Area: | 700 - APPRAISER-S Whid Schl Dist, in town of Langley |
| CF | Conservation Futures | 0.0316035091 | $585,703 | $585,703 | $18.51 | | |
| LANG | City of Langley | 1.0093520762 | $585,703 | $585,703 | $591.18 | | |
| LANGBOND | City of Langley BOND | 1.0326110892 | $585,703 | $585,703 | $604.80 | | |
| FIRE3 | Fire & Rescue Dist #3 S Whidbey GEN | 1.2004855531 | $585,703 | $585,703 | $703.13 | | |
| HOBOND | Hospital BOND | 0.1910887512 | $585,703 | $585,703 | $111.92 | | |
| HOGEN | Hospital GEN | 0.3902502903 | $585,703 | $585,703 | $228.57 | | |
| CE | County Current Expense | 0.3708482477 | $585,703 | $585,703 | $217.21 | | |
| ISLANDEMS | Hospital GEN (EMS) | 0.5000000000 | $585,703 | $585,703 | $292.85 | | |
| LIB | Library Sno-Isle GEN | 0.3153421757 | $585,703 | $585,703 | $184.70 | | |
| PORTWHID | Port of S Whidbey GEN | 0.1094540357 | $585,703 | $585,703 | $64.11 | | |
| SCH206BOND | School 206 BOND | 0.3161759235 | $585,703 | $585,703 | $185.19 | | |
| SCH206MO | School 206 Enrichment | 0.4547169547 | $585,703 | $585,703 | $266.33 | | |
| ST | State School | 1.3035497053 | $585,703 | $585,703 | $763.49 | | |
| ST2 | State School Part 2 | 0.8169543533 | $585,703 | $585,703 | $478.49 | | |
| SWHIDPRBD | P & R S Whidbey BOND | 0.0152817568 | $585,703 | $585,703 | $8.95 | | |
| SWHIDPRBD2 | P & R S Whidbey BOND2 | 0.0138911264 | $585,703 | $585,703 | $8.14 | | |
| SWHIDPRMT | P & R S Whidbey GEN | 0.2053334452 | $585,703 | $585,703 | $120.26 | | |
| | Total Tax Rate: | 8.2769389934 | | | | | |
| | | | | Taxes w/Current Exemptions: | $4,847.83 | | |
| | | | | Taxes w/o Exemptions: | $4,847.83 | | |
Improvement / Building
| Improvement #1: | RESIDENTIAL | State Code: | Y | 1658.0 sqft | Value: | $295,703 |
| Bathrooms: | 2 | Bedrooms: | 3 | | Ceiling: | DRYWALL PAINTED | Cooling: | HEAT PUMP/CONV/V | | Exterior Wall/Cover: | SHINGLE | Floor Covering: | CERAMIC TILE/HWD 40/60 | | Floor Structure: | WOOD W/SUBFLOOR | Foundation: | CONCRETE | | Interior Finish: | DRYWALL PAINT | Plumbing Fixture Cnt: | 9 | | Roof Slope: | 8" IN 12" | Roof Structure/Cover: | CJ ASPHALT |
|
| | Type | Description | Class CD | Sub Class CD | Year Built | Area |
| | BAS | BASE/MAIN FLOOR | 3 | 0 | 1944 | 1174.0 |
| | OP3 | OPEN PORCH W/ROOF | 3 | 0 | 1944 | 60.0 |
| | OWR | OPEN WOOD PORCH W/STEPS/ROOF | 3 | 0 | 1944 | 110.0 |
| | OWP | OPEN WOOD PORCH W/STEPS | 3 | 0 | 1944 | 45.5 |
| | OWP | OPEN WOOD PORCH W/STEPS | 3 | 0 | 1944 | 180.0 |
| | UPH | HALF STORY | 3 | 0 | 1944 | 484.0 |
| | UTY | STORAGE/UTILITY | 3 | 0 | 1944 | 450.0 |
| | AGR | ATTACHED GARAGE | 3 | 0 | 1944 | 589.0 |
| | UTY | STORAGE/UTILITY | 3 | 0 | 1944 | 240.0 |
Sketch
Property Image
Land
| 1 | 17 | AC (01.01-02.00) | 0.0000 | 0.00 | 0.00 | 0.00 | 1.00 | $290,000 | $0 |
Roll Value History
| 2026 | N/A | N/A | N/A | N/A | N/A |
| 2025 | $295,703 | $290,000 | $0 | $585,703 | $585,703 |
| 2024 | $299,911 | $290,000 | $0 | $589,911 | $589,911 |
| 2023 | $304,119 | $300,000 | $0 | $604,119 | $604,119 |
| 2022 | $279,203 | $270,000 | $0 | $549,203 | $549,203 |
| 2021 | $246,092 | $210,000 | $0 | $456,092 | $456,092 |
| 2020 | $240,467 | $210,000 | $0 | $450,467 | $450,467 |
| 2019 | $177,788 | $240,000 | $0 | $417,788 | $417,788 |
| 2018 | $178,373 | $180,000 | $0 | $358,373 | $358,373 |
| 2017 | $179,539 | $180,000 | $0 | $359,539 | $359,539 |
| 2016 | $181,869 | $150,000 | $0 | $331,869 | $331,869 |
| 2015 | $183,794 | $150,000 | $0 | $333,794 | $333,794 |
| 2014 | $97,381 | $139,500 | $0 | $236,881 | $236,881 |
| 2013 | $99,314 | $139,500 | $0 | $238,814 | $238,814 |
| 2012 | $101,245 | $139,500 | $0 | $240,745 | $240,745 |
| 2011 | $103,178 | $155,000 | $0 | $258,178 | $258,178 |
| 2010 | $119,835 | $155,000 | $0 | $274,835 | $274,835 |
| 2009 | $124,962 | $155,000 | $0 | $279,962 | $279,962 |
| 2008 | $120,247 | $181,250 | $0 | $301,497 | $301,497 |
| 2007 | $122,231 | $181,250 | $0 | $303,481 | $303,481 |
Deed and Sales History
| 1 | 04/18/2007 | WD | Warranty Deed | ALEXANDER, JOHN P | DETHMAN, LINDA F | | | $455,000.00 | 71290 | 4200045 |
| 2 | 01/01/1900 | OTHER | Other - Misc. Documents | Unknown | ALEXANDER, JOHN P | | | $0.00 | 0 | 0 |
Payout Agreement
| No payout information available.. |