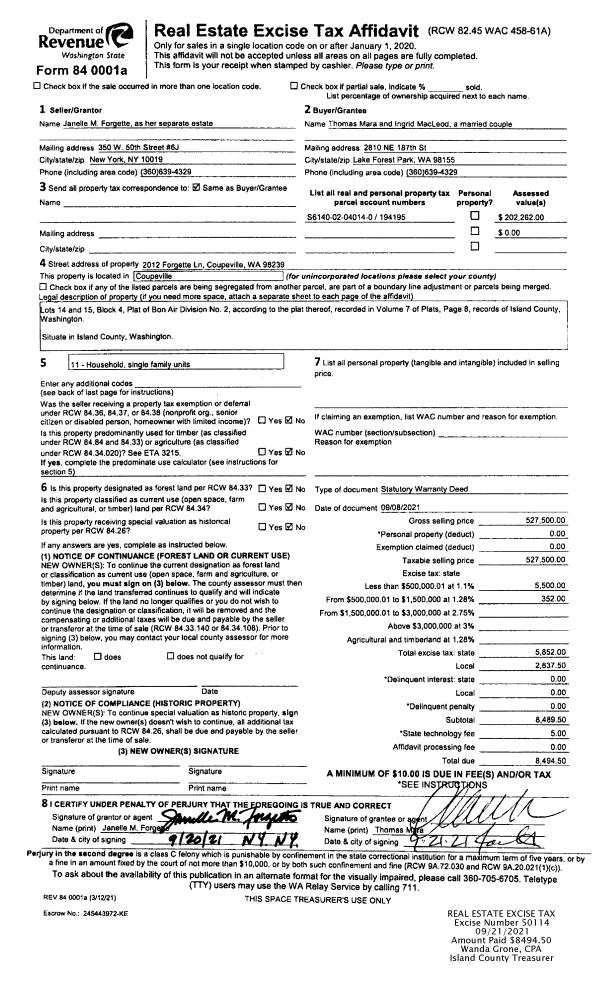
Property
Account |
| Property ID: | 122049 | Abbreviated Legal Description: | 90 - BG MC BTWN SEC 2 & 3 SLY ALG SEC LN 258.9' TO CLN RD S81*E1354.4' S31* E358.7' TPB S31*E240' SWLY PAR/W TR DESC V22 D P402 & TR DESC V33 D P134 356.78' TO NE CR TR AF#133248 W208. 1'NWLY TPB EX RD |
| Geographic ID: | R32902-355-1780 | Agent Code: | |
| Type: | Real | | |
| Tax Area: | 700 - APPRAISER-S Whid Schl Dist, in town of Langley | Land Use Code | 11 |
| Open Space: | N | DFL | N |
| Historic Property: | N | Remodel Property: | N |
| Multi-Family Redevelopment: | N | | |
| Township: | 29 | Section: | 02 |
| Range: | R3 |
Location |
| Address: | 875 EDGECLIFF DR LANGLEY, WA 98260 | Mapsco: | |
| Neighborhood: | City of Langley | Map ID: | 721 |
| Neighborhood CD: | 04-L |
Owner |
| Name: | NIELSEN, PHYLLIS S | Owner ID: | 16779 |
| Mailing Address: | 875 EDGECLIFF DR LANGLEY, WA 98260-9600 | % Ownership: | 100.0000000000% |
| | | Exemptions: | |
Taxes and Assessment Details
Values
| (+) Improvement Homesite Value: | + | $0 | |
| (+) Improvement Non-Homesite Value: | + | $580,449 | |
| (+) Land Homesite Value: | + | $0 | |
| (+) Land Non-Homesite Value: | + | $340,000 | |
| (+) Curr Use (HS): | + | $0 | $0 |
| (+) Curr Use (NHS): | + | $0 | $0 |
| | | -------------------------- | |
| (=) Market Value: | = | $920,449 | |
| (–) Productivity Loss: | – | $0 | |
| | | -------------------------- | |
| (=) Subtotal: | = | $920,449 | |
| (+) Senior Appraised Value: | + | $0 | |
| (+) Non-Senior Appraised Value: | + | $920,449 | |
| | | -------------------------- | |
| (=) Total Appraised Value: | = | $920,449 | |
| (–) Senior Exemption Loss: | – | $0 | |
| (–) Exemption Loss: | – | $0 | |
| | | -------------------------- | |
| (=) Taxable Value: | = | $920,449 | |
Taxing Jurisdiction
| Owner: | NIELSEN, PHYLLIS S | | |
| % Ownership: | 100.0000000000% | | |
| Total Value: | $920,449 | | |
| Tax Area: | 700 - APPRAISER-S Whid Schl Dist, in town of Langley |
| CF | Conservation Futures | 0.0316035091 | $920,449 | $920,449 | $29.09 | | |
| LANG | City of Langley | 1.0093520762 | $920,449 | $920,449 | $929.06 | | |
| LANGBOND | City of Langley BOND | 1.0326110892 | $920,449 | $920,449 | $950.47 | | |
| FIRE3 | Fire & Rescue Dist #3 S Whidbey GEN | 1.2004855531 | $920,449 | $920,449 | $1,104.99 | | |
| HOBOND | Hospital BOND | 0.1910887512 | $920,449 | $920,449 | $175.89 | | |
| HOGEN | Hospital GEN | 0.3902502903 | $920,449 | $920,449 | $359.21 | | |
| CE | County Current Expense | 0.3708482477 | $920,449 | $920,449 | $341.35 | | |
| ISLANDEMS | Hospital GEN (EMS) | 0.5000000000 | $920,449 | $920,449 | $460.22 | | |
| LIB | Library Sno-Isle GEN | 0.3153421757 | $920,449 | $920,449 | $290.26 | | |
| PORTWHID | Port of S Whidbey GEN | 0.1094540357 | $920,449 | $920,449 | $100.75 | | |
| SCH206BOND | School 206 BOND | 0.3161759235 | $920,449 | $920,449 | $291.02 | | |
| SCH206MO | School 206 Enrichment | 0.4547169547 | $920,449 | $920,449 | $418.54 | | |
| ST | State School | 1.3035497053 | $920,449 | $920,449 | $1,199.85 | | |
| ST2 | State School Part 2 | 0.8169543533 | $920,449 | $920,449 | $751.96 | | |
| SWHIDPRBD | P & R S Whidbey BOND | 0.0152817568 | $920,449 | $920,449 | $14.07 | | |
| SWHIDPRBD2 | P & R S Whidbey BOND2 | 0.0138911264 | $920,449 | $920,449 | $12.79 | | |
| SWHIDPRMT | P & R S Whidbey GEN | 0.2053334452 | $920,449 | $920,449 | $189.00 | | |
| | Total Tax Rate: | 8.2769389934 | | | | | |
| | | | | Taxes w/Current Exemptions: | $7,618.52 | | |
| | | | | Taxes w/o Exemptions: | $7,618.52 | | |
Improvement / Building
| Improvement #1: | RESIDENTIAL | State Code: | Y | 4637.9 sqft | Value: | $580,449 |
| Bathrooms: | 3 | Bedrooms: | 3 | | Ceiling: | TONGUE & GROOVE | Exterior Wall/Cover: | WOOD SIDING | | Floor Covering: | HARDWOOD/CARP 20-80 | Floor Structure: | WOOD W/SUBFLOOR | | Foundation: | CONCRETE | Heating: | FHA OIL | | Interior Finish: | DRYWALL PAINT | Plumbing Fixture Cnt: | 12 | | Roof Slope: | 8" IN 12" | Roof Structure/Cover: | CJ ASPHALT |
|
| | Type | Description | Class CD | Sub Class CD | Year Built | Area |
| | BAS | BASE/MAIN FLOOR | 4 | 0 | 1977 | 1658.9 |
| | DWN | DOWNSTAIRS LIVING AREA | 4 | 0 | 1977 | 1185.9 |
| | BIG | BUILT IN GARAGE | 4 | 0 | 1977 | 528.1 |
| | UPS | UPPER STORY | 4 | 0 | 1977 | 1793.1 |
| | OWP | OPEN WOOD PORCH W/STEPS | 4 | 0 | 1977 | 1421.9 |
| | OWR | OPEN WOOD PORCH W/STEPS/ROOF | 4 | 0 | 1977 | 286.5 |
Sketch
Property Image
Land
| 1 | 18 | AC (02.01-03.00) | 0.0000 | 0.00 | 0.00 | 0.00 | 1.00 | $340,000 | $0 |
Roll Value History
| 2026 | N/A | N/A | N/A | N/A | N/A |
| 2025 | $580,449 | $340,000 | $0 | $920,449 | $920,449 |
| 2024 | $588,266 | $340,000 | $0 | $928,266 | $928,266 |
| 2023 | $596,085 | $340,000 | $0 | $936,085 | $936,085 |
| 2022 | $546,854 | $290,000 | $0 | $836,854 | $836,854 |
| 2021 | $481,664 | $210,000 | $0 | $691,664 | $691,664 |
| 2020 | $471,683 | $210,000 | $0 | $681,683 | $681,683 |
| 2019 | $405,190 | $240,000 | $0 | $645,190 | $645,190 |
| 2018 | $406,452 | $180,000 | $0 | $586,452 | $586,452 |
| 2017 | $408,926 | $180,000 | $0 | $588,926 | $588,926 |
| 2016 | $413,973 | $150,000 | $0 | $563,973 | $563,973 |
| 2015 | $419,021 | $150,000 | $0 | $569,021 | $569,021 |
| 2014 | $309,015 | $139,500 | $0 | $448,515 | $448,515 |
| 2013 | $313,838 | $139,500 | $0 | $453,338 | $453,338 |
| 2012 | $318,659 | $139,500 | $0 | $458,159 | $458,159 |
| 2011 | $323,481 | $155,000 | $0 | $478,481 | $478,481 |
| 2010 | $347,581 | $155,000 | $0 | $502,581 | $502,581 |
| 2009 | $363,440 | $155,000 | $0 | $518,440 | $518,440 |
| 2008 | $361,093 | $246,500 | $0 | $607,593 | $607,593 |
| 2007 | $366,220 | $246,500 | $0 | $612,720 | $612,720 |
Deed and Sales History
| 1 | 05/01/1988 | WD | Warranty Deed | DEMOREST, CLAUDE N | NIELSEN, PHYLLIS S | | | $149,500.00 | 81764 | 88006591 |
| 2 | 01/01/1985 | WD | Warranty Deed | PIONEER, 1ST F | DEMOREST, CLAUDE N | | | $117,500.00 | 50216 | 85001002 |
| 3 | 06/01/1983 | TRUSTEED | Trustee's Deed | PLASTER, LEROY | PIONEER, 1ST F | | | $132,936.00 | 31669 | 411191 |
| 4 | 01/01/1900 | OTHER | Other - Misc. Documents | Unknown | PLASTER, LEROY | | | $0.00 | 0 | 0 |
Payout Agreement
| No payout information available.. |