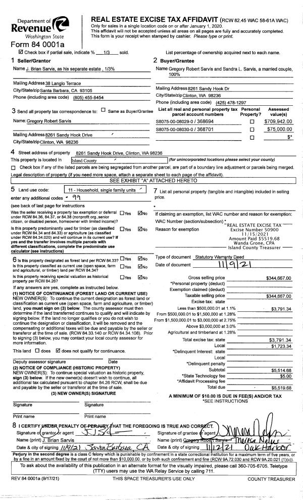
Property
Account |
| Property ID: | 122129 | Abbreviated Legal Description: | 41 - IN GL4: W/2 S/2 OF: BG INTER CAMANO AVE & EDGECLIFF DR S87*E892.83' S87*E513.03' S5*E334.38' TPB S5*E205' N87*E149.22' N5*W205' S87*W149.22' TPB |
| Geographic ID: | R32902-361-0640 | Agent Code: | |
| Type: | Real | | |
| Tax Area: | 700 - APPRAISER-S Whid Schl Dist, in town of Langley | Land Use Code | 12 |
| Open Space: | N | DFL | N |
| Historic Property: | N | Remodel Property: | N |
| Multi-Family Redevelopment: | N | | |
| Township: | 29 | Section: | 02 |
| Range: | R3 |
Location |
| Address: | 770 DECKER AVE LANGLEY, WA 98260 | Mapsco: | |
| Neighborhood: | City of Langley | Map ID: | 721 |
| Neighborhood CD: | 04-L |
Owner |
| Name: | ANDERSON, CHELSEA M | Owner ID: | 298385 |
| Mailing Address: | IAIN M KENNEDY 770 DECKER AVE LANGLEY, WA 98260 | % Ownership: | 100.0000000000% |
| | | Exemptions: | |
Taxes and Assessment Details
Values
| (+) Improvement Homesite Value: | + | $0 | |
| (+) Improvement Non-Homesite Value: | + | $251,192 | |
| (+) Land Homesite Value: | + | $0 | |
| (+) Land Non-Homesite Value: | + | $210,000 | |
| (+) Curr Use (HS): | + | $0 | $0 |
| (+) Curr Use (NHS): | + | $0 | $0 |
| | | -------------------------- | |
| (=) Market Value: | = | $461,192 | |
| (–) Productivity Loss: | – | $0 | |
| | | -------------------------- | |
| (=) Subtotal: | = | $461,192 | |
| (+) Senior Appraised Value: | + | $0 | |
| (+) Non-Senior Appraised Value: | + | $461,192 | |
| | | -------------------------- | |
| (=) Total Appraised Value: | = | $461,192 | |
| (–) Senior Exemption Loss: | – | $0 | |
| (–) Exemption Loss: | – | $0 | |
| | | -------------------------- | |
| (=) Taxable Value: | = | $461,192 | |
Taxing Jurisdiction
| Owner: | ANDERSON, CHELSEA M | | |
| % Ownership: | 100.0000000000% | | |
| Total Value: | $461,192 | | |
| Tax Area: | 700 - APPRAISER-S Whid Schl Dist, in town of Langley |
| CF | Conservation Futures | 0.0316035091 | $461,192 | $461,192 | $14.58 | | |
| LANG | City of Langley | 1.0093520762 | $461,192 | $461,192 | $465.51 | | |
| LANGBOND | City of Langley BOND | 1.0326110892 | $461,192 | $461,192 | $476.23 | | |
| FIRE3 | Fire & Rescue Dist #3 S Whidbey GEN | 1.2004855531 | $461,192 | $461,192 | $553.65 | | |
| HOBOND | Hospital BOND | 0.1910887512 | $461,192 | $461,192 | $88.13 | | |
| HOGEN | Hospital GEN | 0.3902502903 | $461,192 | $461,192 | $179.98 | | |
| CE | County Current Expense | 0.3708482477 | $461,192 | $461,192 | $171.03 | | |
| ISLANDEMS | Hospital GEN (EMS) | 0.5000000000 | $461,192 | $461,192 | $230.60 | | |
| LIB | Library Sno-Isle GEN | 0.3153421757 | $461,192 | $461,192 | $145.43 | | |
| PORTWHID | Port of S Whidbey GEN | 0.1094540357 | $461,192 | $461,192 | $50.48 | | |
| SCH206BOND | School 206 BOND | 0.3161759235 | $461,192 | $461,192 | $145.82 | | |
| SCH206MO | School 206 Enrichment | 0.4547169547 | $461,192 | $461,192 | $209.71 | | |
| ST | State School | 1.3035497053 | $461,192 | $461,192 | $601.19 | | |
| ST2 | State School Part 2 | 0.8169543533 | $461,192 | $461,192 | $376.77 | | |
| SWHIDPRBD | P & R S Whidbey BOND | 0.0152817568 | $461,192 | $461,192 | $7.05 | | |
| SWHIDPRBD2 | P & R S Whidbey BOND2 | 0.0138911264 | $461,192 | $461,192 | $6.41 | | |
| SWHIDPRMT | P & R S Whidbey GEN | 0.2053334452 | $461,192 | $461,192 | $94.70 | | |
| | Total Tax Rate: | 8.2769389934 | | | | | |
| | | | | Taxes w/Current Exemptions: | $3,817.27 | | |
| | | | | Taxes w/o Exemptions: | $3,817.27 | | |
Improvement / Building
| Improvement #1: | RESIDENTIAL | State Code: | Y | 1560.0 sqft | Value: | $251,192 |
| Bathrooms: | 4 | Bedrooms: | 4 | | Ceiling: | DRY WALL SPRAYED | Exterior Wall/Cover: | WOOD SIDING | | Floor Covering: | CARPET/VINYL 80-20 | Floor Structure: | WOOD W/SUBFLOOR | | Foundation: | CONCRETE | Heating: | BASEBOARD ELECTRIC | | Interior Finish: | DRYWALL PAINT | Plumbing Fixture Cnt: | 18 | | Roof Slope: | 3" IN 12" | Roof Structure/Cover: | CJ ASPHALT |
|
| | Type | Description | Class CD | Sub Class CD | Year Built | Area |
| | BAS | BASE/MAIN FLOOR | 3 | 0 | 1973 | 780.0 |
| | BAS | BASE/MAIN FLOOR | 3 | 0 | 1973 | 780.0 |
| | OP3 | OPEN PORCH W/ROOF | 3 | 0 | 1973 | 280.0 |
| | AGR | ATTACHED GARAGE | 3 | 0 | 1973 | 400.0 |
| | UTY | STORAGE/UTILITY | 3 | 0 | 1973 | 160.0 |
Sketch
Property Image
Land
| 1 | 13 | SQ (06001-08000) | 0.0000 | 7840.00 | 0.00 | 0.00 | 1.00 | $210,000 | $0 |
Roll Value History
| 2026 | N/A | N/A | N/A | N/A | N/A |
| 2025 | $251,192 | $210,000 | $0 | $461,192 | $461,192 |
| 2024 | $259,352 | $210,000 | $0 | $469,352 | $469,352 |
| 2023 | $262,585 | $210,000 | $0 | $472,585 | $472,585 |
| 2022 | $240,698 | $210,000 | $0 | $450,698 | $450,698 |
| 2021 | $211,851 | $180,000 | $0 | $391,851 | $391,851 |
| 2020 | $174,524 | $180,000 | $0 | $354,524 | $354,524 |
| 2019 | $130,318 | $200,000 | $0 | $330,318 | $330,318 |
| 2018 | $130,750 | $160,000 | $0 | $290,750 | $290,750 |
| 2017 | $131,616 | $160,000 | $0 | $291,616 | $291,616 |
| 2016 | $133,348 | $80,000 | $0 | $213,348 | $213,348 |
| 2015 | $135,080 | $80,000 | $0 | $215,080 | $215,080 |
| 2014 | $101,626 | $162,135 | $0 | $263,761 | $263,761 |
| 2013 | $103,320 | $162,135 | $0 | $265,455 | $265,455 |
| 2012 | $105,015 | $162,135 | $0 | $267,150 | $267,150 |
| 2011 | $112,974 | $190,747 | $0 | $303,721 | $303,721 |
| 2010 | $114,839 | $190,747 | $0 | $305,586 | $305,586 |
| 2009 | $118,369 | $190,747 | $0 | $309,116 | $309,116 |
| 2008 | $120,080 | $190,747 | $0 | $310,827 | $310,827 |
| 2007 | $121,790 | $190,747 | $0 | $312,537 | $312,537 |
Deed and Sales History
| 1 | 03/01/2021 | WD | Warranty Deed | CARMIN TOMISSER, ANITA M | ANDERSON, CHELSEA M | | | $443,000.00 | 47247 | 4512862 |
| 2 | 04/08/2004 | ESTSEPPROP | Establish Separate Property | CARMIN TOMISSER, ANITA M | CARMIN TOMISSER, ANITA M | | | $0.00 | 41480 | 4097214 |
| 3 | 04/08/2004 | WD | Warranty Deed | MURPHY, PATRICK | CARMIN TOMISSER, ANITA M | | | $199,708.00 | 41479 | 4097215 |
| 4 | 03/12/2001 | WD | Warranty Deed | CYDELL, ALICE H | MURPHY, PATRICK | | | $162,500.00 | 10835 | 20027483 |
| 5 | 02/01/1994 | QCD | Quit Claim Deed | GROSTAR, INC | CYDELL, ALICE H | | | $0.00 | 41168 | 94007433 |
| 6 | 03/01/1990 | WD | Warranty Deed | CYDELL, ALICE H | GROSTAR, INC | | | $90,150.00 | 1479 | 90004782 |
| 7 | 03/01/1990 | WD | Warranty Deed | JAEGER, PETER | CYDELL, ALICE H | | | $0.00 | 1480 | 90004783 |
| 8 | 01/01/1900 | OTHER | Other - Misc. Documents | Unknown | JAEGER, PETER | | | $0.00 | 0 | 0 |
Payout Agreement
| No payout information available.. |