Property
Account |
| Property ID: | 122138 | Abbreviated Legal Description: | 43 - IN GL4: E/2 S/2 OF: BG INTER CAMANO AVE & EDGECLIFF DR S87*E892.83' S87*E513.03' S5*E334.38' TPB S5*E205' N87*E149.22' N5*W205' S87*W149.22' TPB |
| Geographic ID: | R32902-361-0710 | Agent Code: | |
| Type: | Real | | |
| Tax Area: | 700 - APPRAISER-S Whid Schl Dist, in town of Langley | Land Use Code | 12 |
| Open Space: | N | DFL | N |
| Historic Property: | N | Remodel Property: | N |
| Multi-Family Redevelopment: | N | | |
| Township: | 29 | Section: | 02 |
| Range: | R3 |
Location |
| Address: | 771 FURMAN AVE LANGLEY, WA 98260 | Mapsco: | |
| Neighborhood: | City of Langley | Map ID: | 721 |
| Neighborhood CD: | 04-L |
Owner |
| Name: | SELMA, LLC | Owner ID: | 284496 |
| Mailing Address: | 240 CLOVER CT LANGLEY, WA 98260 | % Ownership: | 100.0000000000% |
| | | Exemptions: | |
Taxes and Assessment Details
Values
| (+) Improvement Homesite Value: | + | $0 | |
| (+) Improvement Non-Homesite Value: | + | $246,380 | |
| (+) Land Homesite Value: | + | $0 | |
| (+) Land Non-Homesite Value: | + | $210,000 | |
| (+) Curr Use (HS): | + | $0 | $0 |
| (+) Curr Use (NHS): | + | $0 | $0 |
| | | -------------------------- | |
| (=) Market Value: | = | $456,380 | |
| (–) Productivity Loss: | – | $0 | |
| | | -------------------------- | |
| (=) Subtotal: | = | $456,380 | |
| (+) Senior Appraised Value: | + | $0 | |
| (+) Non-Senior Appraised Value: | + | $456,380 | |
| | | -------------------------- | |
| (=) Total Appraised Value: | = | $456,380 | |
| (–) Senior Exemption Loss: | – | $0 | |
| (–) Exemption Loss: | – | $0 | |
| | | -------------------------- | |
| (=) Taxable Value: | = | $456,380 | |
Taxing Jurisdiction
| Owner: | SELMA, LLC | | |
| % Ownership: | 100.0000000000% | | |
| Total Value: | $456,380 | | |
| Tax Area: | 700 - APPRAISER-S Whid Schl Dist, in town of Langley |
| CF | Conservation Futures | 0.0316035091 | $456,380 | $456,380 | $14.42 | | |
| LANG | City of Langley | 1.0093520762 | $456,380 | $456,380 | $460.65 | | |
| LANGBOND | City of Langley BOND | 1.0326110892 | $456,380 | $456,380 | $471.26 | | |
| FIRE3 | Fire & Rescue Dist #3 S Whidbey GEN | 1.2004855531 | $456,380 | $456,380 | $547.88 | | |
| HOBOND | Hospital BOND | 0.1910887512 | $456,380 | $456,380 | $87.21 | | |
| HOGEN | Hospital GEN | 0.3902502903 | $456,380 | $456,380 | $178.10 | | |
| CE | County Current Expense | 0.3708482477 | $456,380 | $456,380 | $169.25 | | |
| ISLANDEMS | Hospital GEN (EMS) | 0.5000000000 | $456,380 | $456,380 | $228.19 | | |
| LIB | Library Sno-Isle GEN | 0.3153421757 | $456,380 | $456,380 | $143.92 | | |
| PORTWHID | Port of S Whidbey GEN | 0.1094540357 | $456,380 | $456,380 | $49.95 | | |
| SCH206BOND | School 206 BOND | 0.3161759235 | $456,380 | $456,380 | $144.30 | | |
| SCH206MO | School 206 Enrichment | 0.4547169547 | $456,380 | $456,380 | $207.52 | | |
| ST | State School | 1.3035497053 | $456,380 | $456,380 | $594.91 | | |
| ST2 | State School Part 2 | 0.8169543533 | $456,380 | $456,380 | $372.84 | | |
| SWHIDPRBD | P & R S Whidbey BOND | 0.0152817568 | $456,380 | $456,380 | $6.97 | | |
| SWHIDPRBD2 | P & R S Whidbey BOND2 | 0.0138911264 | $456,380 | $456,380 | $6.34 | | |
| SWHIDPRMT | P & R S Whidbey GEN | 0.2053334452 | $456,380 | $456,380 | $93.71 | | |
| | Total Tax Rate: | 8.2769389934 | | | | | |
| | | | | Taxes w/Current Exemptions: | $3,777.42 | | |
| | | | | Taxes w/o Exemptions: | $3,777.42 | | |
Improvement / Building
| Improvement #1: | RESIDENTIAL | State Code: | Y | 1560.0 sqft | Value: | $246,380 |
| Bathrooms: | 2 | Bedrooms: | 4 | | Ceiling: | DRY WALL SPRAYED | Cooling: | HEAT PUMP/CONV/V | | Exterior Wall/Cover: | WOOD SIDING | Floor Covering: | CARPET/VINYL 80-20 | | Floor Structure: | WOOD W/SUBFLOOR | Foundation: | CONCRETE | | Interior Finish: | DRYWALL PAINT | Plumbing Fixture Cnt: | 12 | | Roof Slope: | 3" IN 12" | Roof Structure/Cover: | CJ ASPHALT |
|
| | Type | Description | Class CD | Sub Class CD | Year Built | Area |
| | BAS | BASE/MAIN FLOOR | 3 | 0 | 1973 | 780.0 |
| | BAS | BASE/MAIN FLOOR | 3 | 0 | 1973 | 780.0 |
| | OP3 | OPEN PORCH W/ROOF | 3 | 0 | 1973 | 280.0 |
| | AGR | ATTACHED GARAGE | 3 | 0 | 1973 | 400.0 |
| | UTY | STORAGE/UTILITY | 3 | 0 | 1973 | 160.0 |
Sketch
Property Image
Land
| 1 | 13 | SQ (06001-08000) | 0.0000 | 7840.00 | 0.00 | 0.00 | 1.00 | $210,000 | $0 |
Roll Value History
| 2026 | N/A | N/A | N/A | N/A | N/A |
| 2025 | $246,380 | $210,000 | $0 | $456,380 | $456,380 |
| 2024 | $244,882 | $210,000 | $0 | $454,882 | $454,882 |
| 2023 | $247,934 | $210,000 | $0 | $457,934 | $457,934 |
| 2022 | $227,270 | $210,000 | $0 | $437,270 | $437,270 |
| 2021 | $200,032 | $180,000 | $0 | $380,032 | $380,032 |
| 2020 | $180,607 | $180,000 | $0 | $360,607 | $360,607 |
| 2019 | $134,597 | $200,000 | $0 | $334,597 | $334,597 |
| 2018 | $135,022 | $160,000 | $0 | $295,022 | $295,022 |
| 2017 | $135,869 | $160,000 | $0 | $295,869 | $295,869 |
| 2016 | $133,348 | $80,000 | $0 | $213,348 | $213,348 |
| 2015 | $135,080 | $80,000 | $0 | $215,080 | $215,080 |
| 2014 | $104,316 | $162,135 | $0 | $266,451 | $266,451 |
| 2013 | $106,029 | $162,135 | $0 | $268,164 | $268,164 |
| 2012 | $107,741 | $162,135 | $0 | $269,876 | $269,876 |
| 2011 | $115,607 | $190,747 | $0 | $306,354 | $306,354 |
| 2010 | $116,203 | $190,747 | $0 | $306,950 | $306,950 |
| 2009 | $121,504 | $190,747 | $0 | $312,251 | $312,251 |
| 2008 | $121,094 | $190,747 | $0 | $311,841 | $311,841 |
| 2007 | $121,094 | $190,747 | $0 | $311,841 | $311,841 |
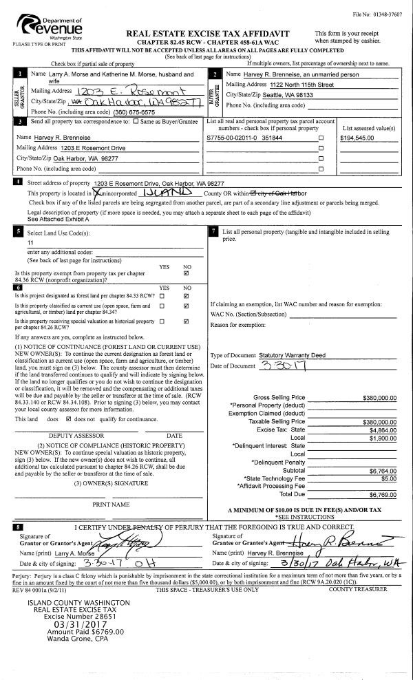
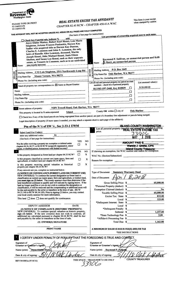
Deed and Sales History
| 1 | 04/04/2018 | QCD | Quit Claim Deed | TOMIC, SUSAN A | SELMA, LLC | | | $0.00 | 33569 | 4442068 |
| 2 | 04/04/2018 | QCD | Quit Claim Deed | O'MALLEY JTWROS, KATHLEEN | TOMIC, SUSAN A | | | $0.00 | 33568 | 4442067 |
| 3 | 03/27/2017 | WD | Warranty Deed | CARMIN TOMISSER, ANITA M | O'MALLEY JTWROS, KATHLEEN | | | $352,000.00 | 28659 | 4419922 |
| 4 | 04/08/2004 | ESTSEPPROP | Establish Separate Property | CARMIN TOMISSER, ANITA M | CARMIN TOMISSER, ANITA M | | | $0.00 | 41480 | 4097214 |
| 5 | 04/08/2004 | WD | Warranty Deed | MURPHY, PATRICK | CARMIN TOMISSER, ANITA M | | | $200,292.00 | 41479 | 4097215 |
| 6 | 11/30/2000 | WD | Warranty Deed | CYDELL, ALICE H | MURPHY, PATRICK | | | $152,500.00 | 4666 | 20021671 |
| 7 | 02/01/1994 | QCD | Quit Claim Deed | GROSTAR, INC | CYDELL, ALICE H | | | $0.00 | 41168 | 94007433 |
| 8 | 03/01/1990 | WD | Warranty Deed | CYDELL, ALICE H | GROSTAR, INC | | | $90,150.00 | 1479 | 90004782 |
| 9 | 03/01/1990 | WD | Warranty Deed | JAEGER, PETER | CYDELL, ALICE H | | | $0.00 | 1480 | 90004783 |
| 10 | 01/01/1900 | OTHER | Other - Misc. Documents | Unknown | JAEGER, PETER | | | $0.00 | 0 | 0 |
Payout Agreement
| No payout information available.. |