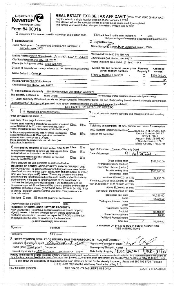
Property
Account |
| Property ID: | 122469 | Abbreviated Legal Description: | 16 - BG SW CR L4 E1089'TO SE CR TR DES 59D141 NLY ALG ELN SD TR TO S BDRY CO RD & TPB ELY ALG S BDRY CO RD 75' S160' S75'M/L TO ELN SD TR N ALG ELN 160'TPB |
| Geographic ID: | R32902-396-1180 | Agent Code: | |
| Type: | Real | | |
| Tax Area: | 700 - APPRAISER-S Whid Schl Dist, in town of Langley | Land Use Code | 11 |
| Open Space: | N | DFL | N |
| Historic Property: | N | Remodel Property: | N |
| Multi-Family Redevelopment: | N | | |
| Township: | 29 | Section: | 02 |
| Range: | R3 |
Location |
| Address: | 633 EDGECLIFF DR LANGLEY, WA 98260 | Mapsco: | |
| Neighborhood: | City of Langley | Map ID: | 721 |
| Neighborhood CD: | 04-L |
Owner |
| Name: | HALBAKKEN, VICKI | Owner ID: | 176246 |
| Mailing Address: | 633 EDGECLIFF DR LANGLEY, WA 98260-9618 | % Ownership: | 100.0000000000% |
| | | Exemptions: | |
Taxes and Assessment Details
Values
| (+) Improvement Homesite Value: | + | $0 | |
| (+) Improvement Non-Homesite Value: | + | $173,821 | |
| (+) Land Homesite Value: | + | $0 | |
| (+) Land Non-Homesite Value: | + | $270,000 | |
| (+) Curr Use (HS): | + | $0 | $0 |
| (+) Curr Use (NHS): | + | $0 | $0 |
| | | -------------------------- | |
| (=) Market Value: | = | $443,821 | |
| (–) Productivity Loss: | – | $0 | |
| | | -------------------------- | |
| (=) Subtotal: | = | $443,821 | |
| (+) Senior Appraised Value: | + | $0 | |
| (+) Non-Senior Appraised Value: | + | $443,821 | |
| | | -------------------------- | |
| (=) Total Appraised Value: | = | $443,821 | |
| (–) Senior Exemption Loss: | – | $0 | |
| (–) Exemption Loss: | – | $0 | |
| | | -------------------------- | |
| (=) Taxable Value: | = | $443,821 | |
Taxing Jurisdiction
| Owner: | HALBAKKEN, VICKI | | |
| % Ownership: | 100.0000000000% | | |
| Total Value: | $443,821 | | |
| Tax Area: | 700 - APPRAISER-S Whid Schl Dist, in town of Langley |
| CF | Conservation Futures | 0.0316035091 | $443,821 | $443,821 | $14.03 | | |
| LANG | City of Langley | 1.0093520762 | $443,821 | $443,821 | $447.97 | | |
| LANGBOND | City of Langley BOND | 1.0326110892 | $443,821 | $443,821 | $458.29 | | |
| FIRE3 | Fire & Rescue Dist #3 S Whidbey GEN | 1.2004855531 | $443,821 | $443,821 | $532.80 | | |
| HOBOND | Hospital BOND | 0.1910887512 | $443,821 | $443,821 | $84.81 | | |
| HOGEN | Hospital GEN | 0.3902502903 | $443,821 | $443,821 | $173.20 | | |
| CE | County Current Expense | 0.3708482477 | $443,821 | $443,821 | $164.59 | | |
| ISLANDEMS | Hospital GEN (EMS) | 0.5000000000 | $443,821 | $443,821 | $221.91 | | |
| LIB | Library Sno-Isle GEN | 0.3153421757 | $443,821 | $443,821 | $139.96 | | |
| PORTWHID | Port of S Whidbey GEN | 0.1094540357 | $443,821 | $443,821 | $48.58 | | |
| SCH206BOND | School 206 BOND | 0.3161759235 | $443,821 | $443,821 | $140.33 | | |
| SCH206MO | School 206 Enrichment | 0.4547169547 | $443,821 | $443,821 | $201.81 | | |
| ST | State School | 1.3035497053 | $443,821 | $443,821 | $578.54 | | |
| ST2 | State School Part 2 | 0.8169543533 | $443,821 | $443,821 | $362.58 | | |
| SWHIDPRBD | P & R S Whidbey BOND | 0.0152817568 | $443,821 | $443,821 | $6.78 | | |
| SWHIDPRBD2 | P & R S Whidbey BOND2 | 0.0138911264 | $443,821 | $443,821 | $6.17 | | |
| SWHIDPRMT | P & R S Whidbey GEN | 0.2053334452 | $443,821 | $443,821 | $91.13 | | |
| | Total Tax Rate: | 8.2769389934 | | | | | |
| | | | | Taxes w/Current Exemptions: | $3,673.48 | | |
| | | | | Taxes w/o Exemptions: | $3,673.48 | | |
Improvement / Building
| Improvement #1: | RESIDENTIAL | State Code: | Y | 982.0 sqft | Value: | $173,821 |
| Bathrooms: | 1 | Bedrooms: | 2 | | Ceiling: | DRYWALL PAINTED | Cooling: | HEAT PUMP/CONV/V | | Exterior Wall/Cover: | SHINGLE | Floor Covering: | CARPET/VINYL 80-20 | | Floor Structure: | WOOD W/SUBFLOOR | Foundation: | CONCRETE | | Interior Finish: | DRYWALL PAINT | Plumbing Fixture Cnt: | 6 | | Roof Slope: | 8" IN 12" | Roof Structure/Cover: | CJ ALUMINIUM HEAVY |
|
| | Type | Description | Class CD | Sub Class CD | Year Built | Area |
| | BAS | BASE/MAIN FLOOR | 3 | 0 | 1932 | 982.0 |
| | OWR | OPEN WOOD PORCH W/STEPS/ROOF | 3 | 0 | 1932 | 144.0 |
Sketch
Property Image
Land
| 1 | 15 | SQ (12001-21780) | 0.0000 | 0.00 | 0.00 | 0.00 | 1.00 | $270,000 | $0 |
Roll Value History
| 2026 | N/A | N/A | N/A | N/A | N/A |
| 2025 | $173,821 | $270,000 | $0 | $443,821 | $443,821 |
| 2024 | $176,071 | $270,000 | $0 | $446,071 | $446,071 |
| 2023 | $178,321 | $270,000 | $0 | $448,321 | $448,321 |
| 2022 | $163,513 | $210,000 | $0 | $373,513 | $373,513 |
| 2021 | $143,957 | $180,000 | $0 | $323,957 | $323,957 |
| 2020 | $140,385 | $180,000 | $0 | $320,385 | $320,385 |
| 2019 | $100,144 | $200,000 | $0 | $300,144 | $300,144 |
| 2018 | $93,173 | $160,000 | $0 | $253,173 | $253,173 |
| 2017 | $93,745 | $160,000 | $0 | $253,745 | $71,655 |
| 2016 | $94,888 | $130,000 | $0 | $224,888 | $71,655 |
| 2015 | $96,031 | $130,000 | $0 | $226,031 | $71,655 |
| 2014 | $38,526 | $139,500 | $0 | $178,026 | $115,717 |
| 2013 | $39,638 | $139,500 | $0 | $179,138 | $116,440 |
| 2012 | $40,751 | $139,500 | $0 | $180,251 | $180,251 |
| 2011 | $41,863 | $155,000 | $0 | $196,863 | $196,863 |
| 2010 | $56,238 | $155,000 | $0 | $211,238 | $211,238 |
| 2009 | $59,038 | $100,000 | $0 | $159,038 | $159,038 |
| 2008 | $52,954 | $145,000 | $0 | $197,954 | $197,954 |
| 2007 | $52,954 | $145,000 | $0 | $197,954 | $197,954 |
Deed and Sales History
| 1 | 06/05/1998 | DECREE | Divorce Decree/Legal Separation | SAMPLE-HALBAKKEN, VICKI | HALBAKKEN, VICKI | | | $0.00 | 67874 | 0 |
| 2 | 06/01/1998 | OTHER | Other - Misc. Documents | HALBAKKEN, VICKI | HALBAKKEN, VICKI | | | $0.00 | 67874 | 0 |
| 3 | 04/01/1998 | OTHER | Other - Misc. Documents | Unknown | HALBAKKEN, VICKI | | | $0.00 | 67874 | 0 |
| 4 | 06/01/1993 | QCD | Quit Claim Deed | SAMPLE, KENNETH A | SAMPLE-HALBAKKEN, VICKI | | | $0.00 | 32013 | 93010419 |
| 5 | 09/01/1983 | WD | Warranty Deed | LACY, ALFRED R | SAMPLE, KENNETH A | | | $25,800.00 | 32757 | 415294 |
| 6 | 01/01/1900 | OTHER | Other - Misc. Documents | HALBAKKEN, VICKI | LACY, ALFRED R | | | $0.00 | 0 | 0 |
Payout Agreement
| No payout information available.. |