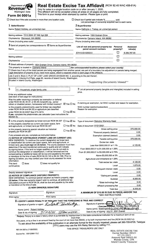
Property
Account |
| Property ID: | 122575 | Abbreviated Legal Description: | 113 - IN GL2: BG JCT SANDY PT RD & WILKINSON RD N4*E40 .51' TO CLN OF INTER MORRISON RD & WILKINSON RD S87*E230.85' N4*E17.27' TPB N87*W ALG NLN MORRISON RD 208.57' TO INTER/W ELN WILKINSON RD N6*E ALG SD ELN TO WLY TERM OF LN DESC BLA AGREE AF#90022552 S |
| Geographic ID: | R32902-410-3840 | Agent Code: | |
| Type: | Real | | |
| Tax Area: | 710 - APPRAISER-S Whid Schl Dist, outside Langley, improved & 1 acre or less | Land Use Code | 11 |
| Open Space: | N | DFL | N |
| Historic Property: | N | Remodel Property: | N |
| Multi-Family Redevelopment: | N | | |
| Township: | 29 | Section: | 02 |
| Range: | R3 |
Location |
| Address: | 4873 WILKINSON RD LANGLEY, WA 98260 | Mapsco: | |
| Neighborhood: | Cycle 4 | Map ID: | 722 |
| Neighborhood CD: | 4 |
Owner |
| Name: | SMITH, CHARLES ALBERT | Owner ID: | 92142 |
| Mailing Address: | JOYCE FAYE SMITH 4873 WILKINSON RD LANGLEY, WA 98260 | % Ownership: | 100.0000000000% |
| | | Exemptions: | |
Taxes and Assessment Details
Values
| (+) Improvement Homesite Value: | + | $0 | |
| (+) Improvement Non-Homesite Value: | + | $627,413 | |
| (+) Land Homesite Value: | + | $0 | |
| (+) Land Non-Homesite Value: | + | $250,000 | |
| (+) Curr Use (HS): | + | $0 | $0 |
| (+) Curr Use (NHS): | + | $0 | $0 |
| | | -------------------------- | |
| (=) Market Value: | = | $877,413 | |
| (–) Productivity Loss: | – | $0 | |
| | | -------------------------- | |
| (=) Subtotal: | = | $877,413 | |
| (+) Senior Appraised Value: | + | $0 | |
| (+) Non-Senior Appraised Value: | + | $877,413 | |
| | | -------------------------- | |
| (=) Total Appraised Value: | = | $877,413 | |
| (–) Senior Exemption Loss: | – | $0 | |
| (–) Exemption Loss: | – | $0 | |
| | | -------------------------- | |
| (=) Taxable Value: | = | $877,413 | |
Taxing Jurisdiction
| Owner: | SMITH, CHARLES ALBERT | | |
| % Ownership: | 100.0000000000% | | |
| Total Value: | $877,413 | | |
| Tax Area: | 710 - APPRAISER-S Whid Schl Dist, outside Langley, improved & 1 acre or less |
| CF | Conservation Futures | 0.0316035091 | $877,413 | $877,413 | $27.73 | | |
| FIRE3 | Fire & Rescue Dist #3 S Whidbey GEN | 1.2004855531 | $877,413 | $877,413 | $1,053.32 | | |
| HOBOND | Hospital BOND | 0.1910887512 | $877,413 | $877,413 | $167.66 | | |
| HOGEN | Hospital GEN | 0.3902502903 | $877,413 | $877,413 | $342.41 | | |
| CE | County Current Expense | 0.3708482477 | $877,413 | $877,413 | $325.39 | | |
| CR | County Roads | 0.4584763726 | $877,413 | $877,413 | $402.27 | | |
| ISLANDEMS | Hospital GEN (EMS) | 0.5000000000 | $877,413 | $877,413 | $438.71 | | |
| LIB | Library Sno-Isle GEN | 0.3153421757 | $877,413 | $877,413 | $276.69 | | |
| PORTWHID | Port of S Whidbey GEN | 0.1094540357 | $877,413 | $877,413 | $96.04 | | |
| SCH206BOND | School 206 BOND | 0.3161759235 | $877,413 | $877,413 | $277.42 | | |
| SCH206MO | School 206 Enrichment | 0.4547169547 | $877,413 | $877,413 | $398.97 | | |
| ST | State School | 1.3035497053 | $877,413 | $877,413 | $1,143.75 | | |
| ST2 | State School Part 2 | 0.8169543533 | $877,413 | $877,413 | $716.81 | | |
| SWHIDPRBD | P & R S Whidbey BOND | 0.0152817568 | $877,413 | $877,413 | $13.41 | | |
| SWHIDPRBD2 | P & R S Whidbey BOND2 | 0.0138911264 | $877,413 | $877,413 | $12.19 | | |
| SWHIDPRMT | P & R S Whidbey GEN | 0.2053334452 | $877,413 | $877,413 | $180.16 | | |
| | Total Tax Rate: | 6.6934522006 | | | | | |
| | | | | Taxes w/Current Exemptions: | $5,872.93 | | |
| | | | | Taxes w/o Exemptions: | $5,872.93 | | |
Improvement / Building
| Improvement #1: | RESIDENTIAL | State Code: | Y | 2843.0 sqft | Value: | $627,413 |
| Bathrooms: | 2.5 | Bedrooms: | 3 | | Ceiling: | DRYWALL PAINTED | Exterior Wall/Cover: | CEMENT FIBER | | Floor Covering: | TILE CERAMIC | Floor Structure: | WOOD W/SUBFLOOR | | Foundation: | CONCRETE | Heating: | RADIANT FLOOR | | Interior Finish: | DRYWALL PAINT | Plumbing Fixture Cnt: | 12 | | Roof Slope: | 5" IN 12" | Roof Structure/Cover: | CJ ALUMINIUM HEAVY |
|
| | Type | Description | Class CD | Sub Class CD | Year Built | Area |
| | BAS | BASE/MAIN FLOOR | 4 | 0 | 2013 | 1670.5 |
| | DWN | DOWNSTAIRS LIVING AREA | 4 | 0 | 2013 | 1172.5 |
| | BIG | BUILT IN GARAGE | 4 | 0 | 2013 | 513.0 |
| | OP4 | OPEN PORCH W/CEILING-ROOF | 4 | 0 | 2013 | 41.0 |
| | UTY | STORAGE/UTILITY | 4 | 0 | 2013 | 1078.0 |
| | UTY | STORAGE/UTILITY | 4 | 0 | 2013 | 240.0 |
Sketch
Property Image
Land
| 1 | 15 | SQ (12001-21780) | 0.0000 | 0.00 | 0.00 | 0.00 | 1.00 | $250,000 | $0 |
Roll Value History
| 2026 | N/A | N/A | N/A | N/A | N/A |
| 2025 | $627,413 | $250,000 | $0 | $877,413 | $877,413 |
| 2024 | $632,248 | $230,000 | $0 | $862,248 | $862,248 |
| 2023 | $637,431 | $230,000 | $0 | $867,431 | $228,079 |
| 2022 | $581,905 | $210,000 | $0 | $791,905 | $228,079 |
| 2021 | $510,071 | $150,000 | $0 | $660,071 | $228,079 |
| 2020 | $450,197 | $120,000 | $0 | $570,197 | $228,079 |
| 2019 | $359,356 | $170,000 | $0 | $529,356 | $529,356 |
| 2018 | $291,121 | $130,000 | $0 | $421,121 | $421,121 |
| 2017 | $292,636 | $120,000 | $0 | $412,636 | $165,054 |
| 2016 | $295,666 | $120,000 | $0 | $415,666 | $166,266 |
| 2015 | $298,696 | $139,500 | $0 | $438,196 | $175,278 |
| 2014 | $272,033 | $139,500 | $0 | $411,533 | $164,613 |
| 2013 | $225,618 | $139,500 | $0 | $365,118 | $146,047 |
| 2012 | $33,760 | $139,500 | $0 | $173,260 | $173,260 |
| 2011 | $34,630 | $155,000 | $0 | $189,630 | $189,630 |
| 2010 | $25,174 | $155,000 | $0 | $180,174 | $180,174 |
| 2009 | $25,679 | $100,000 | $0 | $125,679 | $125,679 |
| 2008 | $28,507 | $95,436 | $0 | $123,943 | $123,943 |
| 2007 | $47,071 | $76,800 | $0 | $123,871 | $123,871 |
Deed and Sales History
| 1 | 12/10/2004 | WD | Warranty Deed | TIEN, SARAH | SMITH, CHARLES ALBERT | | | $176,000.00 | 45787 | 4120555 |
| 2 | 07/16/1997 | ESTSEPPROP | Establish Separate Property | TIEN, SARAH | TIEN, SARAH | | | $0.00 | 74439 | 97021234 |
| 3 | 07/01/1997 | WD | Warranty Deed | TIEN, SARAH | TIEN, SARAH | | | $100,000.00 | 72366 | 97011143 |
| 4 | 07/01/1997 | ESTSEPPROP | Establish Separate Property | BLAIR, E J | TIEN, SARAH | | | $0.00 | 72368 | 97011145 |
| 5 | 01/01/1900 | OTHER | Other - Misc. Documents | Unknown | BLAIR, E J | | | $0.00 | 0 | 0 |
Payout Agreement
| No payout information available.. |