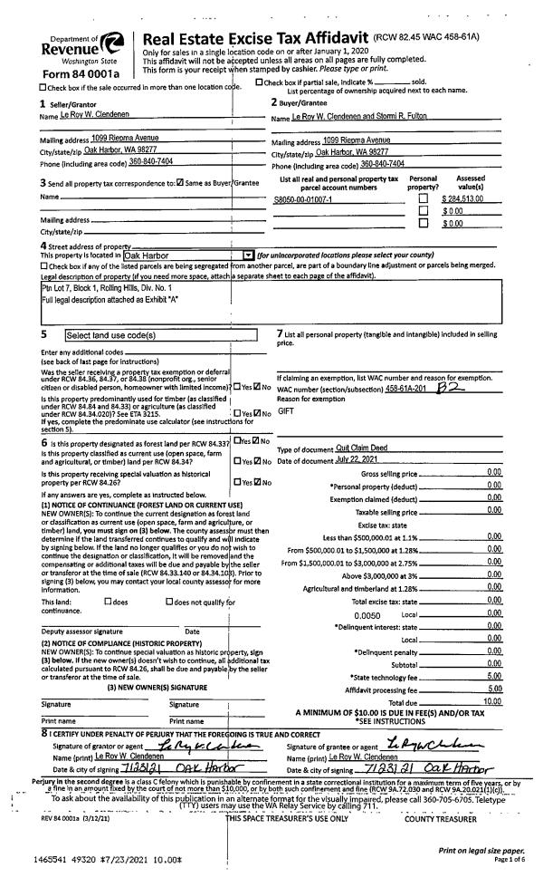
Property
Account |
| Property ID: | 122664 | Abbreviated Legal Description: | S20' & ELY 110' OF S100' OF FOLL DESC TR: PT GL2 DESC: BG SECR ANNIE MORRISON TR V6 SUR P414 N4*E218.22' TPB N4*E195.78' N85*W ALG BDRY AF#89000305 TO ELN WILKINSON RD SLY TO LN N86*W FR TPB S86*E ALG BDRY AF#90022552 TPB |
| Geographic ID: | R32902-419-3850 | Agent Code: | |
| Type: | Real | | |
| Tax Area: | 710 - APPRAISER-S Whid Schl Dist, outside Langley, improved & 1 acre or less | Land Use Code | 11 |
| Open Space: | N | DFL | N |
| Historic Property: | N | Remodel Property: | N |
| Multi-Family Redevelopment: | N | | |
| Township: | 29 | Section: | 02 |
| Range: | R3 |
Location |
| Address: | 4865 WILKINSON RD LANGLEY, WA 98260 | Mapsco: | |
| Neighborhood: | Cycle 4 | Map ID: | 722 |
| Neighborhood CD: | 4 |
Owner |
| Name: | MICHAEL ROSENTHAL | Owner ID: | 251524 |
| Mailing Address: | JANELLE TAYLOR 136 MAJOR ST TORONTO, ON M5S 2L2 | % Ownership: | 100.0000000000% |
| | | Exemptions: | |
Taxes and Assessment Details
Values
| (+) Improvement Homesite Value: | + | $0 | |
| (+) Improvement Non-Homesite Value: | + | $232,529 | |
| (+) Land Homesite Value: | + | $0 | |
| (+) Land Non-Homesite Value: | + | $400,000 | |
| (+) Curr Use (HS): | + | $0 | $0 |
| (+) Curr Use (NHS): | + | $0 | $0 |
| | | -------------------------- | |
| (=) Market Value: | = | $632,529 | |
| (–) Productivity Loss: | – | $0 | |
| | | -------------------------- | |
| (=) Subtotal: | = | $632,529 | |
| (+) Senior Appraised Value: | + | $0 | |
| (+) Non-Senior Appraised Value: | + | $632,529 | |
| | | -------------------------- | |
| (=) Total Appraised Value: | = | $632,529 | |
| (–) Senior Exemption Loss: | – | $0 | |
| (–) Exemption Loss: | – | $0 | |
| | | -------------------------- | |
| (=) Taxable Value: | = | $632,529 | |
Taxing Jurisdiction
| Owner: | MICHAEL ROSENTHAL | | |
| % Ownership: | 100.0000000000% | | |
| Total Value: | $632,529 | | |
| Tax Area: | 710 - APPRAISER-S Whid Schl Dist, outside Langley, improved & 1 acre or less |
| CF | Conservation Futures | 0.0316035091 | $632,529 | $632,529 | $19.99 | | |
| FIRE3 | Fire & Rescue Dist #3 S Whidbey GEN | 1.2004855531 | $632,529 | $632,529 | $759.34 | | |
| HOBOND | Hospital BOND | 0.1910887512 | $632,529 | $632,529 | $120.87 | | |
| HOGEN | Hospital GEN | 0.3902502903 | $632,529 | $632,529 | $246.84 | | |
| CE | County Current Expense | 0.3708482477 | $632,529 | $632,529 | $234.57 | | |
| CR | County Roads | 0.4584763726 | $632,529 | $632,529 | $290.00 | | |
| ISLANDEMS | Hospital GEN (EMS) | 0.5000000000 | $632,529 | $632,529 | $316.26 | | |
| LIB | Library Sno-Isle GEN | 0.3153421757 | $632,529 | $632,529 | $199.46 | | |
| PORTWHID | Port of S Whidbey GEN | 0.1094540357 | $632,529 | $632,529 | $69.23 | | |
| SCH206BOND | School 206 BOND | 0.3161759235 | $632,529 | $632,529 | $199.99 | | |
| SCH206MO | School 206 Enrichment | 0.4547169547 | $632,529 | $632,529 | $287.62 | | |
| ST | State School | 1.3035497053 | $632,529 | $632,529 | $824.53 | | |
| ST2 | State School Part 2 | 0.8169543533 | $632,529 | $632,529 | $516.75 | | |
| SWHIDPRBD | P & R S Whidbey BOND | 0.0152817568 | $632,529 | $632,529 | $9.67 | | |
| SWHIDPRBD2 | P & R S Whidbey BOND2 | 0.0138911264 | $632,529 | $632,529 | $8.79 | | |
| SWHIDPRMT | P & R S Whidbey GEN | 0.2053334452 | $632,529 | $632,529 | $129.88 | | |
| | Total Tax Rate: | 6.6934522006 | | | | | |
| | | | | Taxes w/Current Exemptions: | $4,233.79 | | |
| | | | | Taxes w/o Exemptions: | $4,233.79 | | |
Improvement / Building
| Improvement #1: | RESIDENTIAL | State Code: | Y | 1212.0 sqft | Value: | $232,529 |
| Bathrooms: | 2 | Bedrooms: | 2 | | Ceiling: | TONGUE & GROOVE | Exterior Wall/Cover: | WOOD SIDING | | Floor Covering: | SOFTWOOD/VINYL 80-20 | Floor Structure: | WOOD W/SUBFLOOR | | Foundation: | CONCRETE | Heating: | WALL HEAT ELECTRIC | | Interior Finish: | DRYWALL PAINT | Plumbing Fixture Cnt: | 10 | | Roof Slope: | 12" IN 12" | Roof Structure/Cover: | CJ ASPHALT |
|
| | Type | Description | Class CD | Sub Class CD | Year Built | Area |
| | BAS | BASE/MAIN FLOOR | 3 | 0 | 1992 | 732.0 |
| | UPS | UPPER STORY | 3 | 0 | 1992 | 480.0 |
| | OWP | OPEN WOOD PORCH W/STEPS | 3 | 0 | 1992 | 388.0 |
Sketch
Property Image
Land
| 1 | 15 | SQ (12001-21780) | 0.0000 | 0.00 | 0.00 | 0.00 | 1.00 | $400,000 | $0 |
Roll Value History
| 2026 | N/A | N/A | N/A | N/A | N/A |
| 2025 | $232,529 | $400,000 | $0 | $632,529 | $632,529 |
| 2024 | $235,462 | $380,000 | $0 | $615,462 | $615,462 |
| 2023 | $238,397 | $360,000 | $0 | $598,397 | $598,397 |
| 2022 | $218,530 | $330,000 | $0 | $548,530 | $548,530 |
| 2021 | $192,336 | $280,000 | $0 | $472,336 | $472,336 |
| 2020 | $173,626 | $260,000 | $0 | $433,626 | $433,626 |
| 2019 | $123,288 | $290,000 | $0 | $413,288 | $413,288 |
| 2018 | $123,666 | $220,000 | $0 | $343,666 | $343,666 |
| 2017 | $124,425 | $180,000 | $0 | $304,425 | $304,425 |
| 2016 | $125,943 | $150,000 | $0 | $275,943 | $275,943 |
| 2015 | $127,460 | $180,000 | $0 | $307,460 | $307,460 |
| 2014 | $120,601 | $180,000 | $0 | $300,601 | $300,601 |
| 2013 | $122,125 | $180,000 | $0 | $302,125 | $302,125 |
| 2012 | $123,648 | $180,000 | $0 | $303,648 | $303,648 |
| 2011 | $125,172 | $200,000 | $0 | $325,172 | $325,172 |
| 2010 | $131,134 | $200,000 | $0 | $331,134 | $331,134 |
| 2009 | $136,741 | $240,000 | $0 | $376,741 | $376,741 |
| 2008 | $132,035 | $246,500 | $0 | $378,535 | $378,535 |
| 2007 | $133,649 | $246,500 | $0 | $380,149 | $380,149 |
Deed and Sales History
| 1 | 06/30/2010 | WD | Warranty Deed | ZIGLIARA, ALEXANDRE | ROSENTHAL, MICHAEL | | | $394,900.00 | 1708 | 4276909 |
| 2 | 09/24/2004 | WD | Warranty Deed | GALFER, BARRY M | ZIGLIARA, ALEXANDRE | | | $305,000.00 | 44631 | 4114371 |
| 3 | 07/01/1997 | ESTSEPPROP | Establish Separate Property | GALFER, BARRY M | GALFER, BARRY M | | | $0.00 | 74440 | 97021235 |
| 4 | 08/01/1994 | WD | Warranty Deed | DEMUTH, HARLAN V | GALFER, BARRY M | | | $152,500.00 | 43221 | 94017338 |
| 5 | 07/01/1991 | OTHER | Other - Misc. Documents | DEMUTH, HARLAN V | DEMUTH, HARLAN V | | | $0.00 | 64314 | 91009837 |
| 6 | 01/01/1991 | OTHER | Other - Misc. Documents | DEMUTH, HARLAN V | DEMUTH, HARLAN V | | | $0.00 | 64054 | 91000754 |
| 7 | 08/01/1990 | WD | Warranty Deed | WHITTLESEY, WILLIAM C | DEMUTH, HARLAN V | | | $45,000.00 | 4751 | 90015678 |
| 8 | 03/01/1979 | OTHER | Other - Misc. Documents | Unknown | WHITTLESEY, WILLIAM C | | | $16,500.00 | 91808 | 351143 |
Payout Agreement
| No payout information available.. |