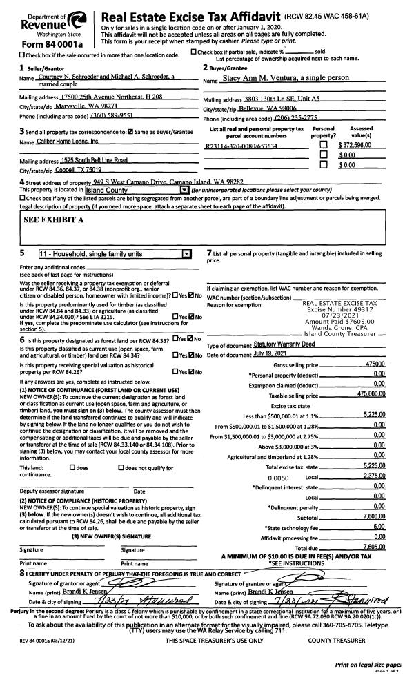
Property
Account |
| Property ID: | 122922 | Abbreviated Legal Description: | 3 - IN GL 2:BG NE CR TR 76D638 N4*E238'M/L TO SLN SANDY PT RD WLY ALG SLN RD 165' S4*W230'M/L N85*W TPB EX RDS |
| Geographic ID: | R32902-440-4050 | Agent Code: | |
| Type: | Real | | |
| Tax Area: | 710 - APPRAISER-S Whid Schl Dist, outside Langley, improved & 1 acre or less | Land Use Code | 11 |
| Open Space: | N | DFL | N |
| Historic Property: | N | Remodel Property: | N |
| Multi-Family Redevelopment: | N | | |
| Township: | 29 | Section: | 02 |
| Range: | R3 |
Location |
| Address: | 4276 WATEREDGE DR LANGLEY, WA 98260 | Mapsco: | |
| Neighborhood: | Cycle 4 | Map ID: | 722 |
| Neighborhood CD: | 4 |
Owner |
| Name: | DREW, BILLYE L | Owner ID: | 292754 |
| Mailing Address: | 4276 WATEREDGE DR LANGLEY, WA 98260 | % Ownership: | 100.0000000000% |
| | | Exemptions: | |
Taxes and Assessment Details
Values
| (+) Improvement Homesite Value: | + | $0 | |
| (+) Improvement Non-Homesite Value: | + | $536,055 | |
| (+) Land Homesite Value: | + | $0 | |
| (+) Land Non-Homesite Value: | + | $410,000 | |
| (+) Curr Use (HS): | + | $0 | $0 |
| (+) Curr Use (NHS): | + | $0 | $0 |
| | | -------------------------- | |
| (=) Market Value: | = | $946,055 | |
| (–) Productivity Loss: | – | $0 | |
| | | -------------------------- | |
| (=) Subtotal: | = | $946,055 | |
| (+) Senior Appraised Value: | + | $0 | |
| (+) Non-Senior Appraised Value: | + | $946,055 | |
| | | -------------------------- | |
| (=) Total Appraised Value: | = | $946,055 | |
| (–) Senior Exemption Loss: | – | $0 | |
| (–) Exemption Loss: | – | $0 | |
| | | -------------------------- | |
| (=) Taxable Value: | = | $946,055 | |
Taxing Jurisdiction
| Owner: | DREW, BILLYE L | | |
| % Ownership: | 100.0000000000% | | |
| Total Value: | $946,055 | | |
| Tax Area: | 710 - APPRAISER-S Whid Schl Dist, outside Langley, improved & 1 acre or less |
| CF | Conservation Futures | 0.0316035091 | $946,055 | $946,055 | $29.90 | | |
| FIRE3 | Fire & Rescue Dist #3 S Whidbey GEN | 1.2004855531 | $946,055 | $946,055 | $1,135.73 | | |
| HOBOND | Hospital BOND | 0.1910887512 | $946,055 | $946,055 | $180.78 | | |
| HOGEN | Hospital GEN | 0.3902502903 | $946,055 | $946,055 | $369.20 | | |
| CE | County Current Expense | 0.3708482477 | $946,055 | $946,055 | $350.84 | | |
| CR | County Roads | 0.4584763726 | $946,055 | $946,055 | $433.74 | | |
| ISLANDEMS | Hospital GEN (EMS) | 0.5000000000 | $946,055 | $946,055 | $473.03 | | |
| LIB | Library Sno-Isle GEN | 0.3153421757 | $946,055 | $946,055 | $298.33 | | |
| PORTWHID | Port of S Whidbey GEN | 0.1094540357 | $946,055 | $946,055 | $103.55 | | |
| SCH206BOND | School 206 BOND | 0.3161759235 | $946,055 | $946,055 | $299.12 | | |
| SCH206MO | School 206 Enrichment | 0.4547169547 | $946,055 | $946,055 | $430.19 | | |
| ST | State School | 1.3035497053 | $946,055 | $946,055 | $1,233.23 | | |
| ST2 | State School Part 2 | 0.8169543533 | $946,055 | $946,055 | $772.88 | | |
| SWHIDPRBD | P & R S Whidbey BOND | 0.0152817568 | $946,055 | $946,055 | $14.46 | | |
| SWHIDPRBD2 | P & R S Whidbey BOND2 | 0.0138911264 | $946,055 | $946,055 | $13.14 | | |
| SWHIDPRMT | P & R S Whidbey GEN | 0.2053334452 | $946,055 | $946,055 | $194.26 | | |
| | Total Tax Rate: | 6.6934522006 | | | | | |
| | | | | Taxes w/Current Exemptions: | $6,332.38 | | |
| | | | | Taxes w/o Exemptions: | $6,332.38 | | |
Improvement / Building
| Improvement #1: | RESIDENTIAL | State Code: | Y | 2972.0 sqft | Value: | $536,055 |
| Bathrooms: | 3 | Bedrooms: | 3 | | Ceiling: | DRYWALL PAINTED | Exterior Wall/Cover: | WOOD SIDING | | Floor Covering: | HARDWOOD/CARP 60-40 | Floor Structure: | WOOD W/SUBFLOOR | | Foundation: | CONCRETE | Heating: | FHA OIL | | Interior Finish: | DRYWALL PAINT | Plumbing Fixture Cnt: | 12 | | Roof Slope: | 8" IN 12" | Roof Structure/Cover: | CJ ASPHALT |
|
| | Type | Description | Class CD | Sub Class CD | Year Built | Area |
| | BAS | BASE/MAIN FLOOR | 4 | 0 | 1941 | 1859.3 |
| | UTY | STORAGE/UTILITY | 4 | 0 | 1941 | 251.0 |
| | UPS | UPPER STORY | 4 | 0 | 1941 | 1112.7 |
| | OWP | OPEN WOOD PORCH W/STEPS | 4 | 0 | 1941 | 215.9 |
| | OWP | OPEN WOOD PORCH W/STEPS | 4 | 0 | 1941 | 414.6 |
| | OWC | OPEN WOOD PORCH W/STEPS/ROOF/C | 4 | 0 | 1941 | 225.7 |
| | CPD | OPEN CARPORT DIRT FLOOR | 4 | 0 | 1941 | 400.0 |
| | DGR | DETACHED GARAGE | 4 | 0 | 1941 | 440.0 |
| | CPD | OPEN CARPORT DIRT FLOOR | 4 | 0 | 1941 | 504.0 |
| | ENP | ENCLOSED PORCH | 4 | 0 | 1941 | 140.0 |
Sketch
Property Image
Land
| 1 | 16 | AC (00.51-01.00) | 0.0000 | 0.00 | 0.00 | 0.00 | 1.00 | $410,000 | $0 |
Roll Value History
| 2026 | N/A | N/A | N/A | N/A | N/A |
| 2025 | $536,055 | $410,000 | $0 | $946,055 | $946,055 |
| 2024 | $542,819 | $390,000 | $0 | $932,819 | $932,819 |
| 2023 | $549,583 | $360,000 | $0 | $909,583 | $909,583 |
| 2022 | $503,780 | $350,000 | $0 | $853,780 | $853,780 |
| 2021 | $443,404 | $280,000 | $0 | $723,404 | $723,404 |
| 2020 | $367,604 | $260,000 | $0 | $627,604 | $627,604 |
| 2019 | $298,227 | $290,000 | $0 | $588,227 | $588,227 |
| 2018 | $299,111 | $240,000 | $0 | $539,111 | $539,111 |
| 2017 | $300,866 | $180,000 | $0 | $480,866 | $480,866 |
| 2016 | $304,407 | $180,000 | $0 | $484,407 | $484,407 |
| 2015 | $307,949 | $180,000 | $0 | $487,949 | $487,949 |
| 2014 | $306,412 | $180,000 | $0 | $486,412 | $486,412 |
| 2013 | $309,805 | $180,000 | $0 | $489,805 | $489,805 |
| 2012 | $313,198 | $180,000 | $0 | $493,198 | $493,198 |
| 2011 | $316,591 | $200,000 | $0 | $516,591 | $516,591 |
| 2010 | $335,640 | $200,000 | $0 | $535,640 | $535,640 |
| 2009 | $349,631 | $290,000 | $0 | $639,631 | $639,631 |
| 2008 | $351,893 | $290,000 | $0 | $641,893 | $641,893 |
| 2007 | $338,868 | $290,000 | $0 | $628,868 | $628,868 |
Deed and Sales History
| 1 | 11/21/2019 | PRD | Personal Representatives Deed | DREW, MIKE R | DREW, BILLYE L | | | $0.00 | 41309 | 4476701 |
| 2 | 05/22/2000 | WD | Warranty Deed | MOSER, ALSON J | DREW, MIKE R | | | $315,000.00 | 1959 | 20009425 |
| 3 | 01/01/1900 | OTHER | Other - Misc. Documents | Unknown | MOSER, ALSON J | | | $0.00 | 0 | 0 |
Payout Agreement
| No payout information available.. |