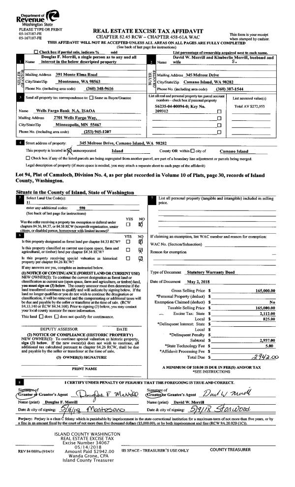
Property
Account |
| Property ID: | 123146 | Abbreviated Legal Description: | 40 - N1/2 NW SE SE |
| Geographic ID: | R32903-122-4630 | Agent Code: | |
| Type: | Real | | |
| Tax Area: | 712 - APPRAISER-S Whid Schl Dist, outside Langley, improved, greater than 1 acre | Land Use Code | 11 |
| Open Space: | N | DFL | N |
| Historic Property: | N | Remodel Property: | N |
| Multi-Family Redevelopment: | N | | |
| Township: | 29 | Section: | 03 |
| Range: | R3 |
Location |
| Address: | 5106 LANGLEY RD LANGLEY, WA 98260 | Mapsco: | |
| Neighborhood: | Cycle 4 | Map ID: | 724 |
| Neighborhood CD: | 4 |
Owner |
| Name: | SCHMITZ, MICHAEL | Owner ID: | 286016 |
| Mailing Address: | LIA SCHMITZ 5106 LANGLEY RD LANGLEY, WA 98260 | % Ownership: | 100.0000000000% |
| | | Exemptions: | |
Taxes and Assessment Details
Values
| (+) Improvement Homesite Value: | + | $0 | |
| (+) Improvement Non-Homesite Value: | + | $376,262 | |
| (+) Land Homesite Value: | + | $0 | |
| (+) Land Non-Homesite Value: | + | $370,000 | |
| (+) Curr Use (HS): | + | $0 | $0 |
| (+) Curr Use (NHS): | + | $0 | $0 |
| | | -------------------------- | |
| (=) Market Value: | = | $746,262 | |
| (–) Productivity Loss: | – | $0 | |
| | | -------------------------- | |
| (=) Subtotal: | = | $746,262 | |
| (+) Senior Appraised Value: | + | $0 | |
| (+) Non-Senior Appraised Value: | + | $746,262 | |
| | | -------------------------- | |
| (=) Total Appraised Value: | = | $746,262 | |
| (–) Senior Exemption Loss: | – | $0 | |
| (–) Exemption Loss: | – | $0 | |
| | | -------------------------- | |
| (=) Taxable Value: | = | $746,262 | |
Taxing Jurisdiction
| Owner: | SCHMITZ, MICHAEL | | |
| % Ownership: | 100.0000000000% | | |
| Total Value: | $746,262 | | |
| Tax Area: | 712 - APPRAISER-S Whid Schl Dist, outside Langley, improved, greater than 1 acre |
| CF | Conservation Futures | 0.0316035091 | $746,262 | $746,262 | $23.58 | | |
| FIRE3 | Fire & Rescue Dist #3 S Whidbey GEN | 1.2004855531 | $746,262 | $746,262 | $895.88 | | |
| HOBOND | Hospital BOND | 0.1910887512 | $746,262 | $746,262 | $142.60 | | |
| HOGEN | Hospital GEN | 0.3902502903 | $746,262 | $746,262 | $291.23 | | |
| CE | County Current Expense | 0.3708482477 | $746,262 | $746,262 | $276.75 | | |
| CR | County Roads | 0.4584763726 | $746,262 | $746,262 | $342.14 | | |
| ISLANDEMS | Hospital GEN (EMS) | 0.5000000000 | $746,262 | $746,262 | $373.13 | | |
| LIB | Library Sno-Isle GEN | 0.3153421757 | $746,262 | $746,262 | $235.33 | | |
| PORTWHID | Port of S Whidbey GEN | 0.1094540357 | $746,262 | $746,262 | $81.68 | | |
| SCH206BOND | School 206 BOND | 0.3161759235 | $746,262 | $746,262 | $235.95 | | |
| SCH206MO | School 206 Enrichment | 0.4547169547 | $746,262 | $746,262 | $339.34 | | |
| ST | State School | 1.3035497053 | $746,262 | $746,262 | $972.79 | | |
| ST2 | State School Part 2 | 0.8169543533 | $746,262 | $746,262 | $609.66 | | |
| SWHIDPRBD | P & R S Whidbey BOND | 0.0152817568 | $746,262 | $746,262 | $11.40 | | |
| SWHIDPRBD2 | P & R S Whidbey BOND2 | 0.0138911264 | $746,262 | $746,262 | $10.37 | | |
| SWHIDPRMT | P & R S Whidbey GEN | 0.2053334452 | $746,262 | $746,262 | $153.23 | | |
| | Total Tax Rate: | 6.6934522006 | | | | | |
| | | | | Taxes w/Current Exemptions: | $4,995.06 | | |
| | | | | Taxes w/o Exemptions: | $4,995.06 | | |
Improvement / Building
| Improvement #1: | RESIDENTIAL | State Code: | Y | 2049.5 sqft | Value: | $376,262 |
| Bathrooms: | 2 | Bedrooms: | 3 | | Ceiling: | DRYWALL PAINTED | Cooling: | HEAT PUMP/CONV/V | | Exterior Wall/Cover: | PLY/HARDBOARD T-111 | Floor Covering: | HARDWOOD 100% | | Floor Structure: | WOOD W/SUBFLOOR | Foundation: | CONCRETE | | Interior Finish: | DRYWALL PAINT | Plumbing Fixture Cnt: | 10 | | Roof Slope: | 10" IN 12" | Roof Structure/Cover: | CJ METAL |
|
| | Type | Description | Class CD | Sub Class CD | Year Built | Area |
| | BAS | BASE/MAIN FLOOR | 3 | 0 | 2024 | 1200.0 |
| | UPH | HALF STORY | 3 | 0 | 2024 | 849.5 |
| | OWP | OPEN WOOD PORCH W/STEPS | 3 | 0 | 2024 | 200.0 |
Sketch
Property Image
Land
| 1 | 32 | AC (03.01-09.99) | 5.0000 | 0.00 | 0.00 | 0.00 | 1.00 | $370,000 | $0 |
Roll Value History
| 2026 | N/A | N/A | N/A | N/A | N/A |
| 2025 | $376,262 | $370,000 | $0 | $746,262 | $746,262 |
| 2024 | $100,155 | $230,000 | $0 | $330,155 | $330,155 |
| 2023 | $3,995 | $180,000 | $0 | $183,995 | $183,995 |
| 2022 | $3,995 | $170,000 | $0 | $173,995 | $173,995 |
| 2021 | $3,995 | $150,000 | $0 | $153,995 | $153,995 |
| 2020 | $3,995 | $150,000 | $0 | $153,995 | $153,995 |
| 2019 | $3,995 | $135,000 | $0 | $138,995 | $138,995 |
| 2018 | $3,995 | $130,000 | $0 | $133,995 | $133,995 |
| 2017 | $3,995 | $130,000 | $0 | $133,995 | $133,995 |
| 2016 | $0 | $130,000 | $0 | $130,000 | $130,000 |
| 2015 | $0 | $100,000 | $0 | $100,000 | $100,000 |
| 2014 | $0 | $135,000 | $0 | $135,000 | $135,000 |
| 2013 | $0 | $135,000 | $0 | $135,000 | $135,000 |
| 2012 | $0 | $135,000 | $0 | $135,000 | $135,000 |
| 2011 | $0 | $135,000 | $0 | $135,000 | $135,000 |
| 2010 | $0 | $135,000 | $0 | $135,000 | $135,000 |
| 2009 | $0 | $170,000 | $0 | $170,000 | $170,000 |
| 2008 | $0 | $170,000 | $0 | $170,000 | $170,000 |
| 2007 | $0 | $150,000 | $0 | $150,000 | $150,000 |
Deed and Sales History
| 1 | 07/11/2018 | WD | Warranty Deed | POECHLAUER TRUSTEE, KURT | SCHMITZ, MICHAEL | | | $260,000.00 | 34994 | 4447995 |
|   | |
| 2 | 03/29/2017 | WD | Warranty Deed | DAY, ROBERT | POECHLAUER TRUSTEE, KURT | | | $0.00 | 28743 | 4420210 |
| 3 | 03/29/2017 | WD | Warranty Deed | DAY, ROBERT | POECHLAUER TRUSTEE, KURT | | | $260,000.00 | 28680 | 4419892 |
|   | |
Payout Agreement
| No payout information available.. |