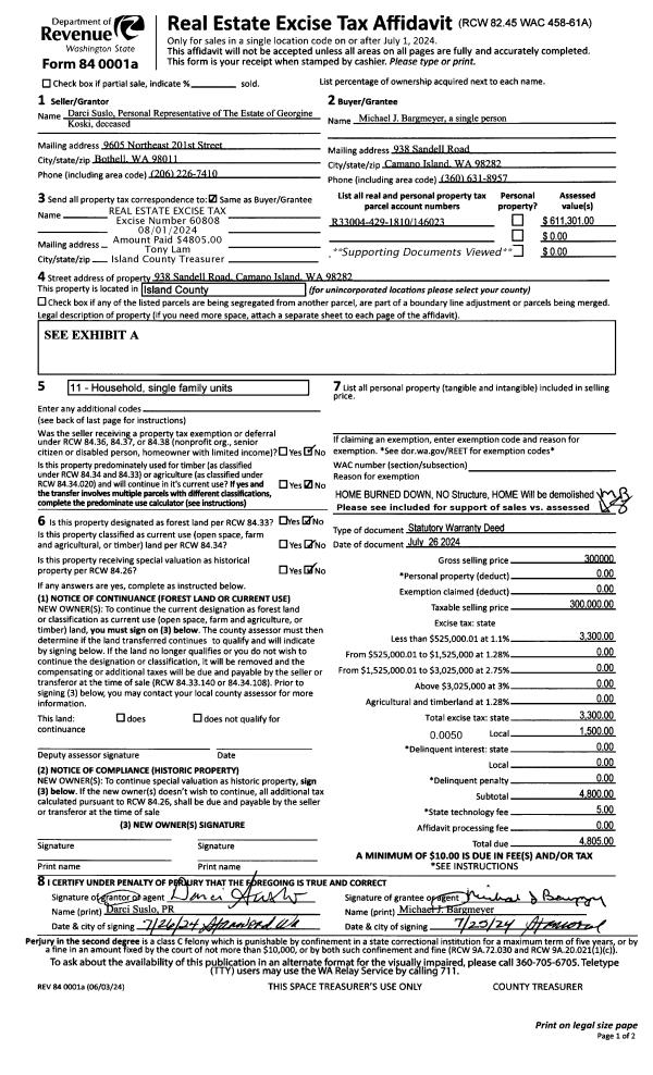
Property
Account |
| Property ID: | 12328 | Abbreviated Legal Description: | 19 SUM DC BG NE CR FRND DC S1258.7' E20' TPB S89*E338. 41' S31*W178.85' N89*W245. 32' N152.76' TPB EX W205.78 MEAS ALG NLN ALSO:BG NE CR FRND DC S1258.7' S89*E200. 78' TPB S89*E25' S152.76' N89*W25' N152.76' TPB |
| Geographic ID: | R13202-462-0450 | Agent Code: | |
| Type: | Real | | |
| Tax Area: | 100 - APPRAISER-OH Schl Dist, in OH | Land Use Code | 65 |
| Open Space: | N | DFL | N |
| Historic Property: | N | Remodel Property: | N |
| Multi-Family Redevelopment: | N | | |
| Township: | 32 | Section: | 02 |
| Range: | R1 |
Location |
| Address: | 31955 SR20 OAK HARBOR, WA 98277 | Mapsco: | |
| Neighborhood: | 16cOH-highway 20 | Map ID: | 88 |
| Neighborhood CD: | 16cOHhwy20 |
Owner |
| Name: | 31955 SR 20, LLC | Owner ID: | 280543 |
| Mailing Address: | PO BOX 597 COUPEVILLE, WA 98239 | % Ownership: | 100.0000000000% |
| | | Exemptions: | |
Taxes and Assessment Details
Values
| (+) Improvement Homesite Value: | + | $0 | |
| (+) Improvement Non-Homesite Value: | + | $377,761 | |
| (+) Land Homesite Value: | + | $0 | |
| (+) Land Non-Homesite Value: | + | $339,768 | |
| (+) Curr Use (HS): | + | $0 | $0 |
| (+) Curr Use (NHS): | + | $0 | $0 |
| | | -------------------------- | |
| (=) Market Value: | = | $717,529 | |
| (–) Productivity Loss: | – | $0 | |
| | | -------------------------- | |
| (=) Subtotal: | = | $717,529 | |
| (+) Senior Appraised Value: | + | $0 | |
| (+) Non-Senior Appraised Value: | + | $717,529 | |
| | | -------------------------- | |
| (=) Total Appraised Value: | = | $717,529 | |
| (–) Senior Exemption Loss: | – | $0 | |
| (–) Exemption Loss: | – | $0 | |
| | | -------------------------- | |
| (=) Taxable Value: | = | $717,529 | |
Taxing Jurisdiction
| Owner: | 31955 SR 20, LLC | | |
| % Ownership: | 100.0000000000% | | |
| Total Value: | $717,529 | | |
| Tax Area: | 100 - APPRAISER-OH Schl Dist, in OH |
| CF | Conservation Futures | 0.0316035091 | $717,529 | $717,529 | $22.68 | | |
| CEM1 | Cemetery #1 | 0.0040320932 | $717,529 | $717,529 | $2.89 | | |
| COH | City of Oak Harbor | 2.3001546061 | $717,529 | $717,529 | $1,650.43 | | |
| OAKBOND | City of Oak Harbor BOND | 0.1926904192 | $717,529 | $717,529 | $138.26 | | |
| HOBOND | Hospital BOND | 0.1910887512 | $717,529 | $717,529 | $137.11 | | |
| HOGEN | Hospital GEN | 0.3902502903 | $717,529 | $717,529 | $280.02 | | |
| CE | County Current Expense | 0.3708482477 | $717,529 | $717,529 | $266.09 | | |
| ISLANDEMS | Hospital GEN (EMS) | 0.5000000000 | $717,529 | $717,529 | $358.76 | | |
| LIB | Library Sno-Isle GEN | 0.3153421757 | $717,529 | $717,529 | $226.27 | | |
| NWHIDPRMT | P & R N Whidbey GEN | 0.2004466701 | $717,529 | $717,529 | $143.83 | | |
| SCH201MO | School 201 Enrichment | 1.8559231640 | $717,529 | $717,529 | $1,331.68 | | |
| ST | State School | 1.3035497053 | $717,529 | $717,529 | $935.33 | | |
| ST2 | State School Part 2 | 0.8169543533 | $717,529 | $717,529 | $586.19 | | |
| | Total Tax Rate: | 8.4728839852 | | | | | |
| | | | | Taxes w/Current Exemptions: | $6,079.54 | | |
| | | | | Taxes w/o Exemptions: | $6,079.54 | | |
Improvement / Building
| Improvement #1: | COMMERCIAL | State Code: | Y | 3792.0 sqft | Value: | $377,761 |
| Bathrooms: | 0 | Ceiling: | SUSPENDED | | Cooling: | HEAT PUMP/CONV/V | Exterior Wall/Cover: | WD/WD OR STEEL STUDS | | Floor Covering: | CARPET 100% | Floor Structure: | CONCRETE ON GROUND | | Foundation: | SLAB | Interior Finish: | OFFICE | | Plumbing Fixture Cnt: | 1 | Roof Structure/Cover: | BEAM BUILT-UP ROCK |
|
| | Type | Description | Class CD | Sub Class CD | Year Built | Area |
| | BAS | BASE/MAIN FLOOR | 2 | 0 | 1978 | 3792.0 |
| | OP1 | OPEN PORCH SLAB | 2 | 0 | 1978 | 375.0 |
| | oPV1 | PV/ASPH 2" | 2 | 0 | 1978 | 11320.0 |
Sketch
Property Image
Land
| 1 | 64 | PERSONAL BUSINESS | 0.3900 | 16988.40 | 0.00 | 0.00 | 1.00 | $339,768 | $0 |
Roll Value History
| 2026 | N/A | N/A | N/A | N/A | N/A |
| 2025 | $377,761 | $339,768 | $0 | $717,529 | $717,529 |
| 2024 | $390,118 | $339,768 | $0 | $729,886 | $729,886 |
| 2023 | $409,003 | $339,768 | $0 | $748,771 | $748,771 |
| 2022 | $330,308 | $339,768 | $0 | $670,076 | $670,076 |
| 2021 | $330,058 | $339,768 | $0 | $669,826 | $669,826 |
| 2020 | $330,026 | $339,768 | $0 | $669,794 | $669,794 |
| 2019 | $315,158 | $305,791 | $0 | $620,949 | $620,949 |
| 2018 | $315,162 | $254,826 | $0 | $569,988 | $569,988 |
| 2017 | $141,297 | $201,600 | $0 | $342,897 | $342,897 |
| 2016 | $143,425 | $201,600 | $0 | $345,025 | $345,025 |
| 2015 | $132,343 | $201,600 | $0 | $333,943 | $333,943 |
| 2014 | $132,343 | $201,600 | $0 | $333,943 | $333,943 |
| 2013 | $132,343 | $201,600 | $0 | $333,943 | $333,943 |
| 2012 | $132,343 | $201,600 | $0 | $333,943 | $333,943 |
| 2011 | $132,343 | $201,600 | $0 | $333,943 | $333,943 |
| 2010 | $184,144 | $201,600 | $0 | $385,744 | $385,744 |
| 2009 | $187,499 | $297,192 | $0 | $484,691 | $484,691 |
| 2008 | $194,210 | $312,816 | $0 | $507,026 | $507,026 |
| 2007 | $197,565 | $312,816 | $0 | $510,381 | $510,381 |
Deed and Sales History
| 1 | 06/07/2017 | WD | Warranty Deed | SAIA TRUSTEE, JERRY F | 31955 SR 20, LLC | | | $616,000.00 | 29899 | 4424893 |
| 2 | 05/24/2005 | WD | Warranty Deed | RAYLE, FRANK B | SAIA TRUSTEE, JERRY F | | | $475,000.00 | 52531 | 4136132 |
| 3 | 03/01/1983 | WD | Warranty Deed | RAYLE, FRANK B | RAYLE, FRANK B | | | $237,750.00 | 30670 | 407199 |
| 4 | 03/01/1983 | QCD | Quit Claim Deed | ISLAND, SAVINGS & | RAYLE, FRANK B | | | $0.00 | 30758 | 407575 |
| 5 | 03/01/1982 | WD | Warranty Deed | DANARD, R N | ISLAND, SAVINGS & | | | $190,000.00 | 20589 | 394086 |
| 6 | 01/01/1900 | OTHER | Other - Misc. Documents | Unknown | DANARD, R N | | | $0.00 | 0 | 0 |
Payout Agreement
| No payout information available.. |