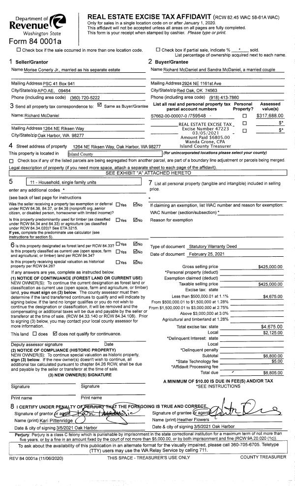
Property
Account |
| Property ID: | 123556 | Abbreviated Legal Description: | 53 - N1/2 N1/2 NE SE NW EX CO RD TGW EZ AF#90019215 TGW EZ AF#90019216 TGW & SUB EZ AF#90019346 |
| Geographic ID: | R32903-411-2260 | Agent Code: | |
| Type: | Real | | |
| Tax Area: | 700 - APPRAISER-S Whid Schl Dist, in town of Langley | Land Use Code | 11 |
| Open Space: | N | DFL | N |
| Historic Property: | N | Remodel Property: | N |
| Multi-Family Redevelopment: | N | | |
| Township: | 29 | Section: | 03 |
| Range: | R3 |
Location |
| Address: | 874 AL ANDERSON AVE LANGLEY, WA 98260 | Mapsco: | |
| Neighborhood: | City of Langley | Map ID: | 725 |
| Neighborhood CD: | 04-L |
Owner |
| Name: | MCKENNA, BRIAN D | Owner ID: | 16945 |
| Mailing Address: | 874 AL ANDERSON AVE LANGLEY, WA 98260-8615 | % Ownership: | 100.0000000000% |
| | | Exemptions: | SNR/DSBL |
Taxes and Assessment Details
Values
| (+) Improvement Homesite Value: | + | $133,063 | |
| (+) Improvement Non-Homesite Value: | + | $0 | |
| (+) Land Homesite Value: | + | $390,000 | |
| (+) Land Non-Homesite Value: | + | $0 | |
| (+) Curr Use (HS): | + | $0 | $0 |
| (+) Curr Use (NHS): | + | $0 | $0 |
| | | -------------------------- | |
| (=) Market Value: | = | $523,063 | |
| (–) Productivity Loss: | – | $0 | |
| | | -------------------------- | |
| (=) Subtotal: | = | $523,063 | |
| (+) Senior Appraised Value: | + | $254,398 | |
| (+) Non-Senior Appraised Value: | + | $0 | |
| | | -------------------------- | |
| (=) Total Appraised Value: | = | $254,398 | |
| (–) Senior Exemption Loss: | – | $152,639 | |
| (–) Exemption Loss: | – | $0 | |
| | | -------------------------- | |
| (=) Taxable Value: | = | $101,759 | |
Taxing Jurisdiction
| Owner: | MCKENNA, BRIAN D | | |
| % Ownership: | 100.0000000000% | | |
| Total Value: | $523,063 | | |
| Tax Area: | 700 - APPRAISER-S Whid Schl Dist, in town of Langley |
| CF | Conservation Futures | 0.0316035091 | $523,063 | $101,759 | $3.22 | | |
| LANG | City of Langley | 1.0093520762 | $523,063 | $101,759 | $102.71 | | |
| LANGBOND | City of Langley BOND | 0.0000000000 | $523,063 | $0 | $0.00 | | |
| FIRE3 | Fire & Rescue Dist #3 S Whidbey GEN | 1.2004855531 | $523,063 | $101,759 | $122.16 | | |
| HOBOND | Hospital BOND | 0.0000000000 | $523,063 | $0 | $0.00 | | |
| HOGEN | Hospital GEN | 0.3902502903 | $523,063 | $101,759 | $39.71 | | |
| CE | County Current Expense | 0.3708482477 | $523,063 | $101,759 | $37.74 | | |
| ISLANDEMS | Hospital GEN (EMS) | 0.5000000000 | $523,063 | $101,759 | $50.88 | | |
| LIB | Library Sno-Isle GEN | 0.3153421757 | $523,063 | $101,759 | $32.09 | | |
| PORTWHID | Port of S Whidbey GEN | 0.1094540357 | $523,063 | $101,759 | $11.14 | | |
| SCH206BOND | School 206 BOND | 0.3161759235 | $523,063 | $101,759 | $32.17 | | |
| SCH206MO | School 206 Enrichment | 0.0000000000 | $523,063 | $0 | $0.00 | | |
| ST | State School | 1.3035497053 | $523,063 | $101,759 | $132.65 | | |
| ST2 | State School Part 2 | 0.0000000000 | $523,063 | $0 | $0.00 | | |
| SWHIDPRBD | P & R S Whidbey BOND | 0.0000000000 | $523,063 | $0 | $0.00 | | |
| SWHIDPRBD2 | P & R S Whidbey BOND2 | 0.0000000000 | $523,063 | $0 | $0.00 | | |
| SWHIDPRMT | P & R S Whidbey GEN | 0.2053334452 | $523,063 | $101,759 | $20.89 | | |
| | Total Tax Rate: | 5.7523949618 | | | | | |
| | | | | Taxes w/Current Exemptions: | $585.36 | | |
| | | | | Taxes w/o Exemptions: | $4,329.36 | | |
Improvement / Building
| Improvement #1: | RESIDENTIAL | State Code: | Y | 991.6 sqft | Value: | $133,063 |
| Bathrooms: | 1 | Bedrooms: | 2 | | Ceiling: | PLASTER PAINTED | Exterior Wall/Cover: | PLY/HARDBOARD T-111 | | Floor Covering: | SOFTWOOD/VINYL 60-40 | Floor Structure: | WOOD W/SUBFLOOR | | Foundation: | CONCRETE | Heating: | (NONE) | | Interior Finish: | DRYWALL PAINT | Plumbing Fixture Cnt: | 6 | | Roof Slope: | 12" IN 12" | Roof Structure/Cover: | CJ ASPHALT |
|
| | Type | Description | Class CD | Sub Class CD | Year Built | Area |
| | BAS | BASE/MAIN FLOOR | 3 | 0 | 1908 | 823.6 |
| | UB6 | BASEMENT UNFINISHED 6" | 3 | 0 | 1908 | 192.0 |
| | OWP | OPEN WOOD PORCH W/STEPS | 3 | 0 | 1908 | 40.0 |
| | OP2 | OPEN PORCH W/STEPS | 3 | 0 | 1908 | 32.0 |
| | UPS | UPPER STORY | 3 | 0 | 1908 | 168.0 |
| | OWP | OPEN WOOD PORCH W/STEPS | 3 | 0 | 1908 | 128.0 |
| | CPD | OPEN CARPORT DIRT FLOOR | 3 | 0 | 1908 | 384.0 |
| | UTY | STORAGE/UTILITY | 3 | 0 | 1908 | 320.0 |
Sketch
Property Image
Land
| 1 | 18 | AC (02.01-03.00) | 0.0000 | 0.00 | 0.00 | 0.00 | 1.00 | $390,000 | $0 |
Roll Value History
| 2026 | N/A | N/A | N/A | N/A | N/A |
| 2025 | $133,063 | $390,000 | $0 | $523,063 | $101,759 |
| 2024 | $135,473 | $390,000 | $0 | $525,473 | $101,759 |
| 2023 | $137,882 | $390,000 | $0 | $527,882 | $101,759 |
| 2022 | $127,036 | $280,000 | $0 | $407,036 | $101,759 |
| 2021 | $112,363 | $260,000 | $0 | $372,363 | $101,759 |
| 2020 | $100,867 | $230,000 | $0 | $330,867 | $101,759 |
| 2019 | $72,154 | $260,000 | $0 | $332,154 | $101,759 |
| 2018 | $72,474 | $200,000 | $0 | $272,474 | $101,759 |
| 2017 | $73,115 | $200,000 | $0 | $273,115 | $101,759 |
| 2016 | $74,398 | $180,000 | $0 | $254,398 | $101,759 |
| 2015 | $75,682 | $180,000 | $0 | $255,682 | $255,682 |
| 2014 | $62,238 | $180,000 | $0 | $242,238 | $242,238 |
| 2013 | $63,446 | $184,000 | $0 | $247,446 | $247,446 |
| 2012 | $64,653 | $184,000 | $0 | $248,653 | $248,653 |
| 2011 | $65,861 | $200,000 | $0 | $265,861 | $265,861 |
| 2010 | $74,202 | $200,000 | $0 | $274,202 | $274,202 |
| 2009 | $77,603 | $200,000 | $0 | $277,603 | $277,603 |
| 2008 | $78,775 | $160,000 | $0 | $238,775 | $238,775 |
| 2007 | $80,170 | $160,000 | $0 | $240,170 | $240,170 |
Deed and Sales History
| 1 | 12/01/1979 | EXECUTORD | Executor Deed | APPLING, GRACE L | MCKENNA, BRIAN D | | | $45,000.00 | 95774 | 362694 |
| 2 | 01/01/1900 | OTHER | Other - Misc. Documents | Unknown | APPLING, GRACE L | | | $0.00 | 0 | 0 |
Payout Agreement
| No payout information available.. |