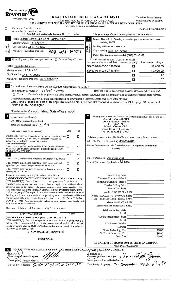
Property
Account |
| Property ID: | 124047 | Abbreviated Legal Description: | 78 - BG NW CR GL2 S7*E294. 94' S89*E182.6' TPB S89*E83 .7' N7*W155.05' N89*W83.7' S7*E155.05' TPB TGW & SUB EZS 155D618 & 374383 |
| Geographic ID: | R32903-563-2550 | Agent Code: | |
| Type: | Real | | |
| Tax Area: | 700 - APPRAISER-S Whid Schl Dist, in town of Langley | Land Use Code | 11 |
| Open Space: | N | DFL | N |
| Historic Property: | N | Remodel Property: | N |
| Multi-Family Redevelopment: | N | | |
| Township: | 29 | Section: | 03 |
| Range: | R3 |
Location |
| Address: | 300 LOUISA ST LANGLEY, WA 98260 | Mapsco: | |
| Neighborhood: | City of Langley | Map ID: | 727 |
| Neighborhood CD: | 04-L |
Owner |
| Name: | HORSTMAN, KRISTA N | Owner ID: | 294401 |
| Mailing Address: | KRISTA R HUGHES PO BOX 1363 LANGLEY, WA 98260 | % Ownership: | 100.0000000000% |
| | | Exemptions: | |
Taxes and Assessment Details
Values
| (+) Improvement Homesite Value: | + | $0 | |
| (+) Improvement Non-Homesite Value: | + | $294,441 | |
| (+) Land Homesite Value: | + | $0 | |
| (+) Land Non-Homesite Value: | + | $370,000 | |
| (+) Curr Use (HS): | + | $0 | $0 |
| (+) Curr Use (NHS): | + | $0 | $0 |
| | | -------------------------- | |
| (=) Market Value: | = | $664,441 | |
| (–) Productivity Loss: | – | $0 | |
| | | -------------------------- | |
| (=) Subtotal: | = | $664,441 | |
| (+) Senior Appraised Value: | + | $0 | |
| (+) Non-Senior Appraised Value: | + | $664,441 | |
| | | -------------------------- | |
| (=) Total Appraised Value: | = | $664,441 | |
| (–) Senior Exemption Loss: | – | $0 | |
| (–) Exemption Loss: | – | $0 | |
| | | -------------------------- | |
| (=) Taxable Value: | = | $664,441 | |
Taxing Jurisdiction
| Owner: | HORSTMAN, KRISTA N | | |
| % Ownership: | 100.0000000000% | | |
| Total Value: | $664,441 | | |
| Tax Area: | 700 - APPRAISER-S Whid Schl Dist, in town of Langley |
| CF | Conservation Futures | 0.0316035091 | $664,441 | $664,441 | $21.00 | | |
| LANG | City of Langley | 1.0093520762 | $664,441 | $664,441 | $670.65 | | |
| LANGBOND | City of Langley BOND | 1.0326110892 | $664,441 | $664,441 | $686.11 | | |
| FIRE3 | Fire & Rescue Dist #3 S Whidbey GEN | 1.2004855531 | $664,441 | $664,441 | $797.65 | | |
| HOBOND | Hospital BOND | 0.1910887512 | $664,441 | $664,441 | $126.97 | | |
| HOGEN | Hospital GEN | 0.3902502903 | $664,441 | $664,441 | $259.30 | | |
| CE | County Current Expense | 0.3708482477 | $664,441 | $664,441 | $246.41 | | |
| ISLANDEMS | Hospital GEN (EMS) | 0.5000000000 | $664,441 | $664,441 | $332.22 | | |
| LIB | Library Sno-Isle GEN | 0.3153421757 | $664,441 | $664,441 | $209.53 | | |
| PORTWHID | Port of S Whidbey GEN | 0.1094540357 | $664,441 | $664,441 | $72.73 | | |
| SCH206BOND | School 206 BOND | 0.3161759235 | $664,441 | $664,441 | $210.08 | | |
| SCH206MO | School 206 Enrichment | 0.4547169547 | $664,441 | $664,441 | $302.13 | | |
| ST | State School | 1.3035497053 | $664,441 | $664,441 | $866.13 | | |
| ST2 | State School Part 2 | 0.8169543533 | $664,441 | $664,441 | $542.82 | | |
| SWHIDPRBD | P & R S Whidbey BOND | 0.0152817568 | $664,441 | $664,441 | $10.15 | | |
| SWHIDPRBD2 | P & R S Whidbey BOND2 | 0.0138911264 | $664,441 | $664,441 | $9.23 | | |
| SWHIDPRMT | P & R S Whidbey GEN | 0.2053334452 | $664,441 | $664,441 | $136.43 | | |
| | Total Tax Rate: | 8.2769389934 | | | | | |
| | | | | Taxes w/Current Exemptions: | $5,499.54 | | |
| | | | | Taxes w/o Exemptions: | $5,499.54 | | |
Improvement / Building
| Improvement #1: | RESIDENTIAL | State Code: | Y | 877.8 sqft | Value: | $294,441 |
| Bathrooms: | 1 | Bedrooms: | 1 | | Ceiling: | DRYWALL PAINTED | Exterior Wall/Cover: | CEMENT FIBER | | Floor Covering: | COLORED CONCRETE | Floor Structure: | WOOD W/SUBFLOOR | | Foundation: | SLAB | Heating: | FHA ELECTRIC | | Interior Finish: | DRYWALL PAINT | Plumbing Fixture Cnt: | 6 | | Roof Slope: | 5" IN 12" | Roof Structure/Cover: | CJ ALUMINIUM HEAVY |
|
| | Type | Description | Class CD | Sub Class CD | Year Built | Area |
| | BAS | BASE/MAIN FLOOR | 5 | 0 | 2020 | 517.0 |
| | UPS | UPPER STORY | 5 | 0 | 2020 | 360.8 |
| | BIG | BUILT IN GARAGE | 5 | 0 | 2020 | 440.0 |
| | OWP | OPEN WOOD PORCH W/STEPS | 5 | 0 | 2020 | 264.0 |
| | CPD | OPEN CARPORT DIRT FLOOR | 5 | 0 | 2020 | 185.0 |
| Improvement #2: | RESIDENTIAL | State Code: | Y | 1799.4 sqft | Value: | $0 |
| Bathrooms: | 0 | Bedrooms: | 0 | | Ceiling: | (NONE) | Exterior Wall/Cover: | (NONE) | | Floor Covering: | (NONE) | Floor Structure: | (NONE) | | Foundation: | (NONE) | Heating: | (NONE) | | Interior Finish: | (NONE) | Plumbing Fixture Cnt: | 1 | | Roof Slope: | (NONE) | Roof Structure/Cover: | (NONE) |
|
| | Type | Description | Class CD | Sub Class CD | Year Built | Area |
| | BAS | BASE/MAIN FLOOR | 3 | 0 | 2020 | 1799.4 |
| | OWP | OPEN WOOD PORCH W/STEPS | 3 | 0 | 2020 | 297.0 |
Sketch
Property Image
Land
| 1 | 15 | SQ (12001-21780) | 0.0000 | 0.00 | 0.00 | 0.00 | 1.00 | $370,000 | $0 |
Roll Value History
| 2026 | N/A | N/A | N/A | N/A | N/A |
| 2025 | $294,441 | $370,000 | $0 | $664,441 | $664,441 |
| 2024 | $296,778 | $370,000 | $0 | $666,778 | $666,778 |
| 2023 | $299,894 | $370,000 | $0 | $669,894 | $669,894 |
| 2022 | $276,501 | $300,000 | $0 | $576,501 | $576,501 |
| 2021 | $245,349 | $260,000 | $0 | $505,349 | $505,349 |
| 2020 | $552 | $170,000 | $0 | $170,552 | $170,552 |
| 2019 | $0 | $120,000 | $0 | $120,000 | $120,000 |
| 2018 | $0 | $120,000 | $0 | $120,000 | $120,000 |
| 2017 | $0 | $120,000 | $0 | $120,000 | $120,000 |
| 2016 | $0 | $120,000 | $0 | $120,000 | $120,000 |
| 2015 | $0 | $120,000 | $0 | $120,000 | $120,000 |
| 2014 | $0 | $90,000 | $0 | $90,000 | $90,000 |
| 2013 | $0 | $90,000 | $0 | $90,000 | $90,000 |
| 2012 | $0 | $90,000 | $0 | $90,000 | $90,000 |
| 2011 | $0 | $90,000 | $0 | $90,000 | $90,000 |
| 2010 | $0 | $90,000 | $0 | $90,000 | $90,000 |
| 2009 | $0 | $100,000 | $0 | $100,000 | $100,000 |
| 2008 | $0 | $102,000 | $0 | $102,000 | $102,000 |
| 2007 | $0 | $102,000 | $0 | $102,000 | $102,000 |
Deed and Sales History
| 1 | 05/22/2020 | QCD | Quit Claim Deed | K2H2 LLC | HORSTMAN, KRISTA N | | | $0.00 | 43204 | 4487912 |
| 2 | 08/06/2014 | WD | Warranty Deed | BARNACLE BAY LLC | K2H2 LLC | | | $118,500.00 | 16375 | 4363800 |
| 3 | 01/10/2012 | QCD | Quit Claim Deed | PRAEL, KATHARINE E | BARNACLE BAY LLC | | | $0.00 | 6698 | 4308708 |
| 4 | 01/03/2012 | QCD | Quit Claim Deed | PRAEL, FREDERICK W | PRAEL, KATHARINE E | | | $0.00 | 6561 | 4307631 |
| 5 | 10/01/1983 | WD | Warranty Deed | GROOM, JULIUS D | PRAEL, FREDERICK W | | | $15,000.00 | 33032 | 416211 |
| 6 | 05/01/1980 | EXECUTORD | Executor Deed | BRANDT, GLADYS | GROOM, JULIUS D | | | $12,000.00 | 1697 | 368910 |
| 7 | 01/01/1900 | OTHER | Other - Misc. Documents | Unknown | BRANDT, GLADYS | | | $0.00 | 0 | 0 |
Payout Agreement
| No payout information available.. |