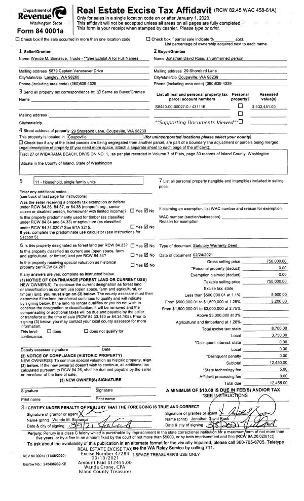
Property
Account |
| Property ID: | 124216 | Abbreviated Legal Description: | 26 - SE SW SE LY E OF CO RD EX S225' |
| Geographic ID: | R32904-039-4110 | Agent Code: | |
| Type: | Real | | |
| Tax Area: | 712 - APPRAISER-S Whid Schl Dist, outside Langley, improved, greater than 1 acre | Land Use Code | 11 |
| Open Space: | N | DFL | N |
| Historic Property: | N | Remodel Property: | N |
| Multi-Family Redevelopment: | N | | |
| Township: | 29 | Section: | 04 |
| Range: | R3 |
Location |
| Address: | 5165 COLES RD LANGLEY, WA 98260 | Mapsco: | |
| Neighborhood: | Cycle 4 | Map ID: | 729 |
| Neighborhood CD: | 4 |
Owner |
| Name: | WILLIAMS TTEE, TODD C | Owner ID: | 290299 |
| Mailing Address: | TAMMI L WILLIAMS TTEE 5286 NIGHTHAWK RD LANGLEY, WA 98260 | % Ownership: | 100.0000000000% |
| | | Exemptions: | |
Taxes and Assessment Details
Values
| (+) Improvement Homesite Value: | + | $0 | |
| (+) Improvement Non-Homesite Value: | + | $100,964 | |
| (+) Land Homesite Value: | + | $0 | |
| (+) Land Non-Homesite Value: | + | $380,000 | |
| (+) Curr Use (HS): | + | $0 | $0 |
| (+) Curr Use (NHS): | + | $0 | $0 |
| | | -------------------------- | |
| (=) Market Value: | = | $480,964 | |
| (–) Productivity Loss: | – | $0 | |
| | | -------------------------- | |
| (=) Subtotal: | = | $480,964 | |
| (+) Senior Appraised Value: | + | $0 | |
| (+) Non-Senior Appraised Value: | + | $480,964 | |
| | | -------------------------- | |
| (=) Total Appraised Value: | = | $480,964 | |
| (–) Senior Exemption Loss: | – | $0 | |
| (–) Exemption Loss: | – | $0 | |
| | | -------------------------- | |
| (=) Taxable Value: | = | $480,964 | |
Taxing Jurisdiction
| Owner: | WILLIAMS TTEE, TODD C | | |
| % Ownership: | 100.0000000000% | | |
| Total Value: | $480,964 | | |
| Tax Area: | 712 - APPRAISER-S Whid Schl Dist, outside Langley, improved, greater than 1 acre |
| CF | Conservation Futures | 0.0316035091 | $480,964 | $480,964 | $15.20 | | |
| FIRE3 | Fire & Rescue Dist #3 S Whidbey GEN | 1.2004855531 | $480,964 | $480,964 | $577.39 | | |
| HOBOND | Hospital BOND | 0.1910887512 | $480,964 | $480,964 | $91.91 | | |
| HOGEN | Hospital GEN | 0.3902502903 | $480,964 | $480,964 | $187.70 | | |
| CE | County Current Expense | 0.3708482477 | $480,964 | $480,964 | $178.36 | | |
| CR | County Roads | 0.4584763726 | $480,964 | $480,964 | $220.51 | | |
| ISLANDEMS | Hospital GEN (EMS) | 0.5000000000 | $480,964 | $480,964 | $240.48 | | |
| LIB | Library Sno-Isle GEN | 0.3153421757 | $480,964 | $480,964 | $151.67 | | |
| PORTWHID | Port of S Whidbey GEN | 0.1094540357 | $480,964 | $480,964 | $52.64 | | |
| SCH206BOND | School 206 BOND | 0.3161759235 | $480,964 | $480,964 | $152.07 | | |
| SCH206MO | School 206 Enrichment | 0.4547169547 | $480,964 | $480,964 | $218.70 | | |
| ST | State School | 1.3035497053 | $480,964 | $480,964 | $626.96 | | |
| ST2 | State School Part 2 | 0.8169543533 | $480,964 | $480,964 | $392.93 | | |
| SWHIDPRBD | P & R S Whidbey BOND | 0.0152817568 | $480,964 | $480,964 | $7.35 | | |
| SWHIDPRBD2 | P & R S Whidbey BOND2 | 0.0138911264 | $480,964 | $480,964 | $6.68 | | |
| SWHIDPRMT | P & R S Whidbey GEN | 0.2053334452 | $480,964 | $480,964 | $98.76 | | |
| | Total Tax Rate: | 6.6934522006 | | | | | |
| | | | | Taxes w/Current Exemptions: | $3,219.31 | | |
| | | | | Taxes w/o Exemptions: | $3,219.31 | | |
Improvement / Building
| Improvement #1: | RESIDENTIAL | State Code: | Y | 1192.0 sqft | Value: | $100,964 |
| Bathrooms: | 1 | Bedrooms: | 1 | | Ceiling: | DRYWALL PAINTED | Exterior Wall/Cover: | SHINGLE | | Floor Covering: | COLORED CONCRETE | Floor Structure: | WOOD W/SUBFLOOR | | Foundation: | PIERS/CONCRETE | Heating: | WALL HEAT ELECTRIC | | Interior Finish: | DRYWALL PAINT | Plumbing Fixture Cnt: | 6 | | Roof Slope: | 12" IN 12" | Roof Structure/Cover: | CJ ASPHALT |
|
| | Type | Description | Class CD | Sub Class CD | Year Built | Area |
| | BAS | BASE/MAIN FLOOR | 3 | 0 | 1977 | 896.0 |
| | OWP | OPEN WOOD PORCH W/STEPS | 3 | 0 | 1977 | 80.0 |
| | UPH | HALF STORY | 3 | 0 | 1977 | 296.0 |
Sketch
Property Image
Land
| 1 | 32 | AC (03.01-09.99) | 3.1100 | 0.00 | 0.00 | 0.00 | 1.00 | $380,000 | $0 |
Roll Value History
| 2026 | N/A | N/A | N/A | N/A | N/A |
| 2025 | $100,964 | $380,000 | $0 | $480,964 | $480,964 |
| 2024 | $102,668 | $350,000 | $0 | $452,668 | $452,668 |
| 2023 | $104,373 | $330,000 | $0 | $434,373 | $434,373 |
| 2022 | $96,054 | $290,000 | $0 | $386,054 | $386,054 |
| 2021 | $84,865 | $230,000 | $0 | $314,865 | $314,865 |
| 2020 | $73,993 | $190,000 | $0 | $263,993 | $263,993 |
| 2019 | $53,051 | $250,000 | $0 | $303,051 | $303,051 |
| 2018 | $53,279 | $210,000 | $0 | $263,279 | $263,279 |
| 2017 | $53,734 | $190,000 | $0 | $243,734 | $243,734 |
| 2016 | $54,644 | $135,000 | $0 | $189,644 | $189,644 |
| 2015 | $55,556 | $135,000 | $0 | $190,556 | $76,222 |
| 2014 | $55,923 | $83,970 | $0 | $139,893 | $55,957 |
| 2013 | $56,807 | $83,970 | $0 | $140,777 | $56,311 |
| 2012 | $57,691 | $83,970 | $0 | $141,661 | $56,664 |
| 2011 | $58,575 | $83,970 | $0 | $142,545 | $57,018 |
| 2010 | $63,280 | $83,970 | $0 | $147,250 | $58,900 |
| 2009 | $66,068 | $136,840 | $0 | $202,908 | $81,163 |
| 2008 | $67,544 | $155,998 | $0 | $223,542 | $89,417 |
| 2007 | $68,466 | $155,998 | $0 | $224,464 | $224,464 |
Deed and Sales History
| 1 | 05/29/2019 | PRD | Personal Representatives Deed | TALBOT, JANET IRENE | WILLIAMS TTEE, TODD C | | | $0.00 | 38909 | 4465116 |
| 2 | 06/22/2012 | TOD | Transfer On Death Deed | TALBOT, DAVID W | TALBOT, JANET IRENE | | | | 82484 | |
| 3 | 01/01/1900 | OTHER | Other - Misc. Documents | Unknown | TALBOT, DAVID W | | | $0.00 | 0 | 0 |
Payout Agreement
| No payout information available.. |