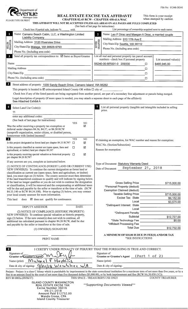
Property
Account |
| Property ID: | 124243 | Abbreviated Legal Description: | 18- E/2 SW SW TGW & SUB EZ AF#91012318 |
| Geographic ID: | R32904-068-1320 | Agent Code: | |
| Type: | Real | | |
| Tax Area: | 712 - APPRAISER-S Whid Schl Dist, outside Langley, improved, greater than 1 acre | Land Use Code | 11 |
| Open Space: | N | DFL | N |
| Historic Property: | N | Remodel Property: | N |
| Multi-Family Redevelopment: | N | | |
| Township: | 29 | Section: | 04 |
| Range: | R3 |
Location |
| Address: | 3255 VENTURI WAY LANGLEY, WA 98260 | Mapsco: | |
| Neighborhood: | Cycle 4 | Map ID: | 728 |
| Neighborhood CD: | 4 |
Owner |
| Name: | QUICKSILVER PROPERTIES, LLC | Owner ID: | 278055 |
| Mailing Address: | PO BOX 852 LANGLEY, WA 98260 | % Ownership: | 100.0000000000% |
| | | Exemptions: | |
Taxes and Assessment Details
Values
| (+) Improvement Homesite Value: | + | $0 | |
| (+) Improvement Non-Homesite Value: | + | $156,640 | |
| (+) Land Homesite Value: | + | $0 | |
| (+) Land Non-Homesite Value: | + | $430,000 | |
| (+) Curr Use (HS): | + | $0 | $0 |
| (+) Curr Use (NHS): | + | $0 | $0 |
| | | -------------------------- | |
| (=) Market Value: | = | $586,640 | |
| (–) Productivity Loss: | – | $0 | |
| | | -------------------------- | |
| (=) Subtotal: | = | $586,640 | |
| (+) Senior Appraised Value: | + | $0 | |
| (+) Non-Senior Appraised Value: | + | $586,640 | |
| | | -------------------------- | |
| (=) Total Appraised Value: | = | $586,640 | |
| (–) Senior Exemption Loss: | – | $0 | |
| (–) Exemption Loss: | – | $0 | |
| | | -------------------------- | |
| (=) Taxable Value: | = | $586,640 | |
Taxing Jurisdiction
| Owner: | QUICKSILVER PROPERTIES, LLC | | |
| % Ownership: | 100.0000000000% | | |
| Total Value: | $586,640 | | |
| Tax Area: | 712 - APPRAISER-S Whid Schl Dist, outside Langley, improved, greater than 1 acre |
| CF | Conservation Futures | 0.0316035091 | $586,640 | $586,640 | $18.54 | | |
| FIRE3 | Fire & Rescue Dist #3 S Whidbey GEN | 1.2004855531 | $586,640 | $586,640 | $704.25 | | |
| HOBOND | Hospital BOND | 0.1910887512 | $586,640 | $586,640 | $112.10 | | |
| HOGEN | Hospital GEN | 0.3902502903 | $586,640 | $586,640 | $228.94 | | |
| CE | County Current Expense | 0.3708482477 | $586,640 | $586,640 | $217.55 | | |
| CR | County Roads | 0.4584763726 | $586,640 | $586,640 | $268.96 | | |
| ISLANDEMS | Hospital GEN (EMS) | 0.5000000000 | $586,640 | $586,640 | $293.32 | | |
| LIB | Library Sno-Isle GEN | 0.3153421757 | $586,640 | $586,640 | $184.99 | | |
| PORTWHID | Port of S Whidbey GEN | 0.1094540357 | $586,640 | $586,640 | $64.21 | | |
| SCH206BOND | School 206 BOND | 0.3161759235 | $586,640 | $586,640 | $185.48 | | |
| SCH206MO | School 206 Enrichment | 0.4547169547 | $586,640 | $586,640 | $266.76 | | |
| ST | State School | 1.3035497053 | $586,640 | $586,640 | $764.71 | | |
| ST2 | State School Part 2 | 0.8169543533 | $586,640 | $586,640 | $479.26 | | |
| SWHIDPRBD | P & R S Whidbey BOND | 0.0152817568 | $586,640 | $586,640 | $8.96 | | |
| SWHIDPRBD2 | P & R S Whidbey BOND2 | 0.0138911264 | $586,640 | $586,640 | $8.15 | | |
| SWHIDPRMT | P & R S Whidbey GEN | 0.2053334452 | $586,640 | $586,640 | $120.46 | | |
| | Total Tax Rate: | 6.6934522006 | | | | | |
| | | | | Taxes w/Current Exemptions: | $3,926.64 | | |
| | | | | Taxes w/o Exemptions: | $3,926.64 | | |
Improvement / Building
| Improvement #1: | RESIDENTIAL | State Code: | Y | 0.0 sqft | Value: | $24,000 |
| Improvement #2: | MANUFACTURED HOME | State Code: | Y | 1152.0 sqft | Value: | $132,640 |
| Bathrooms: | 1 | Bedrooms: | 2 | | Ceiling: | PLASTER PAINTED | Cooling: | EVAP NO DUCT | | Exterior Wall/Cover: | VINYL | Floor Covering: | CARPET 100% | | Floor Structure: | SLAB ON GRADE | Foundation: | SLAB | | Heating: | FHA ELECTRIC | Interior Finish: | PLASTER | | Plumbing Fixture Cnt: | 1 | Roof Slope: | FLAT | | Roof Structure/Cover: | CJ ALUMINIUM HEAVY |   |   |
|
| | Type | Description | Class CD | Sub Class CD | Year Built | Area |
| | BAS | BASE/MAIN FLOOR | 4 | 0 | 1974 | 1152.0 |
| | OWP | OPEN WOOD PORCH W/STEPS | 4 | 0 | 1974 | 78.0 |
| | OWP | OPEN WOOD PORCH W/STEPS | 4 | 0 | 1974 | 84.0 |
Sketch
Property Image
Land
| 1 | 35 | AC (10.00-30.99) | 20.0000 | 871200.00 | 0.00 | 0.00 | 1.00 | $430,000 | $0 |
Roll Value History
| 2026 | N/A | N/A | N/A | N/A | N/A |
| 2025 | $156,640 | $430,000 | $0 | $586,640 | $586,640 |
| 2024 | $157,993 | $400,000 | $0 | $557,993 | $557,993 |
| 2023 | $75,088 | $400,000 | $0 | $475,088 | $475,088 |
| 2022 | $96,481 | $380,000 | $0 | $476,481 | $476,481 |
| 2021 | $53,883 | $330,000 | $0 | $383,883 | $383,883 |
| 2020 | $54,769 | $300,000 | $0 | $354,769 | $354,769 |
| 2019 | $50,314 | $350,000 | $0 | $400,314 | $400,314 |
| 2018 | $51,699 | $290,000 | $0 | $341,699 | $341,699 |
| 2017 | $24,000 | $270,000 | $0 | $294,000 | $294,000 |
| 2016 | $24,000 | $240,000 | $0 | $264,000 | $264,000 |
| 2015 | $24,000 | $240,000 | $0 | $264,000 | $264,000 |
| 2014 | $28,809 | $240,000 | $0 | $268,809 | $268,809 |
| 2013 | $28,809 | $240,000 | $0 | $268,809 | $268,809 |
| 2012 | $28,809 | $240,000 | $0 | $268,809 | $268,809 |
| 2011 | $28,809 | $240,000 | $0 | $268,809 | $268,809 |
| 2010 | $28,809 | $240,000 | $0 | $268,809 | $268,809 |
| 2009 | $29,176 | $300,000 | $0 | $329,176 | $329,176 |
| 2008 | $28,793 | $240,108 | $0 | $268,901 | $268,901 |
| 2007 | $29,136 | $240,108 | $0 | $269,244 | $269,244 |
Deed and Sales History
| 1 | 09/20/2018 | WD | Warranty Deed | BUCHANAN, EDWARD R | QUICKSILVER PROPERTIES, LLC | | | $472,301.00 | 36010 | 4452196 |
Payout Agreement
| No payout information available.. |