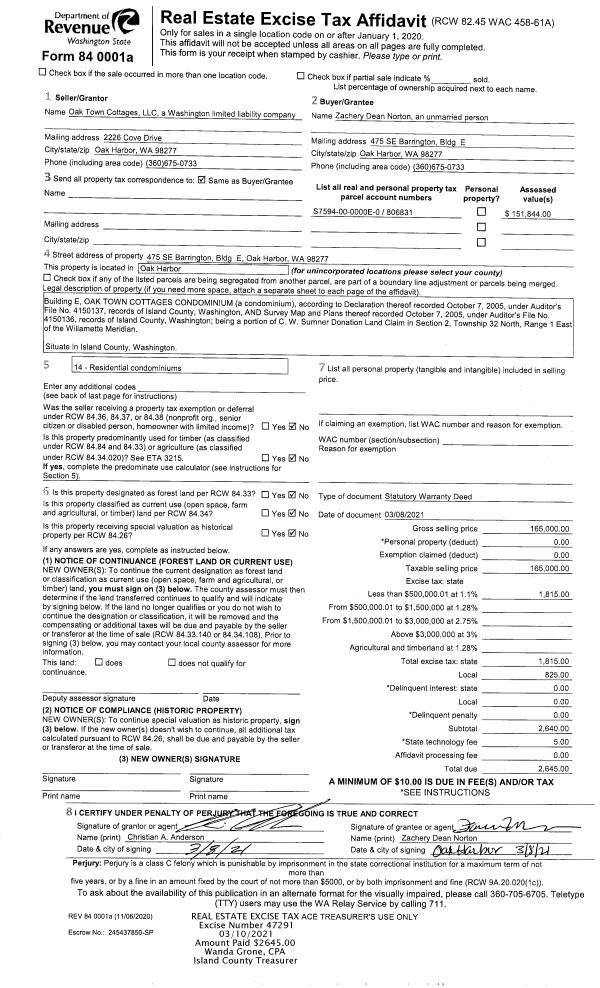
Property
Account |
| Property ID: | 124270 | Abbreviated Legal Description: | 27 - NE SE SW EX E230'OF S473.5' |
| Geographic ID: | R32904-099-2500 | Agent Code: | |
| Type: | Real | | |
| Tax Area: | 712 - APPRAISER-S Whid Schl Dist, outside Langley, improved, greater than 1 acre | Land Use Code | 11 |
| Open Space: | N | DFL | N |
| Historic Property: | N | Remodel Property: | N |
| Multi-Family Redevelopment: | N | | |
| Township: | 29 | Section: | 04 |
| Range: | R3 |
Location |
| Address: | 5120 STRIDER RD LANGLEY, WA 98260 | Mapsco: | |
| Neighborhood: | Cycle 4 | Map ID: | 728 |
| Neighborhood CD: | 4 |
Owner |
| Name: | HAGBERG JR, RICHARD A | Owner ID: | 17048 |
| Mailing Address: | 5120 STRIDER RD LANGLEY, WA 98260-9510 | % Ownership: | 100.0000000000% |
| | | Exemptions: | |
Taxes and Assessment Details
Values
| (+) Improvement Homesite Value: | + | $0 | |
| (+) Improvement Non-Homesite Value: | + | $839,063 | |
| (+) Land Homesite Value: | + | $0 | |
| (+) Land Non-Homesite Value: | + | $380,000 | |
| (+) Curr Use (HS): | + | $0 | $0 |
| (+) Curr Use (NHS): | + | $0 | $0 |
| | | -------------------------- | |
| (=) Market Value: | = | $1,219,063 | |
| (–) Productivity Loss: | – | $0 | |
| | | -------------------------- | |
| (=) Subtotal: | = | $1,219,063 | |
| (+) Senior Appraised Value: | + | $0 | |
| (+) Non-Senior Appraised Value: | + | $1,219,063 | |
| | | -------------------------- | |
| (=) Total Appraised Value: | = | $1,219,063 | |
| (–) Senior Exemption Loss: | – | $0 | |
| (–) Exemption Loss: | – | $0 | |
| | | -------------------------- | |
| (=) Taxable Value: | = | $1,219,063 | |
Taxing Jurisdiction
| Owner: | HAGBERG JR, RICHARD A | | |
| % Ownership: | 100.0000000000% | | |
| Total Value: | $1,219,063 | | |
| Tax Area: | 712 - APPRAISER-S Whid Schl Dist, outside Langley, improved, greater than 1 acre |
| CF | Conservation Futures | 0.0316035091 | $1,219,063 | $1,219,063 | $38.53 | | |
| FIRE3 | Fire & Rescue Dist #3 S Whidbey GEN | 1.2004855531 | $1,219,063 | $1,219,063 | $1,463.47 | | |
| HOBOND | Hospital BOND | 0.1910887512 | $1,219,063 | $1,219,063 | $232.95 | | |
| HOGEN | Hospital GEN | 0.3902502903 | $1,219,063 | $1,219,063 | $475.74 | | |
| CE | County Current Expense | 0.3708482477 | $1,219,063 | $1,219,063 | $452.09 | | |
| CR | County Roads | 0.4584763726 | $1,219,063 | $1,219,063 | $558.91 | | |
| ISLANDEMS | Hospital GEN (EMS) | 0.5000000000 | $1,219,063 | $1,219,063 | $609.53 | | |
| LIB | Library Sno-Isle GEN | 0.3153421757 | $1,219,063 | $1,219,063 | $384.42 | | |
| PORTWHID | Port of S Whidbey GEN | 0.1094540357 | $1,219,063 | $1,219,063 | $133.43 | | |
| SCH206BOND | School 206 BOND | 0.3161759235 | $1,219,063 | $1,219,063 | $385.44 | | |
| SCH206MO | School 206 Enrichment | 0.4547169547 | $1,219,063 | $1,219,063 | $554.33 | | |
| ST | State School | 1.3035497053 | $1,219,063 | $1,219,063 | $1,589.11 | | |
| ST2 | State School Part 2 | 0.8169543533 | $1,219,063 | $1,219,063 | $995.92 | | |
| SWHIDPRBD | P & R S Whidbey BOND | 0.0152817568 | $1,219,063 | $1,219,063 | $18.63 | | |
| SWHIDPRBD2 | P & R S Whidbey BOND2 | 0.0138911264 | $1,219,063 | $1,219,063 | $16.93 | | |
| SWHIDPRMT | P & R S Whidbey GEN | 0.2053334452 | $1,219,063 | $1,219,063 | $250.31 | | |
| | Total Tax Rate: | 6.6934522006 | | | | | |
| | | | | Taxes w/Current Exemptions: | $8,159.74 | | |
| | | | | Taxes w/o Exemptions: | $8,159.74 | | |
Improvement / Building
| Improvement #1: | RESIDENTIAL | State Code: | Y | 2662.7 sqft | Value: | $588,818 |
| Bathrooms: | 2.75 | Bedrooms: | 3 | | Ceiling: | TONGUE & GROOVE | Cooling: | HEAT PUMP/CONV/V | | Exterior Wall/Cover: | STUCCO | Floor Covering: | HARDWOOD/CARP 60-40 | | Floor Structure: | WOOD W/SUBFLOOR | Foundation: | CONCRETE | | Interior Finish: | DRYWALL PAINT | Plumbing Fixture Cnt: | 13 | | Roof Slope: | 12" IN 12" | Roof Structure/Cover: | CJ CONCRETE TILE |
|
| | Type | Description | Class CD | Sub Class CD | Year Built | Area |
| | BAS | BASE/MAIN FLOOR | 4 | 0 | 1976 | 1239.0 |
| | OP2 | OPEN PORCH W/STEPS | 4 | 0 | 1976 | 60.0 |
| | OP2 | OPEN PORCH W/STEPS | 4 | 0 | 1976 | 36.7 |
| | OP3 | OPEN PORCH W/ROOF | 4 | 0 | 1976 | 60.0 |
| | BIG | BUILT IN GARAGE | 4 | 0 | 1976 | 882.0 |
| | UPS | UPPER STORY | 4 | 0 | 1976 | 677.7 |
| | UPS | UPPER STORY | 4 | 0 | 1976 | 416.0 |
| | BAR | BALCONY W/ROOF | 4 | 0 | 1976 | 70.0 |
| | UPH | HALF STORY | 4 | 0 | 1976 | 330.0 |
| | DGR | DETACHED GARAGE | 4 | 0 | 1976 | 600.0 |
| Improvement #2: | RESIDENTIAL | State Code: | Y | 968.2 sqft | Value: | $250,245 |
| Bathrooms: | 1 | Bedrooms: | 1 | | Ceiling: | DRYWALL PAINTED | Cooling: | HEAT PUMP/CONV/V | | Exterior Wall/Cover: | WOOD SIDING | Floor Covering: | HARDWOOD/CARP 60-40 | | Floor Structure: | SLAB ON GRADE | Foundation: | SLAB | | Interior Finish: | DRYWALL PAINT | Plumbing Fixture Cnt: | 8 | | Roof Slope: | 6" IN 12" | Roof Structure/Cover: | CJ ALUMINIUM HEAVY |
|
| | Type | Description | Class CD | Sub Class CD | Year Built | Area |
| | BAS | BASE/MAIN FLOOR | 4 | 0 | 2010 | 716.2 |
| | UPS | UPPER STORY | 4 | 0 | 2010 | 252.0 |
| | OWP | OPEN WOOD PORCH W/STEPS | 4 | 0 | 2010 | 54.0 |
| | OP4 | OPEN PORCH W/CEILING-ROOF | 4 | 0 | 2010 | 97.5 |
Sketch
Property Image
Land
| 1 | 32 | AC (03.01-09.99) | 0.0000 | 0.00 | 0.00 | 0.00 | 1.00 | $380,000 | $0 |
Roll Value History
| 2026 | N/A | N/A | N/A | N/A | N/A |
| 2025 | $839,063 | $380,000 | $0 | $1,219,063 | $1,219,063 |
| 2024 | $848,527 | $350,000 | $0 | $1,198,527 | $1,198,527 |
| 2023 | $857,991 | $330,000 | $0 | $1,187,991 | $1,187,991 |
| 2022 | $785,497 | $290,000 | $0 | $1,075,497 | $1,075,497 |
| 2021 | $690,490 | $230,000 | $0 | $920,490 | $920,490 |
| 2020 | $627,573 | $190,000 | $0 | $817,573 | $817,573 |
| 2019 | $470,184 | $250,000 | $0 | $720,184 | $720,184 |
| 2018 | $376,636 | $210,000 | $0 | $586,636 | $586,636 |
| 2017 | $378,141 | $190,000 | $0 | $568,141 | $568,141 |
| 2016 | $383,390 | $165,000 | $0 | $548,390 | $548,390 |
| 2015 | $388,638 | $165,000 | $0 | $553,638 | $553,638 |
| 2014 | $322,606 | $150,000 | $0 | $472,606 | $472,606 |
| 2013 | $327,347 | $150,000 | $0 | $477,347 | $477,347 |
| 2012 | $332,099 | $150,000 | $0 | $482,099 | $482,099 |
| 2011 | $336,848 | $150,000 | $0 | $486,848 | $486,848 |
| 2010 | $350,440 | $150,000 | $0 | $500,440 | $500,440 |
| 2009 | $365,960 | $187,500 | $0 | $553,460 | $553,460 |
| 2008 | $354,972 | $376,200 | $0 | $731,172 | $731,172 |
| 2007 | $359,809 | $376,200 | $0 | $736,009 | $736,009 |
Deed and Sales History
| 1 | 12/05/2005 | WD | Warranty Deed | MOSS, DARYL S | HAGBERG JR, RICHARD A | | | $660,000.00 | 56197 | 4157069 |
| 2 | 04/22/2003 | WD | Warranty Deed | JORDAN, KAREN | MOSS, DARYL S | | | $420,000.00 | 31778 | 4056826 |
| 3 | 01/01/1900 | OTHER | Other - Misc. Documents | Unknown | JORDAN, KAREN | | | $0.00 | 0 | 0 |
Payout Agreement
| No payout information available.. |