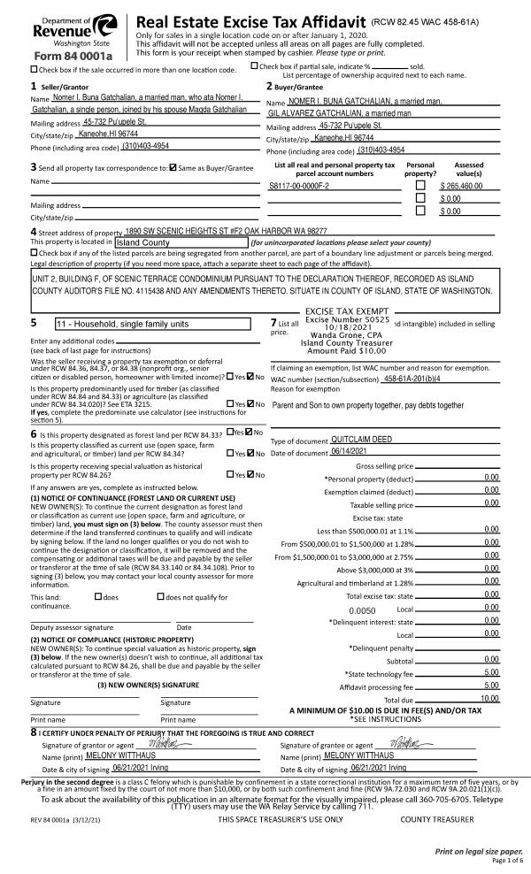
Property
Account |
| Property ID: | 124582 | Abbreviated Legal Description: | 1 - GL1 LY E OF RD SUBJ TO EZ OVER N40' |
| Geographic ID: | R32904-449-5050 | Agent Code: | |
| Type: | Real | | |
| Tax Area: | 712 - APPRAISER-S Whid Schl Dist, outside Langley, improved, greater than 1 acre | Land Use Code | 11 |
| Open Space: | N | DFL | N |
| Historic Property: | N | Remodel Property: | N |
| Multi-Family Redevelopment: | N | | |
| Township: | 29 | Section: | 04 |
| Range: | R3 |
Location |
| Address: | | Mapsco: | |
| Neighborhood: | Cycle 4 | Map ID: | 731 |
| Neighborhood CD: | 4 |
Owner |
| Name: | SIMON, PHILIP D | Owner ID: | 17096 |
| Mailing Address: | 4904 SPINNAKER DR FREELAND, WA 98249 | % Ownership: | 100.0000000000% |
| | | Exemptions: | |
Taxes and Assessment Details
Values
| (+) Improvement Homesite Value: | + | $0 | |
| (+) Improvement Non-Homesite Value: | + | $15,600 | |
| (+) Land Homesite Value: | + | $0 | |
| (+) Land Non-Homesite Value: | + | $330,000 | |
| (+) Curr Use (HS): | + | $0 | $0 |
| (+) Curr Use (NHS): | + | $0 | $0 |
| | | -------------------------- | |
| (=) Market Value: | = | $345,600 | |
| (–) Productivity Loss: | – | $0 | |
| | | -------------------------- | |
| (=) Subtotal: | = | $345,600 | |
| (+) Senior Appraised Value: | + | $0 | |
| (+) Non-Senior Appraised Value: | + | $345,600 | |
| | | -------------------------- | |
| (=) Total Appraised Value: | = | $345,600 | |
| (–) Senior Exemption Loss: | – | $0 | |
| (–) Exemption Loss: | – | $0 | |
| | | -------------------------- | |
| (=) Taxable Value: | = | $345,600 | |
Taxing Jurisdiction
| Owner: | SIMON, PHILIP D | | |
| % Ownership: | 100.0000000000% | | |
| Total Value: | $345,600 | | |
| Tax Area: | 712 - APPRAISER-S Whid Schl Dist, outside Langley, improved, greater than 1 acre |
| CF | Conservation Futures | 0.0316035091 | $345,600 | $345,600 | $10.92 | | |
| FIRE3 | Fire & Rescue Dist #3 S Whidbey GEN | 1.2004855531 | $345,600 | $345,600 | $414.89 | | |
| HOBOND | Hospital BOND | 0.1910887512 | $345,600 | $345,600 | $66.04 | | |
| HOGEN | Hospital GEN | 0.3902502903 | $345,600 | $345,600 | $134.87 | | |
| CE | County Current Expense | 0.3708482477 | $345,600 | $345,600 | $128.17 | | |
| CR | County Roads | 0.4584763726 | $345,600 | $345,600 | $158.45 | | |
| ISLANDEMS | Hospital GEN (EMS) | 0.5000000000 | $345,600 | $345,600 | $172.80 | | |
| LIB | Library Sno-Isle GEN | 0.3153421757 | $345,600 | $345,600 | $108.98 | | |
| PORTWHID | Port of S Whidbey GEN | 0.1094540357 | $345,600 | $345,600 | $37.83 | | |
| SCH206BOND | School 206 BOND | 0.3161759235 | $345,600 | $345,600 | $109.27 | | |
| SCH206MO | School 206 Enrichment | 0.4547169547 | $345,600 | $345,600 | $157.15 | | |
| ST | State School | 1.3035497053 | $345,600 | $345,600 | $450.51 | | |
| ST2 | State School Part 2 | 0.8169543533 | $345,600 | $345,600 | $282.34 | | |
| SWHIDPRBD | P & R S Whidbey BOND | 0.0152817568 | $345,600 | $345,600 | $5.28 | | |
| SWHIDPRBD2 | P & R S Whidbey BOND2 | 0.0138911264 | $345,600 | $345,600 | $4.80 | | |
| SWHIDPRMT | P & R S Whidbey GEN | 0.2053334452 | $345,600 | $345,600 | $70.96 | | |
| | Total Tax Rate: | 6.6934522006 | | | | | |
| | | | | Taxes w/Current Exemptions: | $2,313.26 | | |
| | | | | Taxes w/o Exemptions: | $2,313.26 | | |
Improvement / Building
| Improvement #1: | RESIDENTIAL | State Code: | Y | 0.0 sqft | Value: | $15,600 |
| | Type | Description | Class CD | Sub Class CD | Year Built | Area |
| | oPOL | POLE BARN | 3 | 0 | 1900 | 864.0 |
| | oCPD | CARPRT DRT | 3 | 0 | 1900 | 528.0 |
Sketch
Property Image
Land
| 1 | 35 | AC (10.00-30.99) | 15.4400 | 672566.40 | 0.00 | 0.00 | 1.00 | $330,000 | $0 |
Roll Value History
| 2026 | N/A | N/A | N/A | N/A | N/A |
| 2025 | $15,600 | $330,000 | $0 | $345,600 | $345,600 |
| 2024 | $15,600 | $320,000 | $0 | $335,600 | $335,600 |
| 2023 | $15,600 | $280,000 | $0 | $295,600 | $295,600 |
| 2022 | $15,600 | $250,000 | $0 | $265,600 | $265,600 |
| 2021 | $15,600 | $255,000 | $0 | $270,600 | $270,600 |
| 2020 | $12,528 | $190,000 | $0 | $202,528 | $202,528 |
| 2019 | $12,528 | $135,000 | $0 | $147,528 | $147,528 |
| 2018 | $12,528 | $120,000 | $0 | $132,528 | $132,528 |
| 2017 | $12,528 | $120,000 | $0 | $132,528 | $132,528 |
| 2016 | $12,528 | $100,000 | $0 | $112,528 | $112,528 |
| 2015 | $12,528 | $100,000 | $0 | $112,528 | $112,528 |
| 2014 | $12,528 | $95,000 | $0 | $107,528 | $107,528 |
| 2013 | $12,528 | $95,000 | $0 | $107,528 | $107,528 |
| 2012 | $12,528 | $69,054 | $0 | $81,582 | $81,582 |
| 2011 | $12,528 | $80,304 | $0 | $92,832 | $92,832 |
| 2010 | $12,528 | $80,304 | $0 | $92,832 | $92,832 |
| 2009 | $13,176 | $130,304 | $0 | $143,480 | $143,480 |
| 2008 | $14,040 | $127,376 | $0 | $141,416 | $141,416 |
| 2007 | $14,688 | $127,376 | $0 | $142,064 | $142,064 |
Deed and Sales History
| 1 | 09/11/2018 | EZ | Easement | SIMON, PHILIP D | SIMON, PHILIP D | | | $2,716.00 | 36132 | 4452716 |
| 2 | 09/10/2018 | PRD | Personal Representatives Deed | SIMON, PHILIP D | SIMON, PHILIP D | | | $0.00 | 35897 | 4451747 |
| 3 | 08/01/1991 | OTHER | Other - Misc. Documents | SIMON, PHILIP C | SIMON, PHILIP D | | | $0.00 | 64404 | 90022516 |
| 4 | 12/01/1989 | QCD | Quit Claim Deed | SIMON, PHIL C | SIMON, PHILIP C | | | $0.00 | 96084 | 89019592 |
| 5 | 01/01/1900 | OTHER | Other - Misc. Documents | Unknown | SIMON, PHIL C | | | $0.00 | 0 | 0 |
Payout Agreement
| No payout information available.. |