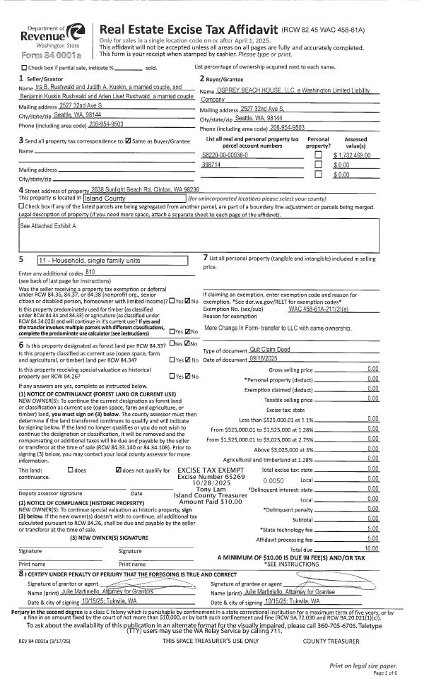
Property
Account |
| Property ID: | 124680 | Abbreviated Legal Description: | 60 - S305' EX W30' FOR RD FOR TR:SW SE EX E/4 & EX W500' EX ALL RDS |
| Geographic ID: | R32905-022-3510 | Agent Code: | |
| Type: | Real | | |
| Tax Area: | 712 - APPRAISER-S Whid Schl Dist, outside Langley, improved, greater than 1 acre | Land Use Code | 11 |
| Open Space: | N | DFL | N |
| Historic Property: | N | Remodel Property: | N |
| Multi-Family Redevelopment: | N | | |
| Township: | 29 | Section: | 05 |
| Range: | R3 |
Location |
| Address: | 3040 QUIGLEY RD LANGLEY, WA 98260 | Mapsco: | |
| Neighborhood: | Cycle 4 | Map ID: | 733 |
| Neighborhood CD: | 4 |
Owner |
| Name: | REAMS JTWROS, JEFFREY D | Owner ID: | 316912 |
| Mailing Address: | LORELIE REAMS JTWROS 3040 QUIGLEY RD LANGLEY, WA 98260 | % Ownership: | 100.0000000000% |
| | | Exemptions: | |
Taxes and Assessment Details
Values
| (+) Improvement Homesite Value: | + | $0 | |
| (+) Improvement Non-Homesite Value: | + | $150,255 | |
| (+) Land Homesite Value: | + | $0 | |
| (+) Land Non-Homesite Value: | + | $380,000 | |
| (+) Curr Use (HS): | + | $0 | $0 |
| (+) Curr Use (NHS): | + | $0 | $0 |
| | | -------------------------- | |
| (=) Market Value: | = | $530,255 | |
| (–) Productivity Loss: | – | $0 | |
| | | -------------------------- | |
| (=) Subtotal: | = | $530,255 | |
| (+) Senior Appraised Value: | + | $0 | |
| (+) Non-Senior Appraised Value: | + | $530,255 | |
| | | -------------------------- | |
| (=) Total Appraised Value: | = | $530,255 | |
| (–) Senior Exemption Loss: | – | $0 | |
| (–) Exemption Loss: | – | $0 | |
| | | -------------------------- | |
| (=) Taxable Value: | = | $530,255 | |
Taxing Jurisdiction
| Owner: | REAMS JTWROS, JEFFREY D | | |
| % Ownership: | 100.0000000000% | | |
| Total Value: | $530,255 | | |
| Tax Area: | 712 - APPRAISER-S Whid Schl Dist, outside Langley, improved, greater than 1 acre |
| CF | Conservation Futures | 0.0316035091 | $530,255 | $530,255 | $16.76 | | |
| FIRE3 | Fire & Rescue Dist #3 S Whidbey GEN | 1.2004855531 | $530,255 | $530,255 | $636.56 | | |
| HOBOND | Hospital BOND | 0.1910887512 | $530,255 | $530,255 | $101.33 | | |
| HOGEN | Hospital GEN | 0.3902502903 | $530,255 | $530,255 | $206.93 | | |
| CE | County Current Expense | 0.3708482477 | $530,255 | $530,255 | $196.64 | | |
| CR | County Roads | 0.4584763726 | $530,255 | $530,255 | $243.11 | | |
| ISLANDEMS | Hospital GEN (EMS) | 0.5000000000 | $530,255 | $530,255 | $265.13 | | |
| LIB | Library Sno-Isle GEN | 0.3153421757 | $530,255 | $530,255 | $167.21 | | |
| PORTWHID | Port of S Whidbey GEN | 0.1094540357 | $530,255 | $530,255 | $58.04 | | |
| SCH206BOND | School 206 BOND | 0.3161759235 | $530,255 | $530,255 | $167.65 | | |
| SCH206MO | School 206 Enrichment | 0.4547169547 | $530,255 | $530,255 | $241.12 | | |
| ST | State School | 1.3035497053 | $530,255 | $530,255 | $691.21 | | |
| ST2 | State School Part 2 | 0.8169543533 | $530,255 | $530,255 | $433.19 | | |
| SWHIDPRBD | P & R S Whidbey BOND | 0.0152817568 | $530,255 | $530,255 | $8.10 | | |
| SWHIDPRBD2 | P & R S Whidbey BOND2 | 0.0138911264 | $530,255 | $530,255 | $7.37 | | |
| SWHIDPRMT | P & R S Whidbey GEN | 0.2053334452 | $530,255 | $530,255 | $108.88 | | |
| | Total Tax Rate: | 6.6934522006 | | | | | |
| | | | | Taxes w/Current Exemptions: | $3,549.23 | | |
| | | | | Taxes w/o Exemptions: | $3,549.23 | | |
Improvement / Building
| Improvement #1: | RESIDENTIAL | State Code: | Y | 1080.0 sqft | Value: | $150,255 |
| Bathrooms: | 1 | Bedrooms: | 3 | | Ceiling: | DRY WALL SPRAYED | Cooling: | HEAT PUMP/CONV/V | | Exterior Wall/Cover: | PLY/HARDBOARD T-111 | Floor Covering: | CARPET/VINYL 80-20 | | Floor Structure: | WOOD W/SUBFLOOR | Foundation: | CONCRETE | | Interior Finish: | DRYWALL PAINT | Plumbing Fixture Cnt: | 7 | | Roof Slope: | 4" IN 12" | Roof Structure/Cover: | CJ ASPHALT |
|
| | Type | Description | Class CD | Sub Class CD | Year Built | Area |
| | BAS | BASE/MAIN FLOOR | 3 | 0 | 1971 | 1080.0 |
| | OWP | OPEN WOOD PORCH W/STEPS | 3 | 0 | 1971 | 32.0 |
| | UTY | STORAGE/UTILITY | 3 | 0 | 1971 | 352.7 |
Sketch
Property Image
Land
| 1 | 32 | AC (03.01-09.99) | 0.0000 | 0.00 | 0.00 | 0.00 | 1.00 | $380,000 | $0 |
Roll Value History
| 2026 | N/A | N/A | N/A | N/A | N/A |
| 2025 | $150,255 | $380,000 | $0 | $530,255 | $530,255 |
| 2024 | $152,425 | $350,000 | $0 | $502,425 | $502,425 |
| 2023 | $154,595 | $330,000 | $0 | $484,595 | $193,838 |
| 2022 | $142,967 | $290,000 | $0 | $432,967 | $432,967 |
| 2021 | $126,028 | $230,000 | $0 | $356,028 | $356,028 |
| 2020 | $117,417 | $190,000 | $0 | $307,417 | $307,417 |
| 2019 | $83,548 | $250,000 | $0 | $333,548 | $333,548 |
| 2018 | $82,737 | $210,000 | $0 | $292,737 | $292,737 |
| 2017 | $76,410 | $190,000 | $0 | $266,410 | $266,410 |
| 2016 | $77,623 | $135,000 | $0 | $212,623 | $212,623 |
| 2015 | $78,869 | $135,000 | $0 | $213,869 | $213,869 |
| 2014 | $83,498 | $95,000 | $0 | $178,498 | $178,498 |
| 2013 | $85,053 | $95,000 | $0 | $180,053 | $180,053 |
| 2012 | $86,607 | $97,750 | $0 | $184,357 | $184,357 |
| 2011 | $88,332 | $115,000 | $0 | $203,332 | $203,332 |
| 2010 | $95,802 | $115,000 | $0 | $210,802 | $210,802 |
| 2009 | $99,848 | $120,000 | $0 | $219,848 | $219,848 |
| 2008 | $101,242 | $146,300 | $0 | $247,542 | $247,542 |
| 2007 | $102,651 | $146,300 | $0 | $248,951 | $248,951 |
Deed and Sales History
| 1 | 05/29/2025 | QCD | Quit Claim Deed | REAMS, JEFF D | REAMS JTWROS, JEFFREY D | | | $0.00 | 63770 | 4586901 |
| 2 | 11/01/2018 | QCD | Quit Claim Deed | REAMS, LORELIE POSA | REAMS, JEFF D | | | $0.00 | 36835 | 4455794 |
| 3 | 11/01/2018 | WD | Warranty Deed | SCHLANGEN, DAN ADAM | REAMS, JEFF D | | | $299,000.00 | 36834 | 4455793 |
| 4 | 05/11/2009 | PRD | Personal Representatives Deed | SCHMIDT, ROBERT S | SCHLANGEN, DAN ADAM | | | $227,500.00 | 91072 | 4251464 |
| 5 | 05/01/1995 | OTHER | Other - Misc. Documents | SCHMIDT, VELMA | SCHMIDT, ROBERT S | | | $0.00 | 51713 | 0 |
| 6 | 01/01/1900 | OTHER | Other - Misc. Documents | Unknown | SCHMIDT, VELMA | | | $0.00 | 0 | 0 |
Payout Agreement
| No payout information available.. |