Property
Account |
| Property ID: | 124742 | Abbreviated Legal Description: | 61 - TR C IN GL 6 AS PER MAP REC VOL29 PG 505 MISC EX PT TO IS CO AF#4122103 |
| Geographic ID: | R32905-051-1700 | Agent Code: | |
| Type: | Real | | |
| Tax Area: | 710 - APPRAISER-S Whid Schl Dist, outside Langley, improved & 1 acre or less | Land Use Code | 11 |
| Open Space: | N | DFL | N |
| Historic Property: | N | Remodel Property: | N |
| Multi-Family Redevelopment: | N | | |
| Township: | 29 | Section: | 05 |
| Range: | R3 |
Location |
| Address: | 5170 BAYVIEW RD LANGLEY, WA 98260 | Mapsco: | |
| Neighborhood: | Cycle 4 | Map ID: | 732 |
| Neighborhood CD: | 4 |
Owner |
| Name: | CLARK, JANICE C / THOMAS P | Owner ID: | 54529 |
| Mailing Address: | 5170 BAYVIEW RD LANGLEY, WA 98260-9789 | % Ownership: | 100.0000000000% |
| | | Exemptions: | |
Taxes and Assessment Details
Values
| (+) Improvement Homesite Value: | + | $0 | |
| (+) Improvement Non-Homesite Value: | + | $367,796 | |
| (+) Land Homesite Value: | + | $0 | |
| (+) Land Non-Homesite Value: | + | $410,000 | |
| (+) Curr Use (HS): | + | $0 | $0 |
| (+) Curr Use (NHS): | + | $0 | $0 |
| | | -------------------------- | |
| (=) Market Value: | = | $777,796 | |
| (–) Productivity Loss: | – | $0 | |
| | | -------------------------- | |
| (=) Subtotal: | = | $777,796 | |
| (+) Senior Appraised Value: | + | $0 | |
| (+) Non-Senior Appraised Value: | + | $777,796 | |
| | | -------------------------- | |
| (=) Total Appraised Value: | = | $777,796 | |
| (–) Senior Exemption Loss: | – | $0 | |
| (–) Exemption Loss: | – | $0 | |
| | | -------------------------- | |
| (=) Taxable Value: | = | $777,796 | |
Taxing Jurisdiction
| Owner: | CLARK, JANICE C / THOMAS P | | |
| % Ownership: | 100.0000000000% | | |
| Total Value: | $777,796 | | |
| Tax Area: | 710 - APPRAISER-S Whid Schl Dist, outside Langley, improved & 1 acre or less |
| CF | Conservation Futures | 0.0316035091 | $777,796 | $777,796 | $24.58 | | |
| FIRE3 | Fire & Rescue Dist #3 S Whidbey GEN | 1.2004855531 | $777,796 | $777,796 | $933.73 | | |
| HOBOND | Hospital BOND | 0.1910887512 | $777,796 | $777,796 | $148.63 | | |
| HOGEN | Hospital GEN | 0.3902502903 | $777,796 | $777,796 | $303.54 | | |
| CE | County Current Expense | 0.3708482477 | $777,796 | $777,796 | $288.44 | | |
| CR | County Roads | 0.4584763726 | $777,796 | $777,796 | $356.60 | | |
| ISLANDEMS | Hospital GEN (EMS) | 0.5000000000 | $777,796 | $777,796 | $388.90 | | |
| LIB | Library Sno-Isle GEN | 0.3153421757 | $777,796 | $777,796 | $245.27 | | |
| PORTWHID | Port of S Whidbey GEN | 0.1094540357 | $777,796 | $777,796 | $85.13 | | |
| SCH206BOND | School 206 BOND | 0.3161759235 | $777,796 | $777,796 | $245.92 | | |
| SCH206MO | School 206 Enrichment | 0.4547169547 | $777,796 | $777,796 | $353.68 | | |
| ST | State School | 1.3035497053 | $777,796 | $777,796 | $1,013.90 | | |
| ST2 | State School Part 2 | 0.8169543533 | $777,796 | $777,796 | $635.42 | | |
| SWHIDPRBD | P & R S Whidbey BOND | 0.0152817568 | $777,796 | $777,796 | $11.89 | | |
| SWHIDPRBD2 | P & R S Whidbey BOND2 | 0.0138911264 | $777,796 | $777,796 | $10.80 | | |
| SWHIDPRMT | P & R S Whidbey GEN | 0.2053334452 | $777,796 | $777,796 | $159.71 | | |
| | Total Tax Rate: | 6.6934522006 | | | | | |
| | | | | Taxes w/Current Exemptions: | $5,206.14 | | |
| | | | | Taxes w/o Exemptions: | $5,206.14 | | |
Improvement / Building
| Improvement #1: | RESIDENTIAL | State Code: | Y | 1966.1 sqft | Value: | $367,796 |
| Bathrooms: | 2 | Bedrooms: | 3 | | Ceiling: | DRYWALL PAINTED | Cooling: | HEAT PUMP/CONV/V | | Exterior Wall/Cover: | CEMENT FIBER | Floor Covering: | HARDWOOD/CARP 60-40 | | Floor Structure: | WOOD W/SUBFLOOR | Foundation: | CONCRETE | | Interior Finish: | DRYWALL PAINT | Plumbing Fixture Cnt: | 9 | | Roof Slope: | 8" IN 12" | Roof Structure/Cover: | CJ ASPHALT |
|
| | Type | Description | Class CD | Sub Class CD | Year Built | Area |
| | BAS | BASE/MAIN FLOOR | 3 | 0 | 2000 | 1966.1 |
| | AGR | ATTACHED GARAGE | 3 | 0 | 2000 | 862.0 |
| | UTY | STORAGE/UTILITY | 3 | 0 | 2000 | 160.0 |
| | OWP | OPEN WOOD PORCH W/STEPS | 3 | 0 | 2000 | 571.7 |
Sketch
Property Image
Land
| 1 | 16 | AC (00.51-01.00) | 0.0000 | 0.00 | 57.50 | 0.00 | 1.00 | $410,000 | $0 |
Roll Value History
| 2026 | N/A | N/A | N/A | N/A | N/A |
| 2025 | $367,796 | $410,000 | $0 | $777,796 | $777,796 |
| 2024 | $372,213 | $390,000 | $0 | $762,213 | $762,213 |
| 2023 | $376,631 | $360,000 | $0 | $736,631 | $736,631 |
| 2022 | $345,034 | $350,000 | $0 | $695,034 | $695,034 |
| 2021 | $299,825 | $220,000 | $0 | $519,825 | $519,825 |
| 2020 | $279,625 | $200,000 | $0 | $479,625 | $479,625 |
| 2019 | $214,023 | $250,000 | $0 | $464,023 | $464,023 |
| 2018 | $214,649 | $200,000 | $0 | $414,649 | $414,649 |
| 2017 | $215,955 | $200,000 | $0 | $415,955 | $415,955 |
| 2016 | $218,467 | $170,000 | $0 | $388,467 | $388,467 |
| 2015 | $220,978 | $170,000 | $0 | $390,978 | $390,978 |
| 2014 | $214,662 | $175,000 | $0 | $389,662 | $389,662 |
| 2013 | $217,060 | $154,328 | $0 | $371,388 | $371,388 |
| 2012 | $219,459 | $154,328 | $0 | $373,787 | $373,787 |
| 2011 | $221,856 | $154,328 | $0 | $376,184 | $376,184 |
| 2010 | $229,664 | $154,328 | $0 | $383,992 | $383,992 |
| 2009 | $239,496 | $158,420 | $0 | $397,916 | $397,916 |
| 2008 | $239,346 | $158,420 | $0 | $397,766 | $397,766 |
| 2007 | $215,038 | $183,180 | $0 | $398,218 | $398,218 |
Deed and Sales History
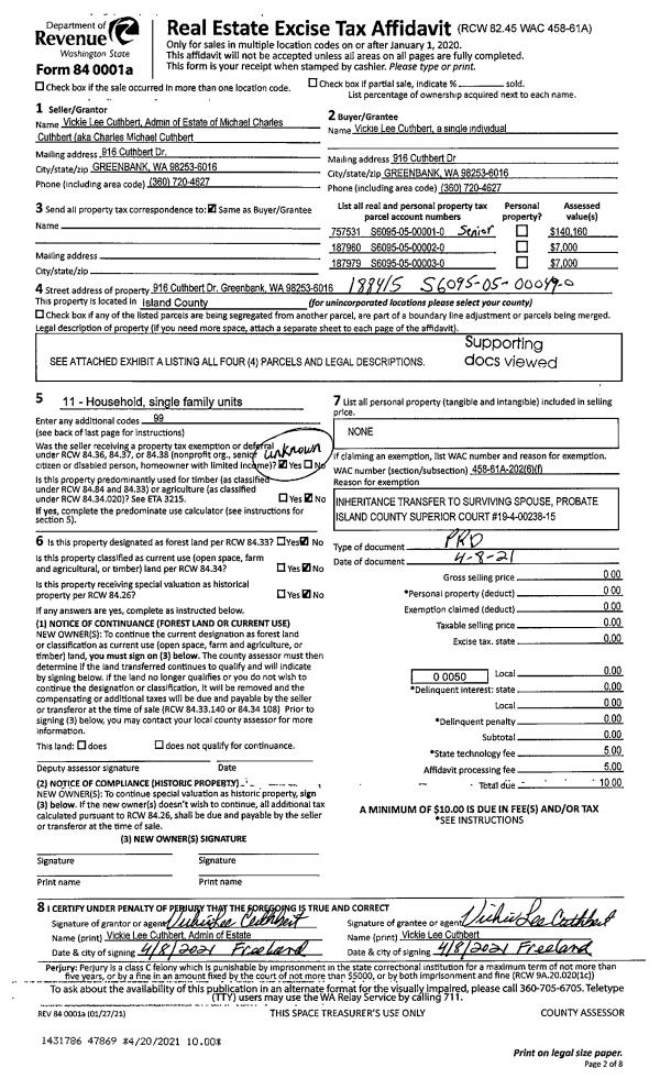
| 1 | 10/25/2005 | QCD | Quit Claim Deed | Unknown | CLARK, JANICE C / THOMAS P | | | $6,160.00 | 70681 | 4122103 |
| 2 | 08/15/2000 | EZ | Easement | CLARK, JANICE C / THOMAS P | CLARK, JANICE C / THOMAS P | | | $0.00 | 3200 | 20014985 |
Payout Agreement
| No payout information available.. |