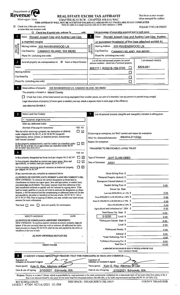
Property
Account |
| Property ID: | 124993 | Abbreviated Legal Description: | 36 - IN NW SE: BG SECR NW SE W1082.70' TPB W330.15' N2*W TO CLN RD NELY TP N2*W FR TPB S2*E TPB EX RD INCL 1/6 INT IN WELL |
| Geographic ID: | R32905-186-2860 | Agent Code: | |
| Type: | Real | | |
| Tax Area: | 712 - APPRAISER-S Whid Schl Dist, outside Langley, improved, greater than 1 acre | Land Use Code | 11 |
| Open Space: | N | DFL | N |
| Historic Property: | N | Remodel Property: | N |
| Multi-Family Redevelopment: | N | | |
| Township: | 29 | Section: | 05 |
| Range: | R3 |
Location |
| Address: | 5028 BAYVIEW RD LANGLEY, WA 98260 | Mapsco: | |
| Neighborhood: | Cycle 4 | Map ID: | 733 |
| Neighborhood CD: | 4 |
Owner |
| Name: | WILSON, MATTHEW C | Owner ID: | 92435 |
| Mailing Address: | SUZANNE J WILSON PO BOX 428 2ND ST LANGLEY, WA 98260 | % Ownership: | 100.0000000000% |
| | | Exemptions: | |
Taxes and Assessment Details
Values
| (+) Improvement Homesite Value: | + | $0 | |
| (+) Improvement Non-Homesite Value: | + | $173,471 | |
| (+) Land Homesite Value: | + | $0 | |
| (+) Land Non-Homesite Value: | + | $380,000 | |
| (+) Curr Use (HS): | + | $0 | $0 |
| (+) Curr Use (NHS): | + | $0 | $0 |
| | | -------------------------- | |
| (=) Market Value: | = | $553,471 | |
| (–) Productivity Loss: | – | $0 | |
| | | -------------------------- | |
| (=) Subtotal: | = | $553,471 | |
| (+) Senior Appraised Value: | + | $0 | |
| (+) Non-Senior Appraised Value: | + | $553,471 | |
| | | -------------------------- | |
| (=) Total Appraised Value: | = | $553,471 | |
| (–) Senior Exemption Loss: | – | $0 | |
| (–) Exemption Loss: | – | $0 | |
| | | -------------------------- | |
| (=) Taxable Value: | = | $553,471 | |
Taxing Jurisdiction
| Owner: | WILSON, MATTHEW C | | |
| % Ownership: | 100.0000000000% | | |
| Total Value: | $553,471 | | |
| Tax Area: | 712 - APPRAISER-S Whid Schl Dist, outside Langley, improved, greater than 1 acre |
| CF | Conservation Futures | 0.0316035091 | $553,471 | $553,471 | $17.49 | | |
| FIRE3 | Fire & Rescue Dist #3 S Whidbey GEN | 1.2004855531 | $553,471 | $553,471 | $664.43 | | |
| HOBOND | Hospital BOND | 0.1910887512 | $553,471 | $553,471 | $105.76 | | |
| HOGEN | Hospital GEN | 0.3902502903 | $553,471 | $553,471 | $215.99 | | |
| CE | County Current Expense | 0.3708482477 | $553,471 | $553,471 | $205.25 | | |
| CR | County Roads | 0.4584763726 | $553,471 | $553,471 | $253.75 | | |
| ISLANDEMS | Hospital GEN (EMS) | 0.5000000000 | $553,471 | $553,471 | $276.74 | | |
| LIB | Library Sno-Isle GEN | 0.3153421757 | $553,471 | $553,471 | $174.53 | | |
| PORTWHID | Port of S Whidbey GEN | 0.1094540357 | $553,471 | $553,471 | $60.58 | | |
| SCH206BOND | School 206 BOND | 0.3161759235 | $553,471 | $553,471 | $174.99 | | |
| SCH206MO | School 206 Enrichment | 0.4547169547 | $553,471 | $553,471 | $251.67 | | |
| ST | State School | 1.3035497053 | $553,471 | $553,471 | $721.48 | | |
| ST2 | State School Part 2 | 0.8169543533 | $553,471 | $553,471 | $452.16 | | |
| SWHIDPRBD | P & R S Whidbey BOND | 0.0152817568 | $553,471 | $553,471 | $8.46 | | |
| SWHIDPRBD2 | P & R S Whidbey BOND2 | 0.0138911264 | $553,471 | $553,471 | $7.69 | | |
| SWHIDPRMT | P & R S Whidbey GEN | 0.2053334452 | $553,471 | $553,471 | $113.65 | | |
| | Total Tax Rate: | 6.6934522006 | | | | | |
| | | | | Taxes w/Current Exemptions: | $3,704.62 | | |
| | | | | Taxes w/o Exemptions: | $3,704.62 | | |
Improvement / Building
| Improvement #1: | RESIDENTIAL | State Code: | Y | 1200.0 sqft | Value: | $131,118 |
| Bathrooms: | 1 | Bedrooms: | 2 | | Ceiling: | DRYWALL PAINTED | Exterior Wall/Cover: | WOOD SIDING | | Floor Covering: | HARDWOOD/CARP 20-80 | Floor Structure: | WOOD W/SUBFLOOR | | Foundation: | CONCRETE | Heating: | FHA GAS | | Interior Finish: | DRYWALL PAINT | Plumbing Fixture Cnt: | 6 | | Roof Slope: | 12" IN 12" | Roof Structure/Cover: | CJ ASPHALT |
|
| | Type | Description | Class CD | Sub Class CD | Year Built | Area |
| | BAS | BASE/MAIN FLOOR | 3 | 0 | 1910 | 720.0 |
| | UTY | STORAGE/UTILITY | 3 | 0 | 1910 | 72.0 |
| | OWP | OPEN WOOD PORCH W/STEPS | 3 | 0 | 1910 | 72.0 |
| | OWC | OPEN WOOD PORCH W/STEPS/ROOF/C | 3 | 0 | 1910 | 96.0 |
| | UPH | HALF STORY | 3 | 0 | 1910 | 480.0 |
| | UTY | STORAGE/UTILITY | 3 | 0 | 1910 | 400.0 |
| | CPD | OPEN CARPORT DIRT FLOOR | 3 | 0 | 1910 | 240.0 |
| Improvement #2: | MANUFACTURED HOME | State Code: | Y | 1654.0 sqft | Value: | $42,353 |
| Bathrooms: | 0 | Bedrooms: | 0 | | Ceiling: | PLASTER PAINTED | Cooling: | EVAP NO DUCT | | Exterior Wall/Cover: | VINYL | Floor Covering: | CARPET 100% | | Floor Structure: | SLAB ON GRADE | Foundation: | SLAB | | Heating: | FHA ELECTRIC | Interior Finish: | PLASTER | | Plumbing Fixture Cnt: | 1 | Roof Slope: | FLAT | | Roof Structure/Cover: | CJ ALUMINIUM HEAVY |   |   |
|
| | Type | Description | Class CD | Sub Class CD | Year Built | Area |
| | OWP | OPEN WOOD PORCH W/STEPS | 3 | 0 | 1971 | 345.0 |
| | OWP | OPEN WOOD PORCH W/STEPS | 3 | 0 | 1971 | 200.0 |
| | ENP | ENCLOSED PORCH | 3 | 0 | 1971 | 128.0 |
| | BAS | BASE/MAIN FLOOR | 3 | 0 | 1971 | 1654.0 |
| | ENP | ENCLOSED PORCH | 3 | 0 | 1971 | 432.0 |
| | OWP | OPEN WOOD PORCH W/STEPS | 3 | 0 | 1971 | 288.0 |
Sketch
Property Image
Land
| 1 | 32 | AC (03.01-09.99) | 6.3700 | 0.00 | 0.00 | 0.00 | 1.00 | $380,000 | $0 |
Roll Value History
| 2026 | N/A | N/A | N/A | N/A | N/A |
| 2025 | $173,471 | $380,000 | $0 | $553,471 | $553,471 |
| 2024 | $177,816 | $350,000 | $0 | $527,816 | $527,816 |
| 2023 | $183,927 | $330,000 | $0 | $513,927 | $513,927 |
| 2022 | $170,613 | $290,000 | $0 | $460,613 | $460,613 |
| 2021 | $153,356 | $230,000 | $0 | $383,356 | $383,356 |
| 2020 | $151,499 | $190,000 | $0 | $341,499 | $341,499 |
| 2019 | $115,475 | $250,000 | $0 | $365,475 | $365,475 |
| 2018 | $117,951 | $210,000 | $0 | $327,951 | $327,951 |
| 2017 | $118,242 | $190,000 | $0 | $308,242 | $308,242 |
| 2016 | $121,582 | $165,000 | $0 | $286,582 | $286,582 |
| 2015 | $124,924 | $165,000 | $0 | $289,924 | $289,924 |
| 2014 | $116,360 | $171,990 | $0 | $288,350 | $288,350 |
| 2013 | $118,376 | $171,990 | $0 | $290,366 | $290,366 |
| 2012 | $121,108 | $171,990 | $0 | $293,098 | $293,098 |
| 2011 | $123,128 | $171,990 | $0 | $295,118 | $295,118 |
| 2010 | $147,732 | $171,990 | $0 | $319,722 | $319,722 |
| 2009 | $152,037 | $280,280 | $0 | $432,317 | $432,317 |
| 2008 | $165,634 | $218,313 | $0 | $383,947 | $383,947 |
| 2007 | $169,862 | $218,313 | $0 | $388,175 | $388,175 |
Deed and Sales History
| 1 | 10/30/2003 | WD | Warranty Deed | SMIT, ILSE M | WILSON, MATTHEW C | | | $275,000.00 | 35129 | 4082676 |
| 2 | 10/01/1999 | OTHER | Other - Misc. Documents | SMIT, ILSE M | SMIT, ILSE M | | | $0.00 | 94135 | 0 |
| 3 | 12/07/1998 | OTHER | Other - Misc. Documents | SMIT, JAN | SMIT, ILSE M | | | $0.00 | 68096 | 98025282 |
| 4 | 07/01/1988 | OTHER | Other - Misc. Documents | HOWE, HARRISON L | SMIT, JAN & | | | $24,000.00 | 82248 | 0 |
| 5 | 07/01/1988 | WD | Warranty Deed | SMIT, JAN & | SMIT, JAN | | | $37,000.00 | 82249 | 88008304 |
| 6 | 01/01/1900 | OTHER | Other - Misc. Documents | Unknown | HOWE, HARRISON L | | | $0.00 | 0 | 0 |
| 7 | 01/01/1900 | OTHER | Other - Misc. Documents | HOWE, HARRISON L | HOWE, HARRISON L | | | $0.00 | 0 | 0 |
Payout Agreement
| No payout information available.. |