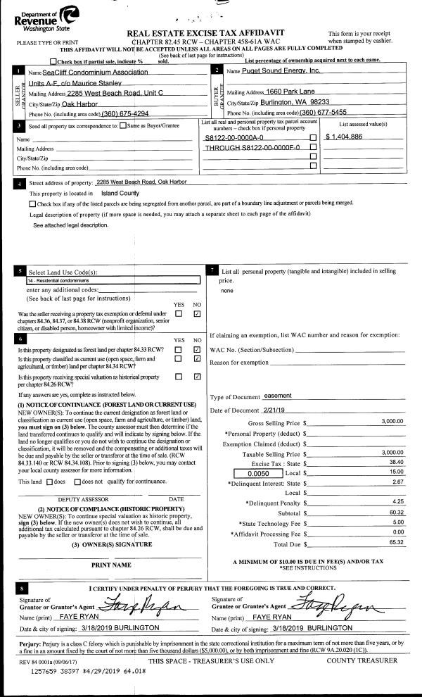
Property
Account |
| Property ID: | 125144 | Abbreviated Legal Description: | 68 - S263' OF SW SW NW EX E460' EX RDS |
| Geographic ID: | R32905-277-0170 | Agent Code: | |
| Type: | Real | | |
| Tax Area: | 712 - APPRAISER-S Whid Schl Dist, outside Langley, improved, greater than 1 acre | Land Use Code | 11 |
| Open Space: | N | DFL | N |
| Historic Property: | N | Remodel Property: | N |
| Multi-Family Redevelopment: | N | | |
| Township: | 29 | Section: | 05 |
| Range: | R3 |
Location |
| Address: | 2811 ANDREASON RD LANGLEY, WA 98260 | Mapsco: | |
| Neighborhood: | Cycle 4 | Map ID: | 732 |
| Neighborhood CD: | 4 |
Owner |
| Name: | ARRINGTON, ANDRE JACORY | Owner ID: | 310507 |
| Mailing Address: | 2811 ANDREASON RD LANGLEY, WA 98260 | % Ownership: | 100.0000000000% |
| | | Exemptions: | |
Taxes and Assessment Details
Values
| (+) Improvement Homesite Value: | + | $0 | |
| (+) Improvement Non-Homesite Value: | + | $185,133 | |
| (+) Land Homesite Value: | + | $0 | |
| (+) Land Non-Homesite Value: | + | $290,000 | |
| (+) Curr Use (HS): | + | $0 | $0 |
| (+) Curr Use (NHS): | + | $0 | $0 |
| | | -------------------------- | |
| (=) Market Value: | = | $475,133 | |
| (–) Productivity Loss: | – | $0 | |
| | | -------------------------- | |
| (=) Subtotal: | = | $475,133 | |
| (+) Senior Appraised Value: | + | $0 | |
| (+) Non-Senior Appraised Value: | + | $475,133 | |
| | | -------------------------- | |
| (=) Total Appraised Value: | = | $475,133 | |
| (–) Senior Exemption Loss: | – | $0 | |
| (–) Exemption Loss: | – | $0 | |
| | | -------------------------- | |
| (=) Taxable Value: | = | $475,133 | |
Taxing Jurisdiction
| Owner: | ARRINGTON, ANDRE JACORY | | |
| % Ownership: | 100.0000000000% | | |
| Total Value: | $475,133 | | |
| Tax Area: | 712 - APPRAISER-S Whid Schl Dist, outside Langley, improved, greater than 1 acre |
| CF | Conservation Futures | 0.0316035091 | $475,133 | $475,133 | $15.02 | | |
| FIRE3 | Fire & Rescue Dist #3 S Whidbey GEN | 1.2004855531 | $475,133 | $475,133 | $570.39 | | |
| HOBOND | Hospital BOND | 0.1910887512 | $475,133 | $475,133 | $90.79 | | |
| HOGEN | Hospital GEN | 0.3902502903 | $475,133 | $475,133 | $185.42 | | |
| CE | County Current Expense | 0.3708482477 | $475,133 | $475,133 | $176.20 | | |
| CR | County Roads | 0.4584763726 | $475,133 | $475,133 | $217.84 | | |
| ISLANDEMS | Hospital GEN (EMS) | 0.5000000000 | $475,133 | $475,133 | $237.57 | | |
| LIB | Library Sno-Isle GEN | 0.3153421757 | $475,133 | $475,133 | $149.83 | | |
| PORTWHID | Port of S Whidbey GEN | 0.1094540357 | $475,133 | $475,133 | $52.01 | | |
| SCH206BOND | School 206 BOND | 0.3161759235 | $475,133 | $475,133 | $150.23 | | |
| SCH206MO | School 206 Enrichment | 0.4547169547 | $475,133 | $475,133 | $216.05 | | |
| ST | State School | 1.3035497053 | $475,133 | $475,133 | $619.36 | | |
| ST2 | State School Part 2 | 0.8169543533 | $475,133 | $475,133 | $388.16 | | |
| SWHIDPRBD | P & R S Whidbey BOND | 0.0152817568 | $475,133 | $475,133 | $7.26 | | |
| SWHIDPRBD2 | P & R S Whidbey BOND2 | 0.0138911264 | $475,133 | $475,133 | $6.60 | | |
| SWHIDPRMT | P & R S Whidbey GEN | 0.2053334452 | $475,133 | $475,133 | $97.56 | | |
| | Total Tax Rate: | 6.6934522006 | | | | | |
| | | | | Taxes w/Current Exemptions: | $3,180.29 | | |
| | | | | Taxes w/o Exemptions: | $3,180.29 | | |
Improvement / Building
| Improvement #1: | MANUFACTURED HOME | State Code: | Y | 1620.0 sqft | Value: | $185,133 |
| Bathrooms: | 1 | Bedrooms: | 2 | | Ceiling: | PLASTER PAINTED | Cooling: | EVAP NO DUCT | | Exterior Wall/Cover: | VINYL | Floor Covering: | CARPET 100% | | Floor Structure: | SLAB ON GRADE | Foundation: | SLAB | | Heating: | FHA ELECTRIC | Interior Finish: | PLASTER | | Roof Slope: | FLAT | Roof Structure/Cover: | CJ ALUMINIUM HEAVY |
|
| | Type | Description | Class CD | Sub Class CD | Year Built | Area |
| | BAS | BASE/MAIN FLOOR | 4 | 0 | 2018 | 1620.0 |
| | UTY | STORAGE/UTILITY | 4 | 0 | 2018 | 864.0 |
| | ATU | ATTIC UNFINISHED | 4 | 0 | 2018 | 288.0 |
| | OCP | OPEN CARPORT | 4 | 0 | 2018 | 144.0 |
Sketch
Property Image
Land
| 1 | 17 | AC (01.01-02.00) | 0.0000 | 0.00 | 0.00 | 0.00 | 1.00 | $290,000 | $0 |
Roll Value History
| 2026 | N/A | N/A | N/A | N/A | N/A |
| 2025 | $185,133 | $290,000 | $0 | $475,133 | $475,133 |
| 2024 | $187,144 | $290,000 | $0 | $477,144 | $477,144 |
| 2023 | $143,817 | $250,000 | $0 | $393,817 | $393,817 |
| 2022 | $132,996 | $250,000 | $0 | $382,996 | $382,996 |
| 2021 | $116,852 | $190,000 | $0 | $306,852 | $306,852 |
| 2020 | $114,572 | $190,000 | $0 | $304,572 | $304,572 |
| 2019 | $89,405 | $200,000 | $0 | $289,405 | $289,405 |
| 2018 | $6,281 | $180,000 | $0 | $186,281 | $186,281 |
| 2017 | $54,393 | $180,000 | $0 | $234,393 | $234,393 |
| 2016 | $56,190 | $115,000 | $0 | $171,190 | $171,190 |
| 2015 | $58,887 | $100,000 | $0 | $158,887 | $158,887 |
| 2014 | $55,718 | $85,000 | $0 | $140,718 | $140,718 |
| 2013 | $57,128 | $85,000 | $0 | $142,128 | $142,128 |
| 2012 | $59,243 | $97,750 | $0 | $156,993 | $156,993 |
| 2011 | $60,653 | $115,000 | $0 | $175,653 | $175,653 |
| 2010 | $61,981 | $115,000 | $0 | $176,981 | $176,981 |
| 2009 | $65,238 | $155,000 | $0 | $220,238 | $220,238 |
| 2008 | $65,747 | $105,524 | $0 | $171,271 | $171,271 |
| 2007 | $67,868 | $105,524 | $0 | $173,392 | $173,392 |
Deed and Sales History
| 1 | 10/26/2023 | WD | Warranty Deed | SIMMONS, WAYNE H | ARRINGTON, ANDRE JACORY | | | $495,000.00 | 58360 | 4566156 |
| 2 | 05/06/2019 | WD | Warranty Deed | CALLAHAN, BRANDON | SIMMONS, WAYNE H | | | $348,000.00 | 38407 | 4462915 |
| 3 | 02/04/2009 | WD | Warranty Deed | MCCLOSKEY, LELAND | CALLAHAN, BRANDON | | | $174,000.00 | 90227 | 4244057 |
| 4 | 07/01/1981 | OTHER | Other - Misc. Documents | MCCLOSKEY, LELAND R | MCCLOSKEY, LELAND | | | $32,740.00 | 0 | 0 |
| 5 | 11/01/1978 | OTHER | Other - Misc. Documents | Unknown | MCCLOSKEY, LELAND R | | | $14,000.00 | 85269 | 341971 |
Payout Agreement
| No payout information available.. |