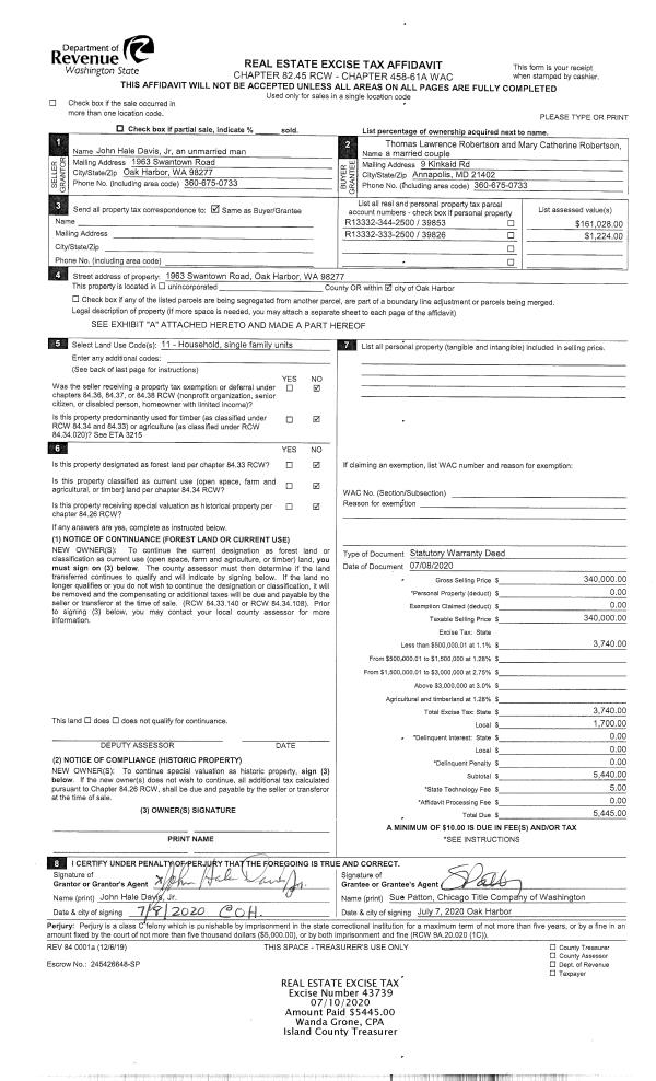
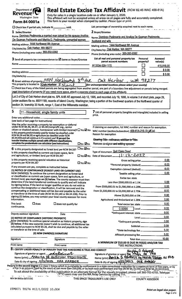
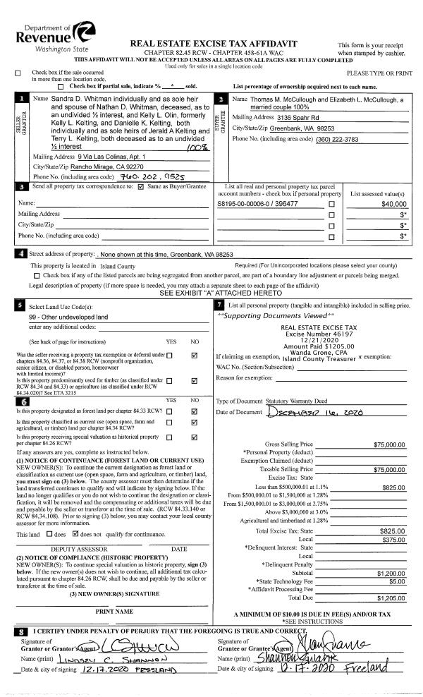
Property
Account |
| Property ID: | 125171 | Abbreviated Legal Description: | 33 - IN SW NE: BG PT 495'S OF NECR SW NE S705.5' W TO CO RD NELY ALG RD TP W OF TPB E TPB EX PT LY NWLY OF LANGLEY-USELESS BAY RD AKA BAYVIEW CO RD TGW & SUB EZ AF#338796 |
| Geographic ID: | R32905-296-4000 | Agent Code: | |
| Type: | Real | | |
| Tax Area: | 712 - APPRAISER-S Whid Schl Dist, outside Langley, improved, greater than 1 acre | Land Use Code | 11 |
| Open Space: | N | DFL | N |
| Historic Property: | N | Remodel Property: | N |
| Multi-Family Redevelopment: | N | | |
| Township: | 29 | Section: | 05 |
| Range: | R3 |
Location |
| Address: | 4983 BAYVIEW RD LANGLEY, WA 98260 | Mapsco: | |
| Neighborhood: | Cycle 4 | Map ID: | 735 |
| Neighborhood CD: | 4 |
Owner |
| Name: | OSBORN, JEFFREY | Owner ID: | 301739 |
| Mailing Address: | ANNETTE HEDDEN 4983 BAYVIEW RD LANGLEY, WA 98260 | % Ownership: | 100.0000000000% |
| | | Exemptions: | |
Taxes and Assessment Details
Values
| (+) Improvement Homesite Value: | + | $0 | |
| (+) Improvement Non-Homesite Value: | + | $395,309 | |
| (+) Land Homesite Value: | + | $0 | |
| (+) Land Non-Homesite Value: | + | $310,000 | |
| (+) Curr Use (HS): | + | $0 | $0 |
| (+) Curr Use (NHS): | + | $0 | $0 |
| | | -------------------------- | |
| (=) Market Value: | = | $705,309 | |
| (–) Productivity Loss: | – | $0 | |
| | | -------------------------- | |
| (=) Subtotal: | = | $705,309 | |
| (+) Senior Appraised Value: | + | $0 | |
| (+) Non-Senior Appraised Value: | + | $705,309 | |
| | | -------------------------- | |
| (=) Total Appraised Value: | = | $705,309 | |
| (–) Senior Exemption Loss: | – | $0 | |
| (–) Exemption Loss: | – | $0 | |
| | | -------------------------- | |
| (=) Taxable Value: | = | $705,309 | |
Taxing Jurisdiction
| Owner: | OSBORN, JEFFREY | | |
| % Ownership: | 100.0000000000% | | |
| Total Value: | $705,309 | | |
| Tax Area: | 712 - APPRAISER-S Whid Schl Dist, outside Langley, improved, greater than 1 acre |
| CF | Conservation Futures | 0.0316035091 | $705,309 | $705,309 | $22.29 | | |
| FIRE3 | Fire & Rescue Dist #3 S Whidbey GEN | 1.2004855531 | $705,309 | $705,309 | $846.71 | | |
| HOBOND | Hospital BOND | 0.1910887512 | $705,309 | $705,309 | $134.78 | | |
| HOGEN | Hospital GEN | 0.3902502903 | $705,309 | $705,309 | $275.25 | | |
| CE | County Current Expense | 0.3708482477 | $705,309 | $705,309 | $261.56 | | |
| CR | County Roads | 0.4584763726 | $705,309 | $705,309 | $323.37 | | |
| ISLANDEMS | Hospital GEN (EMS) | 0.5000000000 | $705,309 | $705,309 | $352.65 | | |
| LIB | Library Sno-Isle GEN | 0.3153421757 | $705,309 | $705,309 | $222.41 | | |
| PORTWHID | Port of S Whidbey GEN | 0.1094540357 | $705,309 | $705,309 | $77.20 | | |
| SCH206BOND | School 206 BOND | 0.3161759235 | $705,309 | $705,309 | $223.00 | | |
| SCH206MO | School 206 Enrichment | 0.4547169547 | $705,309 | $705,309 | $320.72 | | |
| ST | State School | 1.3035497053 | $705,309 | $705,309 | $919.41 | | |
| ST2 | State School Part 2 | 0.8169543533 | $705,309 | $705,309 | $576.21 | | |
| SWHIDPRBD | P & R S Whidbey BOND | 0.0152817568 | $705,309 | $705,309 | $10.78 | | |
| SWHIDPRBD2 | P & R S Whidbey BOND2 | 0.0138911264 | $705,309 | $705,309 | $9.80 | | |
| SWHIDPRMT | P & R S Whidbey GEN | 0.2053334452 | $705,309 | $705,309 | $144.82 | | |
| | Total Tax Rate: | 6.6934522006 | | | | | |
| | | | | Taxes w/Current Exemptions: | $4,720.96 | | |
| | | | | Taxes w/o Exemptions: | $4,720.96 | | |
Improvement / Building
| Improvement #1: | RESIDENTIAL | State Code: | Y | 3516.0 sqft | Value: | $395,309 |
| Bathrooms: | 2 | Bedrooms: | 2 | | Ceiling: | (NONE) | Cooling: | HEAT PUMP/CONV/V | | Exterior Wall/Cover: | PLY/HARDBOARD T-111 | Floor Covering: | (NONE) | | Floor Structure: | WOOD W/SUBFLOOR | Foundation: | CONCRETE | | Interior Finish: | (NONE) | Plumbing Fixture Cnt: | 16 | | Roof Slope: | 12" IN 12" | Roof Structure/Cover: | CJ ASPHALT |
|
| | Type | Description | Class CD | Sub Class CD | Year Built | Area |
| | BAS | BASE/MAIN FLOOR | 4 | 0 | 1978 | 1064.0 |
| | OP3 | OPEN PORCH W/ROOF | 4 | 0 | 1978 | 76.5 |
| | UPS | UPPER STORY | 4 | 0 | 1978 | 120.0 |
| | BAW | BALCONY WOOD RAIL | 4 | 0 | 1978 | 56.0 |
| | OWP | OPEN WOOD PORCH W/STEPS | 4 | 0 | 1978 | 40.0 |
| | OWP | OPEN WOOD PORCH W/STEPS | 4 | 0 | 1978 | 1016.0 |
| | UPH | HALF STORY | 4 | 0 | 1978 | 444.0 |
| | DWN | DOWNSTAIRS LIVING AREA | 4 | 0 | 1978 | 1888.0 |
| | DGR | DETACHED GARAGE | 4 | 0 | 1978 | 1360.0 |
Sketch
Property Image
Land
| 1 | 18 | AC (02.01-03.00) | 0.0000 | 0.00 | 0.00 | 0.00 | 1.00 | $310,000 | $0 |
Roll Value History
| 2026 | N/A | N/A | N/A | N/A | N/A |
| 2025 | $395,309 | $310,000 | $0 | $705,309 | $705,309 |
| 2024 | $399,945 | $300,000 | $0 | $699,945 | $699,945 |
| 2023 | $404,582 | $290,000 | $0 | $694,582 | $694,582 |
| 2022 | $370,573 | $270,000 | $0 | $640,573 | $640,573 |
| 2021 | $183,901 | $155,000 | $0 | $338,901 | $338,901 |
| 2020 | $282,277 | $165,000 | $0 | $447,277 | $447,277 |
| 2019 | $235,704 | $200,000 | $0 | $435,704 | $435,704 |
| 2018 | $236,529 | $170,000 | $0 | $406,529 | $406,529 |
| 2017 | $238,179 | $150,000 | $0 | $388,179 | $388,179 |
| 2016 | $241,486 | $125,000 | $0 | $366,486 | $366,486 |
| 2015 | $244,794 | $100,000 | $0 | $344,794 | $344,794 |
| 2014 | $240,365 | $95,000 | $0 | $335,365 | $335,365 |
| 2013 | $243,469 | $95,000 | $0 | $338,469 | $338,469 |
| 2012 | $246,569 | $97,750 | $0 | $344,319 | $344,319 |
| 2011 | $249,675 | $115,000 | $0 | $364,675 | $364,675 |
| 2010 | $264,009 | $115,000 | $0 | $379,009 | $379,009 |
| 2009 | $272,045 | $155,000 | $0 | $427,045 | $427,045 |
| 2008 | $267,522 | $160,000 | $0 | $427,522 | $427,522 |
| 2007 | $245,757 | $185,395 | $0 | $431,152 | $431,152 |
Deed and Sales History
| 1 | 10/26/2021 | WD | Warranty Deed | MATS MATS BAY PROPERTIES, LLC | OSBORN, JEFFREY | | | $790,000.00 | 50631 | 4532427 |
| 2 | 07/06/2020 | SPWARDEED | Special Warranty Deed | NATIONSTAR MORTGAGE, LLC | MATS MATS BAY PROPERTIES, LLC | | | $311,850.00 | 43742 | 4490989 |
| 3 | 12/18/2019 | WD | Warranty Deed | ZISS, BENJAMIN | NATIONSTAR MORTGAGE, LLC | | | $0.00 | 41977 | 4480544 |
| 4 | 06/16/2006 | WD | Warranty Deed | ANDERBERG, BRUCE H | ZISS, BENJAMIN | | | $428,000.00 | 62742 | 4174103 |
| 5 | 10/01/1988 | WD | Warranty Deed | ERICKSON, JOSIAH M | ANDERBERG, BRUCE H | | | $101,500.00 | 83855 | 88014384 |
| 6 | 05/01/1981 | TRUSTEED | Trustee's Deed | NOWLIN, KATIE A | ERICKSON, JOSIAH M | | | $85,000.00 | 11413 | 382826 |
| 7 | 09/01/1978 | OTHER | Other - Misc. Documents | Unknown | NOWLIN, KATIE A | | | $0.00 | 84806 | 340493 |
Payout Agreement
| No payout information available.. |