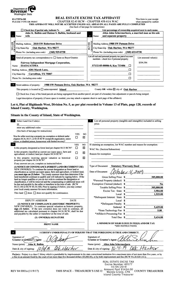
Property
Account |
| Property ID: | 125475 | Abbreviated Legal Description: | 81 - IN GLS2 & 3: BG NWCR GL2 E661.62' S3*E1087.12' TPB S3*E272.84' W1018.75' N2*W272.57' E1013.60' TPB TGW & SUB TO EZS |
| Geographic ID: | R32905-460-2870 | Agent Code: | |
| Type: | Real | | |
| Tax Area: | 712 - APPRAISER-S Whid Schl Dist, outside Langley, improved, greater than 1 acre | Land Use Code | 11 |
| Open Space: | N | DFL | N |
| Historic Property: | N | Remodel Property: | N |
| Multi-Family Redevelopment: | N | | |
| Township: | 29 | Section: | 05 |
| Range: | R3 |
Location |
| Address: | 4871 SALISH WAY LANGLEY, WA 98260 | Mapsco: | |
| Neighborhood: | Cycle 4 | Map ID: | 736 |
| Neighborhood CD: | 4 |
Owner |
| Name: | MAYS, RUSSELL | Owner ID: | 302949 |
| Mailing Address: | SUE ANN BREWER 4871 SALISH WAY LANGLEY, WA 98260 | % Ownership: | 100.0000000000% |
| | | Exemptions: | |
Taxes and Assessment Details
Values
| (+) Improvement Homesite Value: | + | $0 | |
| (+) Improvement Non-Homesite Value: | + | $251,909 | |
| (+) Land Homesite Value: | + | $0 | |
| (+) Land Non-Homesite Value: | + | $370,000 | |
| (+) Curr Use (HS): | + | $0 | $0 |
| (+) Curr Use (NHS): | + | $0 | $0 |
| | | -------------------------- | |
| (=) Market Value: | = | $621,909 | |
| (–) Productivity Loss: | – | $0 | |
| | | -------------------------- | |
| (=) Subtotal: | = | $621,909 | |
| (+) Senior Appraised Value: | + | $0 | |
| (+) Non-Senior Appraised Value: | + | $621,909 | |
| | | -------------------------- | |
| (=) Total Appraised Value: | = | $621,909 | |
| (–) Senior Exemption Loss: | – | $0 | |
| (–) Exemption Loss: | – | $0 | |
| | | -------------------------- | |
| (=) Taxable Value: | = | $621,909 | |
Taxing Jurisdiction
| Owner: | MAYS, RUSSELL | | |
| % Ownership: | 100.0000000000% | | |
| Total Value: | $621,909 | | |
| Tax Area: | 712 - APPRAISER-S Whid Schl Dist, outside Langley, improved, greater than 1 acre |
| CF | Conservation Futures | 0.0316035091 | $621,909 | $621,909 | $19.65 | | |
| FIRE3 | Fire & Rescue Dist #3 S Whidbey GEN | 1.2004855531 | $621,909 | $621,909 | $746.59 | | |
| HOBOND | Hospital BOND | 0.1910887512 | $621,909 | $621,909 | $118.84 | | |
| HOGEN | Hospital GEN | 0.3902502903 | $621,909 | $621,909 | $242.70 | | |
| CE | County Current Expense | 0.3708482477 | $621,909 | $621,909 | $230.63 | | |
| CR | County Roads | 0.4584763726 | $621,909 | $621,909 | $285.13 | | |
| ISLANDEMS | Hospital GEN (EMS) | 0.5000000000 | $621,909 | $621,909 | $310.95 | | |
| LIB | Library Sno-Isle GEN | 0.3153421757 | $621,909 | $621,909 | $196.11 | | |
| PORTWHID | Port of S Whidbey GEN | 0.1094540357 | $621,909 | $621,909 | $68.07 | | |
| SCH206BOND | School 206 BOND | 0.3161759235 | $621,909 | $621,909 | $196.63 | | |
| SCH206MO | School 206 Enrichment | 0.4547169547 | $621,909 | $621,909 | $282.79 | | |
| ST | State School | 1.3035497053 | $621,909 | $621,909 | $810.69 | | |
| ST2 | State School Part 2 | 0.8169543533 | $621,909 | $621,909 | $508.07 | | |
| SWHIDPRBD | P & R S Whidbey BOND | 0.0152817568 | $621,909 | $621,909 | $9.50 | | |
| SWHIDPRBD2 | P & R S Whidbey BOND2 | 0.0138911264 | $621,909 | $621,909 | $8.64 | | |
| SWHIDPRMT | P & R S Whidbey GEN | 0.2053334452 | $621,909 | $621,909 | $127.70 | | |
| | Total Tax Rate: | 6.6934522006 | | | | | |
| | | | | Taxes w/Current Exemptions: | $4,162.69 | | |
| | | | | Taxes w/o Exemptions: | $4,162.69 | | |
Improvement / Building
| Improvement #1: | RESIDENTIAL | State Code: | Y | 2406.0 sqft | Value: | $251,909 |
| Bathrooms: | 2.5 | Bedrooms: | 2 | | Ceiling: | DRYWALL PAINTED | Exterior Wall/Cover: | WOOD SIDING | | Floor Covering: | CARPET/VINYL 80-20 | Floor Structure: | WOOD W/SUBFLOOR | | Foundation: | CONCRETE | Heating: | FHA GAS | | Interior Finish: | DRYWALL PAINT | Plumbing Fixture Cnt: | 9 | | Roof Slope: | 4" IN 12" | Roof Structure/Cover: | CJ ALUMINIUM HEAVY |
|
| | Type | Description | Class CD | Sub Class CD | Year Built | Area |
| | BAS | BASE/MAIN FLOOR | 3 | 0 | 1978 | 1260.0 |
| | AGR | ATTACHED GARAGE | 3 | 0 | 1978 | 80.0 |
| | BIG | BUILT IN GARAGE | 3 | 0 | 1978 | 520.0 |
| | OWR | OPEN WOOD PORCH W/STEPS/ROOF | 3 | 0 | 1978 | 32.0 |
| | OWP | OPEN WOOD PORCH W/STEPS | 3 | 0 | 1978 | 32.0 |
| | OWP | OPEN WOOD PORCH W/STEPS | 3 | 0 | 1978 | 448.0 |
| | LOF | LOFT | 3 | 0 | 1978 | 352.0 |
| | DWN | DOWNSTAIRS LIVING AREA | 3 | 0 | 1978 | 794.0 |
Sketch
Property Image
Land
| 1 | 32 | AC (03.01-09.99) | 6.3700 | 0.00 | 0.00 | 0.00 | 1.00 | $370,000 | $0 |
Roll Value History
| 2026 | N/A | N/A | N/A | N/A | N/A |
| 2025 | $251,909 | $370,000 | $0 | $621,909 | $621,909 |
| 2024 | $255,769 | $350,000 | $0 | $605,769 | $605,769 |
| 2023 | $259,630 | $330,000 | $0 | $589,630 | $589,630 |
| 2022 | $238,596 | $290,000 | $0 | $528,596 | $528,596 |
| 2021 | $210,513 | $230,000 | $0 | $440,513 | $440,513 |
| 2020 | $188,644 | $190,000 | $0 | $378,644 | $378,644 |
| 2019 | $147,921 | $250,000 | $0 | $397,921 | $397,921 |
| 2018 | $148,489 | $210,000 | $0 | $358,489 | $358,489 |
| 2017 | $149,622 | $210,000 | $0 | $359,622 | $359,622 |
| 2016 | $151,889 | $165,000 | $0 | $316,889 | $316,889 |
| 2015 | $154,155 | $165,000 | $0 | $319,155 | $319,155 |
| 2014 | $148,276 | $171,990 | $0 | $320,266 | $320,266 |
| 2013 | $150,558 | $171,990 | $0 | $322,548 | $322,548 |
| 2012 | $152,840 | $171,990 | $0 | $324,830 | $324,830 |
| 2011 | $155,120 | $171,990 | $0 | $327,110 | $327,110 |
| 2010 | $68,887 | $171,990 | $0 | $240,877 | $240,877 |
| 2009 | $71,040 | $280,280 | $0 | $351,320 | $351,320 |
| 2008 | $68,936 | $273,910 | $0 | $342,846 | $342,846 |
| 2007 | $61,712 | $281,134 | $0 | $342,846 | $342,846 |
Deed and Sales History
| 1 | 02/10/2022 | QCD | Quit Claim Deed | MAYS, RUSSELL | MAYS, RUSSELL | | | $0.00 | 51936 | 4539582 |
| 2 | 12/09/2019 | QCD | Quit Claim Deed | BREWER, SUE ANN | MAYS, RUSSELL | | | $0.00 | 41461 | 4477482 |
| 3 | 04/03/2013 | QCD | Quit Claim Deed | MAYS, RUSSELL | MAYS, RUSSELL | | | $0.00 | 11625 | 4341794 |
| 4 | 05/13/2010 | WD | Warranty Deed | Unknown | MAYS, RUSSELL | | | $0.00 | 1478 | 4275726 |
| 5 | 03/01/2000 | WD | Warranty Deed | SCHMIDT, TINA L | MAYS, RUSSELL | | | $175,000.00 | 806 | 20004070 |
| 6 | 02/15/2000 | ESTSEPPROP | Establish Separate Property | SCHMIDT, TINA L | SCHMIDT, TINA L | | | $0.00 | 805 | 20004069 |
| 7 | 06/23/1998 | DECREE | Divorce Decree/Legal Separation | WELLMAN, LYNN B | SCHMIDT, TINA L | | | $0.00 | 67903 | 0 |
| 8 | 03/01/1997 | 5 | DNU - Marriage License/Name Change | WELLMAN, LYNN B | WELLMAN, LYNN B | | | $0.00 | 67290 | 93012959 |
| 9 | 02/01/1993 | QCD | Quit Claim Deed | WELLMAN, LYNN B | WELLMAN, LYNN B | | | $0.00 | 30480 | 93002621 |
| 10 | 01/01/1900 | OTHER | Other - Misc. Documents | Unknown | WELLMAN, LYNN B | | | $0.00 | 0 | 0 |
Payout Agreement
| No payout information available.. |