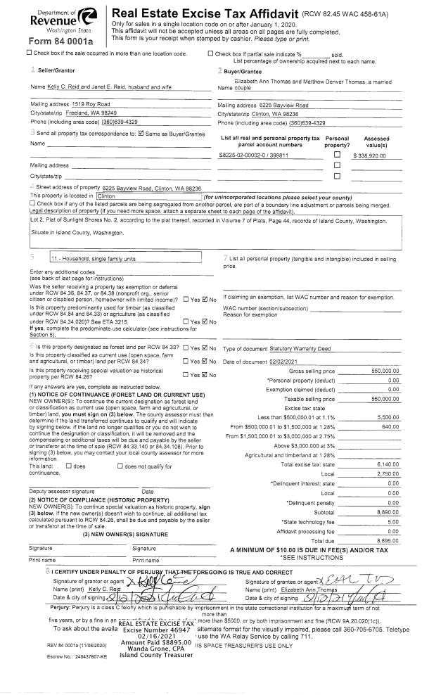
Property
Account |
| Property ID: | 125670 | Abbreviated Legal Description: | 3 - IN GLS 2 & 3: BG NWCR GL2 S89*E661.62' TO NECR W/2 GL2 S3*E268.57' N89*W 998.13' TO WLN E/2 NE GL3 N2*W272.57' TO NLN GL3 S89*E331.65' TPB |
| Geographic ID: | R32905-566-2850 | Agent Code: | |
| Type: | Real | | |
| Tax Area: | 712 - APPRAISER-S Whid Schl Dist, outside Langley, improved, greater than 1 acre | Land Use Code | 11 |
| Open Space: | N | DFL | N |
| Historic Property: | N | Remodel Property: | N |
| Multi-Family Redevelopment: | N | | |
| Township: | 29 | Section: | 05 |
| Range: | R3 |
Location |
| Address: | 3020 KELLER RD LANGLEY, WA 98260 | Mapsco: | |
| Neighborhood: | Cycle 4 | Map ID: | 736 |
| Neighborhood CD: | 4 |
Owner |
| Name: | MOOTE, KILIAN | Owner ID: | 251830 |
| Mailing Address: | PATRICK MOOTE BRIAN MOOTE 314 83RD ST BROOKLYN, NY 11209 | % Ownership: | 100.0000000000% |
| | | Exemptions: | |
Taxes and Assessment Details
Values
| (+) Improvement Homesite Value: | + | $0 | |
| (+) Improvement Non-Homesite Value: | + | $171,702 | |
| (+) Land Homesite Value: | + | $0 | |
| (+) Land Non-Homesite Value: | + | $370,000 | |
| (+) Curr Use (HS): | + | $0 | $0 |
| (+) Curr Use (NHS): | + | $0 | $0 |
| | | -------------------------- | |
| (=) Market Value: | = | $541,702 | |
| (–) Productivity Loss: | – | $0 | |
| | | -------------------------- | |
| (=) Subtotal: | = | $541,702 | |
| (+) Senior Appraised Value: | + | $0 | |
| (+) Non-Senior Appraised Value: | + | $541,702 | |
| | | -------------------------- | |
| (=) Total Appraised Value: | = | $541,702 | |
| (–) Senior Exemption Loss: | – | $0 | |
| (–) Exemption Loss: | – | $0 | |
| | | -------------------------- | |
| (=) Taxable Value: | = | $541,702 | |
Taxing Jurisdiction
| Owner: | MOOTE, KILIAN | | |
| % Ownership: | 100.0000000000% | | |
| Total Value: | $541,702 | | |
| Tax Area: | 712 - APPRAISER-S Whid Schl Dist, outside Langley, improved, greater than 1 acre |
| CF | Conservation Futures | 0.0316035091 | $541,702 | $541,702 | $17.12 | | |
| FIRE3 | Fire & Rescue Dist #3 S Whidbey GEN | 1.2004855531 | $541,702 | $541,702 | $650.31 | | |
| HOBOND | Hospital BOND | 0.1910887512 | $541,702 | $541,702 | $103.51 | | |
| HOGEN | Hospital GEN | 0.3902502903 | $541,702 | $541,702 | $211.40 | | |
| CE | County Current Expense | 0.3708482477 | $541,702 | $541,702 | $200.89 | | |
| CR | County Roads | 0.4584763726 | $541,702 | $541,702 | $248.36 | | |
| ISLANDEMS | Hospital GEN (EMS) | 0.5000000000 | $541,702 | $541,702 | $270.85 | | |
| LIB | Library Sno-Isle GEN | 0.3153421757 | $541,702 | $541,702 | $170.82 | | |
| PORTWHID | Port of S Whidbey GEN | 0.1094540357 | $541,702 | $541,702 | $59.29 | | |
| SCH206BOND | School 206 BOND | 0.3161759235 | $541,702 | $541,702 | $171.27 | | |
| SCH206MO | School 206 Enrichment | 0.4547169547 | $541,702 | $541,702 | $246.32 | | |
| ST | State School | 1.3035497053 | $541,702 | $541,702 | $706.14 | | |
| ST2 | State School Part 2 | 0.8169543533 | $541,702 | $541,702 | $442.55 | | |
| SWHIDPRBD | P & R S Whidbey BOND | 0.0152817568 | $541,702 | $541,702 | $8.28 | | |
| SWHIDPRBD2 | P & R S Whidbey BOND2 | 0.0138911264 | $541,702 | $541,702 | $7.52 | | |
| SWHIDPRMT | P & R S Whidbey GEN | 0.2053334452 | $541,702 | $541,702 | $111.23 | | |
| | Total Tax Rate: | 6.6934522006 | | | | | |
| | | | | Taxes w/Current Exemptions: | $3,625.86 | | |
| | | | | Taxes w/o Exemptions: | $3,625.86 | | |
Improvement / Building
| Improvement #1: | RESIDENTIAL | State Code: | Y | 1432.0 sqft | Value: | $171,702 |
| Bathrooms: | 2 | Bedrooms: | 3 | | Ceiling: | DRY WALL SPRAYED | Cooling: | HEAT PUMP/CONV/V | | Exterior Wall/Cover: | WOOD SIDING | Floor Covering: | CARPET/VINYL 60-40 | | Floor Structure: | WOOD W/SUBFLOOR | Foundation: | CONCRETE | | Interior Finish: | DRYWALL PAINT | Plumbing Fixture Cnt: | 8 | | Roof Slope: | 4" IN 12" | Roof Structure/Cover: | CJ ASPHALT |
|
| | Type | Description | Class CD | Sub Class CD | Year Built | Area |
| | BAS | BASE/MAIN FLOOR | 3 | 0 | 1980 | 1432.0 |
| | OP2 | OPEN PORCH W/STEPS | 3 | 0 | 1980 | 120.0 |
| | OCP | OPEN CARPORT | 3 | 0 | 1980 | 520.0 |
| | UTY | STORAGE/UTILITY | 3 | 0 | 1980 | 350.0 |
Sketch
Property Image
Land
| 1 | 32 | AC (03.01-09.99) | 6.1500 | 0.00 | 0.00 | 0.00 | 1.00 | $370,000 | $0 |
Roll Value History
| 2026 | N/A | N/A | N/A | N/A | N/A |
| 2025 | $171,702 | $370,000 | $0 | $541,702 | $541,702 |
| 2024 | $174,600 | $350,000 | $0 | $524,600 | $524,600 |
| 2023 | $175,304 | $330,000 | $0 | $505,304 | $505,304 |
| 2022 | $161,332 | $290,000 | $0 | $451,332 | $451,332 |
| 2021 | $142,537 | $230,000 | $0 | $372,537 | $372,537 |
| 2020 | $139,469 | $190,000 | $0 | $329,469 | $329,469 |
| 2019 | $100,835 | $250,000 | $0 | $350,835 | $350,835 |
| 2018 | $101,221 | $210,000 | $0 | $311,221 | $311,221 |
| 2017 | $101,994 | $210,000 | $0 | $311,994 | $311,994 |
| 2016 | $103,539 | $165,000 | $0 | $268,539 | $268,539 |
| 2015 | $105,085 | $165,000 | $0 | $270,085 | $270,085 |
| 2014 | $103,729 | $166,050 | $0 | $269,779 | $269,779 |
| 2013 | $105,275 | $166,050 | $0 | $271,325 | $271,325 |
| 2012 | $106,822 | $166,050 | $0 | $272,872 | $272,872 |
| 2011 | $108,368 | $166,050 | $0 | $274,418 | $274,418 |
| 2010 | $115,955 | $166,050 | $0 | $282,005 | $282,005 |
| 2009 | $120,963 | $270,600 | $0 | $391,563 | $391,563 |
| 2008 | $127,908 | $264,450 | $0 | $392,358 | $392,358 |
| 2007 | $118,180 | $275,752 | $0 | $393,932 | $393,932 |
Deed and Sales History
| 1 | 08/28/2010 | QCD | Quit Claim Deed | MOOTE, PAUL A | MOOTE, KILIAN | | | $0.00 | 2394 | 4281634 |
| 2 | 07/01/1989 | WD | Warranty Deed | WILSON, LESLIE M | MOOTE, PAUL A | | | $78,556.00 | 92798 | 89009420 |
| 3 | 02/01/1989 | DECREE | Divorce Decree/Legal Separation | WILSON, LESLIE M | WILSON, LESLIE M | | | $0.00 | 63029 | 0 |
| 4 | 09/01/1988 | DECREE | Divorce Decree/Legal Separation | WILSON, LESLIE M | WILSON, LESLIE M | | | $0.00 | 92799 | 89009419 |
| 5 | 09/01/1988 | DECREE | Divorce Decree/Legal Separation | SCHILLINGER, KENNETH D | WILSON, LESLIE M | | | $0.00 | 92799 | 89009419 |
| 6 | 01/01/1900 | OTHER | Other - Misc. Documents | Unknown | SCHILLINGER, KENNETH D | | | $0.00 | 0 | 0 |
Payout Agreement
| No payout information available.. |