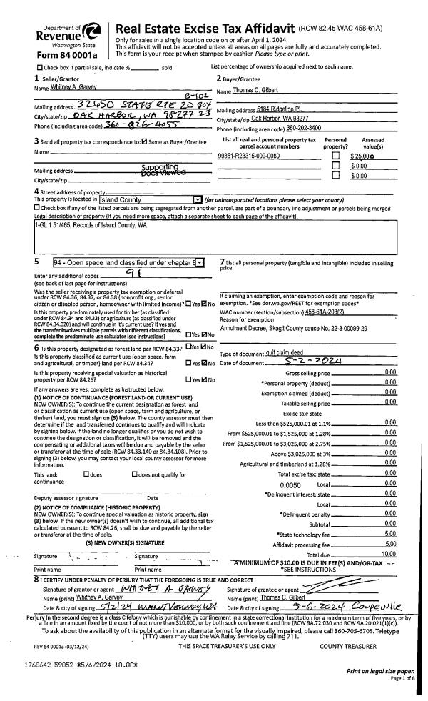
Property
Account |
| Property ID: | 12612 | Abbreviated Legal Description: | 26 - IN SW SW: BG SLN FT NUGENT RD (ZYLSTRA RD) 667'E OF SEC LN COM SECS 3 & 4 S170' E117' N170' TO SD RD W117' TPB EX PT TO IS CO AF#91013938 |
| Geographic ID: | R13203-041-0720 | Agent Code: | |
| Type: | Real | | |
| Tax Area: | 100 - APPRAISER-OH Schl Dist, in OH | Land Use Code | 11 |
| Open Space: | N | DFL | N |
| Historic Property: | N | Remodel Property: | N |
| Multi-Family Redevelopment: | N | | |
| Township: | 32 | Section: | 03 |
| Range: | R1 |
Location |
| Address: | 1591 SW FORT NUGENT AVE OAK HARBOR, WA 98277 | Mapsco: | |
| Neighborhood: | Cycle 1 | Map ID: | 90 |
| Neighborhood CD: | 1 |
Owner |
| Name: | ALBERT, JOSEPH | Owner ID: | 270848 |
| Mailing Address: | 1591 SW FORT NUGENT AVE OAK HARBOR, WA 98277 | % Ownership: | 100.0000000000% |
| | | Exemptions: | |
Taxes and Assessment Details
Values
| (+) Improvement Homesite Value: | + | $0 | |
| (+) Improvement Non-Homesite Value: | + | $262,463 | |
| (+) Land Homesite Value: | + | $0 | |
| (+) Land Non-Homesite Value: | + | $200,000 | |
| (+) Curr Use (HS): | + | $0 | $0 |
| (+) Curr Use (NHS): | + | $0 | $0 |
| | | -------------------------- | |
| (=) Market Value: | = | $462,463 | |
| (–) Productivity Loss: | – | $0 | |
| | | -------------------------- | |
| (=) Subtotal: | = | $462,463 | |
| (+) Senior Appraised Value: | + | $0 | |
| (+) Non-Senior Appraised Value: | + | $462,463 | |
| | | -------------------------- | |
| (=) Total Appraised Value: | = | $462,463 | |
| (–) Senior Exemption Loss: | – | $0 | |
| (–) Exemption Loss: | – | $0 | |
| | | -------------------------- | |
| (=) Taxable Value: | = | $462,463 | |
Taxing Jurisdiction
| Owner: | ALBERT, JOSEPH | | |
| % Ownership: | 100.0000000000% | | |
| Total Value: | $462,463 | | |
| Tax Area: | 100 - APPRAISER-OH Schl Dist, in OH |
| CF | Conservation Futures | 0.0316035091 | $462,463 | $462,463 | $14.62 | | |
| CEM1 | Cemetery #1 | 0.0040320932 | $462,463 | $462,463 | $1.86 | | |
| COH | City of Oak Harbor | 2.3001546061 | $462,463 | $462,463 | $1,063.74 | | |
| OAKBOND | City of Oak Harbor BOND | 0.1926904192 | $462,463 | $462,463 | $89.11 | | |
| HOBOND | Hospital BOND | 0.1910887512 | $462,463 | $462,463 | $88.37 | | |
| HOGEN | Hospital GEN | 0.3902502903 | $462,463 | $462,463 | $180.48 | | |
| CE | County Current Expense | 0.3708482477 | $462,463 | $462,463 | $171.50 | | |
| ISLANDEMS | Hospital GEN (EMS) | 0.5000000000 | $462,463 | $462,463 | $231.23 | | |
| LIB | Library Sno-Isle GEN | 0.3153421757 | $462,463 | $462,463 | $145.83 | | |
| NWHIDPRMT | P & R N Whidbey GEN | 0.2004466701 | $462,463 | $462,463 | $92.70 | | |
| SCH201MO | School 201 Enrichment | 1.8559231640 | $462,463 | $462,463 | $858.30 | | |
| ST | State School | 1.3035497053 | $462,463 | $462,463 | $602.84 | | |
| ST2 | State School Part 2 | 0.8169543533 | $462,463 | $462,463 | $377.81 | | |
| | Total Tax Rate: | 8.4728839852 | | | | | |
| | | | | Taxes w/Current Exemptions: | $3,918.39 | | |
| | | | | Taxes w/o Exemptions: | $3,918.39 | | |
Improvement / Building
| Improvement #1: | RESIDENTIAL | State Code: | Y | 1596.0 sqft | Value: | $262,463 |
| Bathrooms: | 2 | Bedrooms: | 3 | | Ceiling: | DRY WALL SPRAYED | Exterior Wall/Cover: | WOOD SIDING | | Floor Covering: | HARDWOOD/CARP 60-40 | Floor Structure: | WOOD W/SUBFLOOR | | Foundation: | CONCRETE | Heating: | FHA GAS | | Interior Finish: | DRYWALL PAINT | Plumbing Fixture Cnt: | 10 | | Roof Slope: | 4" IN 12" | Roof Structure/Cover: | CJ ASPHALT |
|
| | Type | Description | Class CD | Sub Class CD | Year Built | Area |
| | BAS | BASE/MAIN FLOOR | 3 | 0 | 1952 | 1596.0 |
| | OP2 | OPEN PORCH W/STEPS | 3 | 0 | 1952 | 25.0 |
| | DGR | DETACHED GARAGE | 3 | 0 | 1952 | 378.0 |
Sketch
Property Image
Land
| 1 | 15 | SQ (12001-21780) | 0.4200 | 18295.20 | 0.00 | 0.00 | 1.00 | $200,000 | $0 |
Roll Value History
| 2026 | N/A | N/A | N/A | N/A | N/A |
| 2025 | $262,463 | $200,000 | $0 | $462,463 | $462,463 |
| 2024 | $265,861 | $190,000 | $0 | $455,861 | $455,861 |
| 2023 | $262,463 | $180,000 | $0 | $442,463 | $442,463 |
| 2022 | $240,748 | $180,000 | $0 | $420,748 | $420,748 |
| 2021 | $212,012 | $135,000 | $0 | $347,012 | $347,012 |
| 2020 | $206,693 | $100,000 | $0 | $306,693 | $306,693 |
| 2019 | $150,883 | $150,000 | $0 | $300,883 | $300,883 |
| 2018 | $151,346 | $130,000 | $0 | $281,346 | $281,346 |
| 2017 | $152,485 | $120,000 | $0 | $272,485 | $272,485 |
| 2016 | $154,346 | $90,000 | $0 | $244,346 | $244,346 |
| 2015 | $156,433 | $70,000 | $0 | $226,433 | $226,433 |
| 2014 | $158,296 | $65,000 | $0 | $223,296 | $223,296 |
| 2013 | $157,070 | $65,000 | $0 | $222,070 | $222,070 |
| 2012 | $159,010 | $65,000 | $0 | $224,010 | $224,010 |
| 2011 | $136,306 | $50,000 | $0 | $186,306 | $186,306 |
| 2010 | $144,745 | $50,000 | $0 | $194,745 | $194,745 |
| 2009 | $151,237 | $60,000 | $0 | $211,237 | $211,237 |
| 2008 | $153,283 | $72,000 | $0 | $225,283 | $225,283 |
| 2007 | $155,335 | $72,000 | $0 | $227,335 | $227,335 |
Deed and Sales History
| 1 | 06/25/2015 | WD | Warranty Deed | EMERSON, KENNETH E | ALBERT, JOSEPH | | | $259,000.00 | 20209 | 4381023 |
| 2 | 03/25/2011 | BARGSLD | Bargain And Sale Deed | SECRETARY OF HOUSING AND URBAN DEVELOPMENT | EMERSON, KENNETH E | | | $129,900.00 | 3996 | 4292953 |
| 3 | 10/11/2010 | TRUSTEED | Trustee's Deed | MORROW, BILL K | SECRETARY OF HOUSING AND URBAN DEVELOPMENT | | | $148,000.00 | 2550 | 4282628 |
| 4 | 08/01/1997 | WD | Warranty Deed | COLLMANN, KATHLEEN M | MORROW, BILL K | | | $127,000.00 | 72695 | 97012769 |
| 5 | 03/01/1993 | WD | Warranty Deed | OSTERHOLT, RICHARD A | COLLMANN, KATHLEEN M | | | $112,900.00 | 31071 | 93005551 |
| 6 | 01/01/1993 | WD | Warranty Deed | FABER, DENNIS | OSTERHOLT, RICHARD A | | | $100,000.00 | 30345 | 93001764 |
| 7 | 10/01/1991 | QCD | Quit Claim Deed | FABER, DENNIS | FABER, DENNIS | | | $1,755.00 | 64508 | 91013938 |
| 8 | 01/01/1900 | OTHER | Other - Misc. Documents | Unknown | FABER, DENNIS | | | $0.00 | 0 | 0 |
Payout Agreement
| No payout information available.. |