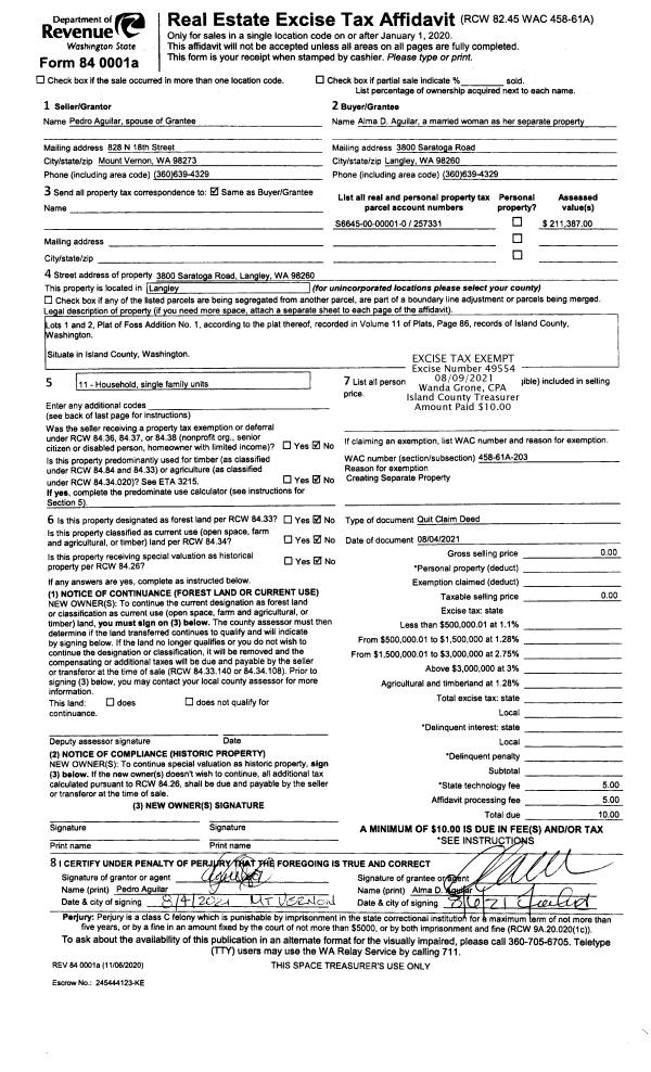
Property
Account |
| Property ID: | 126232 | Abbreviated Legal Description: | 21 - SE SW LY E OF RD |
| Geographic ID: | R32907-080-3230 | Agent Code: | |
| Type: | Real | | |
| Tax Area: | 712 - APPRAISER-S Whid Schl Dist, outside Langley, improved, greater than 1 acre | Land Use Code | 11 |
| Open Space: | N | DFL | N |
| Historic Property: | N | Remodel Property: | N |
| Multi-Family Redevelopment: | N | | |
| Township: | 29 | Section: | 07 |
| Range: | R3 |
Location |
| Address: | 2801 THOMPSON RD LANGLEY, WA 98260 | Mapsco: | |
| Neighborhood: | Cycle 4 | Map ID: | 742 |
| Neighborhood CD: | 4 |
Owner |
| Name: | DEILKE, MICHAEL R | Owner ID: | 198821 |
| Mailing Address: | ALISON C DEILKE 2801 THOMPSON RD LANGLEY, WA 98260-8213 | % Ownership: | 100.0000000000% |
| | | Exemptions: | |
Taxes and Assessment Details
Values
| (+) Improvement Homesite Value: | + | $0 | |
| (+) Improvement Non-Homesite Value: | + | $149,866 | |
| (+) Land Homesite Value: | + | $0 | |
| (+) Land Non-Homesite Value: | + | $380,000 | |
| (+) Curr Use (HS): | + | $0 | $0 |
| (+) Curr Use (NHS): | + | $0 | $0 |
| | | -------------------------- | |
| (=) Market Value: | = | $529,866 | |
| (–) Productivity Loss: | – | $0 | |
| | | -------------------------- | |
| (=) Subtotal: | = | $529,866 | |
| (+) Senior Appraised Value: | + | $0 | |
| (+) Non-Senior Appraised Value: | + | $529,866 | |
| | | -------------------------- | |
| (=) Total Appraised Value: | = | $529,866 | |
| (–) Senior Exemption Loss: | – | $0 | |
| (–) Exemption Loss: | – | $0 | |
| | | -------------------------- | |
| (=) Taxable Value: | = | $529,866 | |
Taxing Jurisdiction
| Owner: | DEILKE, MICHAEL R | | |
| % Ownership: | 100.0000000000% | | |
| Total Value: | $529,866 | | |
| Tax Area: | 712 - APPRAISER-S Whid Schl Dist, outside Langley, improved, greater than 1 acre |
| CF | Conservation Futures | 0.0316035091 | $529,866 | $529,866 | $16.75 | | |
| FIRE3 | Fire & Rescue Dist #3 S Whidbey GEN | 1.2004855531 | $529,866 | $529,866 | $636.10 | | |
| HOBOND | Hospital BOND | 0.1910887512 | $529,866 | $529,866 | $101.25 | | |
| HOGEN | Hospital GEN | 0.3902502903 | $529,866 | $529,866 | $206.78 | | |
| CE | County Current Expense | 0.3708482477 | $529,866 | $529,866 | $196.50 | | |
| CR | County Roads | 0.4584763726 | $529,866 | $529,866 | $242.93 | | |
| ISLANDEMS | Hospital GEN (EMS) | 0.5000000000 | $529,866 | $529,866 | $264.93 | | |
| LIB | Library Sno-Isle GEN | 0.3153421757 | $529,866 | $529,866 | $167.09 | | |
| PORTWHID | Port of S Whidbey GEN | 0.1094540357 | $529,866 | $529,866 | $58.00 | | |
| SCH206BOND | School 206 BOND | 0.3161759235 | $529,866 | $529,866 | $167.53 | | |
| SCH206MO | School 206 Enrichment | 0.4547169547 | $529,866 | $529,866 | $240.94 | | |
| ST | State School | 1.3035497053 | $529,866 | $529,866 | $690.71 | | |
| ST2 | State School Part 2 | 0.8169543533 | $529,866 | $529,866 | $432.88 | | |
| SWHIDPRBD | P & R S Whidbey BOND | 0.0152817568 | $529,866 | $529,866 | $8.10 | | |
| SWHIDPRBD2 | P & R S Whidbey BOND2 | 0.0138911264 | $529,866 | $529,866 | $7.36 | | |
| SWHIDPRMT | P & R S Whidbey GEN | 0.2053334452 | $529,866 | $529,866 | $108.80 | | |
| | Total Tax Rate: | 6.6934522006 | | | | | |
| | | | | Taxes w/Current Exemptions: | $3,546.65 | | |
| | | | | Taxes w/o Exemptions: | $3,546.65 | | |
Improvement / Building
| Improvement #1: | MANUFACTURED HOME | State Code: | Y | 2043.7 sqft | Value: | $149,866 |
| Bathrooms: | 0 | Bedrooms: | 0 | | Ceiling: | PLASTER PAINTED | Cooling: | EVAP NO DUCT | | Exterior Wall/Cover: | VINYL | Floor Covering: | CARPET 100% | | Floor Structure: | SLAB ON GRADE | Foundation: | SLAB | | Heating: | FHA ELECTRIC | Interior Finish: | PLASTER | | Plumbing Fixture Cnt: | 1 | Roof Slope: | FLAT | | Roof Structure/Cover: | CJ ALUMINIUM HEAVY |   |   |
|
| | Type | Description | Class CD | Sub Class CD | Year Built | Area |
| | BAS | BASE/MAIN FLOOR | 4 | 0 | 1995 | 2043.7 |
| | OWC | OPEN WOOD PORCH W/STEPS/ROOF/C | 4 | 0 | 1995 | 34.3 |
| | DGR | DETACHED GARAGE | 4 | 0 | 1995 | 1344.0 |
| | OCP | OPEN CARPORT | 4 | 0 | 1995 | 288.0 |
Sketch
Property Image
Land
| 1 | 32 | AC (03.01-09.99) | 8.8500 | 0.00 | 0.00 | 0.00 | 1.00 | $380,000 | $0 |
Roll Value History
| 2026 | N/A | N/A | N/A | N/A | N/A |
| 2025 | $149,866 | $380,000 | $0 | $529,866 | $529,866 |
| 2024 | $154,548 | $350,000 | $0 | $504,548 | $504,548 |
| 2023 | $138,458 | $330,000 | $0 | $468,458 | $468,458 |
| 2022 | $129,077 | $290,000 | $0 | $419,077 | $419,077 |
| 2021 | $115,448 | $230,000 | $0 | $345,448 | $345,448 |
| 2020 | $108,958 | $190,000 | $0 | $298,958 | $298,958 |
| 2019 | $88,292 | $250,000 | $0 | $338,292 | $338,292 |
| 2018 | $89,518 | $210,000 | $0 | $299,518 | $299,518 |
| 2017 | $91,945 | $190,000 | $0 | $281,945 | $281,945 |
| 2016 | $94,396 | $165,000 | $0 | $259,396 | $259,396 |
| 2015 | $96,848 | $165,000 | $0 | $261,848 | $261,848 |
| 2014 | $110,977 | $221,250 | $0 | $332,227 | $332,227 |
| 2013 | $111,987 | $226,865 | $0 | $338,852 | $338,852 |
| 2012 | $114,008 | $226,865 | $0 | $340,873 | $340,873 |
| 2011 | $116,028 | $266,900 | $0 | $382,928 | $382,928 |
| 2010 | $123,753 | $266,900 | $0 | $390,653 | $390,653 |
| 2009 | $129,115 | $345,400 | $0 | $474,515 | $474,515 |
| 2008 | $139,370 | $356,213 | $0 | $495,583 | $495,583 |
| 2007 | $143,389 | $242,550 | $0 | $385,939 | $385,939 |
Deed and Sales History
| 1 | 06/21/2000 | WD | Warranty Deed | DEILKE, MICHAEL R | DEILKE, MICHAEL R | | | $202,500.00 | 2386 | 0 |
| 2 | 06/21/2000 | WD | Warranty Deed | MAKI, TAISTO K | DEILKE, MICHAEL R | | | $202,500.00 | 2386 | 20011361 |
| 3 | 06/01/1995 | QCD | Quit Claim Deed | MAKI, TAISTO K | MAKI, TAISTO K | | | $0.00 | 52135 | 95009908 |
| 4 | 02/01/1995 | WD | Warranty Deed | SIEVERS, CHRISTIAN E | MAKI, TAISTO K | | | $79,950.00 | 50622 | 95002985 |
| 5 | 12/01/1986 | WD | Warranty Deed | MAKI, TAISTO | SIEVERS, CHRISTIAN E | | | $0.00 | 63769 | 86016737 |
| 6 | 01/01/1900 | OTHER | Other - Misc. Documents | SIEVERS, HOWARD F | MAKI, TAISTO | | | $0.00 | 11111111 | 0 |
| 7 | 01/01/1900 | OTHER | Other - Misc. Documents | Unknown | SIEVERS, HOWARD F | | | $0.00 | 0 | 0 |
Payout Agreement
| No payout information available.. |