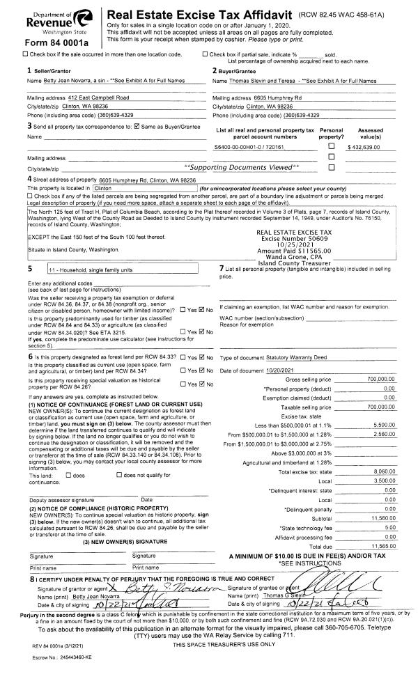
Property
Account |
| Property ID: | 126296 | Abbreviated Legal Description: | 10 - NE SE SE EX TRACT LY SLY OF LN DESC: BG SECR SEC 7 N1*E844.38' TPB N86*W200 .14' S1*W180.04' N86*W457.67 TO WLN OF E/2 SE SE & TERM SD LN EX E20' FOR RD EX PT TO IS CO AF#4120802 |
| Geographic ID: | R32907-100-5680 | Agent Code: | |
| Type: | Real | | |
| Tax Area: | 712 - APPRAISER-S Whid Schl Dist, outside Langley, improved, greater than 1 acre | Land Use Code | 11 |
| Open Space: | N | DFL | N |
| Historic Property: | N | Remodel Property: | N |
| Multi-Family Redevelopment: | N | | |
| Township: | 29 | Section: | 07 |
| Range: | R3 |
Location |
| Address: | 2788 XANADU LN LANGLEY, WA 98260 | Mapsco: | |
| Neighborhood: | Cycle 4 | Map ID: | 743 |
| Neighborhood CD: | 4 |
Owner |
| Name: | JOHANSON, INGRID LEANN | Owner ID: | 299388 |
| Mailing Address: | LONNIE CHILD 2788 XANADU LN LANGLEY, WA 98260 | % Ownership: | 100.0000000000% |
| | | Exemptions: | |
Taxes and Assessment Details
Values
| (+) Improvement Homesite Value: | + | $605,827 | |
| (+) Improvement Non-Homesite Value: | + | $0 | |
| (+) Land Homesite Value: | + | $380,000 | |
| (+) Land Non-Homesite Value: | + | $0 | |
| (+) Curr Use (HS): | + | $0 | $0 |
| (+) Curr Use (NHS): | + | $0 | $0 |
| | | -------------------------- | |
| (=) Market Value: | = | $985,827 | |
| (–) Productivity Loss: | – | $0 | |
| | | -------------------------- | |
| (=) Subtotal: | = | $985,827 | |
| (+) Senior Appraised Value: | + | $0 | |
| (+) Non-Senior Appraised Value: | + | $985,827 | |
| | | -------------------------- | |
| (=) Total Appraised Value: | = | $985,827 | |
| (–) Senior Exemption Loss: | – | $0 | |
| (–) Exemption Loss: | – | $0 | |
| | | -------------------------- | |
| (=) Taxable Value: | = | $985,827 | |
Taxing Jurisdiction
| Owner: | JOHANSON, INGRID LEANN | | |
| % Ownership: | 100.0000000000% | | |
| Total Value: | $985,827 | | |
| Tax Area: | 712 - APPRAISER-S Whid Schl Dist, outside Langley, improved, greater than 1 acre |
| CF | Conservation Futures | 0.0316035091 | $985,827 | $985,827 | $31.16 | | |
| FIRE3 | Fire & Rescue Dist #3 S Whidbey GEN | 1.2004855531 | $985,827 | $985,827 | $1,183.47 | | |
| HOBOND | Hospital BOND | 0.1910887512 | $985,827 | $985,827 | $188.38 | | |
| HOGEN | Hospital GEN | 0.3902502903 | $985,827 | $985,827 | $384.72 | | |
| CE | County Current Expense | 0.3708482477 | $985,827 | $985,827 | $365.59 | | |
| CR | County Roads | 0.4584763726 | $985,827 | $985,827 | $451.98 | | |
| ISLANDEMS | Hospital GEN (EMS) | 0.5000000000 | $985,827 | $985,827 | $492.91 | | |
| LIB | Library Sno-Isle GEN | 0.3153421757 | $985,827 | $985,827 | $310.87 | | |
| PORTWHID | Port of S Whidbey GEN | 0.1094540357 | $985,827 | $985,827 | $107.90 | | |
| SCH206BOND | School 206 BOND | 0.3161759235 | $985,827 | $985,827 | $311.69 | | |
| SCH206MO | School 206 Enrichment | 0.4547169547 | $985,827 | $985,827 | $448.27 | | |
| ST | State School | 1.3035497053 | $985,827 | $985,827 | $1,285.07 | | |
| ST2 | State School Part 2 | 0.8169543533 | $985,827 | $985,827 | $805.38 | | |
| SWHIDPRBD | P & R S Whidbey BOND | 0.0152817568 | $985,827 | $985,827 | $15.07 | | |
| SWHIDPRBD2 | P & R S Whidbey BOND2 | 0.0138911264 | $985,827 | $985,827 | $13.69 | | |
| SWHIDPRMT | P & R S Whidbey GEN | 0.2053334452 | $985,827 | $985,827 | $202.42 | | |
| | Total Tax Rate: | 6.6934522006 | | | | | |
| | | | | Taxes w/Current Exemptions: | $6,598.57 | | |
| | | | | Taxes w/o Exemptions: | $6,598.57 | | |
Improvement / Building
| Improvement #1: | RESIDENTIAL | State Code: | Y | 2145.5 sqft | Value: | $605,827 |
| Bathrooms: | 2.75 | Bedrooms: | 3 | | Ceiling: | DRYWALL PAINTED | Exterior Wall/Cover: | SHINGLE | | Floor Covering: | HARDWOOD 100% | Floor Structure: | WOOD W/SUBFLOOR | | Foundation: | CONCRETE | Heating: | FHA GAS | | Interior Finish: | DRYWALL PAINT | Plumbing Fixture Cnt: | 15 | | Roof Slope: | 12" IN 12" | Roof Structure/Cover: | CJ ASPHALT |
|
| | Type | Description | Class CD | Sub Class CD | Year Built | Area |
| | BAS | BASE/MAIN FLOOR | 4 | 0 | 2000 | 1585.9 |
| | OP3 | OPEN PORCH W/ROOF | 4 | 0 | 2000 | 60.0 |
| | OP4 | OPEN PORCH W/CEILING-ROOF | 4 | 0 | 2000 | 44.4 |
| | UTY | STORAGE/UTILITY | 4 | 0 | 2000 | 40.2 |
| | UPS | UPPER STORY | 4 | 0 | 2000 | 559.6 |
| | OWP | OPEN WOOD PORCH W/STEPS | 4 | 0 | 2000 | 303.8 |
| | DGR | DETACHED GARAGE | 4 | 0 | 2000 | 1440.0 |
| | DGR | DETACHED GARAGE | 4 | 0 | 2000 | 672.0 |
Sketch
Property Image
Land
| 1 | 32 | AC (03.01-09.99) | 8.0400 | 350222.40 | 0.00 | 0.00 | 1.00 | $380,000 | $0 |
Roll Value History
| 2026 | N/A | N/A | N/A | N/A | N/A |
| 2025 | $605,827 | $380,000 | $0 | $985,827 | $985,827 |
| 2024 | $613,105 | $350,000 | $0 | $963,105 | $963,105 |
| 2023 | $620,383 | $330,000 | $0 | $950,383 | $950,383 |
| 2022 | $568,363 | $290,000 | $0 | $858,363 | $858,363 |
| 2021 | $499,947 | $230,000 | $0 | $729,947 | $729,947 |
| 2020 | $457,942 | $190,000 | $0 | $647,942 | $647,942 |
| 2019 | $350,499 | $250,000 | $0 | $600,499 | $600,499 |
| 2018 | $351,527 | $210,000 | $0 | $561,527 | $561,527 |
| 2017 | $346,981 | $190,000 | $0 | $536,981 | $536,981 |
| 2016 | $351,016 | $135,000 | $0 | $486,016 | $486,016 |
| 2015 | $355,051 | $135,000 | $0 | $490,051 | $420,051 |
| 2014 | $357,766 | $116,140 | $0 | $473,906 | $473,906 |
| 2013 | $361,016 | $125,220 | $0 | $486,236 | $486,236 |
| 2012 | $364,268 | $125,220 | $0 | $489,488 | $489,488 |
| 2011 | $367,518 | $125,220 | $0 | $492,738 | $492,738 |
| 2010 | $380,475 | $125,220 | $0 | $505,695 | $505,695 |
| 2009 | $394,207 | $202,400 | $0 | $596,607 | $596,607 |
| 2008 | $396,933 | $204,481 | $0 | $601,414 | $531,414 |
| 2007 | $403,156 | $158,380 | $0 | $561,536 | $561,536 |
Deed and Sales History
| 1 | 05/12/2021 | QCD | Quit Claim Deed | JOHANSON, INGRID LEANN | JOHANSON, INGRID LEANN | | | $0.00 | 48323 | 4519755 |
| 2 | 05/12/2021 | QCD | Quit Claim Deed | CHILD JTWROS, LONNIE | JOHANSON, INGRID LEANN | | | $0.00 | 48267 | 4519498 |
| 3 | 05/25/2016 | WD | Warranty Deed | HERSHMAN, CAROL-LEE | CHILD JTWROS, LONNIE | | | $552,000.00 | 24475 | 4400033 |
| 4 | 01/06/2016 | TOD | Transfer On Death Deed | HERSHMAN SR, F ELWOOD | HERSHMAN, CAROL-LEE | | | | 0 | 87277 |
| 5 | 10/25/2005 | QCD | Quit Claim Deed | HERSHMAN SR, F ELWOOD | HERSHMAN SR, F ELWOOD | | | $1,080.00 | 70680 | 4120802 |
| 6 | 07/18/2002 | WD | Warranty Deed | SCHEUTZOW, JAN T | HERSHMAN SR, F ELWOOD | | | $437,000.00 | 22798 | 4025967 |
| 7 | 04/18/2000 | WD | Warranty Deed | MCLAUGHLIN, BARKLEY R | SCHEUTZOW, JAN T | | | $79,000.00 | 1572 | 20007550 |
| 8 | 01/21/2000 | BLA | DNU - Boundary Line Adjustment | MCLAUGHLIN, BARKLEY R | MCLAUGHLIN, BARKLEY R | | | $0.00 | 68547 | 99014325 |
| 9 | 02/01/1996 | WD | Warranty Deed | MORRIS, STEVEN & | MCLAUGHLIN, BARKLEY R | | | $90,000.00 | 60641 | 96008639 |
| 10 | 07/01/1992 | WD | Warranty Deed | COCHRAN, EUGENE L | MORRIS, STEVEN & | | | $85,000.00 | 22813 | 92013658 |
| 11 | 10/01/1991 | OTHER | Other - Misc. Documents | COCHRAN, EUGENE L | COCHRAN, EUGENE L | | | $0.00 | 64487 | 91014743 |
| 12 | 01/01/1900 | OTHER | Other - Misc. Documents | Unknown | COCHRAN, EUGENE L | | | $0.00 | 0 | 0 |
Payout Agreement
| No payout information available.. |