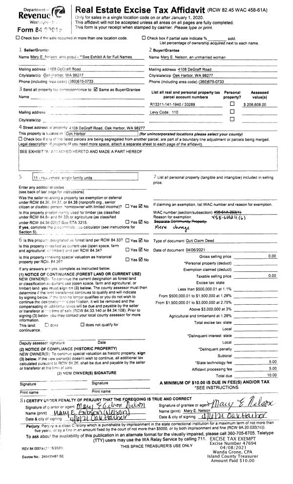
Property
Account |
| Property ID: | 126517 | Abbreviated Legal Description: | 54 - W/2 OF S412.5' OF S825 EX E387.85' EX W800' GL2 TGW SUB EZ |
| Geographic ID: | R32907-283-1080 | Agent Code: | |
| Type: | Real | | |
| Tax Area: | 712 - APPRAISER-S Whid Schl Dist, outside Langley, improved, greater than 1 acre | Land Use Code | 11 |
| Open Space: | N | DFL | N |
| Historic Property: | N | Remodel Property: | N |
| Multi-Family Redevelopment: | N | | |
| Township: | 29 | Section: | 07 |
| Range: | R3 |
Location |
| Address: | 5377 FOXGLOVE LN LANGLEY, WA 98260 | Mapsco: | |
| Neighborhood: | Cycle 4 | Map ID: | 744 |
| Neighborhood CD: | 4 |
Owner |
| Name: | SAGLIE, MARTIN | Owner ID: | 188596 |
| Mailing Address: | PO BOX 1299 FREELAND, WA 98249-1299 | % Ownership: | 100.0000000000% |
| | | Exemptions: | SNR/DSBL |
Taxes and Assessment Details
Values
| (+) Improvement Homesite Value: | + | $40,029 | |
| (+) Improvement Non-Homesite Value: | + | $0 | |
| (+) Land Homesite Value: | + | $310,000 | |
| (+) Land Non-Homesite Value: | + | $0 | |
| (+) Curr Use (HS): | + | $0 | $0 |
| (+) Curr Use (NHS): | + | $0 | $0 |
| | | -------------------------- | |
| (=) Market Value: | = | $350,029 | |
| (–) Productivity Loss: | – | $0 | |
| | | -------------------------- | |
| (=) Subtotal: | = | $350,029 | |
| (+) Senior Appraised Value: | + | $340,429 | |
| (+) Non-Senior Appraised Value: | + | $0 | |
| | | -------------------------- | |
| (=) Total Appraised Value: | = | $340,429 | |
| (–) Senior Exemption Loss: | – | $204,257 | |
| (–) Exemption Loss: | – | $0 | |
| | | -------------------------- | |
| (=) Taxable Value: | = | $136,172 | |
Taxing Jurisdiction
| Owner: | SAGLIE, MARTIN | | |
| % Ownership: | 100.0000000000% | | |
| Total Value: | $350,029 | | |
| Tax Area: | 712 - APPRAISER-S Whid Schl Dist, outside Langley, improved, greater than 1 acre |
| CF | Conservation Futures | 0.0316035091 | $350,029 | $136,172 | $4.30 | | |
| FIRE3 | Fire & Rescue Dist #3 S Whidbey GEN | 1.2004855531 | $350,029 | $136,172 | $163.47 | | |
| HOBOND | Hospital BOND | 0.0000000000 | $350,029 | $0 | $0.00 | | |
| HOGEN | Hospital GEN | 0.3902502903 | $350,029 | $136,172 | $53.14 | | |
| CE | County Current Expense | 0.3708482477 | $350,029 | $136,172 | $50.50 | | |
| CR | County Roads | 0.4584763726 | $350,029 | $136,172 | $62.43 | | |
| ISLANDEMS | Hospital GEN (EMS) | 0.5000000000 | $350,029 | $136,172 | $68.09 | | |
| LIB | Library Sno-Isle GEN | 0.3153421757 | $350,029 | $136,172 | $42.94 | | |
| PORTWHID | Port of S Whidbey GEN | 0.1094540357 | $350,029 | $136,172 | $14.90 | | |
| SCH206BOND | School 206 BOND | 0.3161759235 | $350,029 | $136,172 | $43.05 | | |
| SCH206MO | School 206 Enrichment | 0.0000000000 | $350,029 | $0 | $0.00 | | |
| ST | State School | 1.3035497053 | $350,029 | $136,172 | $177.51 | | |
| ST2 | State School Part 2 | 0.0000000000 | $350,029 | $0 | $0.00 | | |
| SWHIDPRBD | P & R S Whidbey BOND | 0.0000000000 | $350,029 | $0 | $0.00 | | |
| SWHIDPRBD2 | P & R S Whidbey BOND2 | 0.0000000000 | $350,029 | $0 | $0.00 | | |
| SWHIDPRMT | P & R S Whidbey GEN | 0.2053334452 | $350,029 | $136,172 | $27.96 | | |
| | Total Tax Rate: | 5.2015192582 | | | | | |
| | | | | Taxes w/Current Exemptions: | $708.29 | | |
| | | | | Taxes w/o Exemptions: | $2,342.89 | | |
Improvement / Building
| Improvement #1: | RESIDENTIAL | State Code: | Y | 1086.0 sqft | Value: | $40,029 |
| Bathrooms: | 2 | Ceiling: | DRYWALL PAINTED | | Cooling: | (NONE) | Exterior Wall/Cover: | CEMENT FIBER | | Floor Covering: | HARDWOOD/CARP 60-40 | Floor Structure: | WOOD W/SUBFLOOR | | Foundation: | CONCRETE | Heating: | FHA GAS | | Interior Finish: | DRYWALL PAINT | Plumbing Fixture Cnt: | 1 | | Roof Slope: | 6" IN 12" | Roof Structure/Cover: | CJ ASPHALT |
|
| | Type | Description | Class CD | Sub Class CD | Year Built | Area |
| | BAS | BASE/MAIN FLOOR | 2 | 0 | 1970 | 750.0 |
| | DGR | DETACHED GARAGE | 2 | 0 | 1970 | 336.0 |
| | LOF | LOFT | 2 | 0 | 1970 | 336.0 |
| | oCB2 | CABIN FIN | 2 | 0 | 1970 | 0.0 |
Sketch
Property Image
Land
| 1 | 18 | AC (02.01-03.00) | 0.0000 | 0.00 | 0.00 | 0.00 | 1.00 | $310,000 | $0 |
Roll Value History
| 2026 | N/A | N/A | N/A | N/A | N/A |
| 2025 | $40,029 | $310,000 | $0 | $350,029 | $136,172 |
| 2024 | $40,429 | $300,000 | $0 | $340,429 | $136,172 |
| 2023 | $40,827 | $290,000 | $0 | $330,827 | $330,827 |
| 2022 | $39,032 | $270,000 | $0 | $309,032 | $309,032 |
| 2021 | $36,603 | $155,000 | $0 | $191,603 | $191,603 |
| 2020 | $36,341 | $165,000 | $0 | $201,341 | $201,341 |
| 2019 | $31,906 | $200,000 | $0 | $231,906 | $231,906 |
| 2018 | $31,963 | $170,000 | $0 | $201,963 | $201,963 |
| 2017 | $32,076 | $150,000 | $0 | $182,076 | $182,076 |
| 2016 | $32,304 | $135,000 | $0 | $167,304 | $167,304 |
| 2015 | $32,530 | $135,000 | $0 | $167,530 | $167,530 |
| 2014 | $31,563 | $110,500 | $0 | $142,063 | $142,063 |
| 2013 | $31,873 | $110,500 | $0 | $142,373 | $142,373 |
| 2012 | $32,032 | $110,500 | $0 | $142,532 | $142,532 |
| 2011 | $32,342 | $130,000 | $0 | $162,342 | $162,342 |
| 2010 | $30,903 | $130,000 | $0 | $160,903 | $160,903 |
| 2009 | $31,641 | $155,000 | $0 | $186,641 | $186,641 |
| 2008 | $32,839 | $135,000 | $0 | $167,839 | $167,839 |
| 2007 | $33,557 | $135,000 | $0 | $168,557 | $168,557 |
Deed and Sales History
| 1 | 09/06/2002 | WD | Warranty Deed | ODLE, JAMES | SAGLIE, MARTIN | | | $110,000.00 | 23559 | 4030617 |
| 2 | 10/01/1979 | EZ | Easement | HERZBERG, WILLIAM C | ODLE, JAMES | | | $15,000.00 | 95399 | 361556 |
| 3 | 09/01/1978 | OTHER | Other - Misc. Documents | ODLE, TRISTAN J | HERZBERG, WILLIAM C | | | $8,950.00 | 848490 | 3406230 |
| 4 | 01/01/1900 | OTHER | Other - Misc. Documents | Unknown | ODLE, TRISTAN J | | | $2,000.00 | 0 | 0 |
Payout Agreement
| No payout information available.. |