Property
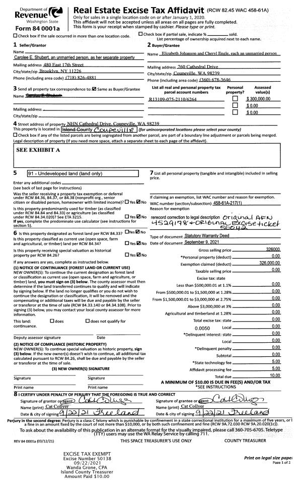
Account |
| Property ID: | 126679 | Abbreviated Legal Description: | 48 - IN SW NE:BG SW CR SW NE S87*E585.49' N1*E372.9' TPB N1*E864.73' S86*E581.85 S1*W852.91' N87*W584.31' TPB TGW EZ |
| Geographic ID: | R32907-349-4300 | Agent Code: | |
| Type: | Real | | |
| Tax Area: | 712 - APPRAISER-S Whid Schl Dist, outside Langley, improved, greater than 1 acre | Land Use Code | 11 |
| Open Space: | N | DFL | N |
| Historic Property: | N | Remodel Property: | N |
| Multi-Family Redevelopment: | N | | |
| Township: | 29 | Section: | 07 |
| Range: | R3 |
Location |
| Address: | 5359 WOODSY PLACE LANGLEY, WA 98260 | Mapsco: | |
| Neighborhood: | Cycle 4 | Map ID: | 745 |
| Neighborhood CD: | 4 |
Owner |
| Name: | GABELEIN, LESLIE R | Owner ID: | 17381 |
| Mailing Address: | KATHIE A GABELEIN 5359 WOODSY PLACE LANGLEY, WA 98260 | % Ownership: | 100.0000000000% |
| | | Exemptions: | |
Taxes and Assessment Details
Values
| (+) Improvement Homesite Value: | + | $0 | |
| (+) Improvement Non-Homesite Value: | + | $344,859 | |
| (+) Land Homesite Value: | + | $0 | |
| (+) Land Non-Homesite Value: | + | $400,000 | |
| (+) Curr Use (HS): | + | $0 | $0 |
| (+) Curr Use (NHS): | + | $0 | $0 |
| | | -------------------------- | |
| (=) Market Value: | = | $744,859 | |
| (–) Productivity Loss: | – | $0 | |
| | | -------------------------- | |
| (=) Subtotal: | = | $744,859 | |
| (+) Senior Appraised Value: | + | $0 | |
| (+) Non-Senior Appraised Value: | + | $744,859 | |
| | | -------------------------- | |
| (=) Total Appraised Value: | = | $744,859 | |
| (–) Senior Exemption Loss: | – | $0 | |
| (–) Exemption Loss: | – | $0 | |
| | | -------------------------- | |
| (=) Taxable Value: | = | $744,859 | |
Taxing Jurisdiction
| Owner: | GABELEIN, LESLIE R | | |
| % Ownership: | 100.0000000000% | | |
| Total Value: | $744,859 | | |
| Tax Area: | 712 - APPRAISER-S Whid Schl Dist, outside Langley, improved, greater than 1 acre |
| CF | Conservation Futures | 0.0316035091 | $744,859 | $744,859 | $23.54 | | |
| FIRE3 | Fire & Rescue Dist #3 S Whidbey GEN | 1.2004855531 | $744,859 | $744,859 | $894.19 | | |
| HOBOND | Hospital BOND | 0.1910887512 | $744,859 | $744,859 | $142.33 | | |
| HOGEN | Hospital GEN | 0.3902502903 | $744,859 | $744,859 | $290.68 | | |
| CE | County Current Expense | 0.3708482477 | $744,859 | $744,859 | $276.23 | | |
| CR | County Roads | 0.4584763726 | $744,859 | $744,859 | $341.50 | | |
| ISLANDEMS | Hospital GEN (EMS) | 0.5000000000 | $744,859 | $744,859 | $372.43 | | |
| LIB | Library Sno-Isle GEN | 0.3153421757 | $744,859 | $744,859 | $234.89 | | |
| PORTWHID | Port of S Whidbey GEN | 0.1094540357 | $744,859 | $744,859 | $81.53 | | |
| SCH206BOND | School 206 BOND | 0.3161759235 | $744,859 | $744,859 | $235.51 | | |
| SCH206MO | School 206 Enrichment | 0.4547169547 | $744,859 | $744,859 | $338.70 | | |
| ST | State School | 1.3035497053 | $744,859 | $744,859 | $970.96 | | |
| ST2 | State School Part 2 | 0.8169543533 | $744,859 | $744,859 | $608.52 | | |
| SWHIDPRBD | P & R S Whidbey BOND | 0.0152817568 | $744,859 | $744,859 | $11.38 | | |
| SWHIDPRBD2 | P & R S Whidbey BOND2 | 0.0138911264 | $744,859 | $744,859 | $10.35 | | |
| SWHIDPRMT | P & R S Whidbey GEN | 0.2053334452 | $744,859 | $744,859 | $152.94 | | |
| | Total Tax Rate: | 6.6934522006 | | | | | |
| | | | | Taxes w/Current Exemptions: | $4,985.68 | | |
| | | | | Taxes w/o Exemptions: | $4,985.68 | | |
Improvement / Building
| Improvement #1: | RESIDENTIAL | State Code: | Y | 2121.2 sqft | Value: | $344,859 |
| Bathrooms: | 2 | Bedrooms: | 3 | | Ceiling: | DRYWALL PAINTED | Cooling: | HEAT PUMP/CONV/V | | Exterior Wall/Cover: | WOOD SIDING | Floor Covering: | HARDWOOD/CARP 60-40 | | Floor Structure: | WOOD W/SUBFLOOR | Foundation: | CONCRETE | | Interior Finish: | DRYWALL PAINT | Plumbing Fixture Cnt: | 9 | | Roof Slope: | 12" IN 12" | Roof Structure/Cover: | CJ ALUMINIUM HEAVY |
|
| | Type | Description | Class CD | Sub Class CD | Year Built | Area |
| | BAS | BASE/MAIN FLOOR | 3 | 0 | 1979 | 1249.2 |
| | OP1 | OPEN PORCH SLAB | 3 | 0 | 1979 | 922.3 |
| | OWR | OPEN WOOD PORCH W/STEPS/ROOF | 3 | 0 | 1979 | 195.7 |
| | OWR | OPEN WOOD PORCH W/STEPS/ROOF | 3 | 0 | 1979 | 225.2 |
| | UPH | HALF STORY | 3 | 0 | 1979 | 872.0 |
| | CPD | OPEN CARPORT DIRT FLOOR | 3 | 0 | 1979 | 1000.0 |
Sketch
| No sketches available for this property. |
Property Image
Land
| 1 | 35 | AC (10.00-30.99) | 0.0000 | 0.00 | 0.00 | 0.00 | 1.00 | $400,000 | $0 |
Roll Value History
| 2026 | N/A | N/A | N/A | N/A | N/A |
| 2025 | $344,859 | $400,000 | $0 | $744,859 | $744,859 |
| 2024 | $349,535 | $360,000 | $0 | $709,535 | $709,535 |
| 2023 | $354,242 | $360,000 | $0 | $714,242 | $714,242 |
| 2022 | $325,046 | $350,000 | $0 | $675,046 | $675,046 |
| 2021 | $286,344 | $250,000 | $0 | $536,344 | $536,344 |
| 2020 | $251,212 | $250,000 | $0 | $501,212 | $501,212 |
| 2019 | $196,043 | $300,000 | $0 | $496,043 | $496,043 |
| 2018 | $196,670 | $245,000 | $0 | $441,670 | $441,670 |
| 2017 | $197,922 | $200,000 | $0 | $397,922 | $397,922 |
| 2016 | $200,427 | $200,000 | $0 | $400,427 | $400,427 |
| 2015 | $202,933 | $200,000 | $0 | $402,933 | $402,933 |
| 2014 | $157,189 | $201,075 | $0 | $358,264 | $358,264 |
| 2013 | $159,485 | $201,075 | $0 | $360,560 | $360,560 |
| 2012 | $161,781 | $201,075 | $0 | $362,856 | $362,856 |
| 2011 | $164,077 | $201,075 | $0 | $365,152 | $365,152 |
| 2010 | $174,208 | $201,075 | $0 | $375,283 | $375,283 |
| 2009 | $182,000 | $252,780 | $0 | $434,780 | $434,780 |
| 2008 | $184,772 | $425,130 | $0 | $609,902 | $609,902 |
| 2007 | $187,577 | $260,363 | $0 | $447,940 | $447,940 |
Deed and Sales History
| 1 | 02/24/2009 | QCD | Quit Claim Deed | Unknown | GABELEIN, LESLIE R | | | $0.00 | 90677 | 4247503 |
Payout Agreement
| No payout information available.. |