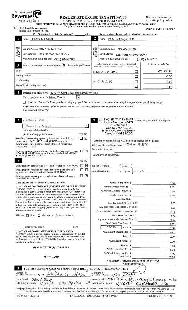
Property
Account |
| Property ID: | 126811 | Abbreviated Legal Description: | 64 - IN NE NW:BG N/4 CR SEC 7 S743.88' TPB S459.84' W734.4' TO C/L EZ AF#303244 N ALG C/L TP W789.84' FR TPB E789.84' TPB |
| Geographic ID: | R32907-416-2980 | Agent Code: | |
| Type: | Real | | |
| Tax Area: | 712 - APPRAISER-S Whid Schl Dist, outside Langley, improved, greater than 1 acre | Land Use Code | 11 |
| Open Space: | N | DFL | N |
| Historic Property: | N | Remodel Property: | N |
| Multi-Family Redevelopment: | N | | |
| Township: | 29 | Section: | 07 |
| Range: | R3 |
Location |
| Address: | 5279 LOLA LN LANGLEY, WA 98260 | Mapsco: | |
| Neighborhood: | Cycle 4 | Map ID: | 745 |
| Neighborhood CD: | 4 |
Owner |
| Name: | WITKINS TTEE, JAMES P | Owner ID: | 292486 |
| Mailing Address: | JANIS T WITKINS 5279 LOLA LN LANGLEY, WA 98260 | % Ownership: | 100.0000000000% |
| | | Exemptions: | |
Taxes and Assessment Details
Values
| (+) Improvement Homesite Value: | + | $0 | |
| (+) Improvement Non-Homesite Value: | + | $984,266 | |
| (+) Land Homesite Value: | + | $0 | |
| (+) Land Non-Homesite Value: | + | $380,000 | |
| (+) Curr Use (HS): | + | $0 | $0 |
| (+) Curr Use (NHS): | + | $0 | $0 |
| | | -------------------------- | |
| (=) Market Value: | = | $1,364,266 | |
| (–) Productivity Loss: | – | $0 | |
| | | -------------------------- | |
| (=) Subtotal: | = | $1,364,266 | |
| (+) Senior Appraised Value: | + | $0 | |
| (+) Non-Senior Appraised Value: | + | $1,364,266 | |
| | | -------------------------- | |
| (=) Total Appraised Value: | = | $1,364,266 | |
| (–) Senior Exemption Loss: | – | $0 | |
| (–) Exemption Loss: | – | $0 | |
| | | -------------------------- | |
| (=) Taxable Value: | = | $1,364,266 | |
Taxing Jurisdiction
| Owner: | WITKINS TTEE, JAMES P | | |
| % Ownership: | 100.0000000000% | | |
| Total Value: | $1,364,266 | | |
| Tax Area: | 712 - APPRAISER-S Whid Schl Dist, outside Langley, improved, greater than 1 acre |
| CF | Conservation Futures | 0.0316035091 | $1,364,266 | $1,364,266 | $43.12 | | |
| FIRE3 | Fire & Rescue Dist #3 S Whidbey GEN | 1.2004855531 | $1,364,266 | $1,364,266 | $1,637.78 | | |
| HOBOND | Hospital BOND | 0.1910887512 | $1,364,266 | $1,364,266 | $260.70 | | |
| HOGEN | Hospital GEN | 0.3902502903 | $1,364,266 | $1,364,266 | $532.41 | | |
| CE | County Current Expense | 0.3708482477 | $1,364,266 | $1,364,266 | $505.94 | | |
| CR | County Roads | 0.4584763726 | $1,364,266 | $1,364,266 | $625.48 | | |
| ISLANDEMS | Hospital GEN (EMS) | 0.5000000000 | $1,364,266 | $1,364,266 | $682.13 | | |
| LIB | Library Sno-Isle GEN | 0.3153421757 | $1,364,266 | $1,364,266 | $430.21 | | |
| PORTWHID | Port of S Whidbey GEN | 0.1094540357 | $1,364,266 | $1,364,266 | $149.32 | | |
| SCH206BOND | School 206 BOND | 0.3161759235 | $1,364,266 | $1,364,266 | $431.35 | | |
| SCH206MO | School 206 Enrichment | 0.4547169547 | $1,364,266 | $1,364,266 | $620.35 | | |
| ST | State School | 1.3035497053 | $1,364,266 | $1,364,266 | $1,778.39 | | |
| ST2 | State School Part 2 | 0.8169543533 | $1,364,266 | $1,364,266 | $1,114.54 | | |
| SWHIDPRBD | P & R S Whidbey BOND | 0.0152817568 | $1,364,266 | $1,364,266 | $20.85 | | |
| SWHIDPRBD2 | P & R S Whidbey BOND2 | 0.0138911264 | $1,364,266 | $1,364,266 | $18.95 | | |
| SWHIDPRMT | P & R S Whidbey GEN | 0.2053334452 | $1,364,266 | $1,364,266 | $280.13 | | |
| | Total Tax Rate: | 6.6934522006 | | | | | |
| | | | | Taxes w/Current Exemptions: | $9,131.65 | | |
| | | | | Taxes w/o Exemptions: | $9,131.65 | | |
Improvement / Building
| Improvement #1: | RESIDENTIAL | State Code: | Y | 3321.7 sqft | Value: | $632,593 |
| Bathrooms: | 2.5 | Bedrooms: | 2 | | Ceiling: | BEAM PAINTED | Exterior Wall/Cover: | WOOD SIDING | | Floor Covering: | COLORED CONCRETE | Floor Structure: | SLAB ON GRADE | | Foundation: | SLAB/CONCRETE | Heating: | RADIANT FLOOR | | Interior Finish: | DRYWALL PAINT | Plumbing Fixture Cnt: | 15 | | Roof Slope: | 6" IN 12" | Roof Structure/Cover: | BEAM ASPHALT |
|
| | Type | Description | Class CD | Sub Class CD | Year Built | Area |
| | BAS | BASE/MAIN FLOOR | 5 | 0 | 2001 | 3321.7 |
| | OP4 | OPEN PORCH W/CEILING-ROOF | 5 | 0 | 2001 | 72.9 |
| | OP4 | OPEN PORCH W/CEILING-ROOF | 5 | 0 | 2001 | 264.0 |
| | AGR | ATTACHED GARAGE | 5 | 0 | 2001 | 672.0 |
| | UTY | STORAGE/UTILITY | 5 | 0 | 2001 | 108.0 |
| Improvement #2: | RESIDENTIAL | State Code: | Y | 1004.0 sqft | Value: | $351,673 |
| Bathrooms: | 1 | Bedrooms: | 1 | | Ceiling: | DRYWALL PAINTED | Exterior Wall/Cover: | SHINGLE | | Floor Covering: | COLORED CONCRETE | Floor Structure: | WOOD W/SUBFLOOR | | Foundation: | CONCRETE | Heating: | HEAT PUMP | | Interior Finish: | DRYWALL PAINT | Plumbing Fixture Cnt: | 6 | | Roof Slope: | 6" IN 12" | Roof Structure/Cover: | CJ ASPHALT |
|
| | Type | Description | Class CD | Sub Class CD | Year Built | Area |
| | BAS | BASE/MAIN FLOOR | 5 | 0 | 2001 | 1004.0 |
| | BIG | BUILT IN GARAGE | 5 | 0 | 2001 | 1255.0 |
| | BAW | BALCONY WOOD RAIL | 5 | 0 | 2001 | 48.0 |
Sketch
Property Image
Land
| 1 | 32 | AC (03.01-09.99) | 8.2500 | 0.00 | 0.00 | 0.00 | 1.00 | $380,000 | $0 |
Roll Value History
| 2026 | N/A | N/A | N/A | N/A | N/A |
| 2025 | $984,266 | $380,000 | $0 | $1,364,266 | $1,364,266 |
| 2024 | $968,476 | $350,000 | $0 | $1,318,476 | $1,318,476 |
| 2023 | $979,706 | $330,000 | $0 | $1,309,706 | $1,309,706 |
| 2022 | $897,301 | $290,000 | $0 | $1,187,301 | $1,187,301 |
| 2021 | $789,085 | $230,000 | $0 | $1,019,085 | $1,019,085 |
| 2020 | $743,961 | $190,000 | $0 | $933,961 | $933,961 |
| 2019 | $591,578 | $250,000 | $0 | $841,578 | $841,578 |
| 2018 | $593,272 | $210,000 | $0 | $803,272 | $803,272 |
| 2017 | $582,853 | $190,000 | $0 | $772,853 | $772,853 |
| 2016 | $589,631 | $165,000 | $0 | $754,631 | $754,631 |
| 2015 | $596,408 | $165,000 | $0 | $761,408 | $761,408 |
| 2014 | $577,726 | $206,250 | $0 | $783,976 | $783,976 |
| 2013 | $584,357 | $246,500 | $0 | $830,857 | $830,857 |
| 2012 | $590,988 | $246,500 | $0 | $837,488 | $837,488 |
| 2011 | $597,617 | $246,500 | $0 | $844,117 | $844,117 |
| 2010 | $608,413 | $246,500 | $0 | $854,913 | $854,913 |
| 2009 | $634,048 | $319,000 | $0 | $953,048 | $953,048 |
| 2008 | $634,824 | $332,063 | $0 | $966,887 | $966,887 |
| 2007 | $642,165 | $268,620 | $0 | $910,785 | $910,785 |
Deed and Sales History
| 1 | 10/16/2019 | QCD | Quit Claim Deed | WITKINS, JAMES P | WITKINS TTEE, JAMES P | | | $0.00 | 40995 | 4474910 |
| 2 | 04/07/2017 | WD | Warranty Deed | PITT TRUSTEE, RICHARD S | WITKINS, JAMES P | | | $830,000.00 | 28877 | 4420736 |
| 3 | 04/04/2012 | TRUSTEED | Trustee's Deed | PITT, RICHARD S | PITT TRUSTEE, RICHARD S | | | $0.00 | 7320 | 4313075 |
| 4 | 01/20/2012 | QCD | Quit Claim Deed | PITT, RICHARD S | PITT, RICHARD S | | | $0.00 | 6845 | 4309677 |
| 5 | 01/20/2012 | QCD | Quit Claim Deed | PITT TRUSTEE, RICHARD S | PITT, RICHARD S | | | $0.00 | 6697 | 4308669 |
| 6 | 06/27/2011 | QCD | Quit Claim Deed | PITT, RICHARD S | PITT TRUSTEE, RICHARD S | | | $0.00 | 4819 | 4297314 |
| 7 | 01/20/2000 | WD | Warranty Deed | Unknown | PITT, RICHARD S | | | $75,000.00 | 412 | 20002099 |
Payout Agreement
| No payout information available.. |