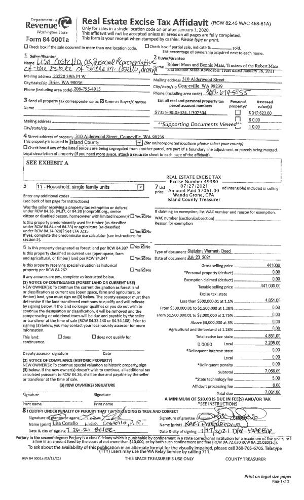
Property
Account |
| Property ID: | 126848 | Abbreviated Legal Description: | 66 - BG NWCR NE NW S2*E753 .92' TPB S2*E268.78' E866 .39' TO CLN EZ AF#302410 (RE-RECORDED AF#303244) N ALG CLN TP E833.77' FR TPB W833.77' TPB |
| Geographic ID: | R32907-428-2240 | Agent Code: | |
| Type: | Real | | |
| Tax Area: | 712 - APPRAISER-S Whid Schl Dist, outside Langley, improved, greater than 1 acre | Land Use Code | 11 |
| Open Space: | N | DFL | N |
| Historic Property: | N | Remodel Property: | N |
| Multi-Family Redevelopment: | N | | |
| Township: | 29 | Section: | 07 |
| Range: | R3 |
Location |
| Address: | 5278 NW LOLA TERRACE LANGLEY, WA 98260 | Mapsco: | |
| Neighborhood: | Cycle 4 | Map ID: | 744 |
| Neighborhood CD: | 4 |
Owner |
| Name: | BARR, DENISE LYN | Owner ID: | 253510 |
| Mailing Address: | MARK D CLARK 5278 LOLA LN LANGLEY, WA 98260 | % Ownership: | 100.0000000000% |
| | | Exemptions: | |
Taxes and Assessment Details
Values
| (+) Improvement Homesite Value: | + | $0 | |
| (+) Improvement Non-Homesite Value: | + | $199,290 | |
| (+) Land Homesite Value: | + | $0 | |
| (+) Land Non-Homesite Value: | + | $380,000 | |
| (+) Curr Use (HS): | + | $0 | $0 |
| (+) Curr Use (NHS): | + | $0 | $0 |
| | | -------------------------- | |
| (=) Market Value: | = | $579,290 | |
| (–) Productivity Loss: | – | $0 | |
| | | -------------------------- | |
| (=) Subtotal: | = | $579,290 | |
| (+) Senior Appraised Value: | + | $0 | |
| (+) Non-Senior Appraised Value: | + | $579,290 | |
| | | -------------------------- | |
| (=) Total Appraised Value: | = | $579,290 | |
| (–) Senior Exemption Loss: | – | $0 | |
| (–) Exemption Loss: | – | $0 | |
| | | -------------------------- | |
| (=) Taxable Value: | = | $579,290 | |
Taxing Jurisdiction
| Owner: | BARR, DENISE LYN | | |
| % Ownership: | 100.0000000000% | | |
| Total Value: | $579,290 | | |
| Tax Area: | 712 - APPRAISER-S Whid Schl Dist, outside Langley, improved, greater than 1 acre |
| CF | Conservation Futures | 0.0316035091 | $579,290 | $579,290 | $18.31 | | |
| FIRE3 | Fire & Rescue Dist #3 S Whidbey GEN | 1.2004855531 | $579,290 | $579,290 | $695.43 | | |
| HOBOND | Hospital BOND | 0.1910887512 | $579,290 | $579,290 | $110.70 | | |
| HOGEN | Hospital GEN | 0.3902502903 | $579,290 | $579,290 | $226.07 | | |
| CE | County Current Expense | 0.3708482477 | $579,290 | $579,290 | $214.83 | | |
| CR | County Roads | 0.4584763726 | $579,290 | $579,290 | $265.59 | | |
| ISLANDEMS | Hospital GEN (EMS) | 0.5000000000 | $579,290 | $579,290 | $289.65 | | |
| LIB | Library Sno-Isle GEN | 0.3153421757 | $579,290 | $579,290 | $182.67 | | |
| PORTWHID | Port of S Whidbey GEN | 0.1094540357 | $579,290 | $579,290 | $63.41 | | |
| SCH206BOND | School 206 BOND | 0.3161759235 | $579,290 | $579,290 | $183.16 | | |
| SCH206MO | School 206 Enrichment | 0.4547169547 | $579,290 | $579,290 | $263.41 | | |
| ST | State School | 1.3035497053 | $579,290 | $579,290 | $755.13 | | |
| ST2 | State School Part 2 | 0.8169543533 | $579,290 | $579,290 | $473.25 | | |
| SWHIDPRBD | P & R S Whidbey BOND | 0.0152817568 | $579,290 | $579,290 | $8.85 | | |
| SWHIDPRBD2 | P & R S Whidbey BOND2 | 0.0138911264 | $579,290 | $579,290 | $8.05 | | |
| SWHIDPRMT | P & R S Whidbey GEN | 0.2053334452 | $579,290 | $579,290 | $118.95 | | |
| | Total Tax Rate: | 6.6934522006 | | | | | |
| | | | | Taxes w/Current Exemptions: | $3,877.46 | | |
| | | | | Taxes w/o Exemptions: | $3,877.46 | | |
Improvement / Building
| Improvement #1: | RESIDENTIAL | State Code: | Y | 816.2 sqft | Value: | $199,290 |
| Bathrooms: | 1 | Bedrooms: | 1 | | Ceiling: | DRYWALL PAINTED | Exterior Wall/Cover: | SHINGLE | | Floor Covering: | HARDWOOD/CARP 80-20 | Floor Structure: | WOOD W/SUBFLOOR | | Foundation: | CONCRETE | Heating: | FHA ELECTRIC | | Interior Finish: | DRYWALL PAINT | Plumbing Fixture Cnt: | 6 | | Roof Slope: | 10" IN 12" | Roof Structure/Cover: | STEEL TERNE |
|
| | Type | Description | Class CD | Sub Class CD | Year Built | Area |
| | BAS | BASE/MAIN FLOOR | 3 | 0 | 2004 | 573.0 |
| | OWP | OPEN WOOD PORCH W/STEPS | 3 | 0 | 2004 | 372.0 |
| | OWR | OPEN WOOD PORCH W/STEPS/ROOF | 3 | 0 | 2004 | 72.0 |
| | LOF | LOFT | 3 | 0 | 2004 | 243.2 |
| | ATF | ATTIC FINISHED | 3 | 0 | 2004 | 1404.0 |
| | oPOL | POLE BARN | 3 | 0 | 2004 | 0.0 |
| | OCP | OPEN CARPORT | 3 | 0 | 2004 | 480.0 |
| | UTY | STORAGE/UTILITY | 3 | 0 | 2004 | 120.0 |
Sketch
Property Image
Land
| 1 | 32 | AC (03.01-09.99) | 5.0300 | 0.00 | 0.00 | 0.00 | 1.00 | $380,000 | $0 |
Roll Value History
| 2026 | N/A | N/A | N/A | N/A | N/A |
| 2025 | $199,290 | $380,000 | $0 | $579,290 | $579,290 |
| 2024 | $201,580 | $350,000 | $0 | $551,580 | $551,580 |
| 2023 | $203,872 | $330,000 | $0 | $533,872 | $533,872 |
| 2022 | $187,927 | $290,000 | $0 | $477,927 | $477,927 |
| 2021 | $166,915 | $230,000 | $0 | $396,915 | $396,915 |
| 2020 | $162,938 | $190,000 | $0 | $352,938 | $352,938 |
| 2019 | $118,893 | $250,000 | $0 | $368,893 | $368,893 |
| 2018 | $119,196 | $210,000 | $0 | $329,196 | $329,196 |
| 2017 | $119,793 | $190,000 | $0 | $309,793 | $309,793 |
| 2016 | $121,006 | $135,000 | $0 | $256,006 | $256,006 |
| 2015 | $122,219 | $135,000 | $0 | $257,219 | $257,219 |
| 2014 | $119,147 | $125,750 | $0 | $244,897 | $244,897 |
| 2013 | $120,201 | $135,810 | $0 | $256,011 | $256,011 |
| 2012 | $121,255 | $171,020 | $0 | $292,275 | $292,275 |
| 2011 | $122,308 | $171,020 | $0 | $293,328 | $293,328 |
| 2010 | $121,862 | $171,020 | $0 | $292,882 | $292,882 |
| 2009 | $127,620 | $221,320 | $0 | $348,940 | $348,940 |
| 2008 | $132,980 | $251,500 | $0 | $384,480 | $384,480 |
| 2007 | $134,971 | $193,655 | $0 | $328,626 | $328,626 |
Deed and Sales History
| 1 | 02/15/2011 | QCD | Quit Claim Deed | BARR, DENISE | BARR, DENISE LYN | | | $0.00 | 3661 | 4290909 |
| 2 | 09/01/1994 | WD | Warranty Deed | LEVINSON, SHARON | BARR, DENISE | | | $50,000.00 | 43776 | 94019678 |
| 3 | 01/01/1992 | OTHER | Other - Misc. Documents | MACKAY, SHARON | LEVINSON, SHARON | | | $0.00 | 64640 | 0 |
| 4 | 01/01/1900 | OTHER | Other - Misc. Documents | Unknown | MACKAY, SHARON | | | $0.00 | 0 | 0 |
Payout Agreement
| No payout information available.. |