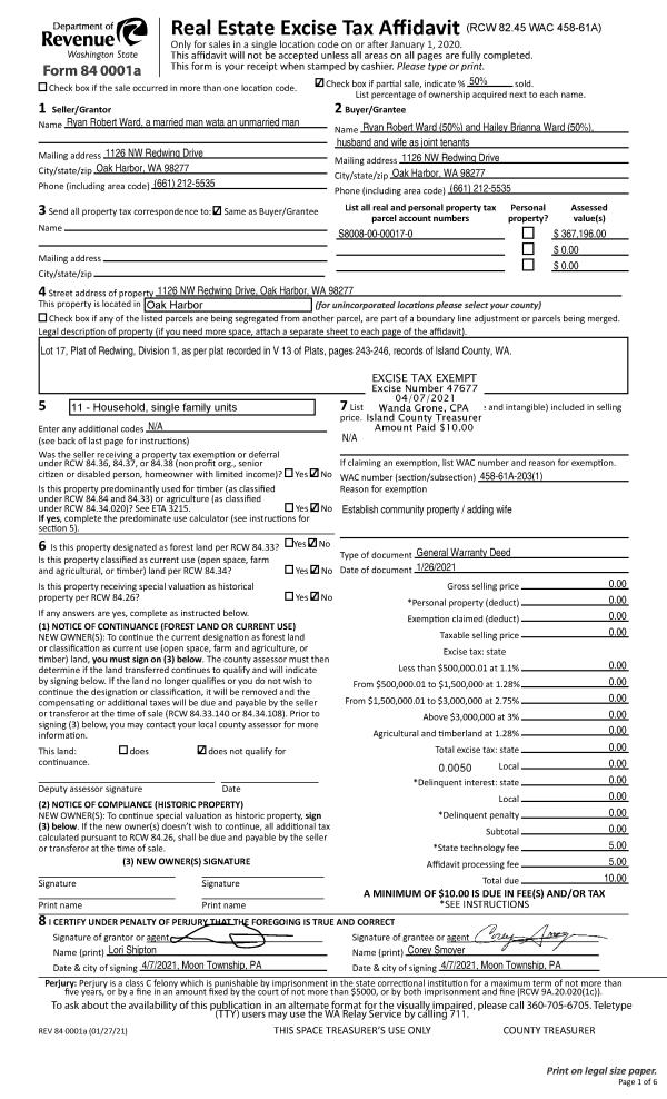
Property
Account |
| Property ID: | 126857 | Abbreviated Legal Description: | 58 - IN GL1: BG NWCR SEC 7 S2*E639.86' TPB S2*E330' E667.01' TO CLN 60' EZ AF#303244 N2*E TP E690.91' FR TPB W690.61' TPB |
| Geographic ID: | R32907-440-0380 | Agent Code: | |
| Type: | Real | | |
| Tax Area: | 712 - APPRAISER-S Whid Schl Dist, outside Langley, improved, greater than 1 acre | Land Use Code | 11 |
| Open Space: | N | DFL | N |
| Historic Property: | N | Remodel Property: | N |
| Multi-Family Redevelopment: | N | | |
| Township: | 29 | Section: | 07 |
| Range: | R3 |
Location |
| Address: | 5256 FOXGLOVE LN LANGLEY, WA 98260 | Mapsco: | |
| Neighborhood: | Cycle 4 | Map ID: | 744 |
| Neighborhood CD: | 4 |
Owner |
| Name: | HOOD, ERIC DUANE | Owner ID: | 310329 |
| Mailing Address: | MARY P HOOD PO BOX 1547 LANGLEY, WA 98260 | % Ownership: | 100.0000000000% |
| | | Exemptions: | |
Taxes and Assessment Details
Values
| (+) Improvement Homesite Value: | + | $0 | |
| (+) Improvement Non-Homesite Value: | + | $283,759 | |
| (+) Land Homesite Value: | + | $0 | |
| (+) Land Non-Homesite Value: | + | $380,000 | |
| (+) Curr Use (HS): | + | $0 | $0 |
| (+) Curr Use (NHS): | + | $0 | $0 |
| | | -------------------------- | |
| (=) Market Value: | = | $663,759 | |
| (–) Productivity Loss: | – | $0 | |
| | | -------------------------- | |
| (=) Subtotal: | = | $663,759 | |
| (+) Senior Appraised Value: | + | $0 | |
| (+) Non-Senior Appraised Value: | + | $663,759 | |
| | | -------------------------- | |
| (=) Total Appraised Value: | = | $663,759 | |
| (–) Senior Exemption Loss: | – | $0 | |
| (–) Exemption Loss: | – | $0 | |
| | | -------------------------- | |
| (=) Taxable Value: | = | $663,759 | |
Taxing Jurisdiction
| Owner: | HOOD, ERIC DUANE | | |
| % Ownership: | 100.0000000000% | | |
| Total Value: | $663,759 | | |
| Tax Area: | 712 - APPRAISER-S Whid Schl Dist, outside Langley, improved, greater than 1 acre |
| CF | Conservation Futures | 0.0316035091 | $663,759 | $663,759 | $20.98 | | |
| FIRE3 | Fire & Rescue Dist #3 S Whidbey GEN | 1.2004855531 | $663,759 | $663,759 | $796.83 | | |
| HOBOND | Hospital BOND | 0.1910887512 | $663,759 | $663,759 | $126.84 | | |
| HOGEN | Hospital GEN | 0.3902502903 | $663,759 | $663,759 | $259.03 | | |
| CE | County Current Expense | 0.3708482477 | $663,759 | $663,759 | $246.15 | | |
| CR | County Roads | 0.4584763726 | $663,759 | $663,759 | $304.32 | | |
| ISLANDEMS | Hospital GEN (EMS) | 0.5000000000 | $663,759 | $663,759 | $331.88 | | |
| LIB | Library Sno-Isle GEN | 0.3153421757 | $663,759 | $663,759 | $209.31 | | |
| PORTWHID | Port of S Whidbey GEN | 0.1094540357 | $663,759 | $663,759 | $72.65 | | |
| SCH206BOND | School 206 BOND | 0.3161759235 | $663,759 | $663,759 | $209.86 | | |
| SCH206MO | School 206 Enrichment | 0.4547169547 | $663,759 | $663,759 | $301.82 | | |
| ST | State School | 1.3035497053 | $663,759 | $663,759 | $865.24 | | |
| ST2 | State School Part 2 | 0.8169543533 | $663,759 | $663,759 | $542.26 | | |
| SWHIDPRBD | P & R S Whidbey BOND | 0.0152817568 | $663,759 | $663,759 | $10.14 | | |
| SWHIDPRBD2 | P & R S Whidbey BOND2 | 0.0138911264 | $663,759 | $663,759 | $9.22 | | |
| SWHIDPRMT | P & R S Whidbey GEN | 0.2053334452 | $663,759 | $663,759 | $136.29 | | |
| | Total Tax Rate: | 6.6934522006 | | | | | |
| | | | | Taxes w/Current Exemptions: | $4,442.82 | | |
| | | | | Taxes w/o Exemptions: | $4,442.82 | | |
Improvement / Building
| Improvement #1: | RESIDENTIAL | State Code: | Y | 1985.3 sqft | Value: | $283,759 |
| Bathrooms: | 2.5 | Bedrooms: | 3 | | Ceiling: | DRYWALL PAINTED | Exterior Wall/Cover: | WOOD SIDING | | Floor Covering: | COLORED CONCRETE | Floor Structure: | SLAB ON GRADE | | Foundation: | SLAB | Heating: | RADIANT FLOOR | | Interior Finish: | DRYWALL PAINT | Plumbing Fixture Cnt: | 11 | | Roof Slope: | 12" IN 12" | Roof Structure/Cover: | CJ ASPHALT |
|
| | Type | Description | Class CD | Sub Class CD | Year Built | Area |
| | BAS | BASE/MAIN FLOOR | 3 | 0 | 2001 | 1105.3 |
| | OP3 | OPEN PORCH W/ROOF | 3 | 0 | 2001 | 175.0 |
| | UPS | UPPER STORY | 3 | 0 | 2001 | 880.0 |
| | OWP | OPEN WOOD PORCH W/STEPS | 3 | 0 | 2001 | 12.0 |
| | OWP | OPEN WOOD PORCH W/STEPS | 3 | 0 | 2001 | 12.0 |
| | OWP | OPEN WOOD PORCH W/STEPS | 3 | 0 | 2001 | 144.0 |
| | UTY | STORAGE/UTILITY | 3 | 0 | 2001 | 180.0 |
Sketch
Property Image
Land
| 1 | 32 | AC (03.01-09.99) | 5.1400 | 0.00 | 0.00 | 0.00 | 1.00 | $380,000 | $0 |
Roll Value History
| 2026 | N/A | N/A | N/A | N/A | N/A |
| 2025 | $283,759 | $380,000 | $0 | $663,759 | $663,759 |
| 2024 | $287,251 | $350,000 | $0 | $637,251 | $637,251 |
| 2023 | $290,744 | $330,000 | $0 | $620,744 | $620,744 |
| 2022 | $266,427 | $290,000 | $0 | $556,427 | $556,427 |
| 2021 | $234,426 | $230,000 | $0 | $464,426 | $464,426 |
| 2020 | $220,379 | $190,000 | $0 | $410,379 | $410,379 |
| 2019 | $166,706 | $250,000 | $0 | $416,706 | $416,706 |
| 2018 | $167,199 | $210,000 | $0 | $377,199 | $377,199 |
| 2017 | $168,166 | $190,000 | $0 | $358,166 | $358,166 |
| 2016 | $170,142 | $135,000 | $0 | $305,142 | $305,142 |
| 2015 | $172,122 | $135,000 | $0 | $307,122 | $307,122 |
| 2014 | $169,874 | $128,500 | $0 | $298,374 | $298,374 |
| 2013 | $171,848 | $138,780 | $0 | $310,628 | $310,628 |
| 2012 | $173,825 | $140,760 | $0 | $314,585 | $314,585 |
| 2011 | $175,799 | $140,760 | $0 | $316,559 | $316,559 |
| 2010 | $185,278 | $140,760 | $0 | $326,038 | $326,038 |
| 2009 | $193,111 | $182,160 | $0 | $375,271 | $375,271 |
| 2008 | $191,614 | $207,000 | $0 | $398,614 | $398,614 |
| 2007 | $331,442 | $10,251 | $0 | $341,693 | $341,693 |
Deed and Sales History
| 1 | 10/05/2023 | QCD | Quit Claim Deed | HOOD, MARY P | HOOD, ERIC DUANE | | | $0.00 | 58217 | 4565618 |
| 2 | 09/03/2013 | ESTSEPPROP | Establish Separate Property | HOOD, ERIC | HOOD, MARY P | | | $0.00 | 12619 | 4347451 |
| 3 | 10/12/1999 | WD | Warranty Deed | RENCKEN, DUANE G | HOOD, ERIC | | | $50,000.00 | 94306 | 99023549 |
| 4 | 10/01/1990 | WD | Warranty Deed | OLSOE, MARK E | RENCKEN, DUANE G | | | $35,000.00 | 5908 | 90020000 |
| 5 | 06/01/1979 | EXECUTORD | Executor Deed | JONES, ALUN | OLSOE, MARK E | | | $27,500.00 | 93107 | 354703 |
| 6 | 01/01/1900 | OTHER | Other - Misc. Documents | Unknown | JONES, ALUN | | | $0.00 | 0 | 0 |
Payout Agreement
| No payout information available.. |