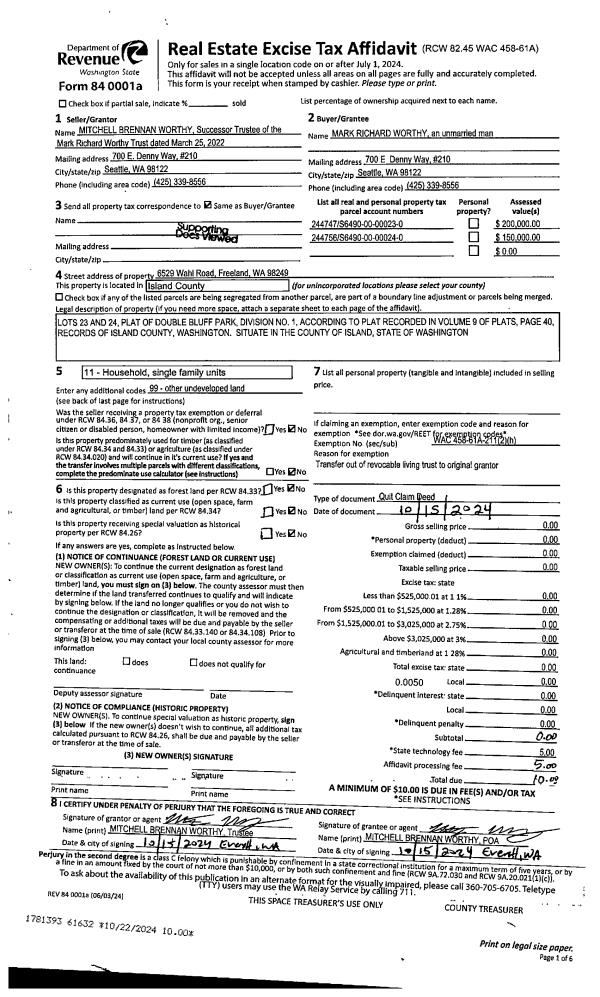
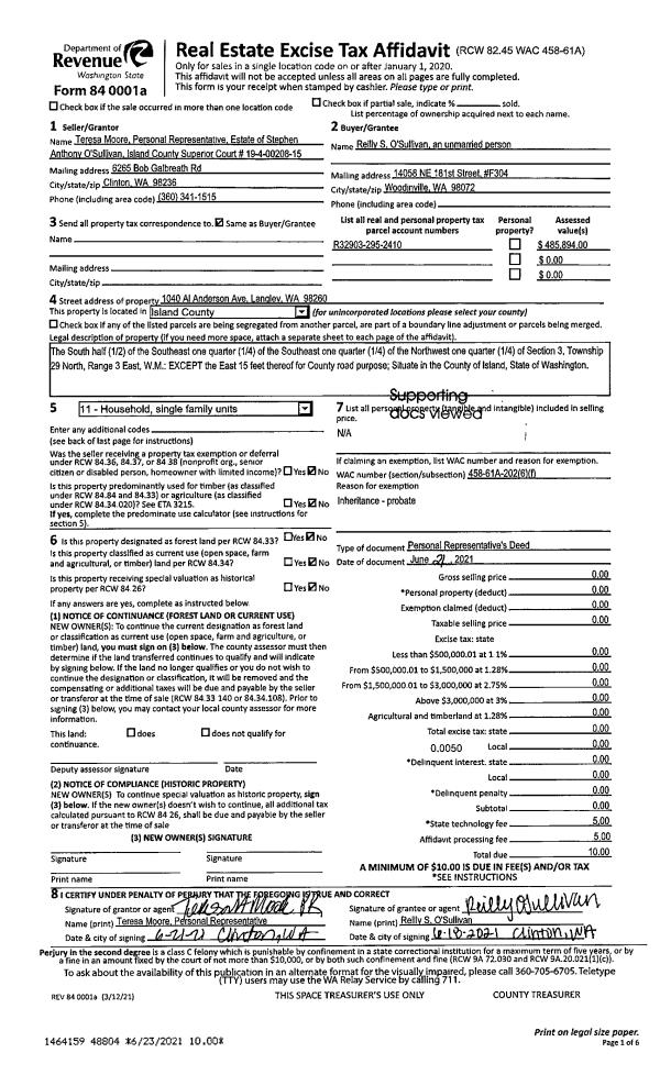
Property
Account |
| Property ID: | 126866 | Abbreviated Legal Description: | 0.7700 Acres ins Section 07s Township 29s Range R3s LOT A BLA 123/19 AF#4467727;s |
| Geographic ID: | R32907-446-4770 | Agent Code: | |
| Type: | Real | | |
| Tax Area: | 710 - APPRAISER-S Whid Schl Dist, outside Langley, improved & 1 acre or less | Land Use Code | 11 |
| Open Space: | N | DFL | N |
| Historic Property: | N | Remodel Property: | N |
| Multi-Family Redevelopment: | N | | |
| Township: | 29 | Section: | 07 |
| Range: | R3 |
Location |
| Address: | 5277 COUNTRY LN LANGLEY, WA 98260 | Mapsco: | |
| Neighborhood: | Cycle 4 | Map ID: | 745 |
| Neighborhood CD: | 4 |
Owner |
| Name: | GABELEIN, ROBERT EMIL | Owner ID: | 315488 |
| Mailing Address: | 5639 MUTNY BAY RD FREELAND, WA 98249 | % Ownership: | 100.0000000000% |
| | | Exemptions: | |
Taxes and Assessment Details
Values
| (+) Improvement Homesite Value: | + | $0 | |
| (+) Improvement Non-Homesite Value: | + | $166,923 | |
| (+) Land Homesite Value: | + | $0 | |
| (+) Land Non-Homesite Value: | + | $410,000 | |
| (+) Curr Use (HS): | + | $0 | $0 |
| (+) Curr Use (NHS): | + | $0 | $0 |
| | | -------------------------- | |
| (=) Market Value: | = | $576,923 | |
| (–) Productivity Loss: | – | $0 | |
| | | -------------------------- | |
| (=) Subtotal: | = | $576,923 | |
| (+) Senior Appraised Value: | + | $0 | |
| (+) Non-Senior Appraised Value: | + | $576,923 | |
| | | -------------------------- | |
| (=) Total Appraised Value: | = | $576,923 | |
| (–) Senior Exemption Loss: | – | $0 | |
| (–) Exemption Loss: | – | $0 | |
| | | -------------------------- | |
| (=) Taxable Value: | = | $576,923 | |
Taxing Jurisdiction
| Owner: | GABELEIN, ROBERT EMIL | | |
| % Ownership: | 100.0000000000% | | |
| Total Value: | $576,923 | | |
| Tax Area: | 710 - APPRAISER-S Whid Schl Dist, outside Langley, improved & 1 acre or less |
| CF | Conservation Futures | 0.0316035091 | $576,923 | $576,923 | $18.23 | | |
| FIRE3 | Fire & Rescue Dist #3 S Whidbey GEN | 1.2004855531 | $576,923 | $576,923 | $692.59 | | |
| HOBOND | Hospital BOND | 0.1910887512 | $576,923 | $576,923 | $110.24 | | |
| HOGEN | Hospital GEN | 0.3902502903 | $576,923 | $576,923 | $225.14 | | |
| CE | County Current Expense | 0.3708482477 | $576,923 | $576,923 | $213.95 | | |
| CR | County Roads | 0.4584763726 | $576,923 | $576,923 | $264.51 | | |
| ISLANDEMS | Hospital GEN (EMS) | 0.5000000000 | $576,923 | $576,923 | $288.46 | | |
| LIB | Library Sno-Isle GEN | 0.3153421757 | $576,923 | $576,923 | $181.93 | | |
| PORTWHID | Port of S Whidbey GEN | 0.1094540357 | $576,923 | $576,923 | $63.15 | | |
| SCH206BOND | School 206 BOND | 0.3161759235 | $576,923 | $576,923 | $182.41 | | |
| SCH206MO | School 206 Enrichment | 0.4547169547 | $576,923 | $576,923 | $262.34 | | |
| ST | State School | 1.3035497053 | $576,923 | $576,923 | $752.05 | | |
| ST2 | State School Part 2 | 0.8169543533 | $576,923 | $576,923 | $471.32 | | |
| SWHIDPRBD | P & R S Whidbey BOND | 0.0152817568 | $576,923 | $576,923 | $8.82 | | |
| SWHIDPRBD2 | P & R S Whidbey BOND2 | 0.0138911264 | $576,923 | $576,923 | $8.01 | | |
| SWHIDPRMT | P & R S Whidbey GEN | 0.2053334452 | $576,923 | $576,923 | $118.46 | | |
| | Total Tax Rate: | 6.6934522006 | | | | | |
| | | | | Taxes w/Current Exemptions: | $3,861.61 | | |
| | | | | Taxes w/o Exemptions: | $3,861.61 | | |
Improvement / Building
| Improvement #1: | RESIDENTIAL | State Code: | Y | 953.7 sqft | Value: | $166,923 |
| Bathrooms: | 1 | Bedrooms: | 2 | | Ceiling: | DRYWALL PAINTED | Cooling: | HEAT PUMP/CONV/V | | Exterior Wall/Cover: | SHINGLE | Floor Covering: | CARPET/VINYL 60-40 | | Floor Structure: | WOOD W/SUBFLOOR | Foundation: | CONCRETE | | Interior Finish: | DRYWALL PAINT | Plumbing Fixture Cnt: | 6 | | Roof Slope: | 4" IN 12" | Roof Structure/Cover: | CJ ALUMINIUM HEAVY |
|
| | Type | Description | Class CD | Sub Class CD | Year Built | Area |
| | BAS | BASE/MAIN FLOOR | 3 | 0 | 1970 | 953.7 |
| | UTY | STORAGE/UTILITY | 3 | 0 | 1970 | 200.0 |
| | OWP | OPEN WOOD PORCH W/STEPS | 3 | 0 | 1970 | 505.7 |
| | CPD | OPEN CARPORT DIRT FLOOR | 3 | 0 | 1970 | 260.0 |
Sketch
Property Image
Land
| 1 | 16 | AC (00.51-01.00) | 0.7700 | 33541.20 | 120.00 | 0.00 | 1.00 | $410,000 | $0 |
Roll Value History
| 2026 | N/A | N/A | N/A | N/A | N/A |
| 2025 | $166,923 | $410,000 | $0 | $576,923 | $576,923 |
| 2024 | $169,299 | $390,000 | $0 | $559,299 | $559,299 |
| 2023 | $171,677 | $360,000 | $0 | $531,677 | $531,677 |
| 2022 | $157,605 | $350,000 | $0 | $507,605 | $507,605 |
| 2021 | $138,917 | $200,000 | $0 | $338,917 | $338,917 |
| 2020 | $123,738 | $200,000 | $0 | $323,738 | $323,738 |
| 2019 | $88,440 | $250,000 | $0 | $338,440 | $338,440 |
| 2018 | $88,768 | $200,000 | $0 | $288,768 | $288,768 |
| 2017 | $89,385 | $200,000 | $0 | $289,385 | $289,385 |
| 2016 | $90,700 | $200,000 | $0 | $290,700 | $290,700 |
| 2015 | $92,014 | $200,000 | $0 | $292,014 | $292,014 |
| 2014 | $73,515 | $286,999 | $0 | $360,514 | $360,514 |
| 2013 | $74,719 | $286,999 | $0 | $361,718 | $361,718 |
| 2012 | $75,924 | $286,999 | $0 | $362,923 | $362,923 |
| 2011 | $77,128 | $286,999 | $0 | $364,127 | $364,127 |
| 2010 | $87,037 | $286,999 | $0 | $374,036 | $374,036 |
| 2009 | $90,773 | $324,008 | $0 | $414,781 | $414,781 |
| 2008 | $89,705 | $324,008 | $0 | $413,713 | $413,713 |
| 2007 | $90,944 | $324,008 | $0 | $414,952 | $414,952 |
Deed and Sales History
| 1 | 01/31/2025 | QCD | Quit Claim Deed | JOHNSON TTEE, PEGGY J | GABELEIN, ROBERT EMIL | | | $0.00 | 62588 | 4582316 |
| 2 | 11/05/2020 | QCD | Quit Claim Deed | GABELEIN TRUSTEE, RAYNARD | JOHNSON TTEE, PEGGY J | | | $0.00 | 45589 | 4501719 |
| 3 | 05/01/1994 | QCD | Quit Claim Deed | GABELEIN, RAYNARD O | GABELEIN, RAYNARD O | | | $0.00 | 51222 | 95005745 |
| 4 | 01/01/1985 | OTHER | Other - Misc. Documents | GABELEIN, CORA | GABELEIN, RAYNARD O | | | $0.00 | 61031 | 0 |
| 5 | 01/01/1900 | OTHER | Other - Misc. Documents | Unknown | GABELEIN, CORA | | | $0.00 | 0 | 0 |
Payout Agreement
| No payout information available.. |