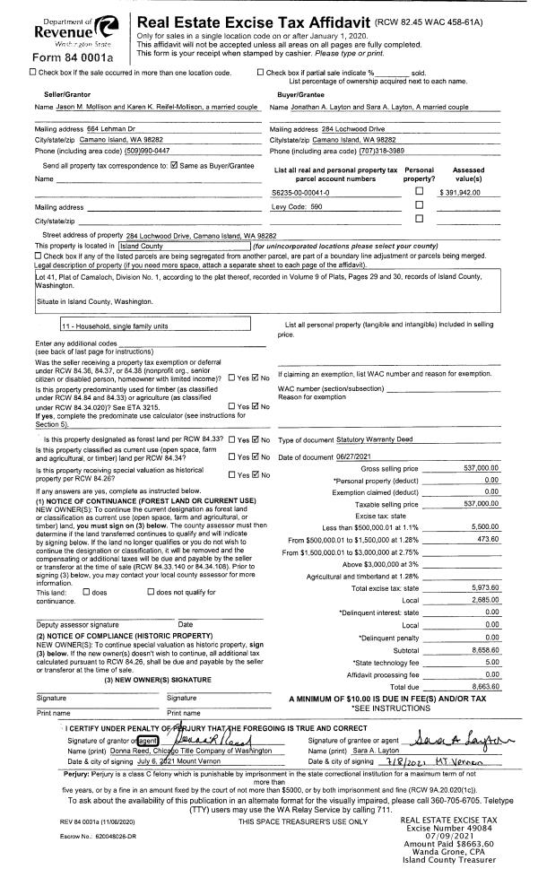
Property
Account |
| Property ID: | 126937 | Abbreviated Legal Description: | 63 - IN NE NW:BG NW CR NE NW S2*E317.92' TPB S2*E207' E1050.36' TO C/L 60' EZ AF #303244 N ALG C/L TP E1048. 19' FR TPB W1048.19' TPB |
| Geographic ID: | R32907-474-2300 | Agent Code: | |
| Type: | Real | | |
| Tax Area: | 712 - APPRAISER-S Whid Schl Dist, outside Langley, improved, greater than 1 acre | Land Use Code | 11 |
| Open Space: | N | DFL | N |
| Historic Property: | N | Remodel Property: | N |
| Multi-Family Redevelopment: | N | | |
| Township: | 29 | Section: | 07 |
| Range: | R3 |
Location |
| Address: | 5226 LOLA LN LANGLEY, WA 98260 | Mapsco: | |
| Neighborhood: | Cycle 4 | Map ID: | 744 |
| Neighborhood CD: | 4 |
Owner |
| Name: | BRUEMMER, CATHERINE M | Owner ID: | 92646 |
| Mailing Address: | ROBERT J HALLBAUER 5226 LOLA LN LANGLEY, WA 98260-8204 | % Ownership: | 100.0000000000% |
| | | Exemptions: | |
Taxes and Assessment Details
Values
| (+) Improvement Homesite Value: | + | $0 | |
| (+) Improvement Non-Homesite Value: | + | $303,665 | |
| (+) Land Homesite Value: | + | $0 | |
| (+) Land Non-Homesite Value: | + | $380,000 | |
| (+) Curr Use (HS): | + | $0 | $0 |
| (+) Curr Use (NHS): | + | $0 | $0 |
| | | -------------------------- | |
| (=) Market Value: | = | $683,665 | |
| (–) Productivity Loss: | – | $0 | |
| | | -------------------------- | |
| (=) Subtotal: | = | $683,665 | |
| (+) Senior Appraised Value: | + | $0 | |
| (+) Non-Senior Appraised Value: | + | $683,665 | |
| | | -------------------------- | |
| (=) Total Appraised Value: | = | $683,665 | |
| (–) Senior Exemption Loss: | – | $0 | |
| (–) Exemption Loss: | – | $0 | |
| | | -------------------------- | |
| (=) Taxable Value: | = | $683,665 | |
Taxing Jurisdiction
| Owner: | BRUEMMER, CATHERINE M | | |
| % Ownership: | 100.0000000000% | | |
| Total Value: | $683,665 | | |
| Tax Area: | 712 - APPRAISER-S Whid Schl Dist, outside Langley, improved, greater than 1 acre |
| CF | Conservation Futures | 0.0316035091 | $683,665 | $683,665 | $21.61 | | |
| FIRE3 | Fire & Rescue Dist #3 S Whidbey GEN | 1.2004855531 | $683,665 | $683,665 | $820.73 | | |
| HOBOND | Hospital BOND | 0.1910887512 | $683,665 | $683,665 | $130.64 | | |
| HOGEN | Hospital GEN | 0.3902502903 | $683,665 | $683,665 | $266.80 | | |
| CE | County Current Expense | 0.3708482477 | $683,665 | $683,665 | $253.54 | | |
| CR | County Roads | 0.4584763726 | $683,665 | $683,665 | $313.44 | | |
| ISLANDEMS | Hospital GEN (EMS) | 0.5000000000 | $683,665 | $683,665 | $341.83 | | |
| LIB | Library Sno-Isle GEN | 0.3153421757 | $683,665 | $683,665 | $215.59 | | |
| PORTWHID | Port of S Whidbey GEN | 0.1094540357 | $683,665 | $683,665 | $74.83 | | |
| SCH206BOND | School 206 BOND | 0.3161759235 | $683,665 | $683,665 | $216.16 | | |
| SCH206MO | School 206 Enrichment | 0.4547169547 | $683,665 | $683,665 | $310.87 | | |
| ST | State School | 1.3035497053 | $683,665 | $683,665 | $891.19 | | |
| ST2 | State School Part 2 | 0.8169543533 | $683,665 | $683,665 | $558.52 | | |
| SWHIDPRBD | P & R S Whidbey BOND | 0.0152817568 | $683,665 | $683,665 | $10.45 | | |
| SWHIDPRBD2 | P & R S Whidbey BOND2 | 0.0138911264 | $683,665 | $683,665 | $9.50 | | |
| SWHIDPRMT | P & R S Whidbey GEN | 0.2053334452 | $683,665 | $683,665 | $140.38 | | |
| | Total Tax Rate: | 6.6934522006 | | | | | |
| | | | | Taxes w/Current Exemptions: | $4,576.08 | | |
| | | | | Taxes w/o Exemptions: | $4,576.08 | | |
Improvement / Building
| Improvement #1: | RESIDENTIAL | State Code: | Y | 1572.0 sqft | Value: | $303,665 |
| Bathrooms: | 2.5 | Bedrooms: | 3 | | Ceiling: | DRYWALL PAINTED | Exterior Wall/Cover: | WOOD SIDING | | Floor Covering: | CARPET/VINYL 80-20 | Floor Structure: | WOOD W/SUBFLOOR | | Foundation: | CONCRETE | Heating: | FHA ELECTRIC | | Interior Finish: | DRYWALL PAINT | Plumbing Fixture Cnt: | 11 | | Roof Slope: | 8" IN 12" | Roof Structure/Cover: | STEEL TERNE |
|
| | Type | Description | Class CD | Sub Class CD | Year Built | Area |
| | BAS | BASE/MAIN FLOOR | 3 | 0 | 1999 | 1188.0 |
| | UPS | UPPER STORY | 3 | 0 | 1999 | 384.0 |
| | ENP | ENCLOSED PORCH | 3 | 0 | 1999 | 108.0 |
Sketch
Property Image
Land
| 1 | 32 | AC (03.01-09.99) | 5.1000 | 0.00 | 0.00 | 0.00 | 1.00 | $380,000 | $0 |
Roll Value History
| 2026 | N/A | N/A | N/A | N/A | N/A |
| 2025 | $303,665 | $380,000 | $0 | $683,665 | $683,665 |
| 2024 | $307,311 | $350,000 | $0 | $657,311 | $657,311 |
| 2023 | $310,960 | $330,000 | $0 | $640,960 | $640,960 |
| 2022 | $284,874 | $290,000 | $0 | $574,874 | $574,874 |
| 2021 | $250,595 | $230,000 | $0 | $480,595 | $480,595 |
| 2020 | $235,685 | $190,000 | $0 | $425,685 | $425,685 |
| 2019 | $171,426 | $250,000 | $0 | $421,426 | $421,426 |
| 2018 | $171,923 | $210,000 | $0 | $381,923 | $381,923 |
| 2017 | $172,916 | $190,000 | $0 | $362,916 | $362,916 |
| 2016 | $174,904 | $135,000 | $0 | $309,904 | $309,904 |
| 2015 | $176,892 | $135,000 | $0 | $311,892 | $311,892 |
| 2014 | $180,302 | $127,500 | $0 | $307,802 | $307,802 |
| 2013 | $182,309 | $137,700 | $0 | $320,009 | $320,009 |
| 2012 | $184,316 | $173,400 | $0 | $357,716 | $357,716 |
| 2011 | $186,323 | $173,400 | $0 | $359,723 | $359,723 |
| 2010 | $195,735 | $173,400 | $0 | $369,135 | $369,135 |
| 2009 | $201,792 | $224,400 | $0 | $426,192 | $426,192 |
| 2008 | $202,663 | $255,000 | $0 | $457,663 | $457,663 |
| 2007 | $206,985 | $196,350 | $0 | $403,335 | $403,335 |
Deed and Sales History
| 1 | 02/15/2001 | QCD | Quit Claim Deed | BRUEMMER, CATHERINE M | BRUEMMER, CATHERINE M | | | $0.00 | 10512 | 20025690 |
| 2 | 05/29/1998 | WD | Warranty Deed | BRUEMMER, CATHERINE M | BRUEMMER, CATHERINE M | | | $53,000.00 | 82054 | 98010766 |
| 3 | 01/01/1900 | OTHER | Other - Misc. Documents | Unknown | FISHER, KEVIN P | | | $0.00 | 0 | 0 |
| 4 | 01/01/1900 | OTHER | Other - Misc. Documents | FISHER, KEVIN P | BRUEMMER, CATHERINE M | | | $0.00 | 82054 | 98010766 |
Payout Agreement
| No payout information available.. |