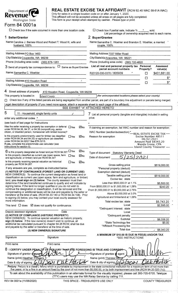
Property
Account |
| Property ID: | 127115 | Abbreviated Legal Description: | 17 - IN SW SW: BG NECR SW SW N87*W42.77' TPB S1*E419 .85' S8*W189.85' TO NLN GRIMM CO RD N87*W TP 110.49 FR ELN SW SW N8*E180' W TP S & 303.73'W ON NLN SW SW FR TPB N TP 303.73'W OF TPB ELY TPB |
| Geographic ID: | R32908-115-1080 | Agent Code: | |
| Type: | Real | | |
| Tax Area: | 719 - APPRAISER-S Whid Schl Dist, outside Langley, vacant & 50 acres or less | Land Use Code | 91 |
| Open Space: | N | DFL | N |
| Historic Property: | N | Remodel Property: | N |
| Multi-Family Redevelopment: | N | | |
| Township: | 29 | Section: | 08 |
| Range: | R3 |
Location |
| Address: | | Mapsco: | |
| Neighborhood: | Cycle 4 | Map ID: | 746 |
| Neighborhood CD: | 4 |
Owner |
| Name: | FAIRBANKS, VICTORIA | Owner ID: | 177050 |
| Mailing Address: | 2883 GRIMM RD LANGLEY, WA 98260-9707 | % Ownership: | 100.0000000000% |
| | | Exemptions: | |
Taxes and Assessment Details
Values
| (+) Improvement Homesite Value: | + | $0 | |
| (+) Improvement Non-Homesite Value: | + | $0 | |
| (+) Land Homesite Value: | + | $0 | |
| (+) Land Non-Homesite Value: | + | $280,000 | |
| (+) Curr Use (HS): | + | $0 | $0 |
| (+) Curr Use (NHS): | + | $0 | $0 |
| | | -------------------------- | |
| (=) Market Value: | = | $280,000 | |
| (–) Productivity Loss: | – | $0 | |
| | | -------------------------- | |
| (=) Subtotal: | = | $280,000 | |
| (+) Senior Appraised Value: | + | $0 | |
| (+) Non-Senior Appraised Value: | + | $280,000 | |
| | | -------------------------- | |
| (=) Total Appraised Value: | = | $280,000 | |
| (–) Senior Exemption Loss: | – | $0 | |
| (–) Exemption Loss: | – | $0 | |
| | | -------------------------- | |
| (=) Taxable Value: | = | $280,000 | |
Taxing Jurisdiction
| Owner: | FAIRBANKS, VICTORIA | | |
| % Ownership: | 100.0000000000% | | |
| Total Value: | $280,000 | | |
| Tax Area: | 719 - APPRAISER-S Whid Schl Dist, outside Langley, vacant & 50 acres or less |
| CF | Conservation Futures | 0.0316035091 | $280,000 | $280,000 | $8.85 | | |
| HOBOND | Hospital BOND | 0.1910887512 | $280,000 | $280,000 | $53.50 | | |
| HOGEN | Hospital GEN | 0.3902502903 | $280,000 | $280,000 | $109.27 | | |
| CE | County Current Expense | 0.3708482477 | $280,000 | $280,000 | $103.84 | | |
| CR | County Roads | 0.4584763726 | $280,000 | $280,000 | $128.37 | | |
| ISLANDEMS | Hospital GEN (EMS) | 0.5000000000 | $280,000 | $280,000 | $140.00 | | |
| LIB | Library Sno-Isle GEN | 0.3153421757 | $280,000 | $280,000 | $88.30 | | |
| PORTWHID | Port of S Whidbey GEN | 0.1094540357 | $280,000 | $280,000 | $30.65 | | |
| SCH206BOND | School 206 BOND | 0.3161759235 | $280,000 | $280,000 | $88.53 | | |
| SCH206MO | School 206 Enrichment | 0.4547169547 | $280,000 | $280,000 | $127.32 | | |
| ST | State School | 1.3035497053 | $280,000 | $280,000 | $364.99 | | |
| ST2 | State School Part 2 | 0.8169543533 | $280,000 | $280,000 | $228.75 | | |
| SWHIDPRBD | P & R S Whidbey BOND | 0.0152817568 | $280,000 | $280,000 | $4.28 | | |
| SWHIDPRBD2 | P & R S Whidbey BOND2 | 0.0138911264 | $280,000 | $280,000 | $3.89 | | |
| SWHIDPRMT | P & R S Whidbey GEN | 0.2053334452 | $280,000 | $280,000 | $57.49 | | |
| | Total Tax Rate: | 5.4929666475 | | | | | |
| | | | | Taxes w/Current Exemptions: | $1,538.03 | | |
| | | | | Taxes w/o Exemptions: | $1,538.03 | | |
Improvement / Building
Sketch
| No sketches available for this property. |
Property Image
Land
| 1 | 32 | AC (03.01-09.99) | 3.2100 | 0.00 | 0.00 | 0.00 | 1.00 | $280,000 | $0 |
Roll Value History
| 2026 | N/A | N/A | N/A | N/A | N/A |
| 2025 | $0 | $280,000 | $0 | $280,000 | $280,000 |
| 2024 | $0 | $280,000 | $0 | $280,000 | $280,000 |
| 2023 | $0 | $240,000 | $0 | $240,000 | $240,000 |
| 2022 | $0 | $230,000 | $0 | $230,000 | $230,000 |
| 2021 | $0 | $170,000 | $0 | $170,000 | $170,000 |
| 2020 | $0 | $170,000 | $0 | $170,000 | $170,000 |
| 2019 | $0 | $170,000 | $0 | $170,000 | $170,000 |
| 2018 | $0 | $130,000 | $0 | $130,000 | $130,000 |
| 2017 | $0 | $130,000 | $0 | $130,000 | $130,000 |
| 2016 | $0 | $120,000 | $0 | $120,000 | $120,000 |
| 2015 | $0 | $110,000 | $0 | $110,000 | $110,000 |
| 2014 | $0 | $112,350 | $0 | $112,350 | $112,350 |
| 2013 | $0 | $121,980 | $0 | $121,980 | $121,980 |
| 2012 | $0 | $121,980 | $0 | $121,980 | $121,980 |
| 2011 | $0 | $121,980 | $0 | $121,980 | $121,980 |
| 2010 | $0 | $121,980 | $0 | $121,980 | $121,980 |
| 2009 | $0 | $144,450 | $0 | $144,450 | $144,450 |
| 2008 | $0 | $109,140 | $0 | $109,140 | $109,140 |
| 2007 | $0 | $96,300 | $0 | $96,300 | $96,300 |
Deed and Sales History
| 1 | 06/12/1998 | WD | Warranty Deed | FAIRBANKS, VICTORIA | FAIRBANKS, VICTORIA | | | $109,000.00 | 82332 | 98012099 |
| 2 | 03/01/1992 | WD | Warranty Deed | FAIRBANKS, VICTORIA | KRULL, WALTER W | | | $39,200.00 | 21016 | 92005063 |
| 3 | 08/01/1982 | PACD | Purchaser's Assignment | FAIRBANKS, VICTORIA | KRULL, WALTER W | | | $0.00 | 59619 | 222917 |
| 4 | 01/01/1900 | OTHER | Other - Misc. Documents | Unknown | FAIRBANKS, VICTORIA | | | $0.00 | 82332 | 98012099 |
Payout Agreement
| No payout information available.. |