Property
Account |
| Property ID: | 127240 | Abbreviated Legal Description: | 37 - N/2 N/2 SE NE |
| Geographic ID: | R32908-360-4530 | Agent Code: | |
| Type: | Real | | |
| Tax Area: | 712 - APPRAISER-S Whid Schl Dist, outside Langley, improved, greater than 1 acre | Land Use Code | 88 |
| Open Space: | N | DFL | Y |
| Historic Property: | N | Remodel Property: | N |
| Multi-Family Redevelopment: | N | | |
| Township: | 29 | Section: | 08 |
| Range: | R3 |
Location |
| Address: | 5310 CRAWFORD RD LANGLEY, WA 98260 | Mapsco: | |
| Neighborhood: | Cycle 4 | Map ID: | 749 |
| Neighborhood CD: | 4 |
Owner |
| Name: | REISMAN, AUSTON | Owner ID: | 284350 |
| Mailing Address: | CARLY MCARDLE 5310 CRAWFORD RD LANGLEY, WA 98260 | % Ownership: | 100.0000000000% |
| | | Exemptions: | |
Taxes and Assessment Details
Values
| (+) Improvement Homesite Value: | + | $0 | |
| (+) Improvement Non-Homesite Value: | + | $418,977 | |
| (+) Land Homesite Value: | + | $0 | |
| (+) Land Non-Homesite Value: | + | $260,000 | |
| (+) Curr Use (HS): | + | $0 | $0 |
| (+) Curr Use (NHS): | + | $124,181 | $1,435 |
| | | -------------------------- | |
| (=) Market Value: | = | $803,158 | |
| (–) Productivity Loss: | – | $122,746 | |
| | | -------------------------- | |
| (=) Subtotal: | = | $680,412 | |
| (+) Senior Appraised Value: | + | $0 | |
| (+) Non-Senior Appraised Value: | + | $680,412 | |
| | | -------------------------- | |
| (=) Total Appraised Value: | = | $680,412 | |
| (–) Senior Exemption Loss: | – | $0 | |
| (–) Exemption Loss: | – | $0 | |
| | | -------------------------- | |
| (=) Taxable Value: | = | $680,412 | |
Taxing Jurisdiction
| Owner: | REISMAN, AUSTON | | |
| % Ownership: | 100.0000000000% | | |
| Total Value: | $803,158 | | |
| Tax Area: | 712 - APPRAISER-S Whid Schl Dist, outside Langley, improved, greater than 1 acre |
| CF | Conservation Futures | 0.0316035091 | $680,412 | $680,412 | $21.50 | | |
| FIRE3 | Fire & Rescue Dist #3 S Whidbey GEN | 1.2004855531 | $680,412 | $680,412 | $816.82 | | |
| HOBOND | Hospital BOND | 0.1910887512 | $680,412 | $680,412 | $130.02 | | |
| HOGEN | Hospital GEN | 0.3902502903 | $680,412 | $680,412 | $265.53 | | |
| CE | County Current Expense | 0.3708482477 | $680,412 | $680,412 | $252.33 | | |
| CR | County Roads | 0.4584763726 | $680,412 | $680,412 | $311.95 | | |
| ISLANDEMS | Hospital GEN (EMS) | 0.5000000000 | $680,412 | $680,412 | $340.21 | | |
| LIB | Library Sno-Isle GEN | 0.3153421757 | $680,412 | $680,412 | $214.56 | | |
| PORTWHID | Port of S Whidbey GEN | 0.1094540357 | $680,412 | $680,412 | $74.47 | | |
| SCH206BOND | School 206 BOND | 0.3161759235 | $680,412 | $680,412 | $215.13 | | |
| SCH206MO | School 206 Enrichment | 0.4547169547 | $680,412 | $680,412 | $309.39 | | |
| ST | State School | 1.3035497053 | $680,412 | $680,412 | $886.95 | | |
| ST2 | State School Part 2 | 0.8169543533 | $680,412 | $680,412 | $555.87 | | |
| SWHIDPRBD | P & R S Whidbey BOND | 0.0152817568 | $680,412 | $680,412 | $10.40 | | |
| SWHIDPRBD2 | P & R S Whidbey BOND2 | 0.0138911264 | $680,412 | $680,412 | $9.45 | | |
| SWHIDPRMT | P & R S Whidbey GEN | 0.2053334452 | $680,412 | $680,412 | $139.71 | | |
| | Total Tax Rate: | 6.6934522006 | | | | | |
| | | | | Taxes w/Current Exemptions: | $4,554.29 | | |
| | | | | Taxes w/o Exemptions: | $4,554.29 | | |
Improvement / Building
| Improvement #1: | RESIDENTIAL | State Code: | Y | 912.0 sqft | Value: | $418,977 |
| Bathrooms: | 2 | Bedrooms: | 1 | | Ceiling: | DRYWALL PAINTED | Exterior Wall/Cover: | CEMENT FIBER | | Floor Covering: | SOFTWOOD 100% | Floor Structure: | SLAB ON GRADE | | Foundation: | CONCRETE | Heating: | WALL HEAT ELECTRIC | | Interior Finish: | DRYWALL PAINT | Plumbing Fixture Cnt: | 9 | | Roof Slope: | 3" IN 12" | Roof Structure/Cover: | BEAM ALUMINUM HEAVY |
|
| | Type | Description | Class CD | Sub Class CD | Year Built | Area |
| | BAS | BASE/MAIN FLOOR | 3 | 0 | 2016 | 912.0 |
| | AGR | ATTACHED GARAGE | 3 | 0 | 2016 | 1912.0 |
| | UTY | STORAGE/UTILITY | 3 | 0 | 2016 | 912.0 |
| | OWC | OPEN WOOD PORCH W/STEPS/ROOF/C | 3 | 0 | 2016 | 322.0 |
| | UTY | STORAGE/UTILITY | 3 | 0 | 2016 | 458.0 |
| | UTY | STORAGE/UTILITY | 3 | 0 | 2016 | 160.0 |
| | BIG | BUILT IN GARAGE | 3 | 0 | 2016 | 320.0 |
| | CPD | OPEN CARPORT DIRT FLOOR | 3 | 0 | 2016 | 484.0 |
Sketch
Property Image
Land
| 1 | HS | HOMESITE | 1.0000 | 43560.00 | 0.00 | 0.00 | 1.00 | $260,000 | $0 |
| 2 | 88 | DESIGNATED FOREST | 6.0320 | 262753.92 | 0.00 | 0.00 | 1.00 | $95,422 | $1,164 |
| 3 | 88 | DESIGNATED FOREST | 1.8180 | 79192.08 | 0.00 | 0.00 | 1.00 | $28,759 | $271 |
Roll Value History
| 2026 | N/A | N/A | N/A | N/A | N/A |
| 2025 | $418,977 | $384,181 | $1,435 | $680,412 | $680,412 |
| 2024 | $422,208 | $350,000 | $1,443 | $673,651 | $673,651 |
| 2023 | $425,668 | $360,000 | $0 | $785,668 | $785,668 |
| 2022 | $388,582 | $350,000 | $0 | $738,582 | $738,582 |
| 2021 | $340,625 | $250,000 | $0 | $590,625 | $590,625 |
| 2020 | $304,600 | $250,000 | $0 | $554,600 | $554,600 |
| 2019 | $220,838 | $300,000 | $0 | $520,838 | $520,838 |
| 2018 | $221,357 | $245,000 | $0 | $466,357 | $466,357 |
| 2017 | $222,396 | $140,000 | $0 | $362,396 | $362,396 |
| 2016 | $47,591 | $140,000 | $0 | $187,591 | $187,591 |
| 2015 | $18,840 | $130,000 | $0 | $148,840 | $148,840 |
| 2014 | $0 | $110,000 | $0 | $110,000 | $110,000 |
| 2013 | $0 | $110,000 | $0 | $110,000 | $110,000 |
| 2012 | $0 | $160,000 | $0 | $160,000 | $160,000 |
| 2011 | $0 | $160,000 | $0 | $160,000 | $160,000 |
| 2010 | $0 | $160,000 | $0 | $160,000 | $160,000 |
| 2009 | $0 | $186,000 | $0 | $186,000 | $186,000 |
| 2008 | $0 | $186,000 | $0 | $186,000 | $186,000 |
| 2007 | $0 | $129,700 | $0 | $129,700 | $129,700 |
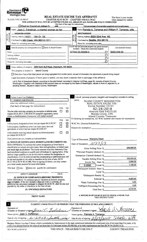
Deed and Sales History
| 1 | 03/12/2018 | QCD | Quit Claim Deed | REISMAN, AUSTON | REISMAN, AUSTON | | | $3,624.00 | 33406 | 4441402 |
| 2 | 02/28/2017 | QCD | Quit Claim Deed | REISMAN, AUSTON | REISMAN, AUSTON | | | $0.00 | 28418 | 4418769 |
| 3 | 03/19/2012 | WD | Warranty Deed | BURK, JOHN | REISMAN, AUSTON | | | $110,000.00 | 7199 | 4312310 |
| 4 | 06/16/2004 | WD | Warranty Deed | OHRT, BYRON | BURK, JOHN | | | $84,000.00 | 42611 | 4103895 |
| 5 | 03/07/2001 | QCD | Quit Claim Deed | OHRT, BYRON | OHRT, BYRON | | | $0.00 | 10861 | 20027728 |
| 6 | 08/01/1986 | DECREE | Divorce Decree/Legal Separation | OHRT, BYRON | OHRT, BYRON | | | $0.00 | 62014 | 86009464 |
| 7 | 02/01/1981 | CD | DNU - Correction Deed | BIRRELL, HARRY | OHRT, BYRON | | | $0.00 | 20292 | 392875 |
| 8 | 09/01/1979 | TRUSTEED | Trustee's Deed | OHRT, BYRON L | BIRRELL, HARRY | | | $6,950.00 | 1235 | 367592 |
Payout Agreement
| No payout information available.. |