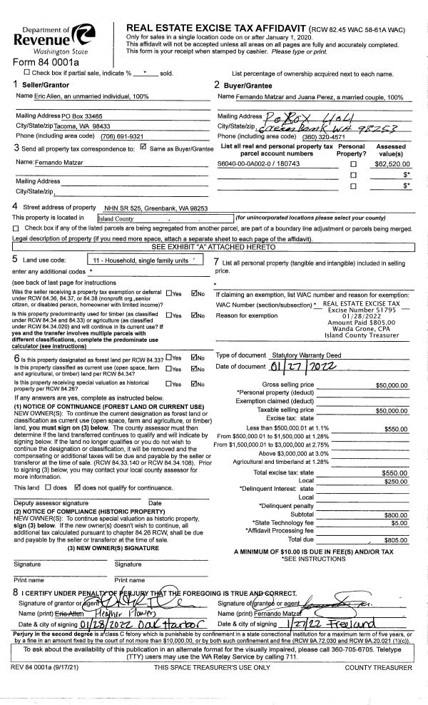
Property
Account |
| Property ID: | 127721 | Abbreviated Legal Description: | 27 - SE SW E OF RD |
| Geographic ID: | R32910-117-2300 | Agent Code: | |
| Type: | Real | | |
| Tax Area: | 712 - APPRAISER-S Whid Schl Dist, outside Langley, improved, greater than 1 acre | Land Use Code | 11 |
| Open Space: | N | DFL | N |
| Historic Property: | N | Remodel Property: | N |
| Multi-Family Redevelopment: | N | | |
| Township: | 29 | Section: | 10 |
| Range: | R3 |
Location |
| Address: | 5555 MAXWELTON RD LANGLEY, WA 98260 | Mapsco: | |
| Neighborhood: | Cycle 4 | Map ID: | 754 |
| Neighborhood CD: | 4 |
Owner |
| Name: | DAKIN-DODGE, TERESA | Owner ID: | 301052 |
| Mailing Address: | 3245 NW 57TH ST SEATTLE, WA 98107 | % Ownership: | 100.0000000000% |
| | | Exemptions: | |
Taxes and Assessment Details
Values
| (+) Improvement Homesite Value: | + | $0 | |
| (+) Improvement Non-Homesite Value: | + | $400,618 | |
| (+) Land Homesite Value: | + | $0 | |
| (+) Land Non-Homesite Value: | + | $400,000 | |
| (+) Curr Use (HS): | + | $0 | $0 |
| (+) Curr Use (NHS): | + | $0 | $0 |
| | | -------------------------- | |
| (=) Market Value: | = | $800,618 | |
| (–) Productivity Loss: | – | $0 | |
| | | -------------------------- | |
| (=) Subtotal: | = | $800,618 | |
| (+) Senior Appraised Value: | + | $0 | |
| (+) Non-Senior Appraised Value: | + | $800,618 | |
| | | -------------------------- | |
| (=) Total Appraised Value: | = | $800,618 | |
| (–) Senior Exemption Loss: | – | $0 | |
| (–) Exemption Loss: | – | $0 | |
| | | -------------------------- | |
| (=) Taxable Value: | = | $800,618 | |
Taxing Jurisdiction
| Owner: | DAKIN-DODGE, TERESA | | |
| % Ownership: | 100.0000000000% | | |
| Total Value: | $800,618 | | |
| Tax Area: | 712 - APPRAISER-S Whid Schl Dist, outside Langley, improved, greater than 1 acre |
| CF | Conservation Futures | 0.0316035091 | $800,618 | $800,618 | $25.30 | | |
| FIRE3 | Fire & Rescue Dist #3 S Whidbey GEN | 1.2004855531 | $800,618 | $800,618 | $961.13 | | |
| HOBOND | Hospital BOND | 0.1910887512 | $800,618 | $800,618 | $152.99 | | |
| HOGEN | Hospital GEN | 0.3902502903 | $800,618 | $800,618 | $312.44 | | |
| CE | County Current Expense | 0.3708482477 | $800,618 | $800,618 | $296.91 | | |
| CR | County Roads | 0.4584763726 | $800,618 | $800,618 | $367.06 | | |
| ISLANDEMS | Hospital GEN (EMS) | 0.5000000000 | $800,618 | $800,618 | $400.31 | | |
| LIB | Library Sno-Isle GEN | 0.3153421757 | $800,618 | $800,618 | $252.47 | | |
| PORTWHID | Port of S Whidbey GEN | 0.1094540357 | $800,618 | $800,618 | $87.63 | | |
| SCH206BOND | School 206 BOND | 0.3161759235 | $800,618 | $800,618 | $253.14 | | |
| SCH206MO | School 206 Enrichment | 0.4547169547 | $800,618 | $800,618 | $364.05 | | |
| ST | State School | 1.3035497053 | $800,618 | $800,618 | $1,043.65 | | |
| ST2 | State School Part 2 | 0.8169543533 | $800,618 | $800,618 | $654.07 | | |
| SWHIDPRBD | P & R S Whidbey BOND | 0.0152817568 | $800,618 | $800,618 | $12.23 | | |
| SWHIDPRBD2 | P & R S Whidbey BOND2 | 0.0138911264 | $800,618 | $800,618 | $11.12 | | |
| SWHIDPRMT | P & R S Whidbey GEN | 0.2053334452 | $800,618 | $800,618 | $164.39 | | |
| | Total Tax Rate: | 6.6934522006 | | | | | |
| | | | | Taxes w/Current Exemptions: | $5,358.89 | | |
| | | | | Taxes w/o Exemptions: | $5,358.89 | | |
Improvement / Building
| Improvement #1: | RESIDENTIAL | State Code: | Y | 2542.0 sqft | Value: | $400,618 |
| Bathrooms: | 3 | Bedrooms: | 3 | | Ceiling: | DRYWALL PAINTED | Exterior Wall/Cover: | WOOD SIDING | | Floor Covering: | HARDWOOD/CARP 20-80 | Floor Structure: | WOOD W/SUBFLOOR | | Foundation: | CONCRETE | Heating: | FHA GAS | | Interior Finish: | DRYWALL PAINT | Plumbing Fixture Cnt: | 12 | | Roof Slope: | 12" IN 12" | Roof Structure/Cover: | CJ ASPHALT |
|
| | Type | Description | Class CD | Sub Class CD | Year Built | Area |
| | BAS | BASE/MAIN FLOOR | 3 | 0 | 1989 | 1968.0 |
| | AGR | ATTACHED GARAGE | 3 | 0 | 1989 | 704.0 |
| | UPS | UPPER STORY | 3 | 0 | 1989 | 574.0 |
| | OWP | OPEN WOOD PORCH W/STEPS | 3 | 0 | 1989 | 234.0 |
| | OWP | OPEN WOOD PORCH W/STEPS | 3 | 0 | 1989 | 27.0 |
| | OWR | OPEN WOOD PORCH W/STEPS/ROOF | 3 | 0 | 1989 | 90.0 |
| | OWC | OPEN WOOD PORCH W/STEPS/ROOF/C | 3 | 0 | 1989 | 178.0 |
| | OWC | OPEN WOOD PORCH W/STEPS/ROOF/C | 3 | 0 | 1989 | 81.0 |
| | DGR | DETACHED GARAGE | 3 | 0 | 1989 | 800.0 |
Sketch
Property Image
Land
| 1 | 35 | AC (10.00-30.99) | 0.0000 | 0.00 | 0.00 | 0.00 | 1.00 | $400,000 | $0 |
Roll Value History
| 2026 | N/A | N/A | N/A | N/A | N/A |
| 2025 | $400,618 | $400,000 | $0 | $800,618 | $800,618 |
| 2024 | $405,782 | $360,000 | $0 | $765,782 | $765,782 |
| 2023 | $410,947 | $360,000 | $0 | $770,947 | $770,947 |
| 2022 | $377,917 | $350,000 | $0 | $727,917 | $727,917 |
| 2021 | $334,251 | $250,000 | $0 | $584,251 | $584,251 |
| 2020 | $311,085 | $250,000 | $0 | $561,085 | $561,085 |
| 2019 | $245,309 | $300,000 | $0 | $545,309 | $545,309 |
| 2018 | $246,064 | $245,000 | $0 | $491,064 | $491,064 |
| 2017 | $247,574 | $200,000 | $0 | $447,574 | $447,574 |
| 2016 | $250,594 | $200,000 | $0 | $450,594 | $450,594 |
| 2015 | $253,614 | $235,000 | $0 | $488,614 | $488,614 |
| 2014 | $249,523 | $241,950 | $0 | $491,473 | $491,473 |
| 2013 | $252,777 | $241,950 | $0 | $494,727 | $494,727 |
| 2012 | $256,028 | $241,950 | $0 | $497,978 | $497,978 |
| 2011 | $259,279 | $241,950 | $0 | $501,229 | $501,229 |
| 2010 | $269,131 | $241,950 | $0 | $511,081 | $511,081 |
| 2009 | $280,684 | $354,860 | $0 | $635,544 | $635,544 |
| 2008 | $279,766 | $306,470 | $0 | $586,236 | $586,236 |
| 2007 | $283,645 | $306,470 | $0 | $590,115 | $590,115 |
Deed and Sales History
| 1 | 08/30/2021 | QCD | Quit Claim Deed | DAKIN, LYNN G | DAKIN-DODGE, TERESA | | | $0.00 | 49941 | 4528606 |
| 2 | 03/01/1983 | OTHER | Other - Misc. Documents | Unknown | DAKIN, LYNN G | | | $0.00 | 59887 | 0 |
| 3 | 01/01/1900 | OTHER | Other - Misc. Documents | DAKIN, LYNN G | DAKIN, LYNN G | | | $0.00 | 0 | 0 |
Payout Agreement
| No payout information available.. |