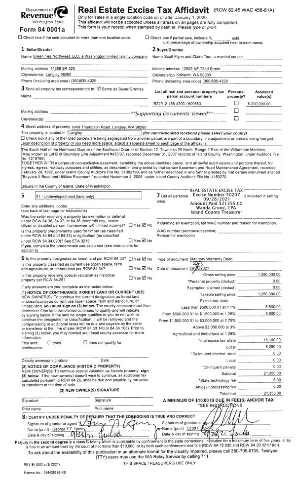
Property
Account |
| Property ID: | 128061 | Abbreviated Legal Description: | N/2 SW NW NW SUB EZ AF#95846 ADD EZ AF#84000813 |
| Geographic ID: | R32910-487-0630 | Agent Code: | |
| Type: | Real | | |
| Tax Area: | 712 - APPRAISER-S Whid Schl Dist, outside Langley, improved, greater than 1 acre | Land Use Code | 11 |
| Open Space: | N | DFL | N |
| Historic Property: | N | Remodel Property: | N |
| Multi-Family Redevelopment: | N | | |
| Township: | 29 | Section: | 10 |
| Range: | R3 |
Location |
| Address: | 3636 RIVENDELL RD LANGLEY, WA 98260 | Mapsco: | |
| Neighborhood: | Cycle 4 | Map ID: | 756 |
| Neighborhood CD: | 4 |
Owner |
| Name: | VAN ETTEN, SUSAN RENEE | Owner ID: | 301283 |
| Mailing Address: | PO BOX 1588 LANGLEY, WA 98260 | % Ownership: | 100.0000000000% |
| | | Exemptions: | |
Taxes and Assessment Details
Values
| (+) Improvement Homesite Value: | + | $0 | |
| (+) Improvement Non-Homesite Value: | + | $385,230 | |
| (+) Land Homesite Value: | + | $0 | |
| (+) Land Non-Homesite Value: | + | $370,000 | |
| (+) Curr Use (HS): | + | $0 | $0 |
| (+) Curr Use (NHS): | + | $0 | $0 |
| | | -------------------------- | |
| (=) Market Value: | = | $755,230 | |
| (–) Productivity Loss: | – | $0 | |
| | | -------------------------- | |
| (=) Subtotal: | = | $755,230 | |
| (+) Senior Appraised Value: | + | $0 | |
| (+) Non-Senior Appraised Value: | + | $755,230 | |
| | | -------------------------- | |
| (=) Total Appraised Value: | = | $755,230 | |
| (–) Senior Exemption Loss: | – | $0 | |
| (–) Exemption Loss: | – | $0 | |
| | | -------------------------- | |
| (=) Taxable Value: | = | $755,230 | |
Taxing Jurisdiction
| Owner: | VAN ETTEN, SUSAN RENEE | | |
| % Ownership: | 100.0000000000% | | |
| Total Value: | $755,230 | | |
| Tax Area: | 712 - APPRAISER-S Whid Schl Dist, outside Langley, improved, greater than 1 acre |
| CF | Conservation Futures | 0.0316035091 | $755,230 | $755,230 | $23.87 | | |
| FIRE3 | Fire & Rescue Dist #3 S Whidbey GEN | 1.2004855531 | $755,230 | $755,230 | $906.64 | | |
| HOBOND | Hospital BOND | 0.1910887512 | $755,230 | $755,230 | $144.32 | | |
| HOGEN | Hospital GEN | 0.3902502903 | $755,230 | $755,230 | $294.73 | | |
| CE | County Current Expense | 0.3708482477 | $755,230 | $755,230 | $280.08 | | |
| CR | County Roads | 0.4584763726 | $755,230 | $755,230 | $346.26 | | |
| ISLANDEMS | Hospital GEN (EMS) | 0.5000000000 | $755,230 | $755,230 | $377.62 | | |
| LIB | Library Sno-Isle GEN | 0.3153421757 | $755,230 | $755,230 | $238.16 | | |
| PORTWHID | Port of S Whidbey GEN | 0.1094540357 | $755,230 | $755,230 | $82.66 | | |
| SCH206BOND | School 206 BOND | 0.3161759235 | $755,230 | $755,230 | $238.79 | | |
| SCH206MO | School 206 Enrichment | 0.4547169547 | $755,230 | $755,230 | $343.42 | | |
| ST | State School | 1.3035497053 | $755,230 | $755,230 | $984.48 | | |
| ST2 | State School Part 2 | 0.8169543533 | $755,230 | $755,230 | $616.99 | | |
| SWHIDPRBD | P & R S Whidbey BOND | 0.0152817568 | $755,230 | $755,230 | $11.54 | | |
| SWHIDPRBD2 | P & R S Whidbey BOND2 | 0.0138911264 | $755,230 | $755,230 | $10.49 | | |
| SWHIDPRMT | P & R S Whidbey GEN | 0.2053334452 | $755,230 | $755,230 | $155.07 | | |
| | Total Tax Rate: | 6.6934522006 | | | | | |
| | | | | Taxes w/Current Exemptions: | $5,055.12 | | |
| | | | | Taxes w/o Exemptions: | $5,055.12 | | |
Improvement / Building
| Improvement #1: | RESIDENTIAL | State Code: | Y | 1974.0 sqft | Value: | $385,230 |
| Bathrooms: | 3 | Bedrooms: | 3 | | Ceiling: | BEAM PAINTED | Cooling: | HEAT PUMP/CONV/V | | Exterior Wall/Cover: | WOOD SIDING | Floor Covering: | HARDWOOD 100% | | Floor Structure: | WOOD W/SUBFLOOR | Foundation: | CONCRETE | | Interior Finish: | DRYWALL PAINT | Plumbing Fixture Cnt: | 15 | | Roof Slope: | 8" IN 12" | Roof Structure/Cover: | STEEL TERNE |
|
| | Type | Description | Class CD | Sub Class CD | Year Built | Area |
| | BAS | BASE/MAIN FLOOR | 3 | 0 | 1978 | 1128.0 |
| | BIG | BUILT IN GARAGE | 3 | 0 | 1978 | 624.0 |
| | UPS | UPPER STORY | 3 | 0 | 1978 | 378.0 |
| | OWP | OPEN WOOD PORCH W/STEPS | 3 | 0 | 1978 | 410.1 |
| | OWP | OPEN WOOD PORCH W/STEPS | 3 | 0 | 1978 | 231.0 |
| | OWR | OPEN WOOD PORCH W/STEPS/ROOF | 3 | 0 | 1978 | 16.0 |
| | UPH | HALF STORY | 3 | 0 | 1978 | 468.0 |
| | OWR | OPEN WOOD PORCH W/STEPS/ROOF | 3 | 0 | 1978 | 105.0 |
Sketch
Property Image
Land
| 1 | 32 | AC (03.01-09.99) | 5.0000 | 0.00 | 0.00 | 0.00 | 1.00 | $370,000 | $0 |
Roll Value History
| 2026 | N/A | N/A | N/A | N/A | N/A |
| 2025 | $385,230 | $370,000 | $0 | $755,230 | $755,230 |
| 2024 | $384,548 | $350,000 | $0 | $734,548 | $734,548 |
| 2023 | $389,463 | $330,000 | $0 | $719,463 | $719,463 |
| 2022 | $357,119 | $280,000 | $0 | $637,119 | $637,119 |
| 2021 | $314,399 | $230,000 | $0 | $544,399 | $544,399 |
| 2020 | $262,440 | $190,000 | $0 | $452,440 | $452,440 |
| 2019 | $200,030 | $250,000 | $0 | $450,030 | $450,030 |
| 2018 | $200,695 | $210,000 | $0 | $410,695 | $410,695 |
| 2017 | $202,025 | $190,000 | $0 | $392,025 | $392,025 |
| 2016 | $204,682 | $165,000 | $0 | $369,682 | $369,682 |
| 2015 | $207,341 | $135,000 | $0 | $342,341 | $342,341 |
| 2014 | $216,815 | $160,000 | $0 | $376,815 | $376,815 |
| 2013 | $220,119 | $160,000 | $0 | $380,119 | $380,119 |
| 2012 | $223,423 | $160,000 | $0 | $383,423 | $383,423 |
| 2011 | $226,726 | $160,000 | $0 | $386,726 | $386,726 |
| 2010 | $243,114 | $160,000 | $0 | $403,114 | $403,114 |
| 2009 | $253,899 | $220,000 | $0 | $473,899 | $473,899 |
| 2008 | $251,368 | $215,000 | $0 | $466,368 | $466,368 |
| 2007 | $254,807 | $215,000 | $0 | $469,807 | $469,807 |
Deed and Sales History
| 1 | 10/15/2021 | CPADC | Comm Prop Agmnt & Death Cert | PEDERSEN, DANIEL M | VAN ETTEN, SUSAN RENEE | | | | 89248 | |
| 2 | 05/30/2003 | QCD | Quit Claim Deed | PEDERSEN, DANIEL M | PEDERSEN, DANIEL M | | | $0.00 | 32456 | 4062473 |
| 3 | 12/01/1991 | DECREE | Divorce Decree/Legal Separation | PEDERSEN, DANIEL M | PEDERSEN, DANIEL M | | | $0.00 | 14381 | 91019164 |
| 4 | 06/01/1984 | WD | Warranty Deed | SMITH, DENNIS | PEDERSEN, DANIEL M | | | $115,000.00 | 41716 | 425905 |
| 5 | 08/01/1978 | OTHER | Other - Misc. Documents | Unknown | SMITH, DENNIS | | | $0.00 | 84052 | 338500 |
Payout Agreement
| No payout information available.. |