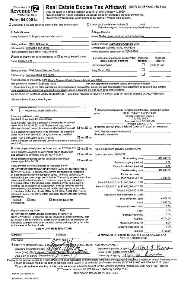
Property
Account |
| Property ID: | 128123 | Abbreviated Legal Description: | 28 - N660' OF NE NW LY E OF CO RD |
| Geographic ID: | R32910-513-2850 | Agent Code: | |
| Type: | Real | | |
| Tax Area: | 715 - S Whid Schl Dist, outside Langley, vacant, combined for Forest Protection | Land Use Code | 91 |
| Open Space: | N | DFL | N |
| Historic Property: | N | Remodel Property: | N |
| Multi-Family Redevelopment: | N | | |
| Township: | 29 | Section: | 10 |
| Range: | R3 |
Location |
| Address: | | Mapsco: | |
| Neighborhood: | Cycle 4 | Map ID: | 756 |
| Neighborhood CD: | 4 |
Owner |
| Name: | WATERMAN JOINT PROPERTIES LLC | Owner ID: | 264123 |
| Mailing Address: | BOX 325 LANGLEY, WA 98260 | % Ownership: | 100.0000000000% |
| | | Exemptions: | |
Taxes and Assessment Details
Values
| (+) Improvement Homesite Value: | + | $0 | |
| (+) Improvement Non-Homesite Value: | + | $0 | |
| (+) Land Homesite Value: | + | $0 | |
| (+) Land Non-Homesite Value: | + | $240,000 | |
| (+) Curr Use (HS): | + | $0 | $0 |
| (+) Curr Use (NHS): | + | $0 | $0 |
| | | -------------------------- | |
| (=) Market Value: | = | $240,000 | |
| (–) Productivity Loss: | – | $0 | |
| | | -------------------------- | |
| (=) Subtotal: | = | $240,000 | |
| (+) Senior Appraised Value: | + | $0 | |
| (+) Non-Senior Appraised Value: | + | $240,000 | |
| | | -------------------------- | |
| (=) Total Appraised Value: | = | $240,000 | |
| (–) Senior Exemption Loss: | – | $0 | |
| (–) Exemption Loss: | – | $0 | |
| | | -------------------------- | |
| (=) Taxable Value: | = | $240,000 | |
Taxing Jurisdiction
| Owner: | WATERMAN JOINT PROPERTIES LLC | | |
| % Ownership: | 100.0000000000% | | |
| Total Value: | $240,000 | | |
| Tax Area: | 715 - S Whid Schl Dist, outside Langley, vacant, combined for Forest Protection |
| CF | Conservation Futures | 0.0316035091 | $240,000 | $240,000 | $7.58 | | |
| HOBOND | Hospital BOND | 0.1910887512 | $240,000 | $240,000 | $45.86 | | |
| HOGEN | Hospital GEN | 0.3902502903 | $240,000 | $240,000 | $93.66 | | |
| CE | County Current Expense | 0.3708482477 | $240,000 | $240,000 | $89.00 | | |
| CR | County Roads | 0.4584763726 | $240,000 | $240,000 | $110.03 | | |
| ISLANDEMS | Hospital GEN (EMS) | 0.5000000000 | $240,000 | $240,000 | $120.00 | | |
| LIB | Library Sno-Isle GEN | 0.3153421757 | $240,000 | $240,000 | $75.68 | | |
| PORTWHID | Port of S Whidbey GEN | 0.1094540357 | $240,000 | $240,000 | $26.27 | | |
| SCH206BOND | School 206 BOND | 0.3161759235 | $240,000 | $240,000 | $75.88 | | |
| SCH206MO | School 206 Enrichment | 0.4547169547 | $240,000 | $240,000 | $109.13 | | |
| ST | State School | 1.3035497053 | $240,000 | $240,000 | $312.85 | | |
| ST2 | State School Part 2 | 0.8169543533 | $240,000 | $240,000 | $196.07 | | |
| SWHIDPRBD | P & R S Whidbey BOND | 0.0152817568 | $240,000 | $240,000 | $3.67 | | |
| SWHIDPRBD2 | P & R S Whidbey BOND2 | 0.0138911264 | $240,000 | $240,000 | $3.33 | | |
| SWHIDPRMT | P & R S Whidbey GEN | 0.2053334452 | $240,000 | $240,000 | $49.28 | | |
| | Total Tax Rate: | 5.4929666475 | | | | | |
| | | | | Taxes w/Current Exemptions: | $1,318.29 | | |
| | | | | Taxes w/o Exemptions: | $1,318.29 | | |
Improvement / Building
Sketch
| No sketches available for this property. |
Property Image
Land
| 1 | 32 | AC (03.01-09.99) | 6.3800 | 0.00 | 0.00 | 0.00 | 1.00 | $240,000 | $0 |
Roll Value History
| 2026 | N/A | N/A | N/A | N/A | N/A |
| 2025 | $0 | $240,000 | $0 | $240,000 | $240,000 |
| 2024 | $0 | $230,000 | $0 | $230,000 | $230,000 |
| 2023 | $0 | $180,000 | $0 | $180,000 | $180,000 |
| 2022 | $0 | $170,000 | $0 | $170,000 | $170,000 |
| 2021 | $0 | $150,000 | $0 | $150,000 | $150,000 |
| 2020 | $0 | $150,000 | $0 | $150,000 | $150,000 |
| 2019 | $0 | $135,000 | $0 | $135,000 | $135,000 |
| 2018 | $0 | $130,000 | $0 | $130,000 | $130,000 |
| 2017 | $0 | $130,000 | $0 | $130,000 | $130,000 |
| 2016 | $0 | $130,000 | $0 | $130,000 | $130,000 |
| 2015 | $0 | $130,000 | $0 | $130,000 | $130,000 |
| 2014 | $0 | $152,260 | $0 | $152,260 | $152,260 |
| 2013 | $0 | $152,260 | $0 | $152,260 | $152,260 |
| 2012 | $0 | $152,260 | $0 | $152,260 | $152,260 |
| 2011 | $0 | $152,260 | $0 | $152,260 | $152,260 |
| 2010 | $0 | $152,260 | $0 | $152,260 | $152,260 |
| 2009 | $0 | $196,920 | $0 | $196,920 | $196,920 |
| 2008 | $0 | $196,920 | $0 | $196,920 | $196,920 |
| 2007 | $0 | $171,400 | $0 | $171,400 | $171,400 |
Deed and Sales History
| 1 | 10/09/2013 | QCD | Quit Claim Deed | WATERMAN UNDIV 1/4 INT, DANIEL L | WATERMAN JOINT PROPERTIES LLC | | | $0.00 | 13295 | 4350738 |
| 2 | 05/23/2012 | TRUSTEED | Trustee's Deed | WATERMAN, DEBRA J | WATERMAN UNDIV 1/4 INT, DANIEL L | | | | 7577 | 4314822 |
| 3 | 10/01/1994 | WD | Warranty Deed | BROWN, DOUGLAS R | WATERMAN, DEBRA J | | | $60,000.00 | 44660 | 94023848 |
| 4 | 12/01/1993 | QCD | Quit Claim Deed | BROWN, DOUGLAS R | BROWN, DOUGLAS R | | | $0.00 | 43811 | 94019862 |
| 5 | 04/01/1966 | OTHER | Other - Misc. Documents | SWENSON, C J | BROWN, DOUGLAS R | | | $0.00 | 21367 | 0 |
| 6 | 01/01/1900 | OTHER | Other - Misc. Documents | Unknown | SWENSON, C J | | | $0.00 | 0 | 0 |
Payout Agreement
| No payout information available.. |