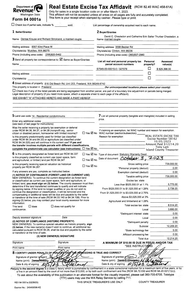
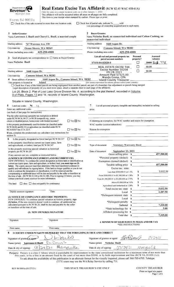
Property
Account |
| Property ID: | 128187 | Abbreviated Legal Description: | IN NW NW NW: BG NWCR SEC 10 S5*W394.39' N72*E707.14' M/L N5*E234.76' N85*W689.39 TPB PT FR 518-0650 SUB WATER/R AGREE AF413234 FOR 518-0650 & 529-1170 TGW EZ AF#86011993 |
| Geographic ID: | R32910-549-0680 | Agent Code: | |
| Type: | Real | | |
| Tax Area: | 712 - APPRAISER-S Whid Schl Dist, outside Langley, improved, greater than 1 acre | Land Use Code | 11 |
| Open Space: | N | DFL | N |
| Historic Property: | N | Remodel Property: | N |
| Multi-Family Redevelopment: | N | | |
| Township: | 29 | Section: | 10 |
| Range: | R3 |
Location |
| Address: | 3604 RIVENDELL RD LANGLEY, WA 98260 | Mapsco: | |
| Neighborhood: | Cycle 4 | Map ID: | 756 |
| Neighborhood CD: | 4 |
Owner |
| Name: | CAMERON, KELLY | Owner ID: | 315683 |
| Mailing Address: | JANAE CAMERON 3604 RIVENDELL RD LANGLEY, WA 98260 | % Ownership: | 100.0000000000% |
| | | Exemptions: | |
Taxes and Assessment Details
Values
| (+) Improvement Homesite Value: | + | $0 | |
| (+) Improvement Non-Homesite Value: | + | $229,203 | |
| (+) Land Homesite Value: | + | $0 | |
| (+) Land Non-Homesite Value: | + | $370,000 | |
| (+) Curr Use (HS): | + | $0 | $0 |
| (+) Curr Use (NHS): | + | $0 | $0 |
| | | -------------------------- | |
| (=) Market Value: | = | $599,203 | |
| (–) Productivity Loss: | – | $0 | |
| | | -------------------------- | |
| (=) Subtotal: | = | $599,203 | |
| (+) Senior Appraised Value: | + | $0 | |
| (+) Non-Senior Appraised Value: | + | $599,203 | |
| | | -------------------------- | |
| (=) Total Appraised Value: | = | $599,203 | |
| (–) Senior Exemption Loss: | – | $0 | |
| (–) Exemption Loss: | – | $0 | |
| | | -------------------------- | |
| (=) Taxable Value: | = | $599,203 | |
Taxing Jurisdiction
| Owner: | CAMERON, KELLY | | |
| % Ownership: | 100.0000000000% | | |
| Total Value: | $599,203 | | |
| Tax Area: | 712 - APPRAISER-S Whid Schl Dist, outside Langley, improved, greater than 1 acre |
| CF | Conservation Futures | 0.0316035091 | $599,203 | $599,203 | $18.94 | | |
| FIRE3 | Fire & Rescue Dist #3 S Whidbey GEN | 1.2004855531 | $599,203 | $599,203 | $719.33 | | |
| HOBOND | Hospital BOND | 0.1910887512 | $599,203 | $599,203 | $114.50 | | |
| HOGEN | Hospital GEN | 0.3902502903 | $599,203 | $599,203 | $233.84 | | |
| CE | County Current Expense | 0.3708482477 | $599,203 | $599,203 | $222.21 | | |
| CR | County Roads | 0.4584763726 | $599,203 | $599,203 | $274.72 | | |
| ISLANDEMS | Hospital GEN (EMS) | 0.5000000000 | $599,203 | $599,203 | $299.60 | | |
| LIB | Library Sno-Isle GEN | 0.3153421757 | $599,203 | $599,203 | $188.95 | | |
| PORTWHID | Port of S Whidbey GEN | 0.1094540357 | $599,203 | $599,203 | $65.59 | | |
| SCH206BOND | School 206 BOND | 0.3161759235 | $599,203 | $599,203 | $189.45 | | |
| SCH206MO | School 206 Enrichment | 0.4547169547 | $599,203 | $599,203 | $272.47 | | |
| ST | State School | 1.3035497053 | $599,203 | $599,203 | $781.09 | | |
| ST2 | State School Part 2 | 0.8169543533 | $599,203 | $599,203 | $489.52 | | |
| SWHIDPRBD | P & R S Whidbey BOND | 0.0152817568 | $599,203 | $599,203 | $9.16 | | |
| SWHIDPRBD2 | P & R S Whidbey BOND2 | 0.0138911264 | $599,203 | $599,203 | $8.32 | | |
| SWHIDPRMT | P & R S Whidbey GEN | 0.2053334452 | $599,203 | $599,203 | $123.04 | | |
| | Total Tax Rate: | 6.6934522006 | | | | | |
| | | | | Taxes w/Current Exemptions: | $4,010.73 | | |
| | | | | Taxes w/o Exemptions: | $4,010.73 | | |
Improvement / Building
| Improvement #1: | RESIDENTIAL | State Code: | Y | 1560.0 sqft | Value: | $229,203 |
| Bathrooms: | 1 | Bedrooms: | 3 | | Ceiling: | TONGUE & GROOVE | Exterior Wall/Cover: | SHINGLE | | Floor Covering: | HARDWOOD/CARP 20-80 | Floor Structure: | WOOD W/SUBFLOOR | | Foundation: | CONCRETE BLOCKS | Heating: | WALL HEAT ELECTRIC | | Interior Finish: | DRYWALL PAINT | Plumbing Fixture Cnt: | 6 | | Roof Slope: | 3" IN 12" | Roof Structure/Cover: | CJ ALUMINIUM HEAVY |
|
| | Type | Description | Class CD | Sub Class CD | Year Built | Area |
| | BAS | BASE/MAIN FLOOR | 3 | 0 | 1976 | 786.0 |
| | UPS | UPPER STORY | 3 | 0 | 1976 | 774.0 |
| | ENP | ENCLOSED PORCH | 3 | 0 | 1976 | 160.0 |
| | DGR | DETACHED GARAGE | 3 | 0 | 1976 | 1200.0 |
| | CPD | OPEN CARPORT DIRT FLOOR | 3 | 0 | 1976 | 720.0 |
Sketch
Property Image
Land
| 1 | 32 | AC (03.01-09.99) | 5.0000 | 0.00 | 0.00 | 0.00 | 1.00 | $370,000 | $0 |
Roll Value History
| 2026 | N/A | N/A | N/A | N/A | N/A |
| 2025 | $229,203 | $370,000 | $0 | $599,203 | $599,203 |
| 2024 | $232,828 | $350,000 | $0 | $582,828 | $582,828 |
| 2023 | $236,451 | $330,000 | $0 | $566,451 | $566,451 |
| 2022 | $217,391 | $280,000 | $0 | $497,391 | $497,391 |
| 2021 | $191,876 | $230,000 | $0 | $421,876 | $421,876 |
| 2020 | $184,359 | $190,000 | $0 | $374,359 | $374,359 |
| 2019 | $137,412 | $250,000 | $0 | $387,412 | $387,412 |
| 2018 | $137,923 | $210,000 | $0 | $347,923 | $347,923 |
| 2017 | $138,944 | $190,000 | $0 | $328,944 | $328,944 |
| 2016 | $137,334 | $165,000 | $0 | $302,334 | $302,334 |
| 2015 | $139,324 | $135,000 | $0 | $274,324 | $274,324 |
| 2014 | $134,933 | $160,000 | $0 | $294,933 | $294,933 |
| 2013 | $136,709 | $160,000 | $0 | $296,709 | $296,709 |
| 2012 | $138,487 | $160,000 | $0 | $298,487 | $298,487 |
| 2011 | $140,263 | $160,000 | $0 | $300,263 | $300,263 |
| 2010 | $147,205 | $160,000 | $0 | $307,205 | $307,205 |
| 2009 | $153,267 | $220,000 | $0 | $373,267 | $373,267 |
| 2008 | $155,625 | $214,911 | $0 | $370,536 | $300,536 |
| 2007 | $157,810 | $215,000 | $0 | $372,810 | $372,810 |
Deed and Sales History
| 1 | 03/04/2025 | WD | Warranty Deed | GANSMOE, IRENE E | CAMERON, KELLY | | | $525,000.00 | 62745 | 4582996 |
| 2 | 09/01/1992 | DECREE | Divorce Decree/Legal Separation | GANSMOE, IRENE E | GANSMOE, IRENE E | | | $0.00 | 65080 | 0 |
| 3 | 08/01/1991 | DECREE | Divorce Decree/Legal Separation | GANSMOE, AUSTIN | GANSMOE, IRENE E | | | $0.00 | 34408 | 93023001 |
| 4 | 10/01/1986 | WD | Warranty Deed | BOWER, CHARLES T | GANSMOE, AUSTIN | | | $98,000.00 | 62834 | 86012864 |
| 5 | 05/01/1986 | QCD | Quit Claim Deed | BOWER, CHARLES T | BOWER, CHARLES T | | | $0.00 | 61635 | 0 |
| 6 | 03/01/1985 | QCD | Quit Claim Deed | BOWER, CHARLES T | BOWER, CHARLES T | | | $0.00 | 50656 | 85002858 |
| 7 | 03/01/1985 | QCD | Quit Claim Deed | BOWER, CHARLES T | BOWER, CHARLES T | | | $0.00 | 50655 | 85002857 |
| 8 | 08/01/1984 | EZ | Easement | BOWER, CHARLES T | BOWER, CHARLES T | | | $0.00 | 60915 | 413234 |
| 9 | 06/01/1984 | OTHER | Other - Misc. Documents | BOWER, CHARLES T | BOWER, CHARLES T | | | $0.00 | 60652 | 424692 |
| 10 | 01/01/1900 | OTHER | Other - Misc. Documents | Unknown | BOWER, CHARLES T | | | $0.00 | 0 | 0 |
Payout Agreement
| No payout information available.. |