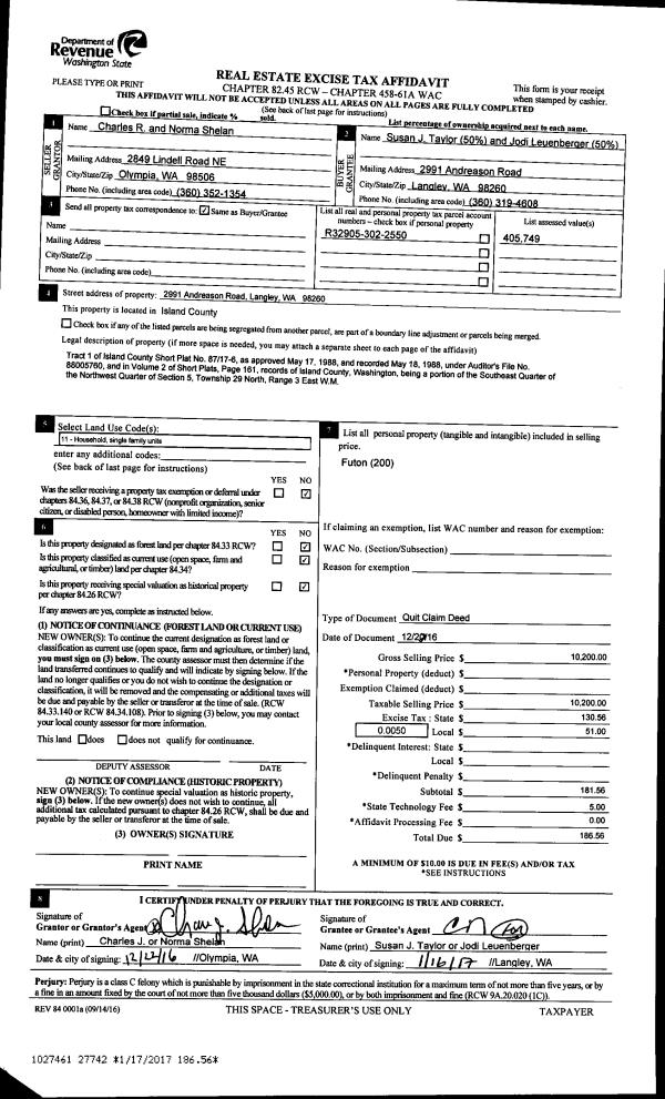
Property
Account |
| Property ID: | 128196 | Abbreviated Legal Description: | 41 - IN SE SE: BG @ SE CR SEC 11 N500' W706' S500' E706' EX RD AF#106369 BLA AF#85012094 TGW & SUB EZ AF#85005699 |
| Geographic ID: | R32911-023-4690 | Agent Code: | |
| Type: | Real | | |
| Tax Area: | 712 - APPRAISER-S Whid Schl Dist, outside Langley, improved, greater than 1 acre | Land Use Code | 11 |
| Open Space: | N | DFL | N |
| Historic Property: | N | Remodel Property: | N |
| Multi-Family Redevelopment: | N | | |
| Township: | 29 | Section: | 11 |
| Range: | R3 |
Location |
| Address: | 5596 WILKINSON RD LANGLEY, WA 98260 | Mapsco: | |
| Neighborhood: | Cycle 4 | Map ID: | 759 |
| Neighborhood CD: | 4 |
Owner |
| Name: | BERGER TRUSTEE, CHRISTOPHER LEE | Owner ID: | 278192 |
| Mailing Address: | 7839 11TH AVE NE SEATTLE, WA 98115 | % Ownership: | 100.0000000000% |
| | | Exemptions: | |
Taxes and Assessment Details
Values
| (+) Improvement Homesite Value: | + | $0 | |
| (+) Improvement Non-Homesite Value: | + | $182,509 | |
| (+) Land Homesite Value: | + | $0 | |
| (+) Land Non-Homesite Value: | + | $370,000 | |
| (+) Curr Use (HS): | + | $0 | $0 |
| (+) Curr Use (NHS): | + | $0 | $0 |
| | | -------------------------- | |
| (=) Market Value: | = | $552,509 | |
| (–) Productivity Loss: | – | $0 | |
| | | -------------------------- | |
| (=) Subtotal: | = | $552,509 | |
| (+) Senior Appraised Value: | + | $0 | |
| (+) Non-Senior Appraised Value: | + | $552,509 | |
| | | -------------------------- | |
| (=) Total Appraised Value: | = | $552,509 | |
| (–) Senior Exemption Loss: | – | $0 | |
| (–) Exemption Loss: | – | $0 | |
| | | -------------------------- | |
| (=) Taxable Value: | = | $552,509 | |
Taxing Jurisdiction
| Owner: | BERGER TRUSTEE, CHRISTOPHER LEE | | |
| % Ownership: | 100.0000000000% | | |
| Total Value: | $552,509 | | |
| Tax Area: | 712 - APPRAISER-S Whid Schl Dist, outside Langley, improved, greater than 1 acre |
| CF | Conservation Futures | 0.0316035091 | $552,509 | $552,509 | $17.46 | | |
| FIRE3 | Fire & Rescue Dist #3 S Whidbey GEN | 1.2004855531 | $552,509 | $552,509 | $663.28 | | |
| HOBOND | Hospital BOND | 0.1910887512 | $552,509 | $552,509 | $105.58 | | |
| HOGEN | Hospital GEN | 0.3902502903 | $552,509 | $552,509 | $215.62 | | |
| CE | County Current Expense | 0.3708482477 | $552,509 | $552,509 | $204.90 | | |
| CR | County Roads | 0.4584763726 | $552,509 | $552,509 | $253.31 | | |
| ISLANDEMS | Hospital GEN (EMS) | 0.5000000000 | $552,509 | $552,509 | $276.25 | | |
| LIB | Library Sno-Isle GEN | 0.3153421757 | $552,509 | $552,509 | $174.23 | | |
| PORTWHID | Port of S Whidbey GEN | 0.1094540357 | $552,509 | $552,509 | $60.47 | | |
| SCH206BOND | School 206 BOND | 0.3161759235 | $552,509 | $552,509 | $174.69 | | |
| SCH206MO | School 206 Enrichment | 0.4547169547 | $552,509 | $552,509 | $251.24 | | |
| ST | State School | 1.3035497053 | $552,509 | $552,509 | $720.22 | | |
| ST2 | State School Part 2 | 0.8169543533 | $552,509 | $552,509 | $451.37 | | |
| SWHIDPRBD | P & R S Whidbey BOND | 0.0152817568 | $552,509 | $552,509 | $8.44 | | |
| SWHIDPRBD2 | P & R S Whidbey BOND2 | 0.0138911264 | $552,509 | $552,509 | $7.67 | | |
| SWHIDPRMT | P & R S Whidbey GEN | 0.2053334452 | $552,509 | $552,509 | $113.45 | | |
| | Total Tax Rate: | 6.6934522006 | | | | | |
| | | | | Taxes w/Current Exemptions: | $3,698.18 | | |
| | | | | Taxes w/o Exemptions: | $3,698.18 | | |
Improvement / Building
| Improvement #1: | RESIDENTIAL | State Code: | Y | 1595.0 sqft | Value: | $182,509 |
| Bathrooms: | 2 | Bedrooms: | 2 | | Ceiling: | DRYWALL PAINTED | Exterior Wall/Cover: | PLY/HARDBOARD T-111 | | Floor Covering: | VINYL TILE/CARP 20-80 | Floor Structure: | WOOD W/SUBFLOOR | | Foundation: | CONCRETE | Heating: | BASEBOARD ELECTRIC | | Interior Finish: | DRYWALL PAINT | Plumbing Fixture Cnt: | 9 | | Roof Slope: | 8" IN 12" | Roof Structure/Cover: | BEAM ASPHALT |
|
| | Type | Description | Class CD | Sub Class CD | Year Built | Area |
| | BAS | BASE/MAIN FLOOR | 3 | 0 | 1968 | 1013.0 |
| | UPS | UPPER STORY | 3 | 0 | 1968 | 144.0 |
| | BAW | BALCONY WOOD RAIL | 3 | 0 | 1968 | 53.6 |
| | OWP | OPEN WOOD PORCH W/STEPS | 3 | 0 | 1968 | 745.7 |
| | UPH | HALF STORY | 3 | 0 | 1968 | 438.0 |
| | UTY | STORAGE/UTILITY | 3 | 0 | 1968 | 320.0 |
| | oCPD | CARPRT DRT | 3 | 0 | 1968 | 0.0 |
Sketch
Property Image
Land
| 1 | 32 | AC (03.01-09.99) | 0.0000 | 0.00 | 0.00 | 0.00 | 1.00 | $370,000 | $0 |
Roll Value History
| 2026 | N/A | N/A | N/A | N/A | N/A |
| 2025 | $182,509 | $370,000 | $0 | $552,509 | $552,509 |
| 2024 | $189,274 | $350,000 | $0 | $539,274 | $539,274 |
| 2023 | $192,332 | $330,000 | $0 | $522,332 | $522,332 |
| 2022 | $177,115 | $280,000 | $0 | $457,115 | $457,115 |
| 2021 | $156,688 | $230,000 | $0 | $386,688 | $386,688 |
| 2020 | $153,343 | $190,000 | $0 | $343,343 | $343,343 |
| 2019 | $112,090 | $250,000 | $0 | $362,090 | $362,090 |
| 2018 | $112,506 | $210,000 | $0 | $322,506 | $322,506 |
| 2017 | $113,396 | $190,000 | $0 | $303,396 | $303,396 |
| 2016 | $115,059 | $165,000 | $0 | $280,059 | $280,059 |
| 2015 | $116,720 | $165,000 | $0 | $281,720 | $281,720 |
| 2014 | $101,914 | $121,800 | $0 | $223,714 | $223,714 |
| 2013 | $103,586 | $121,800 | $0 | $225,386 | $225,386 |
| 2012 | $105,261 | $121,800 | $0 | $227,061 | $227,061 |
| 2011 | $106,936 | $121,800 | $0 | $228,736 | $228,736 |
| 2010 | $117,719 | $121,800 | $0 | $239,519 | $239,519 |
| 2009 | $121,324 | $146,160 | $0 | $267,484 | $267,484 |
| 2008 | $119,274 | $438,480 | $0 | $557,754 | $557,754 |
| 2007 | $120,966 | $438,480 | $0 | $559,446 | $559,446 |
Deed and Sales History
| 1 | 12/13/2016 | TRUSTEED | Trustee's Deed | BERGER TRUSTEE, CHRISTOPHER LEE | BERGER TRUSTEE, CHRISTOPHER LEE | | | $0.00 | 27674 | 4414845 |
| 2 | 12/13/2016 | SPWARDEED | Special Warranty Deed | BERGER, THOMAS L | BERGER TRUSTEE, CHRISTOPHER LEE | | | $0.00 | 27673 | 4414844 |
| 3 | 09/10/2009 | WD | Warranty Deed | SCHELL, PAUL E | BERGER, THOMAS L | | | $100,000.00 | 92198 | 4260285 |
| 4 | 10/01/1987 | WD | Warranty Deed | JOHNSON, JACK M | SCHELL, PAUL E | | | $85,000.00 | 73488 | 87015240 |
| 5 | 03/01/1987 | WD | Warranty Deed | JOHNSON, FLORA J | JOHNSON, JACK M | | | $70,000.00 | 70556 | 87003299 |
| 6 | 02/01/1985 | DECREE | Divorce Decree/Legal Separation | JOHNSON, JACK M | JOHNSON, FLORA J | | | $0.00 | 50346 | 85001619 |
Payout Agreement
| No payout information available.. |