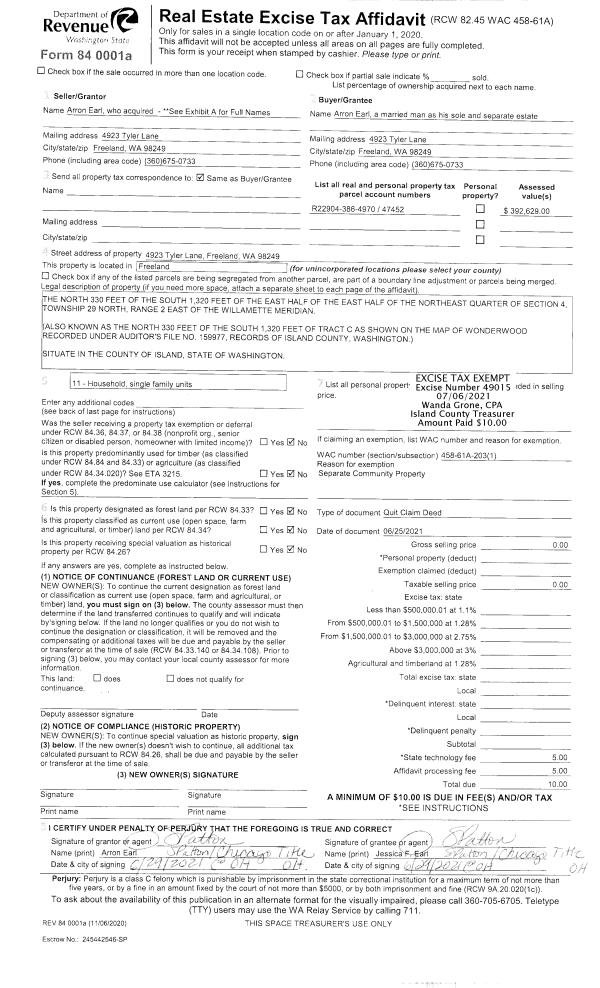
Property
Account |
| Property ID: | 128221 | Abbreviated Legal Description: | 29 - IN SE SE: E706' OF S759' OF SE SE EX S500' EX RDS AF#85012094 |
| Geographic ID: | R32911-066-4720 | Agent Code: | |
| Type: | Real | | |
| Tax Area: | 712 - APPRAISER-S Whid Schl Dist, outside Langley, improved, greater than 1 acre | Land Use Code | 11 |
| Open Space: | N | DFL | N |
| Historic Property: | N | Remodel Property: | N |
| Multi-Family Redevelopment: | N | | |
| Township: | 29 | Section: | 11 |
| Range: | R3 |
Location |
| Address: | 5558 WILKINSON RD LANGLEY, WA 98260 | Mapsco: | |
| Neighborhood: | Cycle 4 | Map ID: | 759 |
| Neighborhood CD: | 4 |
Owner |
| Name: | CAMPBELL TTEE, THOMAS GORDY | Owner ID: | 309215 |
| Mailing Address: | PO BOX 695 LANGLEY, WA 98260 | % Ownership: | 100.0000000000% |
| | | Exemptions: | |
Taxes and Assessment Details
Values
| (+) Improvement Homesite Value: | + | $0 | |
| (+) Improvement Non-Homesite Value: | + | $340,224 | |
| (+) Land Homesite Value: | + | $0 | |
| (+) Land Non-Homesite Value: | + | $370,000 | |
| (+) Curr Use (HS): | + | $0 | $0 |
| (+) Curr Use (NHS): | + | $0 | $0 |
| | | -------------------------- | |
| (=) Market Value: | = | $710,224 | |
| (–) Productivity Loss: | – | $0 | |
| | | -------------------------- | |
| (=) Subtotal: | = | $710,224 | |
| (+) Senior Appraised Value: | + | $0 | |
| (+) Non-Senior Appraised Value: | + | $710,224 | |
| | | -------------------------- | |
| (=) Total Appraised Value: | = | $710,224 | |
| (–) Senior Exemption Loss: | – | $0 | |
| (–) Exemption Loss: | – | $0 | |
| | | -------------------------- | |
| (=) Taxable Value: | = | $710,224 | |
Taxing Jurisdiction
| Owner: | CAMPBELL TTEE, THOMAS GORDY | | |
| % Ownership: | 100.0000000000% | | |
| Total Value: | $710,224 | | |
| Tax Area: | 712 - APPRAISER-S Whid Schl Dist, outside Langley, improved, greater than 1 acre |
| CF | Conservation Futures | 0.0316035091 | $710,224 | $710,224 | $22.45 | | |
| FIRE3 | Fire & Rescue Dist #3 S Whidbey GEN | 1.2004855531 | $710,224 | $710,224 | $852.61 | | |
| HOBOND | Hospital BOND | 0.1910887512 | $710,224 | $710,224 | $135.72 | | |
| HOGEN | Hospital GEN | 0.3902502903 | $710,224 | $710,224 | $277.17 | | |
| CE | County Current Expense | 0.3708482477 | $710,224 | $710,224 | $263.39 | | |
| CR | County Roads | 0.4584763726 | $710,224 | $710,224 | $325.62 | | |
| ISLANDEMS | Hospital GEN (EMS) | 0.5000000000 | $710,224 | $710,224 | $355.11 | | |
| LIB | Library Sno-Isle GEN | 0.3153421757 | $710,224 | $710,224 | $223.96 | | |
| PORTWHID | Port of S Whidbey GEN | 0.1094540357 | $710,224 | $710,224 | $77.74 | | |
| SCH206BOND | School 206 BOND | 0.3161759235 | $710,224 | $710,224 | $224.56 | | |
| SCH206MO | School 206 Enrichment | 0.4547169547 | $710,224 | $710,224 | $322.95 | | |
| ST | State School | 1.3035497053 | $710,224 | $710,224 | $925.81 | | |
| ST2 | State School Part 2 | 0.8169543533 | $710,224 | $710,224 | $580.22 | | |
| SWHIDPRBD | P & R S Whidbey BOND | 0.0152817568 | $710,224 | $710,224 | $10.85 | | |
| SWHIDPRBD2 | P & R S Whidbey BOND2 | 0.0138911264 | $710,224 | $710,224 | $9.87 | | |
| SWHIDPRMT | P & R S Whidbey GEN | 0.2053334452 | $710,224 | $710,224 | $145.83 | | |
| | Total Tax Rate: | 6.6934522006 | | | | | |
| | | | | Taxes w/Current Exemptions: | $4,753.86 | | |
| | | | | Taxes w/o Exemptions: | $4,753.86 | | |
Improvement / Building
| Improvement #1: | RESIDENTIAL | State Code: | Y | 3148.0 sqft | Value: | $340,224 |
| Bathrooms: | 2 | Bedrooms: | 3 | | Ceiling: | PLASTER PAINTED | Exterior Wall/Cover: | WOOD SIDING | | Floor Covering: | VINYL TILE/HARWD 20-80 | Floor Structure: | WOOD W/SUBFLOOR | | Foundation: | WOOD BLOCKS | Heating: | BASEBOARD ELECTRIC | | Interior Finish: | PLASTER | Plumbing Fixture Cnt: | 9 | | Roof Slope: | 5" IN 12" | Roof Structure/Cover: | CJ WOOD SHINGLE |
|
| | Type | Description | Class CD | Sub Class CD | Year Built | Area |
| | BAS | BASE/MAIN FLOOR | 4 | 0 | 1914 | 1642.0 |
| | UB6 | BASEMENT UNFINISHED 6" | 4 | 0 | 1914 | 1250.0 |
| | OP3 | OPEN PORCH W/ROOF | 4 | 0 | 1914 | 60.0 |
| | OP1 | OPEN PORCH SLAB | 4 | 0 | 1914 | 160.0 |
| | OP4 | OPEN PORCH W/CEILING-ROOF | 4 | 0 | 1914 | 154.0 |
| | UPS | UPPER STORY | 4 | 0 | 1914 | 1506.0 |
| | OWP | OPEN WOOD PORCH W/STEPS | 4 | 0 | 1914 | 260.0 |
| | ENP | ENCLOSED PORCH | 4 | 0 | 1914 | 480.0 |
| | OWP | OPEN WOOD PORCH W/STEPS | 4 | 0 | 1914 | 138.0 |
| | CPD | OPEN CARPORT DIRT FLOOR | 4 | 0 | 1914 | 1292.0 |
| | CPD | OPEN CARPORT DIRT FLOOR | 4 | 0 | 1914 | 684.0 |
| | UTY | STORAGE/UTILITY | 4 | 0 | 1914 | 288.0 |
| | oBAR | BARN | 4 | 0 | 1914 | 952.0 |
Sketch
Property Image
Land
| 1 | 32 | AC (03.01-09.99) | 4.3800 | 0.00 | 0.00 | 0.00 | 1.00 | $370,000 | $0 |
Roll Value History
| 2026 | N/A | N/A | N/A | N/A | N/A |
| 2025 | $340,224 | $370,000 | $0 | $710,224 | $710,224 |
| 2024 | $354,316 | $350,000 | $0 | $704,316 | $704,316 |
| 2023 | $361,231 | $330,000 | $0 | $691,231 | $691,231 |
| 2022 | $333,363 | $280,000 | $0 | $613,363 | $613,363 |
| 2021 | $295,324 | $230,000 | $0 | $525,324 | $525,324 |
| 2020 | $267,131 | $190,000 | $0 | $457,131 | $457,131 |
| 2019 | $217,354 | $250,000 | $0 | $467,354 | $467,354 |
| 2018 | $218,338 | $210,000 | $0 | $428,338 | $428,338 |
| 2017 | $220,305 | $190,000 | $0 | $410,305 | $410,305 |
| 2016 | $224,243 | $165,000 | $0 | $389,243 | $389,243 |
| 2015 | $228,179 | $135,000 | $0 | $363,179 | $363,179 |
| 2014 | $247,795 | $118,260 | $0 | $366,055 | $366,055 |
| 2013 | $251,871 | $118,260 | $0 | $370,131 | $370,131 |
| 2012 | $255,949 | $118,260 | $0 | $374,209 | $374,209 |
| 2011 | $260,025 | $118,260 | $0 | $378,285 | $378,285 |
| 2010 | $274,008 | $118,260 | $0 | $392,268 | $392,268 |
| 2009 | $288,792 | $192,720 | $0 | $481,512 | $481,512 |
| 2008 | $288,284 | $236,520 | $0 | $524,804 | $524,804 |
| 2007 | $294,694 | $236,520 | $0 | $531,214 | $531,214 |
Deed and Sales History
| 1 | 07/06/2023 | QCD | Quit Claim Deed | CAMPBELL, THOMAS G | CAMPBELL TTEE, THOMAS GORDY | | | $0.00 | 57222 | 4561907 |
| 2 | 10/01/1988 | WD | Warranty Deed | LANTAFF, ROGER E | CAMPBELL, THOMAS G | | | $165,000.00 | 83340 | 88012428 |
| 3 | 02/01/1983 | REC | Real Estate Contract | SKELTON, ROBERT W | LANTAFF, ROGER E | | | $33,000.00 | 30378 | 405969 |
| 4 | 08/01/1982 | CD | DNU - Correction Deed | SKELTON, ROBERT W | SKELTON, ROBERT W | | | $0.00 | 21963 | 399567 |
| 5 | 07/01/1982 | CD | DNU - Correction Deed | BURKERT, FLORA | SKELTON, ROBERT W | | | $0.00 | 21962 | 399566 |
| 6 | 01/01/1900 | OTHER | Other - Misc. Documents | Unknown | BURKERT, FLORA | | | $0.00 | 0 | 0 |
Payout Agreement
| No payout information available.. |