Property
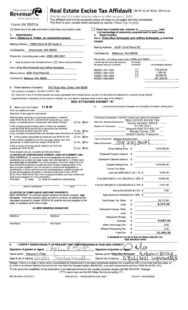
Account |
| Property ID: | 128828 | Abbreviated Legal Description: | 7 - IN GL4: BG 562.5'S OF NWCR GL4 S117.5' E TO ML NLY ALG ML TP E OF TPB W TPB EX WILKENSON RD TGW: BG NWCR GL4 S1*W562.50' S88*E710.51' TPB N1*E12.30' S88*E110.11' M/L TO TOP OF BLUFF SELY ALG SD BLUFF TP S88*E OF TPB N88*W111.16' M/L TPB |
| Geographic ID: | R32912-069-0490 | Agent Code: | |
| Type: | Real | | |
| Tax Area: | 712 - APPRAISER-S Whid Schl Dist, outside Langley, improved, greater than 1 acre | Land Use Code | 11 |
| Open Space: | N | DFL | N |
| Historic Property: | N | Remodel Property: | N |
| Multi-Family Redevelopment: | N | | |
| Township: | 29 | Section: | 12 |
| Range: | R3 |
Location |
| Address: | 5545 WILKINSON RD LANGLEY, WA 98260 | Mapsco: | |
| Neighborhood: | Cycle 4 | Map ID: | 762 |
| Neighborhood CD: | 4 |
Owner |
| Name: | BOLTON, HORACE B | Owner ID: | 200008 |
| Mailing Address: | BETTY BOLTON 1500 4TH AVE #801 SEATTLE, WA 98101 | % Ownership: | 100.0000000000% |
| | | Exemptions: | |
Taxes and Assessment Details
Values
| (+) Improvement Homesite Value: | + | $0 | |
| (+) Improvement Non-Homesite Value: | + | $172,903 | |
| (+) Land Homesite Value: | + | $0 | |
| (+) Land Non-Homesite Value: | + | $750,000 | |
| (+) Curr Use (HS): | + | $0 | $0 |
| (+) Curr Use (NHS): | + | $0 | $0 |
| | | -------------------------- | |
| (=) Market Value: | = | $922,903 | |
| (–) Productivity Loss: | – | $0 | |
| | | -------------------------- | |
| (=) Subtotal: | = | $922,903 | |
| (+) Senior Appraised Value: | + | $0 | |
| (+) Non-Senior Appraised Value: | + | $922,903 | |
| | | -------------------------- | |
| (=) Total Appraised Value: | = | $922,903 | |
| (–) Senior Exemption Loss: | – | $0 | |
| (–) Exemption Loss: | – | $0 | |
| | | -------------------------- | |
| (=) Taxable Value: | = | $922,903 | |
Taxing Jurisdiction
| Owner: | BOLTON, HORACE B | | |
| % Ownership: | 100.0000000000% | | |
| Total Value: | $922,903 | | |
| Tax Area: | 712 - APPRAISER-S Whid Schl Dist, outside Langley, improved, greater than 1 acre |
| CF | Conservation Futures | 0.0316035091 | $922,903 | $922,903 | $29.17 | | |
| FIRE3 | Fire & Rescue Dist #3 S Whidbey GEN | 1.2004855531 | $922,903 | $922,903 | $1,107.93 | | |
| HOBOND | Hospital BOND | 0.1910887512 | $922,903 | $922,903 | $176.36 | | |
| HOGEN | Hospital GEN | 0.3902502903 | $922,903 | $922,903 | $360.16 | | |
| CE | County Current Expense | 0.3708482477 | $922,903 | $922,903 | $342.26 | | |
| CR | County Roads | 0.4584763726 | $922,903 | $922,903 | $423.13 | | |
| ISLANDEMS | Hospital GEN (EMS) | 0.5000000000 | $922,903 | $922,903 | $461.45 | | |
| LIB | Library Sno-Isle GEN | 0.3153421757 | $922,903 | $922,903 | $291.03 | | |
| PORTWHID | Port of S Whidbey GEN | 0.1094540357 | $922,903 | $922,903 | $101.02 | | |
| SCH206BOND | School 206 BOND | 0.3161759235 | $922,903 | $922,903 | $291.80 | | |
| SCH206MO | School 206 Enrichment | 0.4547169547 | $922,903 | $922,903 | $419.66 | | |
| ST | State School | 1.3035497053 | $922,903 | $922,903 | $1,203.05 | | |
| ST2 | State School Part 2 | 0.8169543533 | $922,903 | $922,903 | $753.97 | | |
| SWHIDPRBD | P & R S Whidbey BOND | 0.0152817568 | $922,903 | $922,903 | $14.10 | | |
| SWHIDPRBD2 | P & R S Whidbey BOND2 | 0.0138911264 | $922,903 | $922,903 | $12.82 | | |
| SWHIDPRMT | P & R S Whidbey GEN | 0.2053334452 | $922,903 | $922,903 | $189.50 | | |
| | Total Tax Rate: | 6.6934522006 | | | | | |
| | | | | Taxes w/Current Exemptions: | $6,177.41 | | |
| | | | | Taxes w/o Exemptions: | $6,177.41 | | |
Improvement / Building
| Improvement #1: | RESIDENTIAL | State Code: | Y | 1124.0 sqft | Value: | $172,903 |
| Bathrooms: | 1 | Bedrooms: | 2 | | Ceiling: | DRYWALL PAINTED | Exterior Wall/Cover: | WOOD SIDING | | Floor Covering: | SOFTWOOD 100% | Floor Structure: | WOOD W/SUBFLOOR | | Foundation: | CONCRETE | Heating: | FHA ELECTRIC | | Interior Finish: | DRYWALL PAINT | Plumbing Fixture Cnt: | 6 | | Roof Slope: | 6" IN 12" | Roof Structure/Cover: | CJ ASPHALT |
|
| | Type | Description | Class CD | Sub Class CD | Year Built | Area |
| | BAS | BASE/MAIN FLOOR | 3 | 0 | 1950 | 1124.0 |
| | AGR | ATTACHED GARAGE | 3 | 0 | 1950 | 598.0 |
| | OWP | OPEN WOOD PORCH W/STEPS | 3 | 0 | 1950 | 254.2 |
| | OWP | OPEN WOOD PORCH W/STEPS | 3 | 0 | 1950 | 713.0 |
Sketch
Property Image
Land
| 1 | HB | HIGH BLUFF | 2.5300 | 110206.80 | 130.00 | 0.00 | 1.00 | $750,000 | $0 |
Roll Value History
| 2026 | N/A | N/A | N/A | N/A | N/A |
| 2025 | $172,903 | $750,000 | $0 | $922,903 | $922,903 |
| 2024 | $175,774 | $750,000 | $0 | $925,774 | $925,774 |
| 2023 | $178,643 | $750,000 | $0 | $928,643 | $928,643 |
| 2022 | $164,360 | $700,000 | $0 | $864,360 | $864,360 |
| 2021 | $145,186 | $300,000 | $0 | $445,186 | $445,186 |
| 2020 | $142,107 | $300,000 | $0 | $442,107 | $442,107 |
| 2019 | $101,996 | $350,000 | $0 | $451,996 | $451,996 |
| 2018 | $102,380 | $300,000 | $0 | $402,380 | $160,952 |
| 2017 | $103,158 | $300,000 | $0 | $403,158 | $161,263 |
| 2016 | $104,696 | $300,000 | $0 | $404,696 | $161,878 |
| 2015 | $106,237 | $300,000 | $0 | $406,237 | $336,237 |
| 2014 | $78,274 | $300,000 | $0 | $378,274 | $378,274 |
| 2013 | $79,811 | $351,316 | $0 | $431,127 | $431,127 |
| 2012 | $81,351 | $351,316 | $0 | $432,667 | $432,667 |
| 2011 | $82,891 | $390,351 | $0 | $473,242 | $473,242 |
| 2010 | $92,426 | $390,351 | $0 | $482,777 | $482,777 |
| 2009 | $95,283 | $467,865 | $0 | $563,148 | $538,282 |
| 2008 | $99,692 | $467,865 | $0 | $567,557 | $567,557 |
| 2007 | $100,113 | $567,309 | $0 | $667,422 | $667,422 |
Deed and Sales History
| 1 | 11/21/2003 | BLA | DNU - Boundary Line Adjustment | BOLTON, HORACE B | BOLTON, HORACE B | | | $0.00 | 70083 | 4012266 |
| 2 | 10/26/2002 | ESTSEPPROP | Establish Separate Property | BOLTON, HORACE B | BOLTON, HORACE B | | | $0.00 | 24342 | 4035895 |
| 3 | 10/15/2002 | QCD | Quit Claim Deed | BOLTON, HORACE B | BOLTON, HORACE B | | | $0.00 | 24341 | 4035894 |
| 4 | 02/04/2002 | ESTSEPPROP | Establish Separate Property | BOLTON, HORACE B | BOLTON, HORACE B | | | $0.00 | 20706 | 4012269 |
| 5 | 01/01/1900 | OTHER | Other - Misc. Documents | Unknown | BOLTON, HORACE B | | | $0.00 | 0 | 0 |
Payout Agreement
| No payout information available.. |