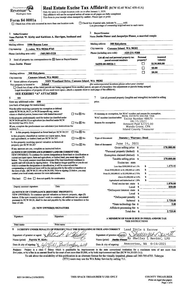
Property
Account |
| Property ID: | 128908 | Abbreviated Legal Description: | 11 - IN GL 3: BG NWCR GL 3 S150'TPB S150' S87*E TO NLN GL 3 TO ML NLY ALG ML TP N86*E FR TPB S86*W TPB EX 40'FOR RD INCL EASM |
| Geographic ID: | R32912-240-0400 | Agent Code: | |
| Type: | Real | | |
| Tax Area: | 712 - APPRAISER-S Whid Schl Dist, outside Langley, improved, greater than 1 acre | Land Use Code | 11 |
| Open Space: | N | DFL | N |
| Historic Property: | N | Remodel Property: | N |
| Multi-Family Redevelopment: | N | | |
| Township: | 29 | Section: | 12 |
| Range: | R3 |
Location |
| Address: | 5425 WILKINSON RD LANGLEY, WA 98260 | Mapsco: | |
| Neighborhood: | Cycle 4 | Map ID: | 762 |
| Neighborhood CD: | 4 |
Owner |
| Name: | GISWOLD, SARA JOYCE | Owner ID: | 273264 |
| Mailing Address: | 5425 WILKINSON RD LANGLEY, WA 98260 | % Ownership: | 100.0000000000% |
| | | Exemptions: | |
Taxes and Assessment Details
Values
| (+) Improvement Homesite Value: | + | $0 | |
| (+) Improvement Non-Homesite Value: | + | $551,170 | |
| (+) Land Homesite Value: | + | $0 | |
| (+) Land Non-Homesite Value: | + | $800,000 | |
| (+) Curr Use (HS): | + | $0 | $0 |
| (+) Curr Use (NHS): | + | $0 | $0 |
| | | -------------------------- | |
| (=) Market Value: | = | $1,351,170 | |
| (–) Productivity Loss: | – | $0 | |
| | | -------------------------- | |
| (=) Subtotal: | = | $1,351,170 | |
| (+) Senior Appraised Value: | + | $0 | |
| (+) Non-Senior Appraised Value: | + | $1,351,170 | |
| | | -------------------------- | |
| (=) Total Appraised Value: | = | $1,351,170 | |
| (–) Senior Exemption Loss: | – | $0 | |
| (–) Exemption Loss: | – | $0 | |
| | | -------------------------- | |
| (=) Taxable Value: | = | $1,351,170 | |
Taxing Jurisdiction
| Owner: | GISWOLD, SARA JOYCE | | |
| % Ownership: | 100.0000000000% | | |
| Total Value: | $1,351,170 | | |
| Tax Area: | 712 - APPRAISER-S Whid Schl Dist, outside Langley, improved, greater than 1 acre |
| CF | Conservation Futures | 0.0316035091 | $1,351,170 | $1,351,170 | $42.70 | | |
| FIRE3 | Fire & Rescue Dist #3 S Whidbey GEN | 1.2004855531 | $1,351,170 | $1,351,170 | $1,622.06 | | |
| HOBOND | Hospital BOND | 0.1910887512 | $1,351,170 | $1,351,170 | $258.19 | | |
| HOGEN | Hospital GEN | 0.3902502903 | $1,351,170 | $1,351,170 | $527.29 | | |
| CE | County Current Expense | 0.3708482477 | $1,351,170 | $1,351,170 | $501.08 | | |
| CR | County Roads | 0.4584763726 | $1,351,170 | $1,351,170 | $619.48 | | |
| ISLANDEMS | Hospital GEN (EMS) | 0.5000000000 | $1,351,170 | $1,351,170 | $675.59 | | |
| LIB | Library Sno-Isle GEN | 0.3153421757 | $1,351,170 | $1,351,170 | $426.08 | | |
| PORTWHID | Port of S Whidbey GEN | 0.1094540357 | $1,351,170 | $1,351,170 | $147.89 | | |
| SCH206BOND | School 206 BOND | 0.3161759235 | $1,351,170 | $1,351,170 | $427.21 | | |
| SCH206MO | School 206 Enrichment | 0.4547169547 | $1,351,170 | $1,351,170 | $614.40 | | |
| ST | State School | 1.3035497053 | $1,351,170 | $1,351,170 | $1,761.32 | | |
| ST2 | State School Part 2 | 0.8169543533 | $1,351,170 | $1,351,170 | $1,103.84 | | |
| SWHIDPRBD | P & R S Whidbey BOND | 0.0152817568 | $1,351,170 | $1,351,170 | $20.65 | | |
| SWHIDPRBD2 | P & R S Whidbey BOND2 | 0.0138911264 | $1,351,170 | $1,351,170 | $18.77 | | |
| SWHIDPRMT | P & R S Whidbey GEN | 0.2053334452 | $1,351,170 | $1,351,170 | $277.44 | | |
| | Total Tax Rate: | 6.6934522006 | | | | | |
| | | | | Taxes w/Current Exemptions: | $9,043.99 | | |
| | | | | Taxes w/o Exemptions: | $9,043.99 | | |
Improvement / Building
| Improvement #1: | RESIDENTIAL | State Code: | Y | 3493.0 sqft | Value: | $551,170 |
| Bathrooms: | 2 | Bedrooms: | 3 | | Ceiling: | TONGUE & GROOVE | Cooling: | HEAT PUMP/CONV/V | | Exterior Wall/Cover: | LOG TO 10" | Floor Covering: | HARDWOOD/CARP 20-80 | | Floor Structure: | WOOD W/SUBFLOOR | Foundation: | CONCRETE | | Interior Finish: | DRYWALL PAINT | Plumbing Fixture Cnt: | 9 | | Roof Slope: | 6" IN 12" | Roof Structure/Cover: | CJ ASPHALT |
|
| | Type | Description | Class CD | Sub Class CD | Year Built | Area |
| | BAS | BASE/MAIN FLOOR | 5 | 0 | 1978 | 1619.0 |
| | DWN | DOWNSTAIRS LIVING AREA | 5 | 0 | 1978 | 1522.0 |
| | OWP | OPEN WOOD PORCH W/STEPS | 5 | 0 | 1978 | 1099.0 |
| | OWR | OPEN WOOD PORCH W/STEPS/ROOF | 5 | 0 | 1978 | 72.0 |
| | ENP | ENCLOSED PORCH | 5 | 0 | 1978 | 66.0 |
| | LOF | LOFT | 5 | 0 | 1978 | 352.0 |
| | CPD | OPEN CARPORT DIRT FLOOR | 5 | 0 | 1978 | 154.0 |
| | UTY | STORAGE/UTILITY | 5 | 0 | 1978 | 0.0 |
| | ENP | ENCLOSED PORCH | 5 | 0 | 1978 | 400.0 |
Sketch
Property Image
Land
| 1 | HB | HIGH BLUFF | 0.0000 | 0.00 | 205.00 | 0.00 | 1.00 | $800,000 | $0 |
Roll Value History
| 2026 | N/A | N/A | N/A | N/A | N/A |
| 2025 | $551,170 | $800,000 | $0 | $1,351,170 | $1,351,170 |
| 2024 | $612,122 | $800,000 | $0 | $1,412,122 | $1,412,122 |
| 2023 | $620,280 | $800,000 | $0 | $1,420,280 | $1,420,280 |
| 2022 | $569,667 | $750,000 | $0 | $1,319,667 | $1,319,667 |
| 2021 | $537,537 | $400,000 | $0 | $937,537 | $937,537 |
| 2020 | $511,823 | $350,000 | $0 | $861,823 | $861,823 |
| 2019 | $401,496 | $400,000 | $0 | $801,496 | $801,496 |
| 2018 | $402,776 | $350,000 | $0 | $752,776 | $752,776 |
| 2017 | $405,348 | $350,000 | $0 | $755,348 | $755,348 |
| 2016 | $410,466 | $350,000 | $0 | $760,466 | $760,466 |
| 2015 | $415,579 | $350,000 | $0 | $765,579 | $765,579 |
| 2014 | $334,192 | $350,000 | $0 | $684,192 | $684,192 |
| 2013 | $338,179 | $348,085 | $0 | $686,264 | $686,264 |
| 2012 | $342,165 | $348,085 | $0 | $690,250 | $690,250 |
| 2011 | $346,152 | $386,761 | $0 | $732,913 | $732,913 |
| 2010 | $360,443 | $386,761 | $0 | $747,204 | $747,204 |
| 2009 | $374,920 | $386,829 | $0 | $761,749 | $761,749 |
| 2008 | $379,071 | $386,829 | $0 | $765,900 | $765,900 |
| 2007 | $383,829 | $468,062 | $0 | $851,891 | $851,891 |
Deed and Sales History
| 1 | 12/22/2015 | WD | Warranty Deed | GISWOLD, ROBERT M | GISWOLD, SARA JOYCE | | | $0.00 | 22635 | 4391640 |
Payout Agreement
| No payout information available.. |